Grondig te moderniseren woning te Putte
€ 280.000
Een pand van Immo Vercammen
Overzicht
- 89 m² bewoonbaar
- 760 m² grond
- 2 Slaapkamer(s)
- 1 Badkamer(s)
- 1 Tuin
- 2 Garage(s)
Beschrijving
Grondig te moderniseren woning op een perceel van 760 m², gunstig gelegen in een landelijke omgeving nabij het dorpscentrum van Putte.
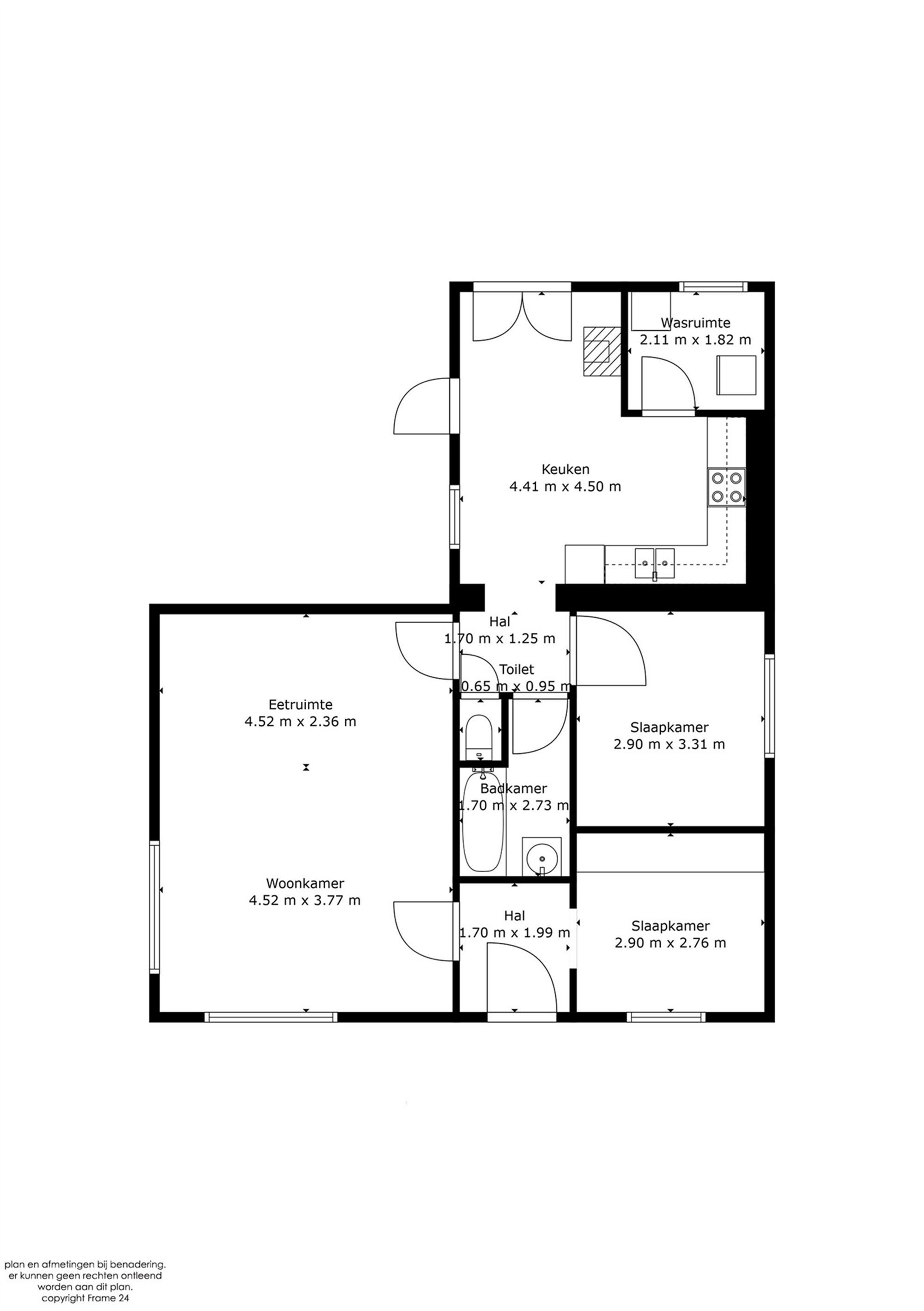
Deze verzorgde woning biedt vele mogelijkheden en kan na renovatie / herbouw omgevormd worden tot een ideale thuis. Via de inkomhal betreden we de woning, om vervolgens de woonkamer en aanpalende keuken te bereiken. De woning beschikt over 2 slaapkamers en een badkamer met ligbad, allen op het gelijkvloers gelegen en bijgevolg vlot toegankelijk. Indien u niet binnen wenst te vertoeven, kan u heerlijk genieten van de aangename tuin.
Absoluut fijn gelegen op fietsafstand van het landelijke dorpscentrum met scholen, winkels, sport- en ontspanningsmogelijkheden. Vlotte bereikbaarheid via belangrijke invalswegen.
Bent u op zoek naar een op te frissen woning die u volledig naar uw wensen kan inrichten? Dan is dit waarschijnlijk de woning die u zoekt. Kom de troeven ter plaatse ontdekken en maak een afspraak: 015/755 444 of info@immovercammen.be
Renovatieplicht EPC: binnen 6 jaar na aankoop = verplichte renovatie tot label D of beter.
Energie
![]() |
- EPC Certificaat: 20250714-000364369-RES-1
- Energieverbruik: 519 kWh/m²/jaar
- E-peil: E0
- Verwarming: Gas
- Beglazing: Standaard dubbel
Extra budget nodig voor je renovatie?

Op de kaart

Virtual tour
Ontdek het hele pand alvorens je bezoek via de virtuele tour, werkelijkheid gemaakt door Walkly. Geen verassingen tijdens het bezoek!
Beleef de virtuele tourFinancieel
| Prijs | |
|---|---|
| Kadastraal inkomen (niet geïndexeerd) | € 602 |
| Kadastraal inkomen (geïndexeerd) | € 0 |
Berekening kosten
Je aankoopkosten? Die heb je snel berekend via de knop hieronder.
Bijkomende info
Gebouw
| Bouwjaar | 1976 |
|---|---|
| Staat | Goed onderhouden |
| Bouwcertificaat | Nee |
| Bewoonbaar (m²) | 89 |
| Verdieping | 0 |
| Badkamers | 1 |
| Slaapkamers | 2 |
| Verdiepingen | 0 |
| Garages | 2 |
| Parkeerplaatsen | 3 |
| Doucheruimtes | 0 |
| Toiletten | 0 |
Faciliteiten
| Keuken uitrusting | Standaard |
|---|---|
| Materiaal ramenomlijstingen | Hout |
| Beglazing | Standaard dubbel |
| Brandstof primaire verwarming | Gas |
| Elektrisch keuringsattest | Nee |
Perceel
| Overstromingsgevoelig | Geen |
|---|---|
| P-score | A |
| G-score | A |
| Voorkeurrecht | Ja |
| Totale oppervlakte (m²) | 760 |
| Bebouwde oppervlakte (m²) | 0 |
| Tuin oppervlakte (m²) | 0 |
| Oppervlakte terras (m²) | 0 |
| Oriëntatie tuin | Noordwest |
Vergunning
| Vergunning | Vergunning beschikbaar |
|---|---|
| Verkavelingsvergunning | Vergunning beschikbaar |
| Type gebied | Landelijk |
Uitrusting
| Investeringspand | Nee |
|---|---|
| Geschikt voor praktijk | Nee |
| Parking | Ja |
| Garage | Ja |
| Thuiskantoor | Nee |
| Kelder | Ja |
| Zolder | Ja |
| Tuin | Ja |
| Terras | Ja |
| Lift | Nee |
| Rioolaansluiting | Ja |
| Gasaansluiting | Ja |
| Wateraansluiting | Ja |
| Elektriciteitsaansluiting | Ja |
| TV aansluiting | Ja |
| Internetaansluiting | Ja |
| Telefoonaansluiting | Ja |



