Duplexappartement, gunstig gelegen te Berlaar - Heikant
€ 249.000
Een pand van Immo Vercammen
Jouw zoektocht
Overzicht
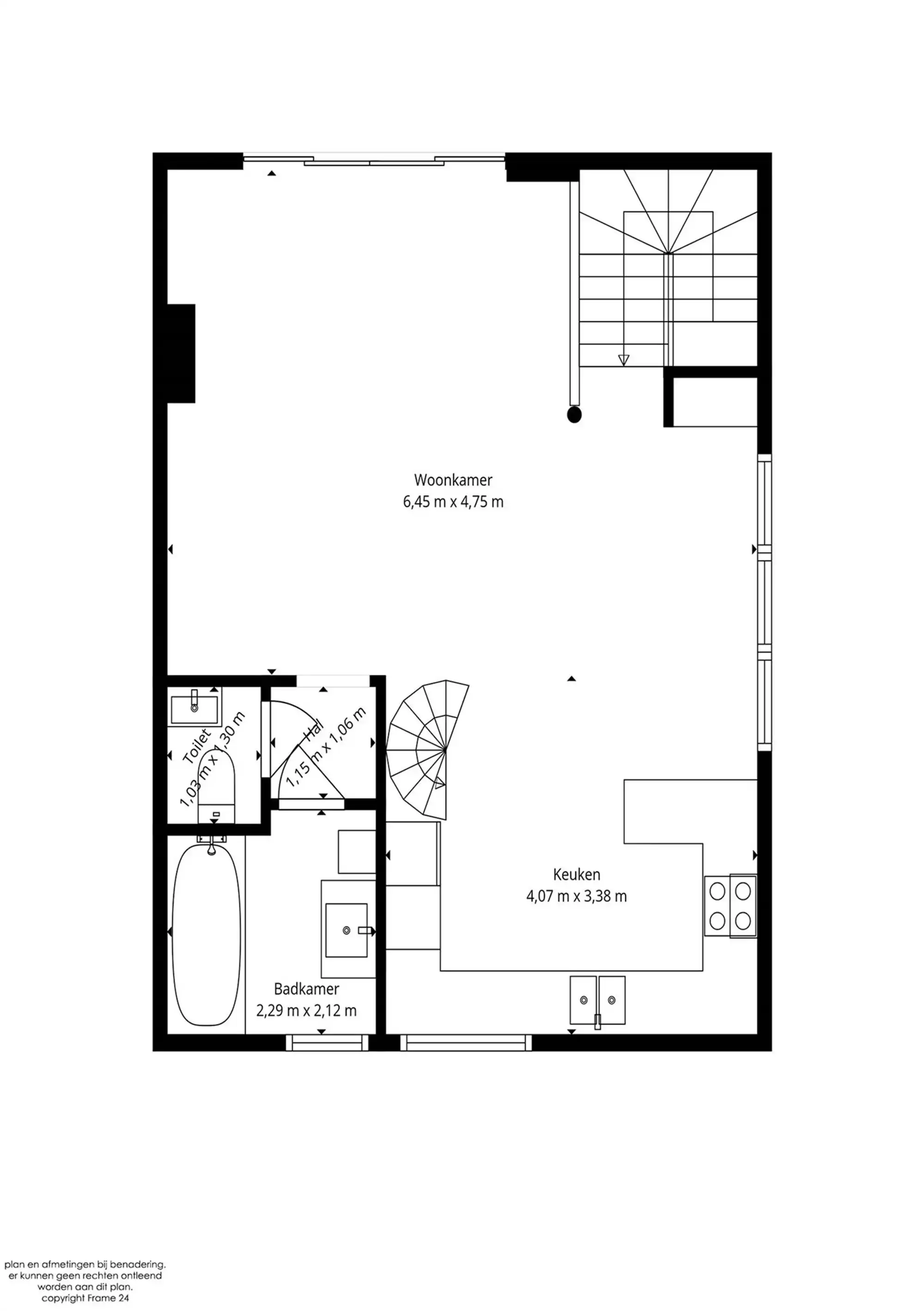
- 74 m² bewoonbaar
- 1 Slaapkamer(s)
- 1 Badkamer(s)
- 1 Toilet(ten)
- 1 Garage(s)
Beschrijving
Instapklaar duplex appartement met 1 slaapkamer, gunstig gelegen te Berlaar-Heikant, in een kleinschalig gebouw van 2008. Dit lichtrijke appartement verwelkomt u met een gezellige leefruimte die dankzij de grote raampartijen geniet van een overvloed aan natuurlijk licht. Aansluitend bevindt zich de open, volledig geïnstalleerde keuken, die praktisch en stijlvol is ingericht en naadloos overgaat in de leefruimte. Vervolgens vindt u een badkamer met ligbad, een apart toilet en een ruime slaapkamer terug. Extra troef is het ruime en zonnige terras met zonneluifel, waar het heerlijk vertoeven is. Bij het appartement hoort bovendien een garagebox met automatische poort, wat zorgt voor extra comfort en parkeergemak. Dit energiezuinige appartement is ideaal voor starters, alleenstaanden of als investering. Centraal gelegen met vlotte verbindingen en alle nodige voorzieningen in de nabijheid.
Energie
![]() |
- EPC Certificaat: 20260401-0003838681-RES-1
- Energieverbruik: 187 kWh/m²/jaar
- E-peil: E0
- Verwarming: Gas
- Beglazing: Standaard dubbel
Op de kaart

Financieel
| Prijs | |
|---|---|
| Kadastraal inkomen (niet geïndexeerd) | € 655 |
| Kadastraal inkomen (geïndexeerd) | € 0 |
Berekening kosten
Je aankoopkosten? Die heb je snel berekend via de knop hieronder.
Bijkomende info
Gebouw
| Bouwjaar | 2008 |
|---|---|
| Staat | Goed onderhouden |
| Bouwcertificaat | Nee |
| Bewoonbaar (m²) | 74 |
| Verdieping | 0 |
| Badkamers | 1 |
| Slaapkamers | 1 |
| Verdiepingen | 0 |
| Garages | 1 |
| Parkeerplaatsen | 0 |
| Doucheruimtes | 0 |
| Toiletten | 1 |
Faciliteiten
| Keuken uitrusting | Luxueus uitgerust |
|---|---|
| Beglazing | Standaard dubbel |
| Brandstof primaire verwarming | Gas |
| Elektrisch keuringsattest | Nee |
Perceel
| Overstromingsgevoelig | Geen |
|---|---|
| P-score | A |
| G-score | A |
| Voorkeurrecht | Nee |
| Bebouwde oppervlakte (m²) | 0 |
| Tuin oppervlakte (m²) | 0 |
| Oppervlakte terras (m²) | 0 |
Vergunning
| Vergunning | Vergunning beschikbaar |
|---|---|
| Verkavelingsvergunning | Geen beschikbaar |
Uitrusting
| Investeringspand | Nee |
|---|---|
| Geschikt voor praktijk | Nee |
| Parking | Nee |
| Garage | Ja |
| Thuiskantoor | Nee |
| Kelder | Nee |
| Zolder | Nee |
| Tuin | Nee |
| Terras | Ja |
| Lift | Nee |
| Rioolaansluiting | Ja |
| Gasaansluiting | Ja |
| Wateraansluiting | Ja |
| Elektriciteitsaansluiting | Ja |
| TV aansluiting | Ja |
| Internetaansluiting | Ja |
| Telefoonaansluiting | Ja |
Appartementsblok
| Lift | Nee |
|---|
