Instapklare en Ruime Gezinwoning met Tuin en Garage
€ 635.000
Een pand van Reant
Overzicht
- 130 m² bewoonbaar
- 4 Slaapkamer(s)
- 2 Badkamer(s)
- 3 Toilet(ten)
- 1 Tuin
- 1 Garage(s)
Beschrijving
Instapklare en Ruime Gezinwoning met Tuin, Garage en 4 Slaapkamers
Deze lichtrijke en instapklare gezinswoning biedt verrassend veel ruimte, verdeeld over drie volwaardige verdiepingen. De woning werd grotendeels vernieuwd tussen 2018 en 2025 en combineert comfort met een uitstekende ligging in een kindvriendelijke buurt.
Via de ruime inkomhal met gastentoilet betreedt u de gezellige living, met aparte zit- en eethoek. De grote raampartijen zorgen voor een aangename lichtinval en een directe verbinding met de achterliggende tuin.
Aansluitend bevindt zich de volledig ingerichte keuken. Vanuit de leefruimte heeft u toegang tot de diepe tuin met achteruitgang naar de dubbele garage.
De woning beschikt over een bruikbare kelderverdieping, met een multifunctionele was- en opbergruimte, aparte bergkelder en kruipkelder.
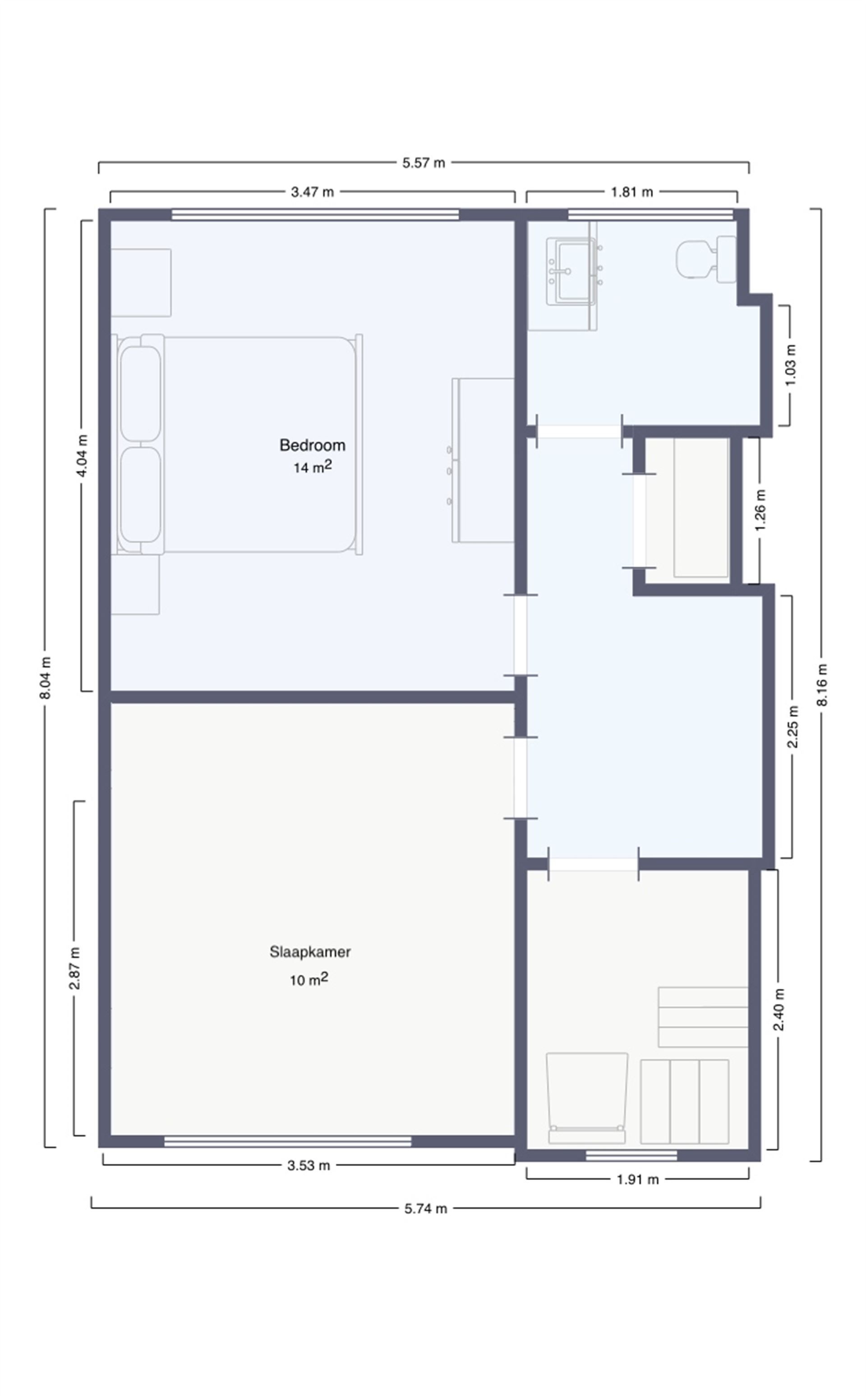
Op de eerste verdieping vindt u twee ruime slaapkamers, beide voorzien van airconditioning, een extra berging en een doucheruimte met toilet.
De tweede verdieping werd volledig vernieuwd in 2024-2025 en is een echte troef: hier vindt u een royale masterbedroom met dressing, een extra (slaap)kamer en een stijlvolle badkamer met ligbad, douche en toilet. Deze verdieping is uitgerust met hoogrendement drielaags glas; elders is dubbele beglazing voorzien.
Ligging
De woning is zeer centraal gelegen met een Mobiscore van 9,4! Scholen, winkels, sportinfrastructuur, het zwembad, de markt en zorgvoorzieningen bevinden zich op wandel- of fietsafstand. Bovendien stopt de bus vlak voor de deur en zijn belangrijke invalswegen vlot bereikbaar.
TROEVEN
+ Instapklare woning met recente renovaties (2018–2025)
+ 4 volwaardige slaapkamers + dressing + extra werk-/speelruimte
+ Grote tuin met directe toegang tot dubbele garage
+ Volledig vernieuwde verdieping met badkamer en drielaags glas
+ Centrale ligging met Mobiscore 9,4
+ Airco op slaapkamers eerste verdieping
Stedenbouwkundig uittreksel in aanvraag.
Energie
![]() |
- EPC Certificaat: 3690783
- Energieverbruik: 185 kWh/m²/jaar
- E-peil: E0
- Verwarming: Gas
- Beglazing: Standaard dubbel
Op de kaart

Downloads
Financieel
| Prijs | |
|---|---|
| Kadastraal inkomen (niet geïndexeerd) | € 808 |
| Kadastraal inkomen (geïndexeerd) | € 0 |
Berekening kosten
Je aankoopkosten? Die heb je snel berekent via de knop hieronder.
Bijkomende info
Gebouw
| Bouwjaar | 1959 |
|---|---|
| Bouwcertificaat | Nee |
| Bewoonbaar (m²) | 130 |
| Verdieping | 0 |
| Gevelbreedte | 6 |
| Badkamers | 2 |
| Slaapkamers | 4 |
| Verdiepingen | 2 |
| Garages | 1 |
| Parkeerplaatsen | 2 |
| Doucheruimtes | 0 |
| Toiletten | 3 |
Faciliteiten
| Keuken uitrusting | Luxueus uitgerust |
|---|---|
| Materiaal ramenomlijstingen | PVC |
| Beglazing | Standaard dubbel |
| Brandstof primaire verwarming | Gas |
| Elektrisch keuringsattest | Ja |
Perceel
| Overstromingsgevoelig | Geen |
|---|---|
| P-score | A |
| G-score | A |
| Voorkeurrecht | Ja |
| Bebouwde oppervlakte (m²) | 0 |
| Tuin oppervlakte (m²) | 30 |
| Oppervlakte terras (m²) | 0 |
| Oriëntatie tuin | Zuidwest |
Vergunning
| Vergunning | Geen beschikbaar |
|---|---|
| Verkavelingsvergunning | Geen beschikbaar |
Uitrusting
| Investeringspand | Nee |
|---|---|
| Geschikt voor praktijk | Nee |
| Parking | Ja |
| Garage | Ja |
| Thuiskantoor | Nee |
| Kelder | Ja |
| Zolder | Nee |
| Tuin | Ja |
| Terras | Nee |
| Lift | Nee |
| Rioolaansluiting | Ja |
| Gasaansluiting | Ja |
| Wateraansluiting | Ja |
| Elektriciteitsaansluiting | Ja |
| TV aansluiting | Ja |
| Internetaansluiting | Ja |
| Telefoonaansluiting | Nee |
