Gerenoveerd appartement met panoramisch uitzicht
€ 275.000
Een pand van Reant
Overzicht
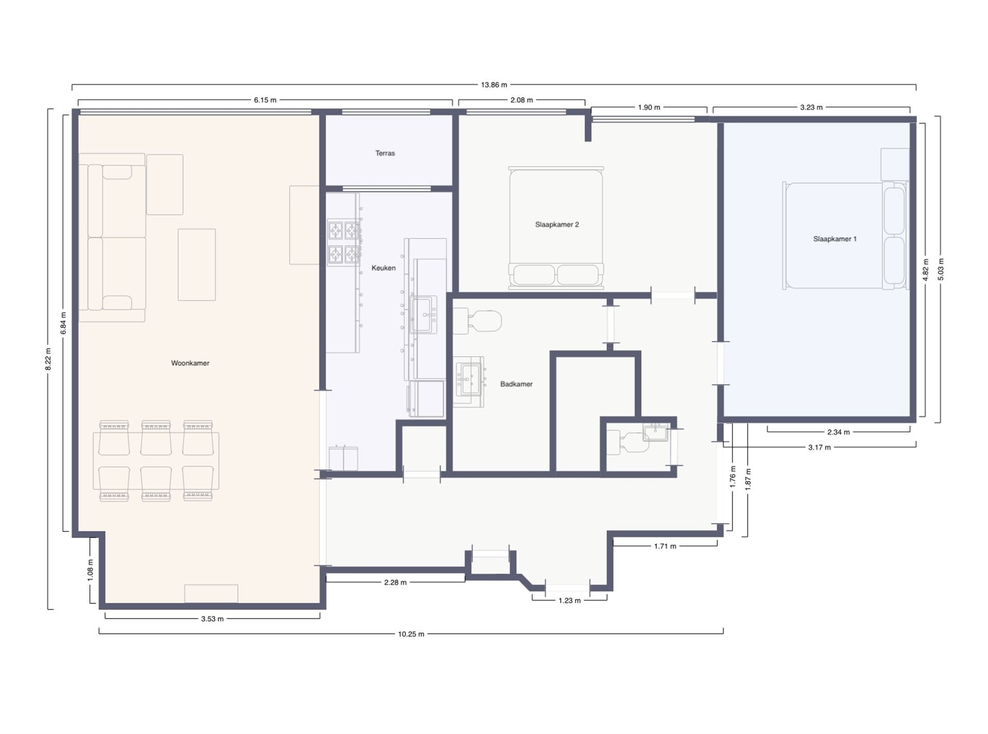
- 105 m² bewoonbaar
- 2 Slaapkamer(s)
- 1 Badkamer(s)
- 2 Toilet(ten)
Beschrijving
Instapklaar gerenoveerd appartement met panoramisch uitzicht – 9de verdieping
In een uitstekend onderhouden gebouw bevindt zich dit volledig gerenoveerde en instapklare appartement op de 9de verdieping. Dankzij de hoge ligging geniet je hier dagelijks van een adembenemend panoramisch uitzicht over de omgeving.
De ruime en lichtrijke woonkamer vormt het hart van het appartement. Aansluitend bevindt zich de praktische, moderne keuken met toegang tot een klein terras.
Verder beschikt het appartement over twee volwaardige slaapkamers, een apart toilet en een aparte berging met aansluitingen voor wasmachine en droogkast. De recent vernieuwde badkamer is uitgerust met een inloopdouche en een stijlvol badkamermeubel.
Daarnaast is er een privatieve kelder inbegrepen, wat extra opbergruimte biedt.
Optioneel kan een ondergrondse autostaanplaats worden aangekocht voor €15.000.
Bijzonderheden:
- Instapklaar en volledig gerenoveerd
- 9de verdieping met magnifiek uitzicht
- Twee ruime slaapkamers
- Aparte berging met wasmachine- en droogkas tvoorziening
- Terras aan de keuken
- Elektriciteit conform
- EPC-label B
- Veiligheidsdeur
- Mooie parketvloer
- Privatieve kelder inbegrepen
- Mogelijkheid tot aankoop van een autostaanplaats
In de geliefde Kruishofstraat, op een steenworp van het stadscentrum en vlak bij belangrijke invalswegen bevindt zich dit instapklare appartement.
Dankzij de centrale ligging geniet u van alle comfort: scholen, winkels, openbaar vervoer en parken liggen op wandelafstand.
Een ideaal appartement voor wie op zoek is naar comfort, licht en een prachtig zicht.
Contacteer ons snel voor een bezoek!
Energie
![]() |
- Energieverbruik: 154 kWh/m²/jaar
- E-peil: E0
- Verwarming: Gas
- Beglazing: Standaard dubbel
Op de kaart

Financieel
| Prijs | |
|---|---|
| Kadastraal inkomen (niet geïndexeerd) | € 857 |
| Kadastraal inkomen (geïndexeerd) | € 0 |
Berekening kosten
Je aankoopkosten? Die heb je snel berekent via de knop hieronder.
Bijkomende info
Gebouw
| Bouwjaar | 1961 |
|---|---|
| Staat | Goed onderhouden |
| Bouwcertificaat | Ja |
| Bewoonbaar (m²) | 105 |
| Verdieping | 9 |
| Badkamers | 1 |
| Slaapkamers | 2 |
| Verdiepingen | 16 |
| Garages | 0 |
| Parkeerplaatsen | 0 |
| Doucheruimtes | 0 |
| Toiletten | 2 |
Faciliteiten
| Keuken uitrusting | Standaard |
|---|---|
| Beglazing | Standaard dubbel |
| Brandstof primaire verwarming | Gas |
| Elektrisch keuringsattest | Ja |
Perceel
| Overstromingsgevoelig | Geen |
|---|---|
| P-score | A |
| G-score | A |
| Voorkeurrecht | Nee |
| Bebouwde oppervlakte (m²) | 0 |
| Tuin oppervlakte (m²) | 0 |
| Oppervlakte terras (m²) | 0 |
Vergunning
| Vergunning | Vergunning beschikbaar |
|---|---|
| Verkavelingsvergunning | Geen beschikbaar |
Uitrusting
| Investeringspand | Nee |
|---|---|
| Geschikt voor praktijk | Nee |
| Parking | Ja |
| Garage | Nee |
| Thuiskantoor | Nee |
| Kelder | Ja |
| Zolder | Nee |
| Tuin | Nee |
| Terras | Nee |
| Lift | Ja |
| Rioolaansluiting | Ja |
| Gasaansluiting | Ja |
| Wateraansluiting | Ja |
| Elektriciteitsaansluiting | Ja |
| TV aansluiting | Ja |
| Internetaansluiting | Ja |
| Telefoonaansluiting | Ja |
Appartementsblok
| Aantal verdiepingen | 16 |
|---|---|
| Lift | Ja |
