Op te frissen opbrengsteigendom met potentieel
€ 535.000
Jouw zoektocht
Overzicht
- 322 m² bewoonbaar
- 208 m² grond
- 2 Badkamer(s)
- 4 Toilet(ten)
- 1 Tuin
Beschrijving
Vergund opbrengsteigendom met potentieel tot optimalisatie in hartje Wilrijk
Te midden van de handelskern van het bruisende Wilrijk kan u dit leuk opbrengsteigendom met toffe voorgevel terugvinden.
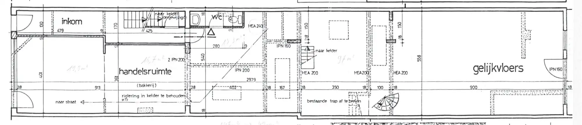
Momenteel staat de handelsgelijkvloers leeg en biedt dit een unieke kans voor eigen gebruik of herontwikkeling. Er is namelijk een mogelijkheid voor een deel te ontpitten en de handelsgelijkvloers op te splitsen tussen een voorste gedeelte, een zalige patio tuin te maken en achteraan in het achterhuis nog iets fijn te maken. Er is momenteel langs de achterzijde ook nog een tuin aanwezig.
Het betreft een vergund opbrengsteigendom dat begin 2000 werd gerenoveerd. Op de eerste verdieping bevindt zich een appartement met 2 slaapkamers en op de bovenste verdieping eentje met 1 slaapkamer.
Huidige huuropbrengst van de appartementen: 870 euro + 830 euro. Klassieke residentiële huurovereenkomsten.. EPC 1ste verdieping: 20260224-0003806104-RES-1 (D-score) EPC 2de verdieping: 20250115-0003506010-RES-1 (D-score)
Mits enkele renovatiewerken kan u dit gebouw herontwikkeling voor een stukverkoop of voor een uiterst interessant opbrengsteigendom voor de verhuur.
Aarzel niet mij te contacteren op 0476/40.86.76 voor een bezoek.
Energie
![]() |
- EPC Certificaat: 20241003-0003398189-KNR-1
- E-peil: E0
- Verwarming: Gas
- Beglazing: Standaard dubbel
Op de kaart

Financieel
| Prijs | |
|---|---|
| Kadastraal inkomen (niet geïndexeerd) | € 0 |
| Kadastraal inkomen (geïndexeerd) | € 0 |
Berekening kosten
Je aankoopkosten? Die heb je snel berekend via de knop hieronder.
Bijkomende info
Gebouw
| Bouwjaar | 1931 |
|---|---|
| Staat | Op te frissen |
| Bouwcertificaat | Nee |
| Bewoonbaar (m²) | 322 |
| Verdieping | 0 |
| Gevelbreedte | 6.5 |
| Badkamers | 2 |
| Slaapkamers | 0 |
| Verdiepingen | 3 |
| Garages | 0 |
| Parkeerplaatsen | 0 |
| Doucheruimtes | 0 |
| Toiletten | 4 |
Faciliteiten
| Materiaal ramenomlijstingen | PVC |
|---|---|
| Beglazing | Standaard dubbel |
| Brandstof primaire verwarming | Gas |
| Elektrisch keuringsattest | Nee |
Perceel
| Diepte (m) | 35 |
|---|---|
| Breedte (m) | 6 |
| Overstromingsgevoelig | Geen |
| P-score | A |
| G-score | A |
| Voorkeurrecht | Nee |
| Totale oppervlakte (m²) | 208 |
| Bebouwde oppervlakte (m²) | 188 |
| Tuin oppervlakte (m²) | 20 |
| Oppervlakte terras (m²) | 0 |
| Oriëntatie tuin | Noord |
Vergunning
| Vergunning | Vergunning beschikbaar |
|---|---|
| Verkavelingsvergunning | Aanvraag ingediend |
Uitrusting
| Investeringspand | Ja |
|---|---|
| Geschikt voor praktijk | Nee |
| Parking | Nee |
| Garage | Nee |
| Thuiskantoor | Ja |
| Kelder | Ja |
| Zolder | Nee |
| Tuin | Ja |
| Terras | Nee |
| Lift | Nee |
| Rioolaansluiting | Nee |
| Gasaansluiting | Nee |
| Wateraansluiting | Nee |
| Elektriciteitsaansluiting | Nee |
| TV aansluiting | Nee |
| Internetaansluiting | Nee |
| Telefoonaansluiting | Nee |
Appartementsblok
| Aantal verdiepingen | 3 |
|---|---|
| Lift | Nee |
