Jouw zoektocht
Jouw scoretabel voor dit pand
Aan het laden...
Jouw geplande bezichtigingen
Aan het laden...
Overzicht
- 238 m² bewoonbaar
- 217 m² grond
- 5 Slaapkamer(s)
- 2 Badkamer(s)
- 2 Toilet(ten)
- 1 Tuin
- 1 Garage(s)
Beschrijving
Op een centrale locatie in Hemiksem komt deze energiezuinige nieuwbouwwoning met een slimme indeling en veel lichtinval. De woning wordt volledig afgewerkt met kwalitatieve, lichte materialen, en wie tijdig beslist, kan nog mee bepalen hoe bepaalde onderdelen worden afgewerkt.
Indeling:
De gepubliceerde plannen zijn louter commerciële plannen om een eventuele indeling weer te geven. De officiële bouwplannen kunnen opgevraagd worden per mail.
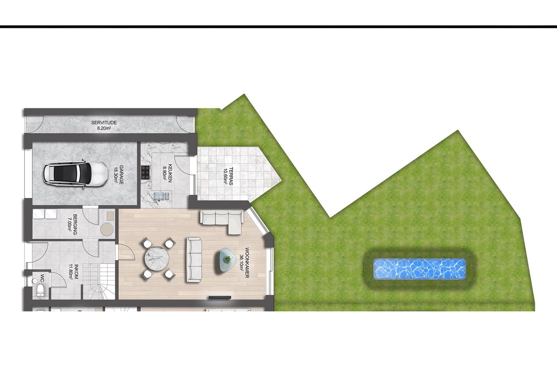
De inkomhal met een gastentoilet en leidt naar een gezellige leefruimte van 36,1m² die naadloos overgaat in een open keuken van 8,9m². Vanuit de keuken kijk je uit op de tuin van +-100m² met terras 11m² op tegels. Verder biedt het gelijkvloers een praktische berging van 7m² en een ruime inpandige garage van 18,3m².
Op de eerste verdieping bevinden zich drie volwaardige slaapkamers van 22,6m², 18,5m² en 17,8m², telkens met aangename lichtinval. De badkamer van 8,3 m² met ligbad, inloopdouche en dubbele lavabo. Verder is er nog een apart toilet op deze verdieping.
De zolderverdieping strekt zich uit over 61,9m² en biedt enorm veel potentieel. Deze eenvoudig worden opgedeeld in twee bijkomende slaapkamers en een badkamer zodat de woning dus 5 slaapkamers en 2 badkamers telt. Bovendien is er een afzonderlijke berging van 11,3 m².
Bijzonderheden:
Regenwaterput van 7.500 liter.
Tuin met terras en geïntegreerde wadi.
Doordachte en energie-efficiënte indeling.
Verwarming en warm water via warmtepomp.
8 zonnepanelen.
Ventilatiesysteem type D.
Strak maar warm gevelontwerp met hedendaagse architectuur.
Lees verder op dewildevastgoed.be
Indeling:
De gepubliceerde plannen zijn louter commerciële plannen om een eventuele indeling weer te geven. De officiële bouwplannen kunnen opgevraagd worden per mail.
De inkomhal met een gastentoilet en leidt naar een gezellige leefruimte van 36,1m² die naadloos overgaat in een open keuken van 8,9m². Vanuit de keuken kijk je uit op de tuin van +-100m² met terras 11m² op tegels. Verder biedt het gelijkvloers een praktische berging van 7m² en een ruime inpandige garage van 18,3m².
Op de eerste verdieping bevinden zich drie volwaardige slaapkamers van 22,6m², 18,5m² en 17,8m², telkens met aangename lichtinval. De badkamer van 8,3 m² met ligbad, inloopdouche en dubbele lavabo. Verder is er nog een apart toilet op deze verdieping.
De zolderverdieping strekt zich uit over 61,9m² en biedt enorm veel potentieel. Deze eenvoudig worden opgedeeld in twee bijkomende slaapkamers en een badkamer zodat de woning dus 5 slaapkamers en 2 badkamers telt. Bovendien is er een afzonderlijke berging van 11,3 m².
Bijzonderheden:
Regenwaterput van 7.500 liter.
Tuin met terras en geïntegreerde wadi.
Doordachte en energie-efficiënte indeling.
Verwarming en warm water via warmtepomp.
8 zonnepanelen.
Ventilatiesysteem type D.
Strak maar warm gevelontwerp met hedendaagse architectuur.
Lees verder op dewildevastgoed.be
Op een centrale locatie in Hemiksem komt deze energiezuinige nieuwbouwwoning met een slimme indeling en veel lichtinval. De woning wordt volledig afgewerkt met kwalitatieve, lichte materialen, en wie tijdig beslist, kan nog mee bepalen hoe bepaalde onderdelen worden afgewerkt.
Indeling:
De gepubliceerde plannen zijn louter commerciële plannen om een eventuele indeling weer te geven. De officiële bouwplannen kunnen opgevraagd worden per mail.
De inkomhal met een gastentoilet en leidt naar een gezellige leefruimte van 36,1m² die naadloos overgaat in een open keuken van 8,9m². Vanuit de keuken kijk je uit op de tuin van +-100m² met terras 11m² op tegels. Verder biedt het gelijkvloers een praktische berging van 7m² en een ruime inpandige garage van 18,3m².
Op de eerste verdieping bevinden zich drie volwaardige slaapkamers van 22,6m², 18,5m² en 17,8m², telkens met aangename lichtinval. De badkamer van 8,3 m² met ligbad, inloopdouche en dubbele lavabo. Verder is er nog een apart toilet op deze verdieping.
De zolderverdieping strekt zich uit over 61,9m² en biedt enorm veel potentieel. Deze eenvoudig worden opgedeeld in twee bijkomende slaapkamers en een badkamer zodat de woning dus 5 slaapkamers en 2 badkamers telt. Bovendien is er een afzonderlijke berging van 11,3 m².
Bijzonderheden:
Regenwaterput van 7.500 liter.
Tuin met terras en geïntegreerde wadi.
Doordachte en energie-efficiënte indeling.
Verwarming en warm water via warmtepomp.
8 zonnepanelen.
Ventilatiesysteem type D.
Strak maar warm gevelontwerp met hedendaagse architectuur.
Ligging:
De woning bevindt zich in het centrum van Hemiksem, een rustige en groene gemeente aan de zuidrand van Antwerpen. Op wandelafstand vind je een gevarieerd aanbod aan winkels, scholen en horeca. Er is een goede ontsluiting via openbaar vervoer en een snelle verbinding met de Antwerpse ring en autostrade.
Indeling:
De gepubliceerde plannen zijn louter commerciële plannen om een eventuele indeling weer te geven. De officiële bouwplannen kunnen opgevraagd worden per mail.
De inkomhal met een gastentoilet en leidt naar een gezellige leefruimte van 36,1m² die naadloos overgaat in een open keuken van 8,9m². Vanuit de keuken kijk je uit op de tuin van +-100m² met terras 11m² op tegels. Verder biedt het gelijkvloers een praktische berging van 7m² en een ruime inpandige garage van 18,3m².
Op de eerste verdieping bevinden zich drie volwaardige slaapkamers van 22,6m², 18,5m² en 17,8m², telkens met aangename lichtinval. De badkamer van 8,3 m² met ligbad, inloopdouche en dubbele lavabo. Verder is er nog een apart toilet op deze verdieping.
De zolderverdieping strekt zich uit over 61,9m² en biedt enorm veel potentieel. Deze eenvoudig worden opgedeeld in twee bijkomende slaapkamers en een badkamer zodat de woning dus 5 slaapkamers en 2 badkamers telt. Bovendien is er een afzonderlijke berging van 11,3 m².
Bijzonderheden:
Regenwaterput van 7.500 liter.
Tuin met terras en geïntegreerde wadi.
Doordachte en energie-efficiënte indeling.
Verwarming en warm water via warmtepomp.
8 zonnepanelen.
Ventilatiesysteem type D.
Strak maar warm gevelontwerp met hedendaagse architectuur.
Ligging:
De woning bevindt zich in het centrum van Hemiksem, een rustige en groene gemeente aan de zuidrand van Antwerpen. Op wandelafstand vind je een gevarieerd aanbod aan winkels, scholen en horeca. Er is een goede ontsluiting via openbaar vervoer en een snelle verbinding met de Antwerpse ring en autostrade.
Energie
![]() |
Op de kaart

Financieel
| Prijs |
|---|
Berekening kosten
Je aankoopkosten? Die heb je snel berekend via de knop hieronder.
Bijkomende info
Gebouw
| Bouwjaar | 2025 |
|---|---|
| Bewoonbaar (m²) | 238 |
| Gevels | 2 |
| Gevelbreedte | 10 |
| Badkamers | 2 |
| Slaapkamers | 5 |
| Verdiepingen | 2 |
| Garages | 1 |
| Parkeerplaatsen | 1 |
| Toiletten | 2 |
Faciliteiten
| Type vloer | Hout |
|---|---|
| Keuken uitrusting | Goed uitgerust |
| Elektrisch keuringsattest | Ja |
Perceel
| Overstromingsgevoelig | Geen |
|---|---|
| P-score | A |
| G-score | A |
| Voorkeurrecht | Nee |
| Totale oppervlakte (m²) | 217 |
| Bebouwde oppervlakte (m²) | 105 |
| Tuin oppervlakte (m²) | 100 |
| Oriëntatie voorgevel | Noordoost |
| Oriëntatie terras | Zuidwest |
Vergunning
| Vergunning | Vergunning beschikbaar |
|---|---|
| Verkavelingsvergunning | Vergunning beschikbaar |
| Bouwovertreding | Geen |
| Bouwovertreding dagvaardiging | Geen |
Uitrusting
| Geschikt voor rolstoelgebruikers | Nee |
|---|---|
| Parking | Nee |
| Garage | Ja |
| Zolder | Ja |
| Tuin | Ja |
| Terras | Ja |
| Lift | Nee |
| Wateraansluiting | Ja |
| Elektriciteitsaansluiting | Ja |
| TV aansluiting | Ja |
| Telefoonaansluiting | Ja |
| Zwembad | Nee |
| Zwemvijver | Nee |
| Videofoon | Ja |
| Regenwaterput | Ja |
Leer meer over vastgoed
23 March 2026
Op Spotto zoeken als een pro: 10 slimme tips
21 March 2026
Hoeveel kan ik lenen om een huis te kopen?
01 March 2026
Wanneer heb ik een bouwvergunning of omgevingsvergunning nodig?
17 February 2026
