Virtual tour
Recent gerenoveerd appartementsgebouw op toplocatie!
€ 735.000
Een pand van Coprimmo
Overzicht
- 176 m² bewoonbaar
- 3 Slaapkamer(s)
- 3 Badkamer(s)
- 3 Toilet(ten)
Beschrijving
Recent gerenoveerd appartementsgebouw met 3 units op toplocatie!
Dit volledig gerenoveerde appartementsgebouw (2024) bestaat uit 3 stijlvolle appartementen, ideaal als vastgoedbelegging of om zelf te verhuren. Het gebouw is rustig gelegen in de Eduard Arsenstraat, een centrale en aangename buurt in Mortsel, en combineert modern comfort met instapklare woonruimtes.
Overzicht appartementen:
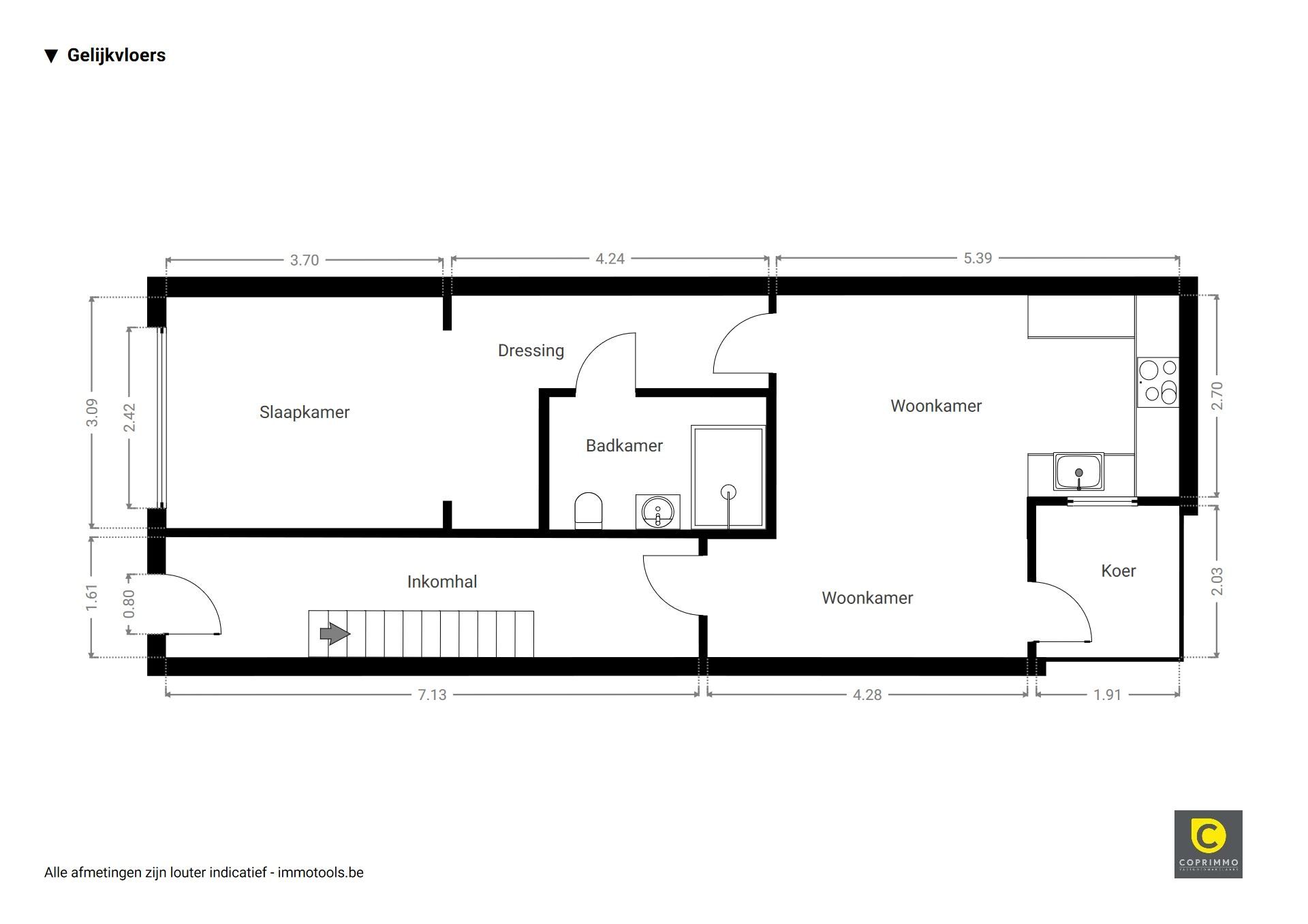
Gelijkvloers 55 m²
- EPC: B, EK conform
- Leefkeuken met toegang tot een private buitenruimte
- Mogelijke huurprijs: 850/maand (excl. algemene kosten)
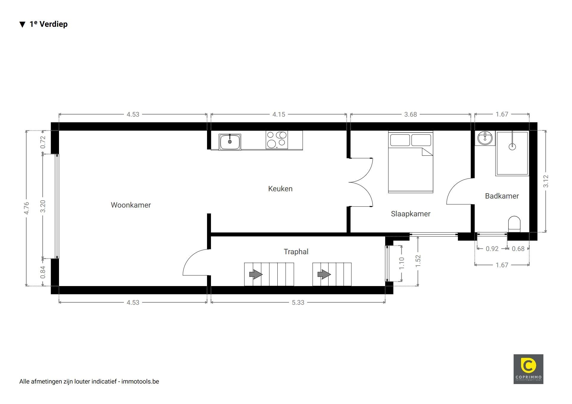
1e verdieping 58 m²
- EPC: A, EK conform
- Mogelijke huurprijs: 900/maand (excl. algemene kosten)
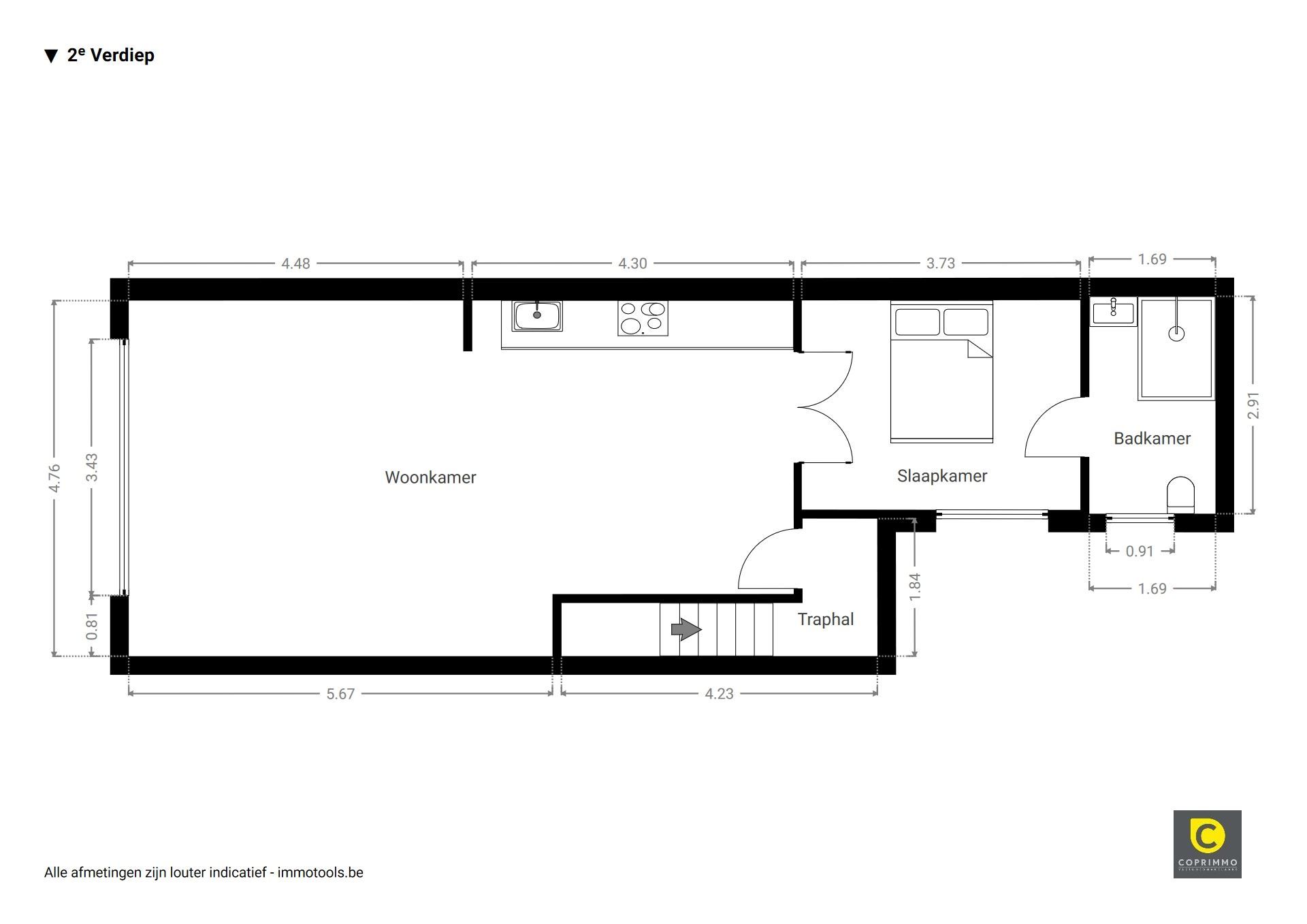
2e verdieping 63 m²
- EPC: B
- Mogelijke huurprijs: 950/maand (excl. algemene kosten)
Extra troeven
- Volledig gerenoveerd in 2024, zowel de appartementen als het gebouw zelf
- Instapklare en moderne woonruimtes met kwalitatieve afwerking
- Kleinschalig gebouw = lage gemeenschappelijke kosten
- Centrale ligging met rustige omgeving
- Ideaal voor investeerders: direct verhuurbaar met interessante huurinkomsten
Dit pand biedt een uitstekende kans voor investeerders die op zoek zijn naar een combinatie van kwaliteit, moderne renovatie en een centrale locatie in Mortsel.
Energie
![]() |
- Energieverbruik: 124 kWh/m²/jaar
- E-peil: E0
- Verwarming: Gas
- Beglazing: Standaard dubbel
Op de kaart

Financieel
| Prijs | |
|---|---|
| Kadastraal inkomen (niet geïndexeerd) | € 0 |
| Kadastraal inkomen (geïndexeerd) | € 0 |
Berekening kosten
Je aankoopkosten? Die heb je snel berekent via de knop hieronder.
Bijkomende info
Gebouw
| Staat | Goed onderhouden |
|---|---|
| Bouwcertificaat | Nee |
| Bewoonbaar (m²) | 176 |
| Verdieping | 2 |
| Badkamers | 3 |
| Slaapkamers | 3 |
| Verdiepingen | 2 |
| Garages | 0 |
| Parkeerplaatsen | 0 |
| Doucheruimtes | 0 |
| Toiletten | 3 |
Faciliteiten
| Keuken uitrusting | Luxueus uitgerust |
|---|---|
| Materiaal ramenomlijstingen | PVC |
| Beglazing | Standaard dubbel |
| Brandstof primaire verwarming | Gas |
| Elektrisch keuringsattest | Ja |
Perceel
| Overstromingsgevoelig | Geen |
|---|---|
| P-score | A |
| G-score | A |
| Voorkeurrecht | Nee |
| Bebouwde oppervlakte (m²) | 0 |
| Tuin oppervlakte (m²) | 0 |
| Oppervlakte terras (m²) | 0 |
Vergunning
| Vergunning | Vergunning beschikbaar |
|---|
Uitrusting
| Investeringspand | Nee |
|---|---|
| Geschikt voor praktijk | Nee |
| Parking | Nee |
| Garage | Nee |
| Thuiskantoor | Nee |
| Kelder | Ja |
| Zolder | Nee |
| Tuin | Nee |
| Terras | Nee |
| Lift | Nee |
| Rioolaansluiting | Nee |
| Gasaansluiting | Nee |
| Wateraansluiting | Nee |
| Elektriciteitsaansluiting | Nee |
| TV aansluiting | Nee |
| Internetaansluiting | Nee |
| Telefoonaansluiting | Nee |
Appartementsblok
| Aantal verdiepingen | 2 |
|---|---|
| Lift | Nee |
Een pand van
Coprimmo
Coprimmo - uw specialist in de zuidrand en Antwerpen centrum
Coprimmo werd opgericht in 1996. Al heel snel waren er verschillende medewerkers actief om te kunnen voldoen aan een almaar groeiende vraag. Dat had toen en heeft nu nog altijd te maken met de uitstekende reputatie die Coprimmo snel heeft opgebouwd. Een reputatie die ongetwijfeld te danken is aan de uitstekende relatie met onze klanten en met de prima dienstverlening, die voor ons nog altijd een topprioriteit is. COPRIMMO heeft er vanaf het prille begin alles aan gedaan om de beste service te kunnen geven.
Door onze vakkennis, motivatie, passie voor het vastgoed, een onvoorwaardelijke inzet en persoonlijke aandacht, zorgen wij voor een volledige service en brengen zo koper en verkoper op een vlotte manier samen!
Wenst u graag een gratis schatting van uw eigendom of wenst u eens kennis te maken met onze makelaar in uw regio, aarzel dan niet om contact met ons op te nemen op het nummer 03/449.49.77 of info@coprimmo.be
EDUARD ARSENSTRAAT 154 MORTSEL
Leer meer over vastgoed
Nieuw
22 October 2025
Hoeveel kan ik lenen om een huis te kopen?
11 June 2025
Huis kopen met bouwovertreding? Dit moet je weten
11 May 2025
Renoveren? Vraag je Mijn VerbouwPremie aan
22 April 2025
