Charmant éénslaapkamer appartement met tuin
€ 269.000
Een pand van Immo Vasta
Overzicht
- 73 m² bewoonbaar
- 229 m² grond
- 1 Slaapkamer(s)
- 1 Badkamer(s)
- 1 Toilet(ten)
- 1 Tuin
Beschrijving
Op zoek naar een gezellig appartement met karakter én tuin in Mortsel? Dan zal dit charmant, recent gerenoveerd appartement met één slaapkamer je meteen bekoren. Dankzij de eigen inkom, de hoge plafonds en het loftgevoel woon je hier met veel privacy en licht. Bovendien ligt het in een rustige, autoluwe zijstraat van de Mechelsesteenweg, vlak bij winkels, Park Oude God, en openbaar vervoer om de hoek.
Strak & lichtrijk
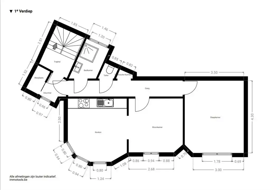
Via de privé-inkom op het gelijkvloers (ca. 11 m²) met witte vloertegels en een charmante, geschilderde trap, kom je boven in de ruime hal met hoge plafonds en originele planchetten vloer. De woonkamer met planchetten vloer, hoge ramen en Frans balkon straalt licht en warmte uit. De open keuken aansluitend met licht houten kasten, wit werkblad, inductieplaat, ingebouwde oven en vaatwasser – ideaal om gezellig te koken en te tafelen.
De slaapkamer ligt aan de rustige straatzijde, eveneens met Frans balkon, planchetten vloer en hoge plafonds. De badkamer is volledig betegeld in grijs, voorzien van douchecabine, wit badkamermeubel en raam voor natuurlijke verluchting. Daarnaast is er een apart toilet en een handige berging/technische ruimte met aansluiting voor wasmachine en droogkast.
Buitenruimte & extra’s
Bij het appartement vind je een tuin (ca. 16 m²) – een zeldzame troef voor een appartement! Perfect om te genieten van een kop koffie of om vrienden uit te nodigen tijdens warme dagen. In de kelder (ca. 8 m²) heb je extra bergruimte.
Rustig wonen, alles vlakbij
Je woont hier op een toplocatie in Mortsel: in een rustige straat met enkel plaatselijk verkeer, maar toch vlak bij alle voorzieningen. Supermarkten, scholen en leuke horecazaken liggen op wandelafstand. Ook Park Oude God ligt om de hoek voor een wandeling of sportmoment. Met de bus op de Mechelsesteenweg ben je in geen tijd in Antwerpen.
Energie
![]() |
- EPC Certificaat: 20210329-0002394105-RES-1
- Energieverbruik: 319 kWh/m²/jaar
- E-peil: E0
- Verwarming: Gas
- Beglazing: Standaard dubbel
Extra budget nodig voor je renovatie?

Op de kaart

Financieel
| Prijs | |
|---|---|
| Kadastraal inkomen (niet geïndexeerd) | € 0 |
| Kadastraal inkomen (geïndexeerd) | € 0 |
Berekening kosten
Je aankoopkosten? Die heb je snel berekent via de knop hieronder.
Bijkomende info
Gebouw
| Bouwjaar | 1930 |
|---|---|
| Staat | Goed onderhouden |
| Bouwcertificaat | Nee |
| Bewoonbaar (m²) | 73 |
| Verdieping | 1 |
| Badkamers | 1 |
| Slaapkamers | 1 |
| Verdiepingen | 4 |
| Garages | 0 |
| Parkeerplaatsen | 0 |
| Doucheruimtes | 0 |
| Toiletten | 1 |
Faciliteiten
| Keuken uitrusting | Standaard |
|---|---|
| Materiaal ramenomlijstingen | PVC |
| Beglazing | Standaard dubbel |
| Brandstof primaire verwarming | Gas |
| Elektrisch keuringsattest | Ja |
Perceel
| Overstromingsgevoelig | Geen |
|---|---|
| P-score | A |
| G-score | A |
| Voorkeurrecht | Nee |
| Totale oppervlakte (m²) | 229 |
| Bebouwde oppervlakte (m²) | 0 |
| Tuin oppervlakte (m²) | 16 |
| Oppervlakte terras (m²) | 0 |
| Oriëntatie tuin | Noordwest |
Uitrusting
| Investeringspand | Nee |
|---|---|
| Geschikt voor praktijk | Nee |
| Parking | Nee |
| Garage | Nee |
| Thuiskantoor | Nee |
| Kelder | Ja |
| Zolder | Nee |
| Tuin | Ja |
| Terras | Nee |
| Lift | Nee |
| Rioolaansluiting | Nee |
| Gasaansluiting | Ja |
| Wateraansluiting | Ja |
| Elektriciteitsaansluiting | Ja |
| TV aansluiting | Nee |
| Internetaansluiting | Nee |
| Telefoonaansluiting | Nee |
Appartementsblok
| Aantal verdiepingen | 4 |
|---|---|
| Lift | Nee |


