Appartement in Rubenspark in groene omgeving
€ 180.000
Een pand van Altro Vastgoed Dendermonde
Overzicht
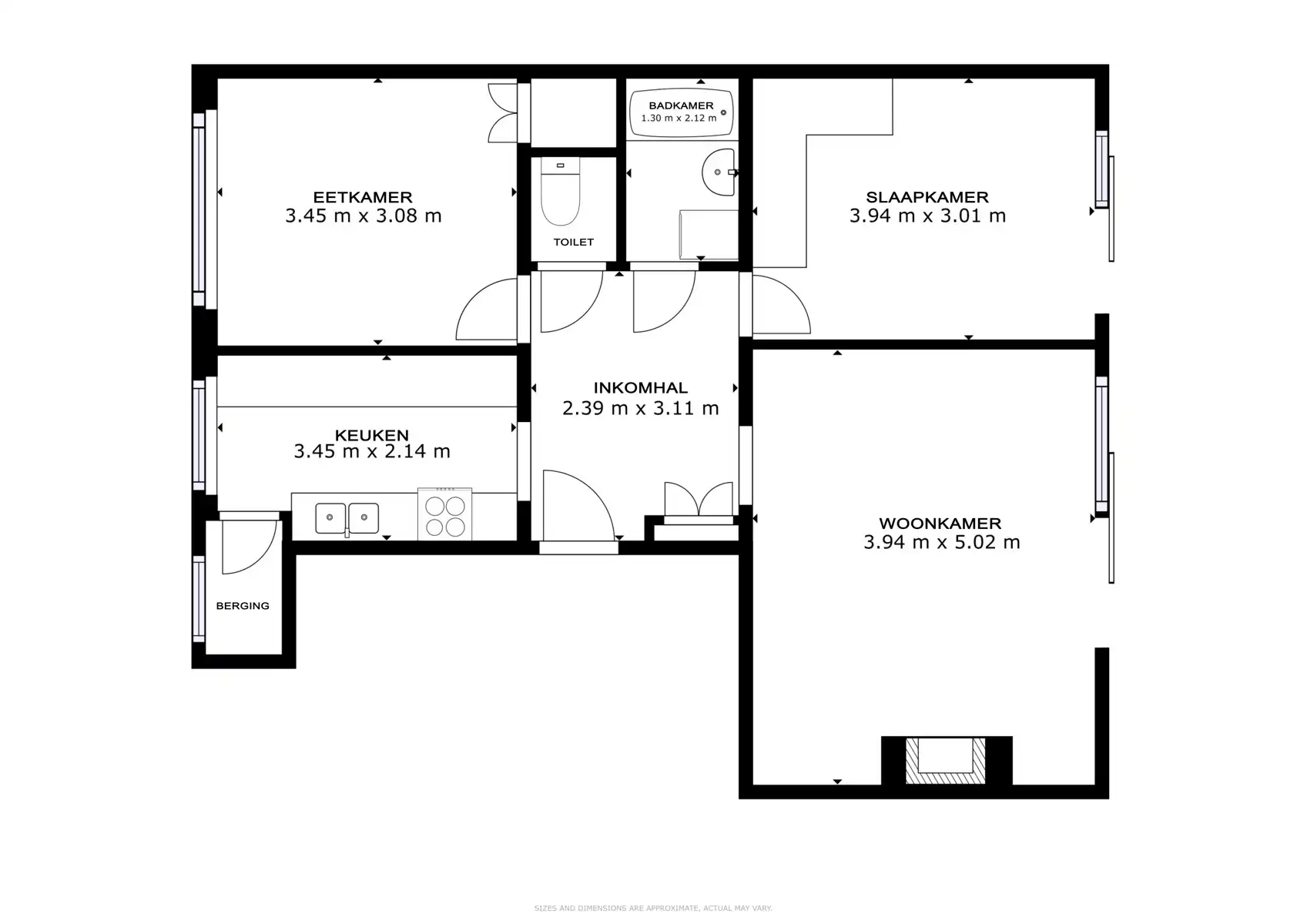
- 74 m² bewoonbaar
- 5617 m² grond
- 2 Slaapkamer(s)
- 1 Badkamer(s)
- 1 Toilet(ten)
- 1 Tuin
Beschrijving
Dit verzorgde appartement beschikt over twee slaapkamers, waarvan één momenteel ingericht is als eetkamer, wat zorgt voor een extra ruime en lichtrijke leefervaring. Het zuidelijk georiënteerde terras vormt een heerlijke plek om in alle rust van de zon en het omliggende groen te genieten.
De woning is instapklaar en praktisch ingedeeld, met een handige berging aan de keuken én een bijkomende privatieve kelderberging. De badkamer kan naar wens vergroot worden, maar is eveneens perfect bruikbaar in de huidige opstelling.
Dankzij de rustige ligging, de groene omgeving en de vlotte bereikbaarheid is dit appartement een uitstekende keuze als investering, ideale starterswoning of comfortabele woonst voor later.
Een unieke kans voor wie zorgeloos wil wonen in het groen, met alle voorzieningen binnen handbereik.
Instapklaar appartement in een uitzonderlijk rustige en groene omgeving, vlak bij het Fort van Edegem en gelegen in het aangename Rubenspark.
Dit verzorgde appartement beschikt over twee slaapkamers, waarvan één momenteel ingericht is als eetkamer, wat zorgt voor een extra ruime en lichtrijke leefervaring. Het zuidelijk georiënteerde terras vormt een heerlijke plek om in alle rust van de zon en het omliggende groen te genieten.
De woning is instapklaar en praktisch ingedeeld, met een handige berging aan de keuken én een bijkomende privatieve kelderberging. De badkamer kan naar wens vergroot worden, maar is eveneens perfect bruikbaar in de huidige opstelling.
Dankzij de rustige ligging, de groene omgeving en de vlotte bereikbaarheid is dit appartement een uitstekende keuze als investering, ideale starterswoning of comfortabele woonst voor later.
Een unieke kans voor wie zorgeloos wil wonen in het groen, met alle voorzieningen binnen handbereik.
Energie
![]() |
- EPC Certificaat: 20260215-0003803237-RES-1
- Energieverbruik: 154 kWh/m²/jaar
Op de kaart

Financieel
| Prijs | |
|---|---|
| Kadastraal inkomen (niet geïndexeerd) | € 815 |
Berekening kosten
Je aankoopkosten? Die heb je snel berekend via de knop hieronder.
Bijkomende info
Gebouw
| Bouwjaar | 1968 |
|---|---|
| Staat | Goed onderhouden |
| Bewoonbaar (m²) | 74 |
| Verdieping | 2 |
| Gevels | 2 |
| Badkamers | 1 |
| Slaapkamers | 2 |
| Verdiepingen | 2 |
| Parkeerplaatsen | 0 |
| Toiletten | 1 |
Faciliteiten
| Type vloer | |
|---|---|
| Keuken uitrusting | Goed uitgerust |
| Elektrisch keuringsattest | Nee |
Perceel
| Overstromingsgevoelig | Geen |
|---|---|
| P-score | A |
| G-score | A |
| Voorkeurrecht | Nee |
| Totale oppervlakte (m²) | 5617 |
| Tuin oppervlakte (m²) | 7000 |
| Oriëntatie terras | Zuid |
Vergunning
| Vergunning | Vergunning beschikbaar |
|---|---|
| Verkavelingsvergunning | Vergunning beschikbaar |
| Bouwovertreding | Geen |
| Bouwovertreding dagvaardiging | Geen |
Uitrusting
| Geschikt voor rolstoelgebruikers | Ja |
|---|---|
| Parking | Nee |
| Garage | Nee |
| Kelder | Ja |
| Tuin | Ja |
| Terras | Ja |
| Lift | Ja |
| Wateraansluiting | Ja |
| Elektriciteitsaansluiting | Ja |
| Telefoonaansluiting | Ja |
| Zwembad | Nee |
| Zwemvijver | Nee |
