In optie
Gelijkvloers appartement met 2-slaapkamers en eigen tuintje
Prijs op aanvraag
Een pand van Top Projects Immo BV
Overzicht
- 75 m² bewoonbaar
- 87 m² grond
- 2 Slaapkamer(s)
- 1 Badkamer(s)
Overstromingsgevaar gebouw
Overstromingsgevaar perceel
Beschrijving
Gelijkvloers appartement met 2-slaapkamers en eigen tuintje
(Lees volledige tekst op onze website.)
Op een topligging in de mooie woonwijk Groen Zuid vindt u dit recente gelijkvloers appartement. Groen Zuid betekent wonen in een rustige en groene omgeving, op fietsafstand van Antwerpen én uitstekend bereikbaar via openbaar vervoer. Het appartement werd nooit verhuurd en is bewoond door de eerste eigenaar.
Het appartement geniet alle voordelen van een modern en energiezuinig appartement. Er is ook een ruime privéterras, dat door een draad en beukenhaag gescheiden is van de gemeenschappelijke binnentuin, exclusief toegankelijk voor bewoners. Op het woonerf zijn een aantal laadpunten aanwezig voor elektrische wagens.
Het appartement is een ideale kans voor wie op zoek is naar een instapklaar, comfortabel en energiezuinig appartement met een leuk terras in een toffe groene woonwijk.
Extra: Ondergrondse parkeerplaats kan mee worden aangekocht. Prijs op aanvraag.
Indeling
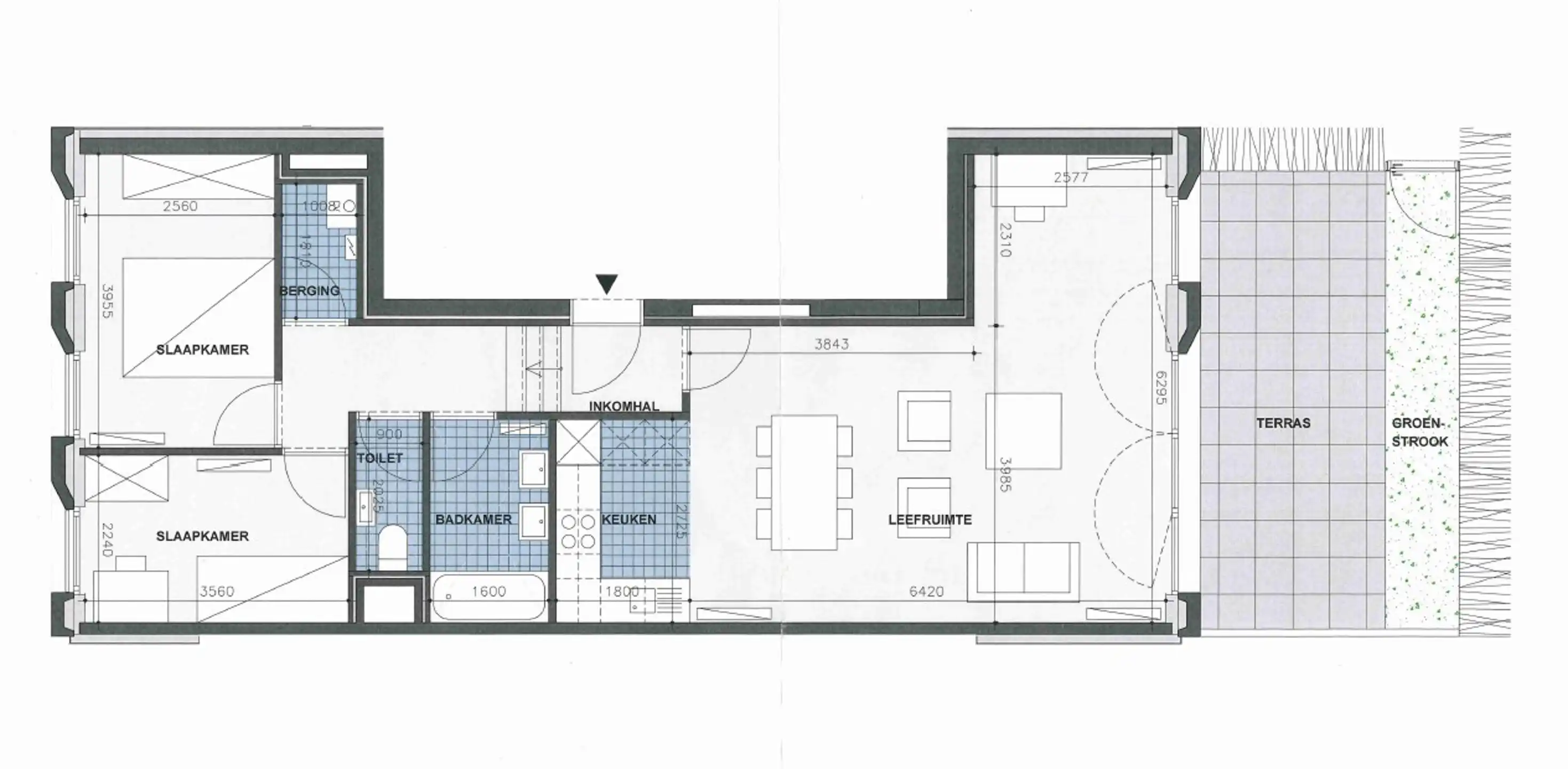
Via de straatzijde of via de gemene tuin bereikt u dit mooie appartement. Het appartement is goed verzorgd en oogt erg lichtrijk. Je betreedt het appartement via de inkomhal. Links kom je in de L-vormige woonkamer met open keuken. Vanuit deze ruimte heb je zicht op terras en de groene tuin.
In de gang bevindt zich een gastentoilet, met daarnaast een moderne badkamer. Er is ook een technische berging met eveneens plaats voor wasmachine en droogkast. Op het einde van de gang liggen de twee slaapkamers met veel lichtinval.
Energie en Comfort
Dit appartement voldoet met een EPC van 132 kwh/m² aan de hedendaagse energiezuinige normen. Er is een ventilatiesysteem type D. Er werd in 2023 een airco voorzien in de woonkamer en in één slaapkamer.
In de tuinzone van het complex is ook een afgesloten fietsenstalling. De gemeenschappelijke tuin grenst aan open groenzone waar een kinderdagverblijf en de speeltuin Groen Zuid aanwezig zijn.
(Lees volledige tekst op onze website.)
Op een topligging in de mooie woonwijk Groen Zuid vindt u dit recente gelijkvloers appartement. Groen Zuid betekent wonen in een rustige en groene omgeving, op fietsafstand van Antwerpen én uitstekend bereikbaar via openbaar vervoer. Het appartement werd nooit verhuurd en is bewoond door de eerste eigenaar.
Het appartement geniet alle voordelen van een modern en energiezuinig appartement. Er is ook een ruime privéterras, dat door een draad en beukenhaag gescheiden is van de gemeenschappelijke binnentuin, exclusief toegankelijk voor bewoners. Op het woonerf zijn een aantal laadpunten aanwezig voor elektrische wagens.
Het appartement is een ideale kans voor wie op zoek is naar een instapklaar, comfortabel en energiezuinig appartement met een leuk terras in een toffe groene woonwijk.
Extra: Ondergrondse parkeerplaats kan mee worden aangekocht. Prijs op aanvraag.
Indeling
Via de straatzijde of via de gemene tuin bereikt u dit mooie appartement. Het appartement is goed verzorgd en oogt erg lichtrijk. Je betreedt het appartement via de inkomhal. Links kom je in de L-vormige woonkamer met open keuken. Vanuit deze ruimte heb je zicht op terras en de groene tuin.
In de gang bevindt zich een gastentoilet, met daarnaast een moderne badkamer. Er is ook een technische berging met eveneens plaats voor wasmachine en droogkast. Op het einde van de gang liggen de twee slaapkamers met veel lichtinval.
Energie en Comfort
Dit appartement voldoet met een EPC van 132 kwh/m² aan de hedendaagse energiezuinige normen. Er is een ventilatiesysteem type D. Er werd in 2023 een airco voorzien in de woonkamer en in één slaapkamer.
In de tuinzone van het complex is ook een afgesloten fietsenstalling. De gemeenschappelijke tuin grenst aan open groenzone waar een kinderdagverblijf en de speeltuin Groen Zuid aanwezig zijn.
Energie
![]() |
- EPC Certificaat: 11002-G-2013_57903/EP16735/B001/D09/SD001
- Energieverbruik: 132 kWh/m²/jaar
Op de kaart

Downloads
- EPC-attest.pdf (pdf)
- Grondplan appartement 01.pdf (pdf)
- Elektriciteitskeuring.pdf (pdf)
Financieel
Berekening kosten
Je aankoopkosten? Die heb je snel berekend via de knop hieronder.
Bijkomende info
Gebouw
| Bouwjaar | 2017 |
|---|---|
| Staat | Zo goed als nieuw |
| Bewoonbaar (m²) | 75 |
| Verdieping | 0 |
| Gevels | 3 |
| Badkamers | 1 |
| Slaapkamers | 2 |
| Parkeerplaatsen | 0 |
Faciliteiten
| Type vloer | |
|---|---|
| Keuken uitrusting | Goed uitgerust |
| Elektrisch keuringsattest | Ja |
Perceel
| Overstromingsgevoelig | Geen |
|---|---|
| P-score | D |
| G-score | D |
| Voorkeurrecht | Nee |
| Totale oppervlakte (m²) | 87 |
| Bebouwde oppervlakte (m²) | 87 |
| Tuin oppervlakte (m²) | 0 |
| Oriëntatie voorgevel | ZuidOost |
| Oriëntatie terras | Noordwest |
Vergunning
| Vergunning | Vergunning beschikbaar |
|---|---|
| Verkavelingsvergunning | Geen beschikbaar |
| Bouwovertreding | Geen |
| Bouwovertreding dagvaardiging | Geen |
Uitrusting
| Parking | Nee |
|---|---|
| Garage | Nee |
| Tuin | Nee |
| Terras | Ja |
| Lift | Ja |
| Gasaansluiting | Ja |
| Wateraansluiting | Ja |
| Elektriciteitsaansluiting | Ja |
| Telefoonaansluiting | Ja |
| Zwembad | Nee |
| Zwemvijver | Nee |
| Videofoon | Ja |
Een pand van
Top Projects Immo BV
Uw vastgoed kantoor in Nijlen en omstreken.
Welkom bij Top Projects uit Nijlen, dé partner die u helpt bij het verkopen van uw woning of het vinden van uw droomhuis. Met meer dan 30 jaar ervaring en uitgebreide kennis van de vastgoedmarkt, kunnen wij u de beste service en resultaten garanderen. Of u nu uw eigendom wilt verkopen of op zoek bent, ons team van professionele makelaars staat klaar om u te begeleiden en te adviseren.
Wij streven naar een langdurige TOP relatie met onze klanten. We geloven in het opbouwen van vertrouwen en het leveren van TOP kwaliteit door middel van transparante TOP communicatie gedurende onze samenwerking en ook nadien.
2593
Leer meer over vastgoed
01 March 2026
Wanneer heb ik een bouwvergunning of omgevingsvergunning nodig?
17 February 2026
Hoe breng ik een bod uit op een woning?
24 November 2025
Uitgezocht voor jouw gemeente: Hoeveel stijgt de waarde van je woning door een renovatie?
22 October 2025
