Bel-étage woning met oprit en ruime tuin
€ 320.000
Een pand van Immo Vasta
Jouw zoektocht
Overzicht
- 151 m² bewoonbaar
- 267 m² grond
- 3 Slaapkamer(s)
- 1 Badkamer(s)
- 1 Toilet(ten)
- 1 Tuin
- 1 Garage(s)
Beschrijving
Op zoek naar een ruime woning met enorm veel potentieel, een grote tuin én een praktische indeling? Dan zit je hier goed. Deze op te frissen bel-etage met gerenoveerde badkamer in een rustige straat in Hoboken combineert licht, ruimte en comfort met een uitstekende bereikbaarheid en alle voorzieningen vlakbij.
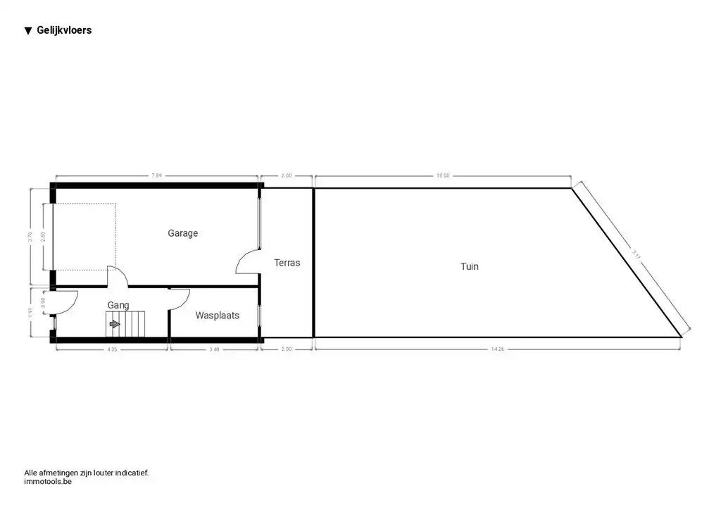
Binnenkomen met ruimte en mogelijkheden
Deze verzorgde woning verwelkomt je via de inkomhal, waar je links toegang hebt tot de bijzonder ruime garage. Deze is vlot bereikbaar via de oprit en de sectionale poort. Rechtdoor bevindt zich de praktische berging/wasplaats, netjes uit het zicht. Deze ruimte is uitgerust met aansluitingen voor een was- en droogmachine en geeft rechtstreeks uit op de tuin. Achteraan geniet je van een diepe tuin met eerst een terras en vervolgens een groot groengedeelte – ideaal voor gezinnen, tuinliefhebbers of wie gewoon graag buiten vertoeft.
Licht en leefcomfort centraal
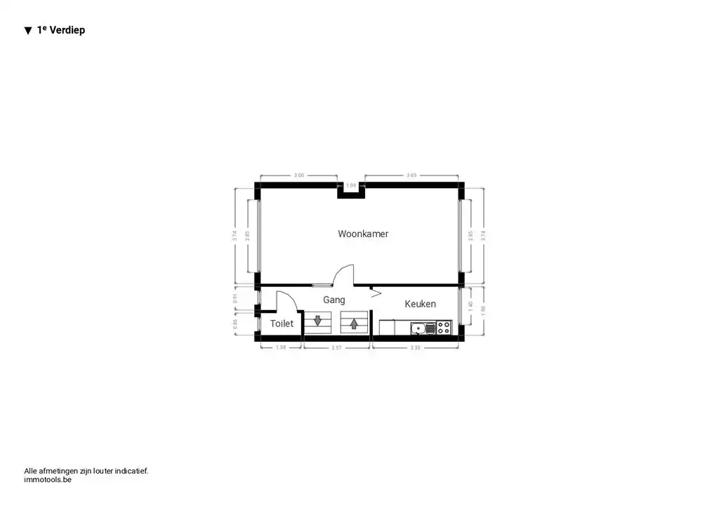
Op de eerste verdieping kom je op de overloop met apart toilet en toegang tot de leefruimte. De woonkamer is opvallend lichtrijk dankzij de grote ramen voor- en achteraan en biedt meer dan voldoende plaats voor een salon en eetruimte.Aansluitend vind je de keuken, praktisch ingericht en voorzien van alle basiscomfort. Dankzij het raam geniet je hier van natuurlijk licht en zicht op de tuin.
3 volwaardige slaapkamers & vernieuwde badkamer
Op de tweede verdieping bevinden zich drie volwaardige slaapkamers, allemaal met veel lichtinval dankzij de grote ramen. De kamers zijn logisch ingedeeld volgens het plan, met twee aan de achterzijde en één aan de voorzijde.
De badkamer is helemaal gerenoveerd en is uitgerust met een inloopdouche en een modern lavabomeubel – een mooie plus in deze woning.
Rustig wonen met alles dichtbij
Gelegen in de Den Haaglaan woon je in een rustige, residentiële straat in Hoboken, op wandelafstand van het groene Sorghvliedtpark. Ideaal voor ontspanning, sport of een wandeling. In de buurt vind je winkels, scholen en het commerciële hart rond de Kioskplaats.
Ook qua mobiliteit zit je hier goed: tram en bus zijn vlakbij en via de A12 en andere invalswegen ben je snel in Antwerpen of richting Brussel.
Energie
![]() |
- EPC Certificaat: 20260311-003820754-RES-1
- Energieverbruik: 170 kWh/m²/jaar
- E-peil: E0
- Verwarming: Gas
- Beglazing: Standaard dubbel
Op de kaart

Financieel
| Prijs | |
|---|---|
| Kadastraal inkomen (niet geïndexeerd) | € 830 |
| Kadastraal inkomen (geïndexeerd) | € 0 |
Berekening kosten
Je aankoopkosten? Die heb je snel berekend via de knop hieronder.
Bijkomende info
Gebouw
| Bouwjaar | 1973 |
|---|---|
| Staat | Op te frissen |
| Bouwcertificaat | Nee |
| Bewoonbaar (m²) | 151 |
| Verdieping | 0 |
| Badkamers | 1 |
| Slaapkamers | 3 |
| Verdiepingen | 2 |
| Garages | 1 |
| Parkeerplaatsen | 0 |
| Doucheruimtes | 0 |
| Toiletten | 1 |
Faciliteiten
| Keuken uitrusting | Standaard |
|---|---|
| Materiaal ramenomlijstingen | PVC |
| Beglazing | Standaard dubbel |
| Brandstof primaire verwarming | Gas |
| Elektrisch keuringsattest | Nee |
Perceel
| Overstromingsgevoelig | Geen |
|---|---|
| P-score | A |
| G-score | A |
| Voorkeurrecht | Nee |
| Totale oppervlakte (m²) | 267 |
| Bebouwde oppervlakte (m²) | 0 |
| Tuin oppervlakte (m²) | 200 |
| Oppervlakte terras (m²) | 0 |
Vergunning
| Vergunning | Vergunning beschikbaar |
|---|---|
| Verkavelingsvergunning | Aanvraag ingediend |
Uitrusting
| Investeringspand | Nee |
|---|---|
| Geschikt voor praktijk | Nee |
| Parking | Nee |
| Garage | Ja |
| Thuiskantoor | Nee |
| Kelder | Nee |
| Zolder | Nee |
| Tuin | Ja |
| Terras | Nee |
| Lift | Nee |
| Rioolaansluiting | Ja |
| Gasaansluiting | Ja |
| Wateraansluiting | Ja |
| Elektriciteitsaansluiting | Ja |
| TV aansluiting | Nee |
| Internetaansluiting | Nee |
| Telefoonaansluiting | Nee |
