Exclusieve bouwgrond voor projectontwikkeling!
Een pand van Vastgoed Chase
Overzicht
- 102 m² grond
Beschrijving
HOBOKEN | PERCEEL BOUWGROND MET EEN STRAATBREEDTE VAN ca. 6,65m OP EEN TOTALE GRONDOPPERVLAKTE VAN 101,5m² | ORIENTATIE ACHTERGEVEL OOST
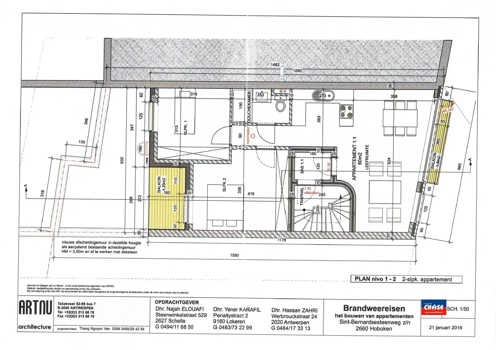
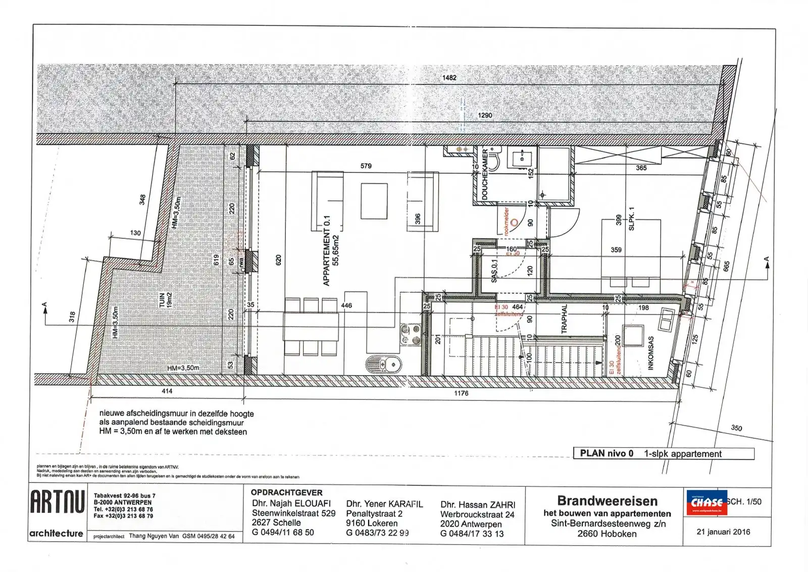
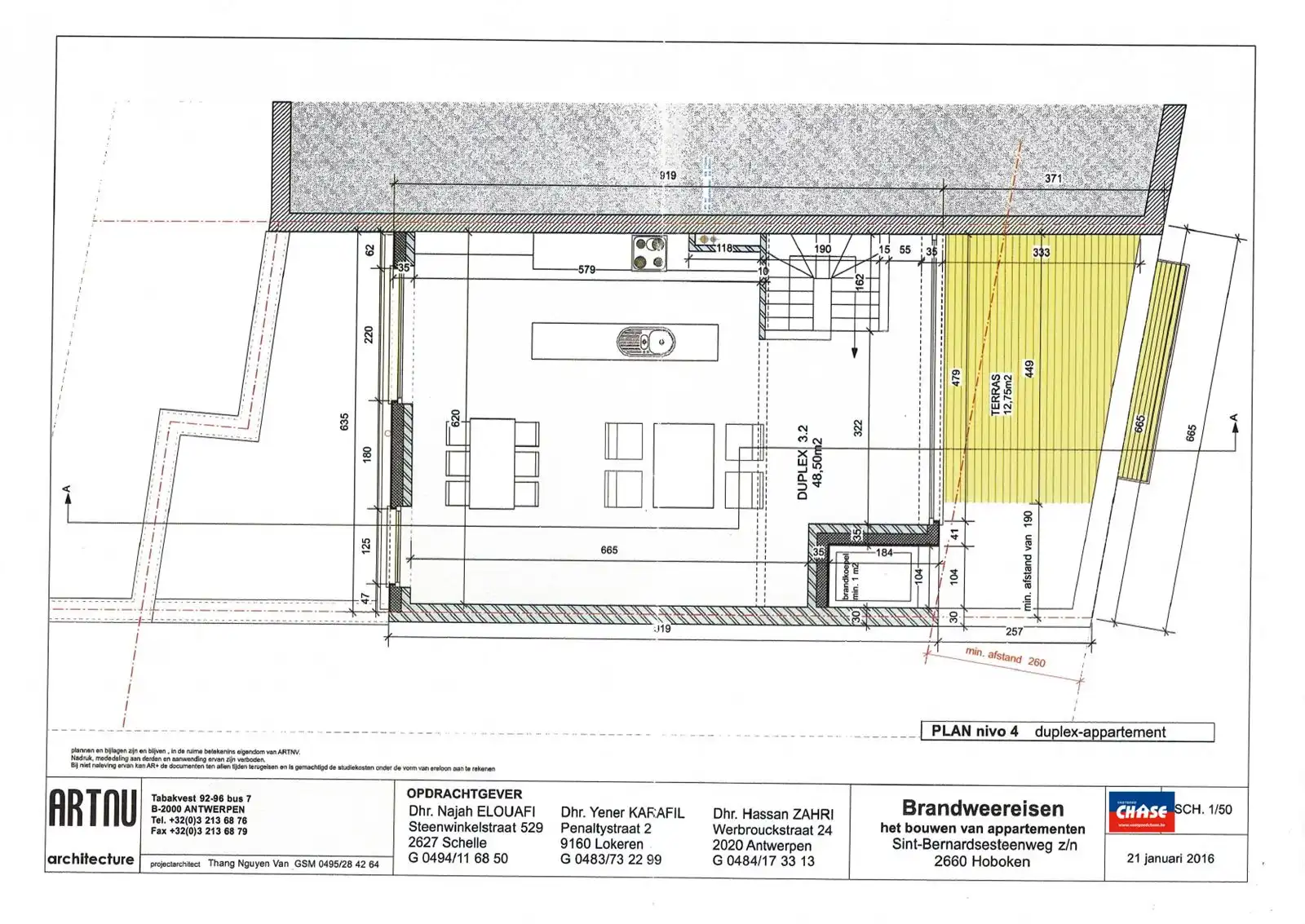
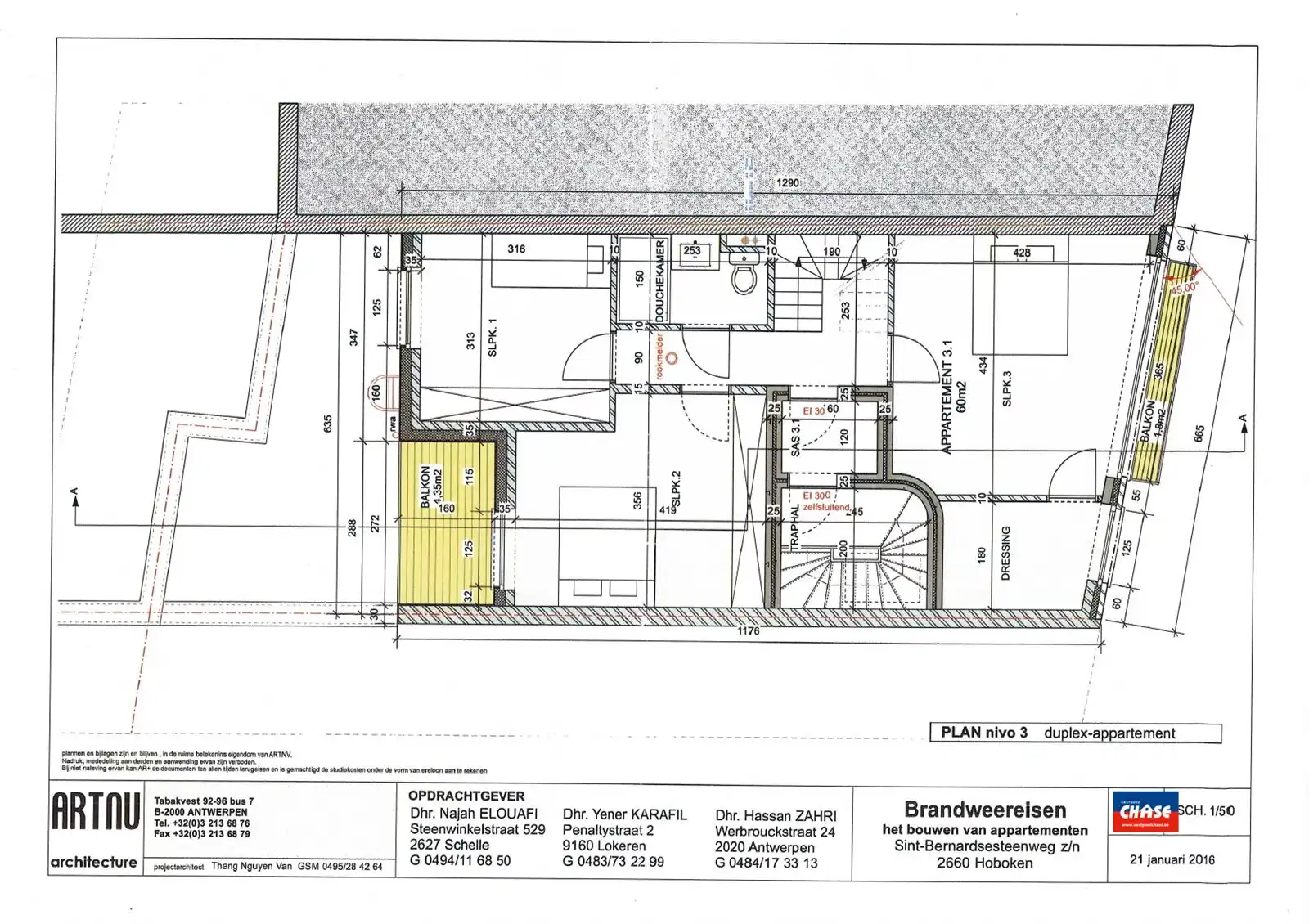
Deze bouwgrond van 101,5m² biedt een ideale opportuniteit voor een kleinschalig bouwproject met investeringsappartementen. In het verleden is er reeds een omgevingsvergunning verkregen voor het oprichten van een meergezinswoning met 4 appartementen. Thans vervallen, maar kan binnen de huidige regelgeving opnieuw aangevraagd worden. De bouwgrond kan aangekocht worden onder de voorwaarde van het verkrijgen van een nieuwe vergunning, al dan niet koppeling met een recht van opstal van 1 jaar.
Troeven:
* Ideaal bouwproject voor projectontwikkelaar
* Gelegen nabij het centrum van Hoboken & dichtbij Wilrijk
* Gelegen nabij openbaar vervoer, scholen en winkels
* Mogelijkheid tot bouwen van (4 à 5) appartementen met tuin en/of terras
* Gunstig georiënteerd (oost)
* Parkeergelegenheid in de straat
Energie
- E-peil: E0
- Beglazing: Onbekend
Op de kaart

Financieel
| Prijs | |
|---|---|
| Kadastraal inkomen (niet geïndexeerd) | € 0 |
| Kadastraal inkomen (geïndexeerd) | € 0 |
Berekening kosten
Je aankoopkosten? Die heb je snel berekend via de knop hieronder.
Bijkomende info
Gebouw
| Bouwcertificaat | Nee |
|---|
Perceel
| Diepte (m) | 16 |
|---|---|
| Breedte (m) | 6 |
| Overstromingsgevoelig | Geen |
| P-score | A |
| Voorkeurrecht | Ja |
| Totale oppervlakte (m²) | 102 |
| Oriëntatie tuin | Oost |
Vergunning
| Vergunning | Aanvraag ingediend |
|---|---|
| Verkavelingsvergunning | Aanvraag ingediend |
Uitrusting
| Investeringspand | Nee |
|---|---|
| Rioolaansluiting | Ja |
| Gasaansluiting | Ja |
| Wateraansluiting | Ja |
| Elektriciteitsaansluiting | Ja |
| TV aansluiting | Nee |
| Internetaansluiting | Nee |
| Telefoonaansluiting | Nee |