Te koop: ondergrondse berging
Een pand van Walls Vastgoedmakelaars
Overzicht
Beschrijving
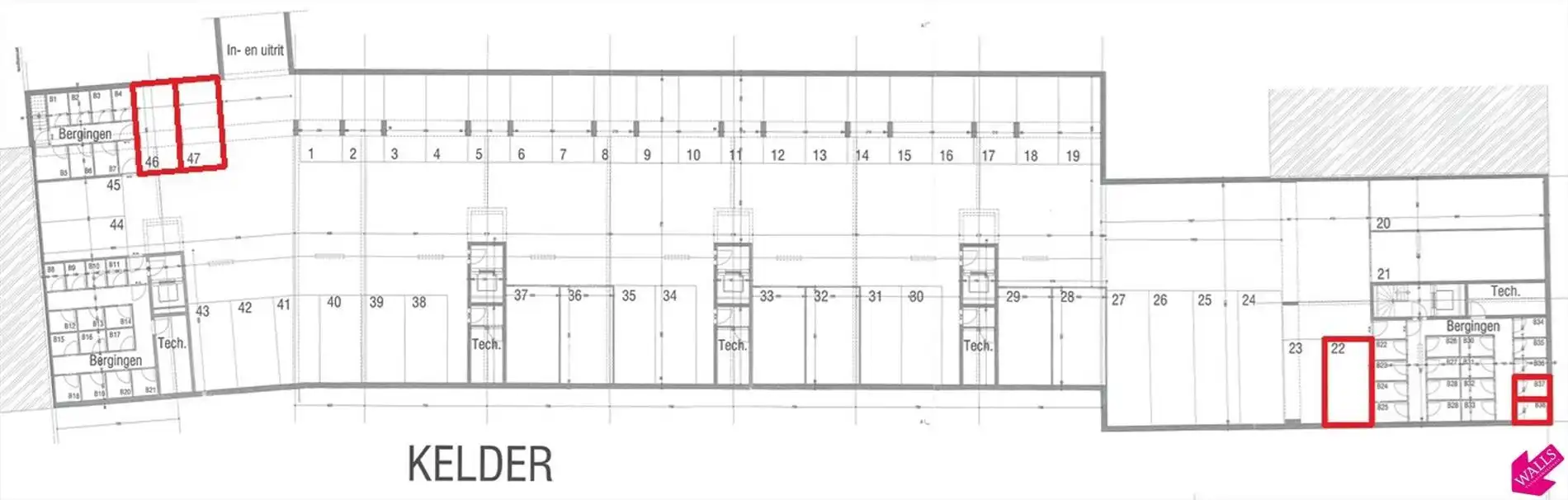
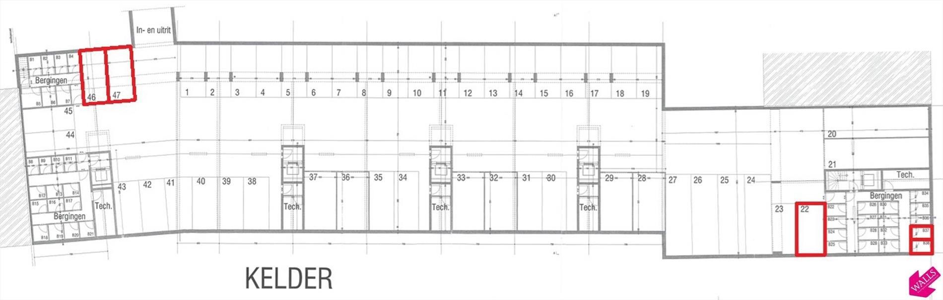
1 Ondergrondse berging te koop aan €3900, wees er snel bij!
Vlot bereikbaar, zeer veilig en is uitgerust met automatische poorten.
P-score: B G-score: B.
Voor meer info of een bezoek ter plaatse, neem contact op met ons kantoor op 03 233 33 00 of via info@walls.be..
Vlot bereikbaar, zeer veilig en is uitgerust met automatische poorten.
P-score: B G-score: B.
Voor meer info of een bezoek ter plaatse, neem contact op met ons kantoor op 03 233 33 00 of via info@walls.be..
Energie
- Verwarming: Geen
- Beglazing: Onbekend
Op de kaart

Financieel
| Prijs | |
|---|---|
| Kadastraal inkomen (niet geïndexeerd) | € 0 |
| Kadastraal inkomen (geïndexeerd) | € 0 |
Berekening kosten
Je aankoopkosten? Die heb je snel berekent via de knop hieronder.
Bijkomende info
Gebouw
| Bouwjaar | 2007 |
|---|---|
| Staat | Zo goed als nieuw |
| Is beschermd | Nee |
Faciliteiten
| Luiken | Nee |
|---|---|
| Primair verwarmingstype | Geen verwarming |
| Brandstof primaire verwarming | Geen |
| Warm water type | Geen verwarming |
Perceel
| Overstromingsgevoelig | Geen |
|---|---|
| P-score | B |
| G-score | B |
| Voorkeurrecht | Nee |
| Bebouwde oppervlakte (m²) | 0 |
| Tuin oppervlakte (m²) | 0 |
| Oppervlakte terras (m²) | 0 |
Vergunning
| Vergunning | Vergunning beschikbaar |
|---|---|
| Verkavelingsvergunning | Geen beschikbaar |
| Bouwovertreding dagvaardiging | Geen |
| Type gebied | Stedelijk |
Uitrusting
| Meerdere eigenaars | Nee |
|---|---|
| Geschikt als kangoeroewoning | Nee |
| Geschikt voor rolstoelgebruikers | Nee |
| Geschikt voor praktijk | Nee |
| Volledig onderkelderd | Nee |
| Parking | Ja |
| Garage | Ja |
| Thuiskantoor | Nee |
| Kelder | Nee |
| Zolder | Nee |
| Opslagruimte | Nee |
| Tuin | Nee |
| Terras | Nee |
| Lift | Nee |
| Rioolaansluiting | Nee |
| Gasaansluiting | Nee |
| Wateraansluiting | Nee |
| Elektriciteitsaansluiting | Nee |
| TV aansluiting | Nee |
| Internetaansluiting | Nee |
| Zonnepanelen | Nee |
| Zonneboiler | Nee |
| Alarm | Nee |
| Zwembad | Nee |
| Jacuzzi | Nee |
| Toonzaal | Nee |
| Ventilatie | Nee |
Een pand van
Walls Vastgoedmakelaars
Al meer dan 20 jaar actief in Antwerpen!
Onze opvallende roze pijl is het bewijs dat Walls Vastgoedmakelaars één van de sterkste & meest vertrouwde spelers op de markt is.
Ons team bestaat uit gedreven specialisten met veel ervaring in de verschillende segmenten van de vastgoedmarkt. Bovendien is iedereen gespecialiseerd in zijn/haar eigen regio en vakgebied. We breiden constant onze kennis uit zodat wij jou steeds de beste service kunnen bieden. We focussen ons op 4 pijlers: wonen, ondernemen, investeren en beheren. Dat maakt Walls Vastgoedmakelaars uniek én opvallend, net zoals onze panden. Tot snel!
24TK568
Leer meer over vastgoed
24 November 2025
Uitgezocht voor jouw gemeente: Hoeveel stijgt de waarde van je woning door een renovatie?
22 October 2025
Hoeveel kan ik lenen om een huis te kopen?
11 June 2025
Huis kopen met bouwovertreding? Dit moet je weten
11 May 2025