In optie Nieuw Virtual tour
Aangenaam 1 - slaapkamer appartement in het centrum van Mechelen
Een pand van ImmoVos Haacht
Favoriet
Jouw zoektocht
Jouw scoretabel voor dit pand
Aan het laden...
Jouw geplande bezichtigingen
Aan het laden...
Overzicht
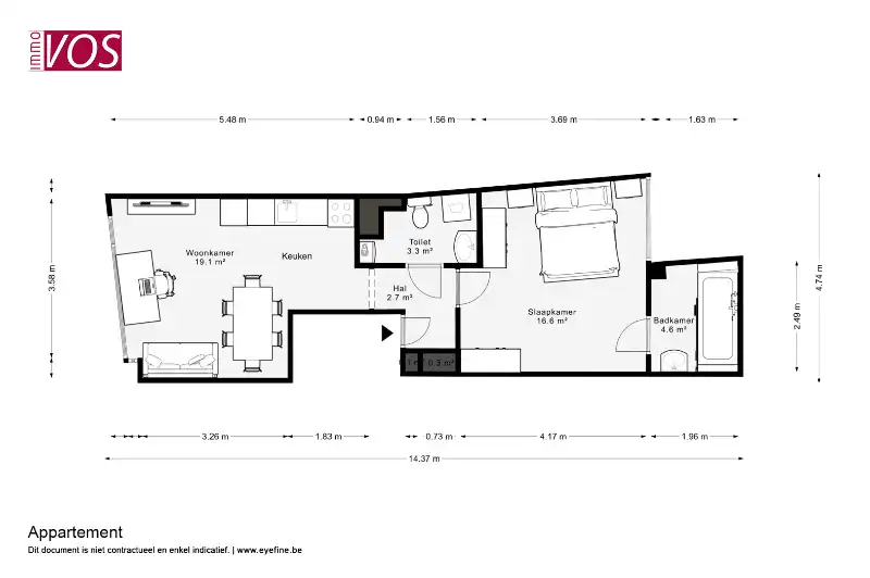
- 70 m² bewoonbaar
- 1 Slaapkamer(s)
- 1 Badkamer(s)
- 1 Toilet(ten)
Beschrijving
Dit lichtrijke appartement, gelegen in het hart van Mechelen, combineert comfort met een hedendaagse uitstraling. De aangename leefruimte geniet van een fijne lichtinval en sluit mooi aan bij de trendy, volledig uitgeruste keuken. Verder beschikt het appartement over één ruime slaapkamer en is het instapklaar afgewerkt.
De badkamer is ingericht met een lavabo en een bad met douchefunctie. Daarnaast is er een aparte toiletruimte met plaats voor een wasmachine. De ruime inkomhal zorgt voor een welkom gevoel en extra bergruimte.
Kortom, een ideaal appartement voor wie comfortabel en centraal wil wonen in Mechelen.
Voor meer informatie of een bezoek ter plaatse, kan u een mailtje sturen naar Jeroen@immovos.be of bellen op 0471/34.34.34
De badkamer is ingericht met een lavabo en een bad met douchefunctie. Daarnaast is er een aparte toiletruimte met plaats voor een wasmachine. De ruime inkomhal zorgt voor een welkom gevoel en extra bergruimte.
Kortom, een ideaal appartement voor wie comfortabel en centraal wil wonen in Mechelen.
Voor meer informatie of een bezoek ter plaatse, kan u een mailtje sturen naar Jeroen@immovos.be of bellen op 0471/34.34.34
Energie
- E-peil: E0
- Beglazing: Onbekend
Op de kaart

Financieel
| Prijs |
|---|
Berekening kosten
Je aankoopkosten? Die heb je snel berekend via de knop hieronder.
Bijkomende info
Gebouw
| Bewoonbaar (m²) | 70 |
|---|---|
| Verdieping | 1 |
| Badkamers | 1 |
| Slaapkamers | 1 |
| Verdiepingen | 0 |
| Garages | 0 |
| Parkeerplaatsen | 0 |
| Toiletten | 1 |
Faciliteiten
| Septische tank | Nee |
|---|
Perceel
| Bebouwde oppervlakte (m²) | 0 |
|---|
Vergunning
| Verkavelingsvergunning | Geen beschikbaar |
|---|
Uitrusting
| Investeringspand | Nee |
|---|---|
| Parking | Nee |
| Garage | Nee |
| Lift | Nee |
| Rioolaansluiting | Nee |
| Gasaansluiting | Nee |
| Wateraansluiting | Nee |
| Elektriciteitsaansluiting | Nee |
| Internetaansluiting | Nee |
| Telefoonaansluiting | Nee |
| Zonnepanelen | Nee |
| Zonneboiler | Nee |
| Alarm | Nee |
| Videofoon | Nee |
| Grondwaterput | Nee |
Appartementsblok
| Lift | Nee |
|---|---|
| Intercom | Nee |
Een pand van
ImmoVos Haacht
Verkoop-verhuur en rentmeesterschap
IMMOVOS biedt iedere klant een persoonlijke service aan. Het uitwerken van oplossingen op maat van de klant staat steeds voorop.
IMMOVOS staat bekend als een kantoor met een uitgebreide kennis op verschillende domeinen. Zo kan u bij ons terecht voor advies ivm alle vastgoedtransacties, projectontwikkeling, en beheer van eigendommen.
Dit kan een advies zijn per domein of een geïntegreerd advies waarbij de verschillende aspecten samen worden bekeken.
H5013
Leer meer over vastgoed
23 March 2026
Op Spotto zoeken als een pro: 10 slimme tips
21 March 2026
Hoeveel kan ik lenen om een huis te kopen?
01 March 2026
Wanneer heb ik een bouwvergunning of omgevingsvergunning nodig?
17 February 2026