Uniek handelspand met woonruimte aan Grote Markt!
€ 384.000
Een pand van IMMO ID
Overzicht
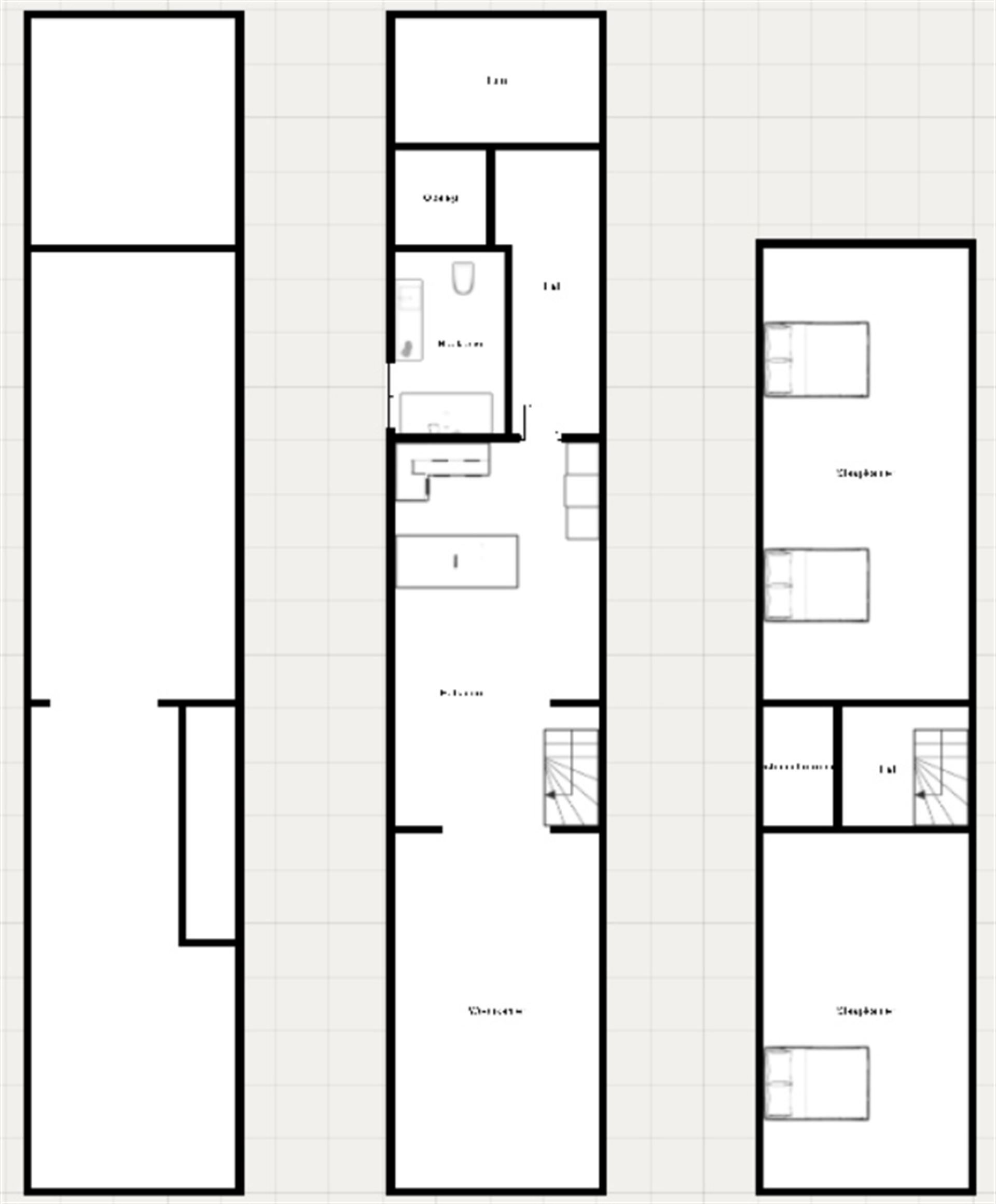
- 220 m² bewoonbaar
- 99 m² grond
- 3 Slaapkamer(s)
- 1 Badkamer(s)
- 2 Toilet(ten)
Beschrijving
Uniek handelspand met woonruimte in hartje Mechelen
Gelegen op een toplocatie in het historische centrum van Mechelen, biedt dit charmante handelspand een ideale combinatie van wonen en werken. Met een prachtig uitzicht op het stadhuis en veel passage, is dit een unieke kans voor ondernemers en investeerders.
Gelijkvloers Commerciële ruimte
- Ruime te renoveren handelsruimte met een volledige vitrinebreedte, perfect voor maximale zichtbaarheid.
- Flexibele indeling, geschikt voor diverse commerciële activiteiten.
- Mogelijkheid tot aparte toegang naar het privéwoonvertrek.
Eerste verdieping Gezellige leefruimte
- Open en lichtrijke woonkamer met authentieke haard.
- Moderne, volledig uitgeruste keuken met kookeiland.
- Eethoek met veel natuurlijk licht, ideaal voor gezellige diners.
- Badkamer met bad, lavabomeubel en toilet
- Berging voor wasmachine en droogkast.
- Toegang tot een aangenaam terras, perfect voor ontspanning.
Tweede verdieping Ruime slaapkamers
- Grote slaapkamer aan de voorzijde.
- Tussenruimte met aansluiting voor extra toilet en mogelijkheid tot extra douchekamer.
- Tweede zeer ruime slaapkamer, eventueel op te splitsen in 2 slaapkkamers
Gelegen in een levendige en historische straat, omringd door winkels, horeca en cultuur.
Servitudeweg naast het pand voor fietsenstalling en extra opslagmogelijkheden.
Perfect voor wie wonen en werken wil combineren in een karaktervolle setting.
Energie
![]() |
- EPC Certificaat: 3540093
- Energieverbruik: 444 kWh/m²/jaar
- E-peil: E0
- Verwarming: Gas
- Beglazing: Standaard dubbel
Op de kaart

Financieel
| Prijs | |
|---|---|
| Kadastraal inkomen (niet geïndexeerd) | € 1.291 |
| Kadastraal inkomen (geïndexeerd) | € 2.810 |
Berekening kosten
Je aankoopkosten? Die heb je snel berekent via de knop hieronder.
Bijkomende info
Gebouw
| Staat | Goed onderhouden |
|---|---|
| Bouwcertificaat | Nee |
| Bewoonbaar (m²) | 220 |
| Verdieping | 0 |
| Gevelbreedte | 4.8 |
| Badkamers | 1 |
| Slaapkamers | 3 |
| Verdiepingen | 0 |
| Garages | 0 |
| Parkeerplaatsen | 0 |
| Doucheruimtes | 0 |
| Toiletten | 2 |
Faciliteiten
| Keuken uitrusting | Luxueus uitgerust |
|---|---|
| Materiaal ramenomlijstingen | Hout |
| Beglazing | Standaard dubbel |
| Brandstof primaire verwarming | Gas |
| Elektrisch keuringsattest | Nee |
Perceel
| Overstromingsgevoelig | Geen |
|---|---|
| P-score | A |
| G-score | A |
| Voorkeurrecht | Nee |
| Totale oppervlakte (m²) | 99 |
| Bebouwde oppervlakte (m²) | 0 |
| Tuin oppervlakte (m²) | 0 |
| Oppervlakte terras (m²) | 9 |
Vergunning
| Vergunning | Vergunning beschikbaar |
|---|---|
| Verkavelingsvergunning | Geen beschikbaar |
Uitrusting
| Investeringspand | Nee |
|---|---|
| Geschikt voor praktijk | Nee |
| Parking | Nee |
| Garage | Nee |
| Thuiskantoor | Ja |
| Kelder | Ja |
| Zolder | Nee |
| Tuin | Nee |
| Terras | Ja |
| Lift | Nee |
| Rioolaansluiting | Nee |
| Gasaansluiting | Nee |
| Wateraansluiting | Nee |
| Elektriciteitsaansluiting | Nee |
| TV aansluiting | Nee |
| Internetaansluiting | Nee |
| Telefoonaansluiting | Nee |
Appartementsblok
| Lift | Nee |
|---|
Een pand van
IMMO ID
Uw vastgoedkantoor met een unieke aanpak.
Ons vastgoedkantoor kan zich bogen op liefst meer dan 33 jaar ervaring met de vastgoedmarkt in de driehoek Brussel-Antwerpen-Mechelen. Het was Remi Tassaert die de eerste twee kantoren in Mechelen en Brussel eigenhandig uit de grond stampte. Sinds zijn dochter Katia Tassaert 14 jaar geleden het roer overnam, is de familiezaak uitgebreid naar 4 vestigingen: 2 in Mechelen, in Sint-Katelijne-Waver en in Brussel.
Nick Nuytkens is intussen ook al de derde generatie: hij runt al 11 jaar het kantoor in onze hoofdstad. De groei van Immo ID heeft zich de voorbije jaren ook vertaald in de opstart van enkele zusterbedrijven.
Projects ID legt zich toe op de ontwikkeling en verkoop van nieuwbouwprojecten, terwijl Immo ID España gespecialiseerd is in vastgoed aan de Spaanse Costa’s.
Bij Immo ID kan je rekenen op een team van medewerkers die allen even hard gepassioneerd zijn door vastgoed. Wij stellen alles in het werk om de juiste kopers voor het juiste pand te vinden en zowel voor koper als verkoper de beste deal te onderhandelen. We laten niets aan het toeval over en zorgen voor een complete service van A tot Z. ”Vanaf het bepalen van de correcte vraagprijs van een pand tot de nazorg na het verlijden van de akte: het behoort allemaal tot ons takenpakket. De belangrijkste basis om tot een mooi resultaat te komen, is vertrouwen.
We willen op een eerlijke en correcte manier omgaan met vastgoed!
BEFFERSTRAAT 17 MECHELEN
Leer meer over vastgoed
05 November 2024
Bedrijfsvastgoed in transitie: ontdek de toekomst van werkplekken
16 October 2024
Opbrengsteigendom: een slim pad naar passief inkomen en vermogensgroei
09 September 2024
Tijdelijk vastgoed: flexibele oplossingen voor een dynamische markt
12 August 2024
