Handelspand in hartje Mechelen!
€ 574.000
Een pand van IMMO ID
Jouw zoektocht
Overzicht
- 350 m² bewoonbaar
- 84 m² grond
- 2 Slaapkamer(s)
- 2 Toilet(ten)
Beschrijving
Unieke commerciële opportuniteit in het historische hart van Mechelen
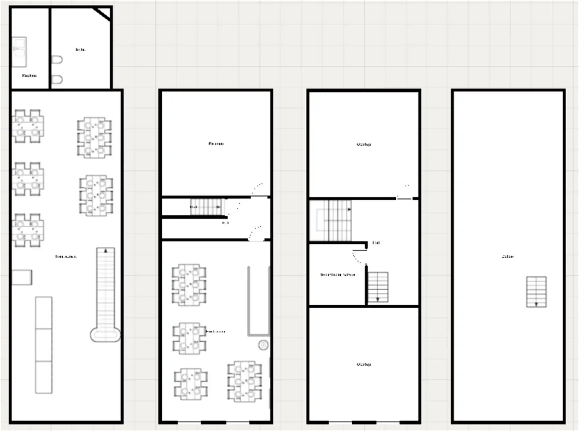
In het bruisende centrum van Mechelen bevindt zich dit charmante handelspand met tal van mogelijkheden. Het pand is momenteel volledig ingericht als snackbar en restaurant en biedt een interessante indeling over meerdere niveaus.
Op het gelijkvloers bevindt zich een ruime handelsruimte met een grote vitrine, ideaal voor maximale zichtbaarheid en aantrekkelijke etalages in de straat. Deze verdieping is uitgerust met een volledig functionele snackbar- en restaurantinrichting. Afwasruimte en toiletten bevinden zich ook op deze verdieping.
Via een authentieke trap bereikt u het eerste verdiep, waar zich een gezellig eetgedeelte bevindt met meerdere zitplaatsen en grote ramen die uitkijken op het pleintje. Achteraan deze verdieping bevindt zich de keuken, voorzien van professionele apparatuur zoals een oven, kookplaat en diverse koelkasten.
De tweede verdieping en de zolderverdieping zijn momenteel niet ingericht en dienen gerenoveerd te worden. Dit biedt interessante mogelijkheden om het handelspand uit te breiden of te combineren met een woongelegenheid, mits het verkrijgen van een omgevingsvergunning.
De ligging is uitzonderlijk: gelegen in een autovrije zone in het centrum van Mechelen, omringd door winkels, horeca en scholen. Dit zorgt voor een constante passage en uitstekende commerciële zichtbaarheid.
Kortom, dit pand biedt een uitgelezen kans voor ondernemers die een bestaande horecazaak willen verderzetten of hun eigen concept willen realiseren op een toplocatie.
Energie
![]() |
- EPC Certificaat: 3819274
- E-peil: E0
- Verwarming: Gas
- Beglazing: Onbekend
Op de kaart

Financieel
| Prijs | |
|---|---|
| Kadastraal inkomen (niet geïndexeerd) | € 2.460 |
| Kadastraal inkomen (geïndexeerd) | € 0 |
Berekening kosten
Je aankoopkosten? Die heb je snel berekend via de knop hieronder.
Bijkomende info
Gebouw
| Bouwjaar | 1850 |
|---|---|
| Staat | Op te frissen |
| Bouwcertificaat | Nee |
| Bewoonbaar (m²) | 350 |
| Verdieping | 0 |
| Gevelbreedte | 5.7 |
| Badkamers | 0 |
| Slaapkamers | 2 |
| Verdiepingen | 0 |
| Garages | 0 |
| Parkeerplaatsen | 0 |
| Doucheruimtes | 0 |
| Toiletten | 2 |
Faciliteiten
| Brandstof primaire verwarming | Gas |
|---|---|
| Elektrisch keuringsattest | Nee |
Perceel
| Overstromingsgevoelig | Geen |
|---|---|
| P-score | B |
| G-score | B |
| Voorkeurrecht | Nee |
| Totale oppervlakte (m²) | 84 |
| Bebouwde oppervlakte (m²) | 0 |
| Tuin oppervlakte (m²) | 0 |
| Oppervlakte terras (m²) | 0 |
Vergunning
| Vergunning | Vergunning beschikbaar |
|---|---|
| Verkavelingsvergunning | Geen beschikbaar |
Uitrusting
| Investeringspand | Nee |
|---|---|
| Geschikt voor praktijk | Nee |
| Parking | Nee |
| Garage | Nee |
| Thuiskantoor | Nee |
| Kelder | Nee |
| Zolder | Ja |
| Tuin | Nee |
| Terras | Nee |
| Lift | Nee |
| Rioolaansluiting | Nee |
| Gasaansluiting | Nee |
| Wateraansluiting | Nee |
| Elektriciteitsaansluiting | Nee |
| TV aansluiting | Nee |
| Internetaansluiting | Nee |
| Telefoonaansluiting | Nee |
Appartementsblok
| Lift | Nee |
|---|
