Charmant handelspand in hartje Mechelen!
€ 368.000
Een pand van IMMO ID
Jouw zoektocht
Overzicht
- 139 m² bewoonbaar
- 55 m² grond
- 1 Slaapkamer(s)
- 1 Badkamer(s)
- 2 Toilet(ten)
Beschrijving
Charmant en veelzijdig handelspand in hartje stad
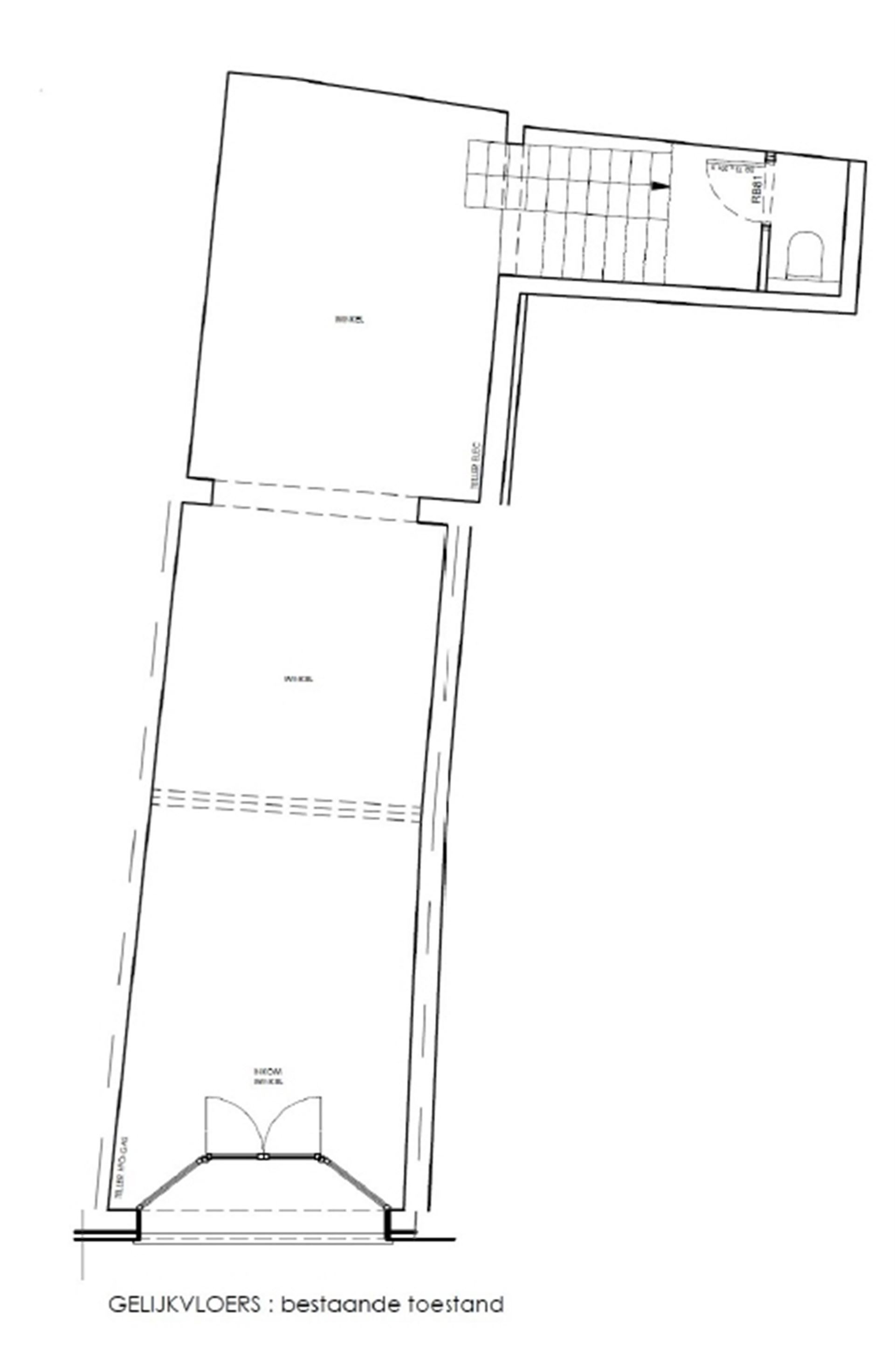
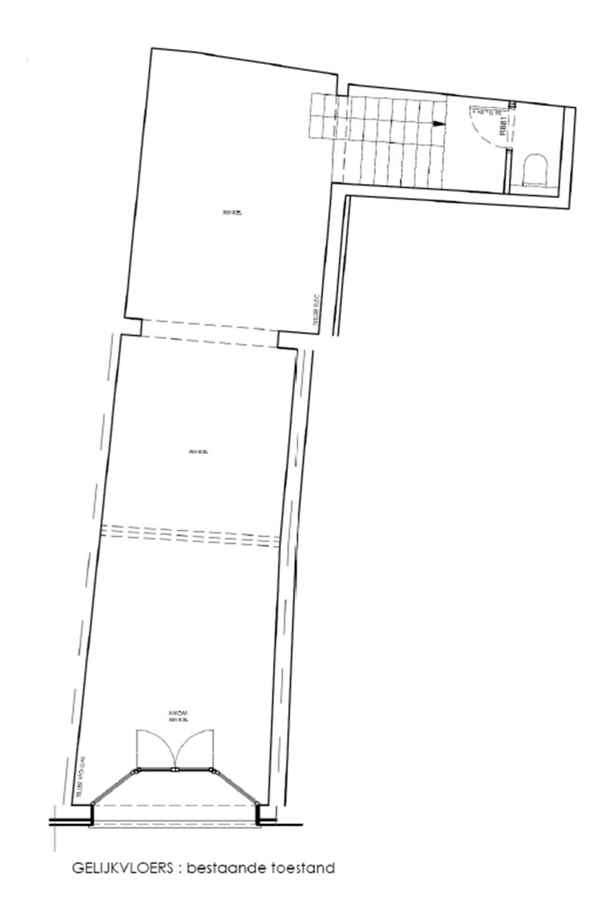
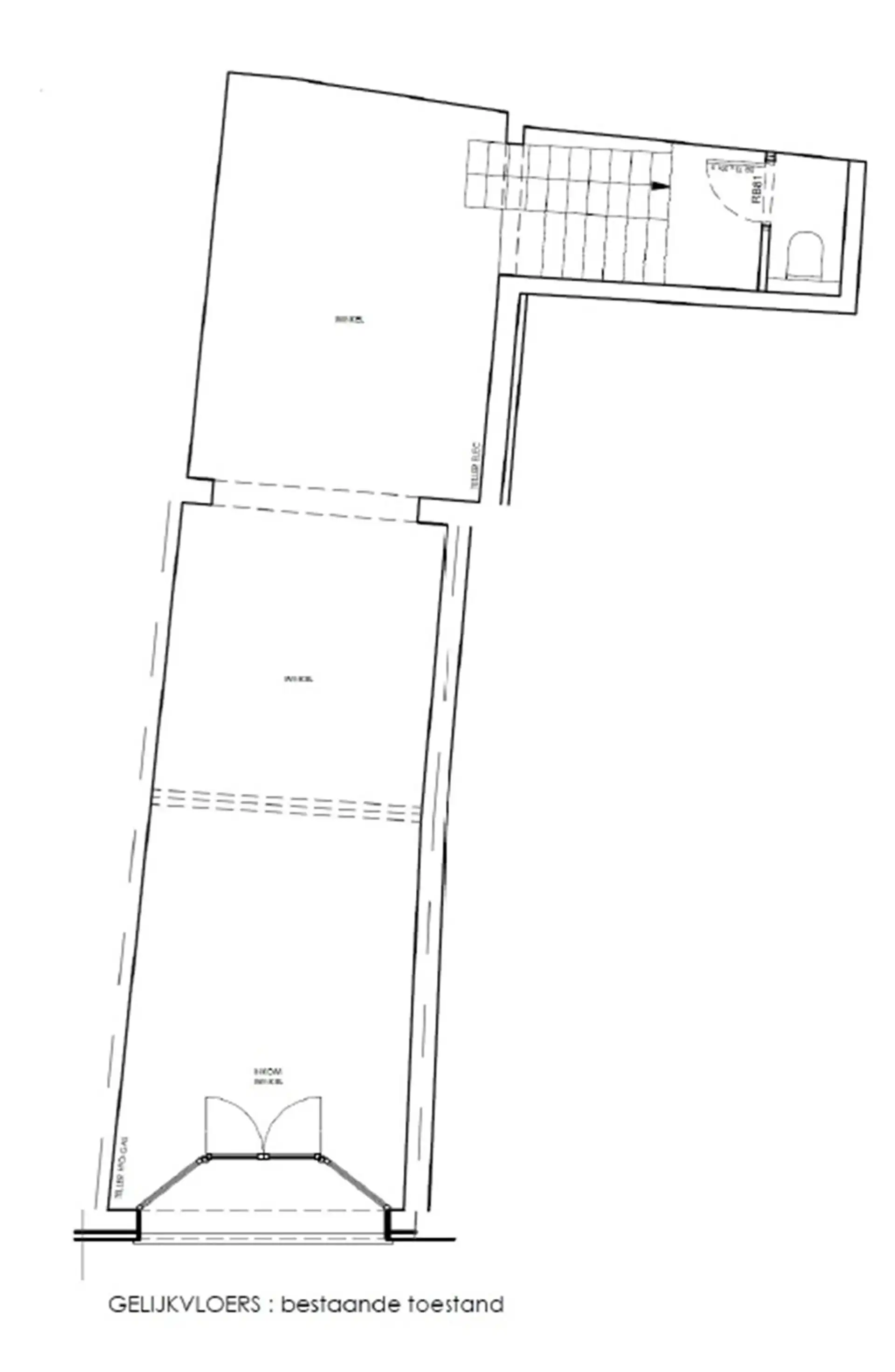
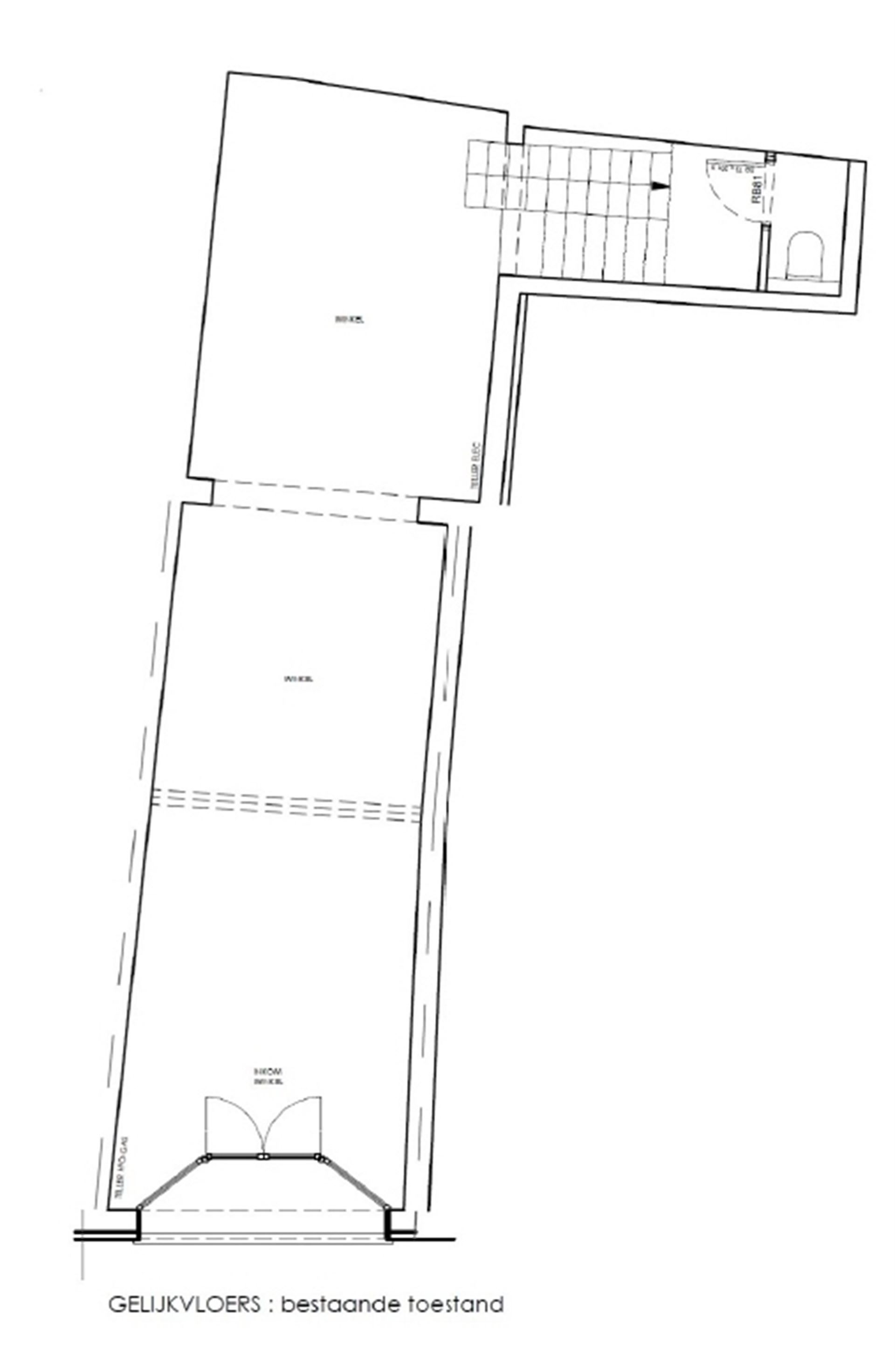
Dit super goed gelegen winkelpand beschikt over een handelsgelijkvloers van 48 m² met achteraan een praktische bergruimte en toilet. Dankzij de open indeling leent de ruimte zich uitstekend tot diverse handelsactiviteiten.
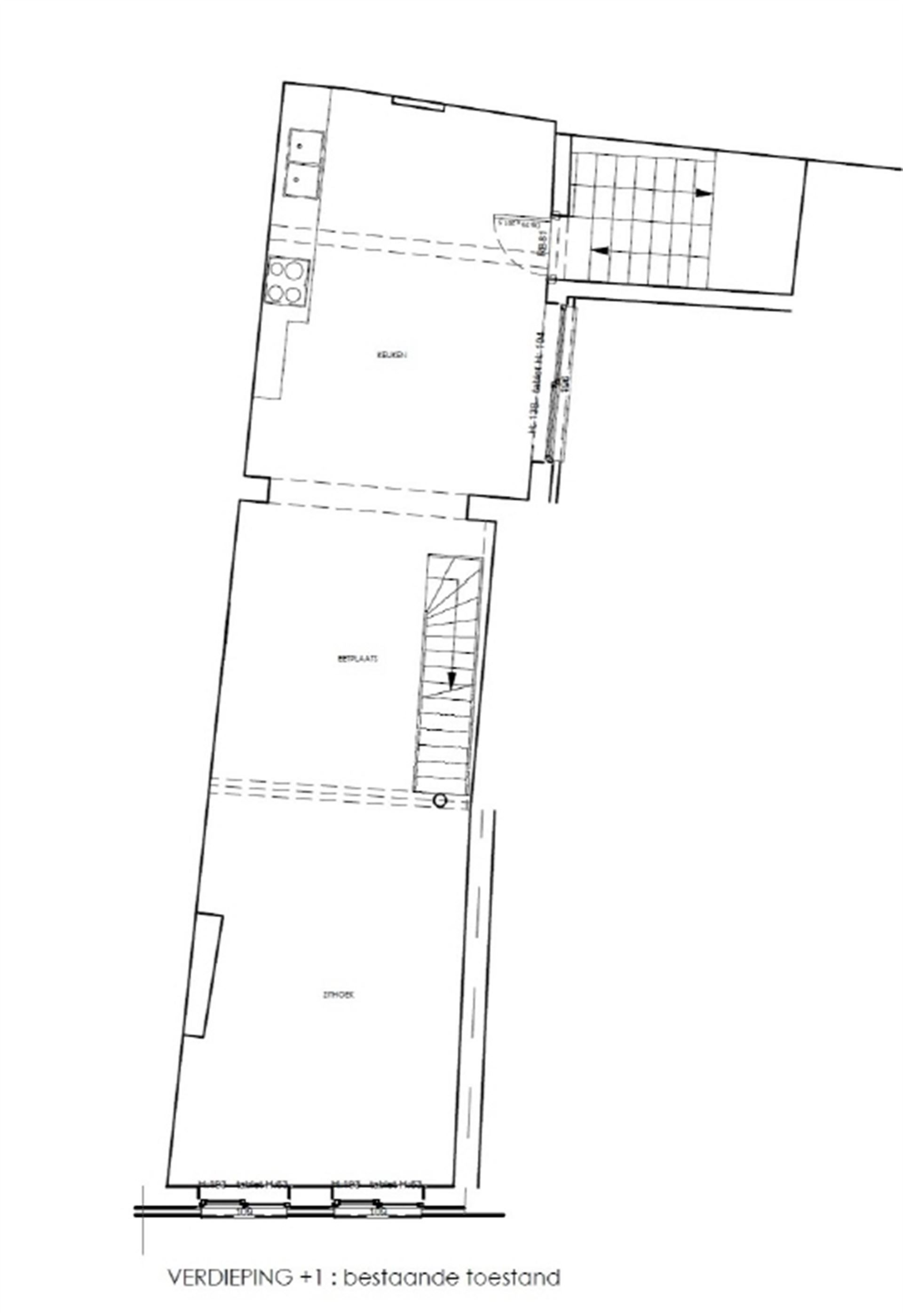
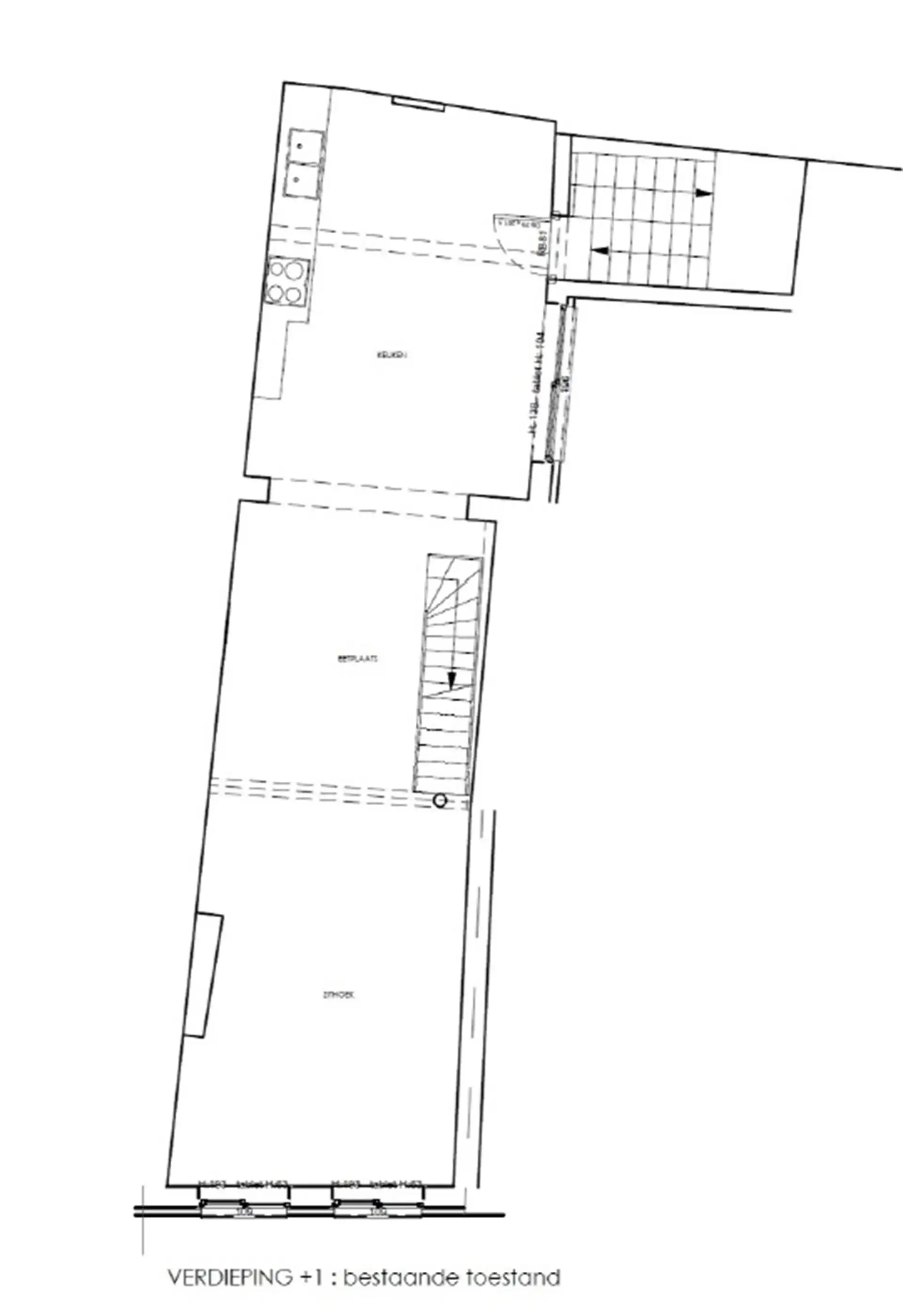
Op de eerste verdieping bevindt zich een royale ruimte van 44 m², voorzien van een basiskeuken. Deze etage kan perfect ingericht worden als bureau, workshopruimte of zelfs een gezellige leefruimte.
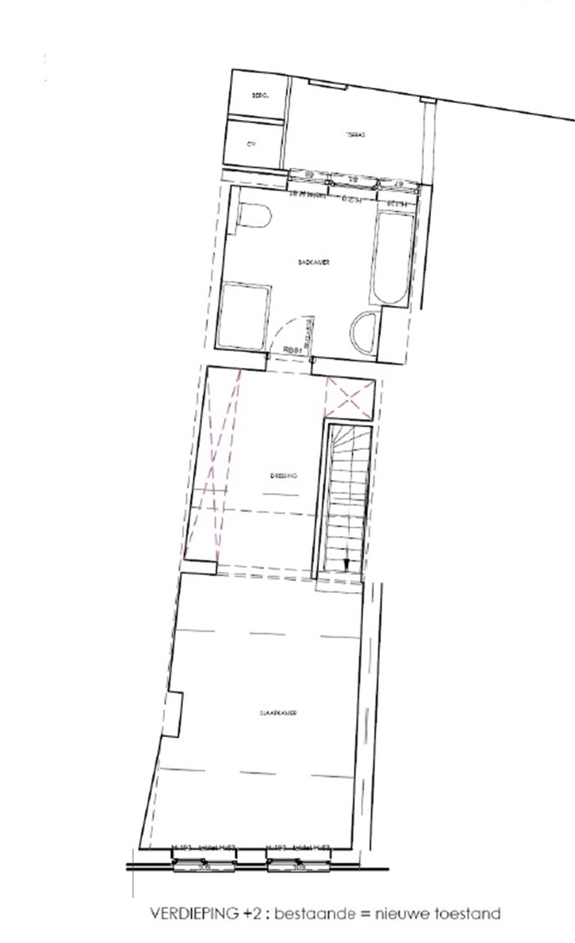
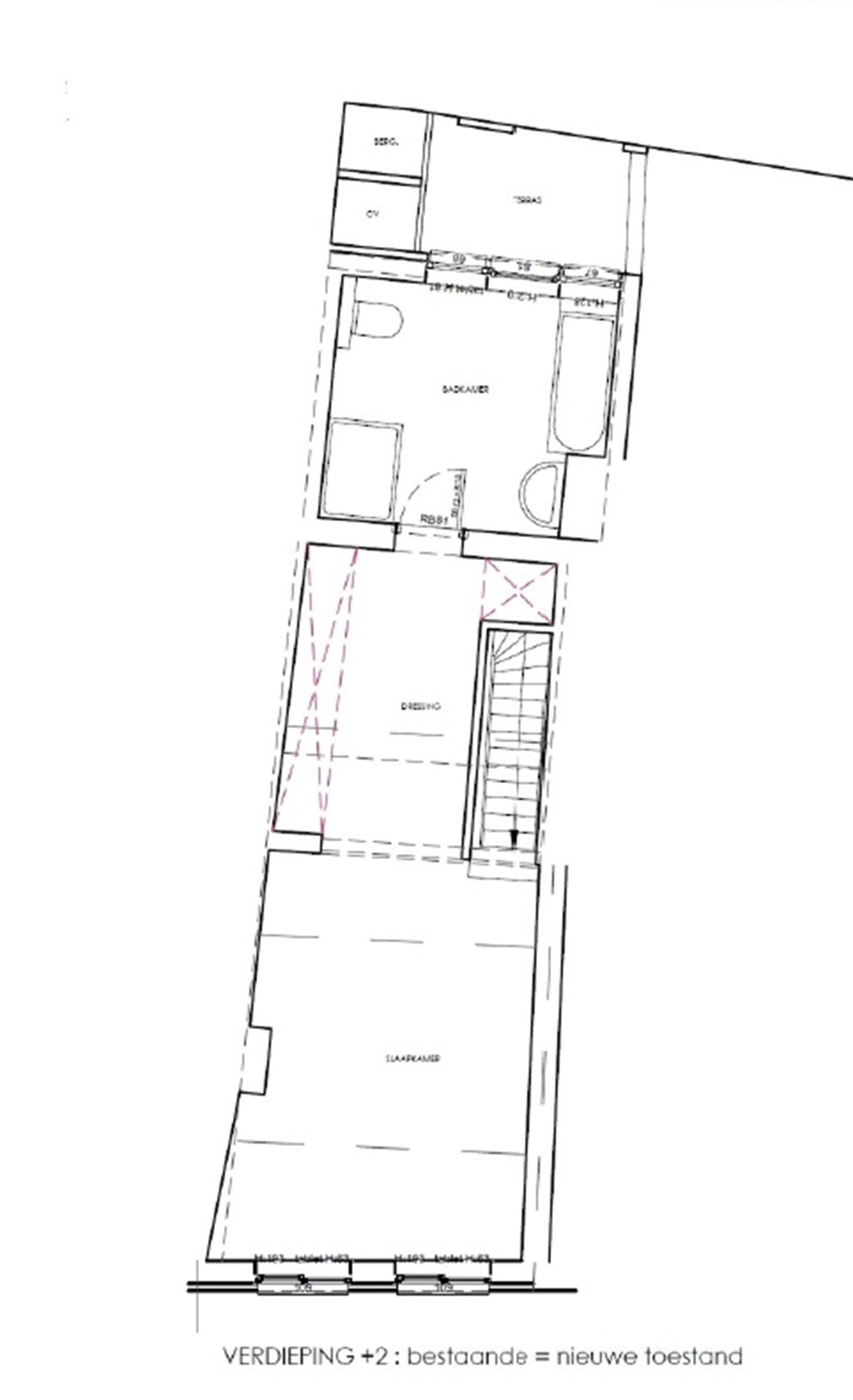
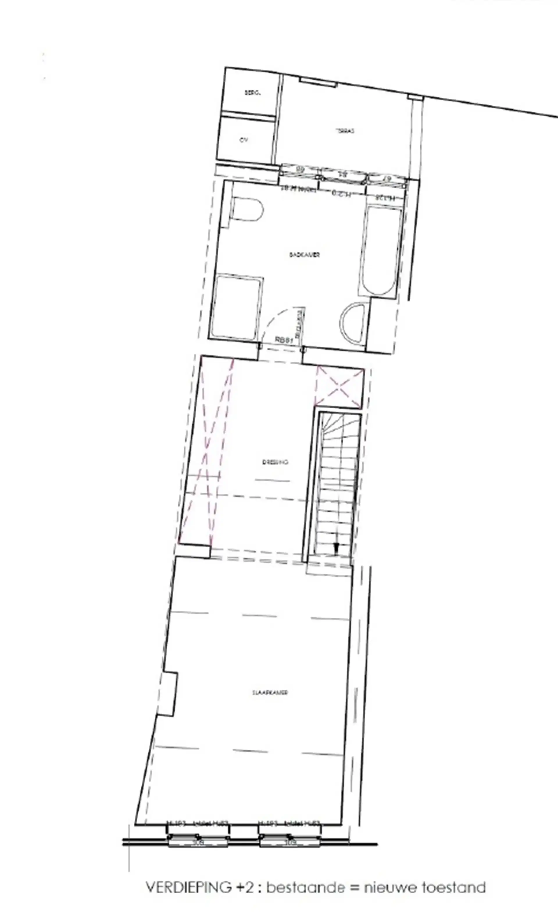
De tweede verdieping is ingedeeld in twee aparte kamers, met een badkamer (douche, lavabo en toilet) en een klein terrasje, ideaal om even tot rust te komen.
Wat dit pand zo bijzonder maakt, is de authentieke charme die het uitstraalt: hoge ramen die veel licht binnenlaten, een warme uitstraling en een indeling die uitnodigt tot creatief gebruik. Het pand combineert functionaliteit met karakter, waardoor het zich vlot laat aanpassen aan uiteenlopende concepten.
Bovendien ligt het in een levendige winkel-wandelstraat die fungeert als verbindingsweg naar de Botermarkt, de Grote Markt en de Bruul een toplocatie die zowel locals als passanten aantrekt.
Opmerking: uitbating in de horeca is niet toegelaten.
Energie
![]() |
- EPC Certificaat: 3662028
- E-peil: E0
- Verwarming: Gas
- Beglazing: Enkel
Op de kaart

Financieel
| Prijs | |
|---|---|
| Kadastraal inkomen (niet geïndexeerd) | € 2.097 |
| Kadastraal inkomen (geïndexeerd) | € 0 |
Berekening kosten
Je aankoopkosten? Die heb je snel berekend via de knop hieronder.
Bijkomende info
Gebouw
| Staat | Goed onderhouden |
|---|---|
| Bouwcertificaat | Nee |
| Bewoonbaar (m²) | 139 |
| Verdieping | 0 |
| Gevelbreedte | 4.2 |
| Badkamers | 1 |
| Slaapkamers | 1 |
| Verdiepingen | 0 |
| Garages | 0 |
| Parkeerplaatsen | 0 |
| Doucheruimtes | 1 |
| Toiletten | 2 |
Faciliteiten
| Materiaal ramenomlijstingen | Hout |
|---|---|
| Beglazing | Enkel |
| Brandstof primaire verwarming | Gas |
| Elektrisch keuringsattest | Ja |
Perceel
| Overstromingsgevoelig | Geen |
|---|---|
| P-score | C |
| G-score | C |
| Voorkeurrecht | Nee |
| Totale oppervlakte (m²) | 55 |
| Bebouwde oppervlakte (m²) | 0 |
| Tuin oppervlakte (m²) | 0 |
| Oppervlakte terras (m²) | 3 |
Vergunning
| Vergunning | Vergunning beschikbaar |
|---|---|
| Verkavelingsvergunning | Geen beschikbaar |
Uitrusting
| Investeringspand | Nee |
|---|---|
| Geschikt voor praktijk | Nee |
| Parking | Nee |
| Garage | Nee |
| Thuiskantoor | Ja |
| Kelder | Nee |
| Zolder | Nee |
| Tuin | Nee |
| Terras | Ja |
| Lift | Nee |
| Rioolaansluiting | Nee |
| Gasaansluiting | Nee |
| Wateraansluiting | Nee |
| Elektriciteitsaansluiting | Nee |
| TV aansluiting | Nee |
| Internetaansluiting | Nee |
| Telefoonaansluiting | Nee |
Appartementsblok
| Lift | Nee |
|---|
