Duplex app met handelsgelijkvloers in hartje Mechelen!
€ 368.000
Een pand van IMMO ID
Jouw zoektocht
Overzicht
- 139 m² bewoonbaar
- 1 Slaapkamer(s)
- 1 Badkamer(s)
- 2 Toilet(ten)
Beschrijving
Karaktervol handelspand met ruime privatieve woonst in hartje Mechelen
Dit charmante pand combineert een uitstekend gelegen handelsgelijkvloers met een gezellige woonruimte erboven. Dankzij de unieke mix van functionaliteit en authenticiteit is dit een ideale opportuniteit voor wie wonen en werken wil combineren, of op zoek is naar een investeringspand met verschillende mogelijkheden.
Handelsruimte
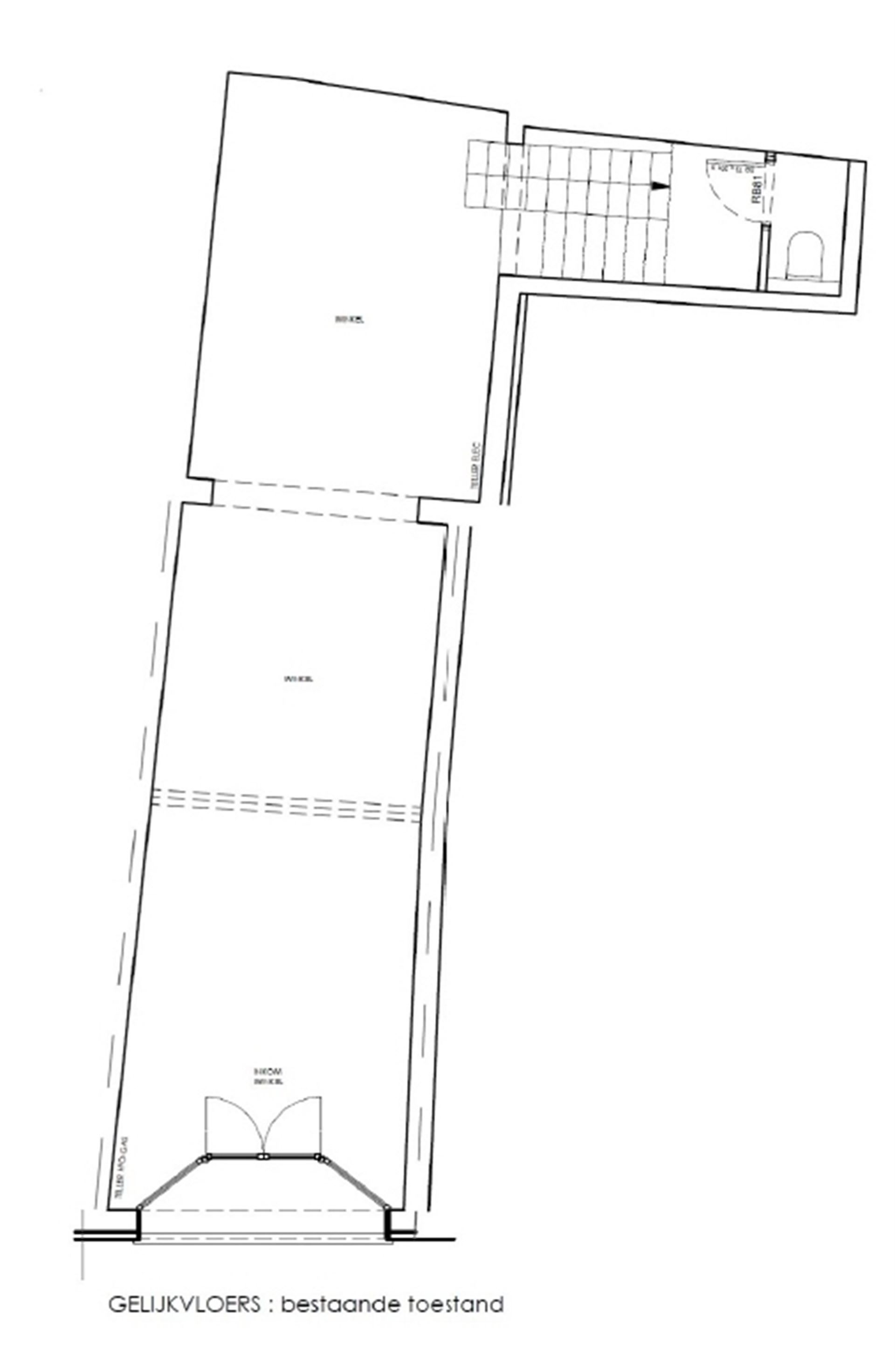
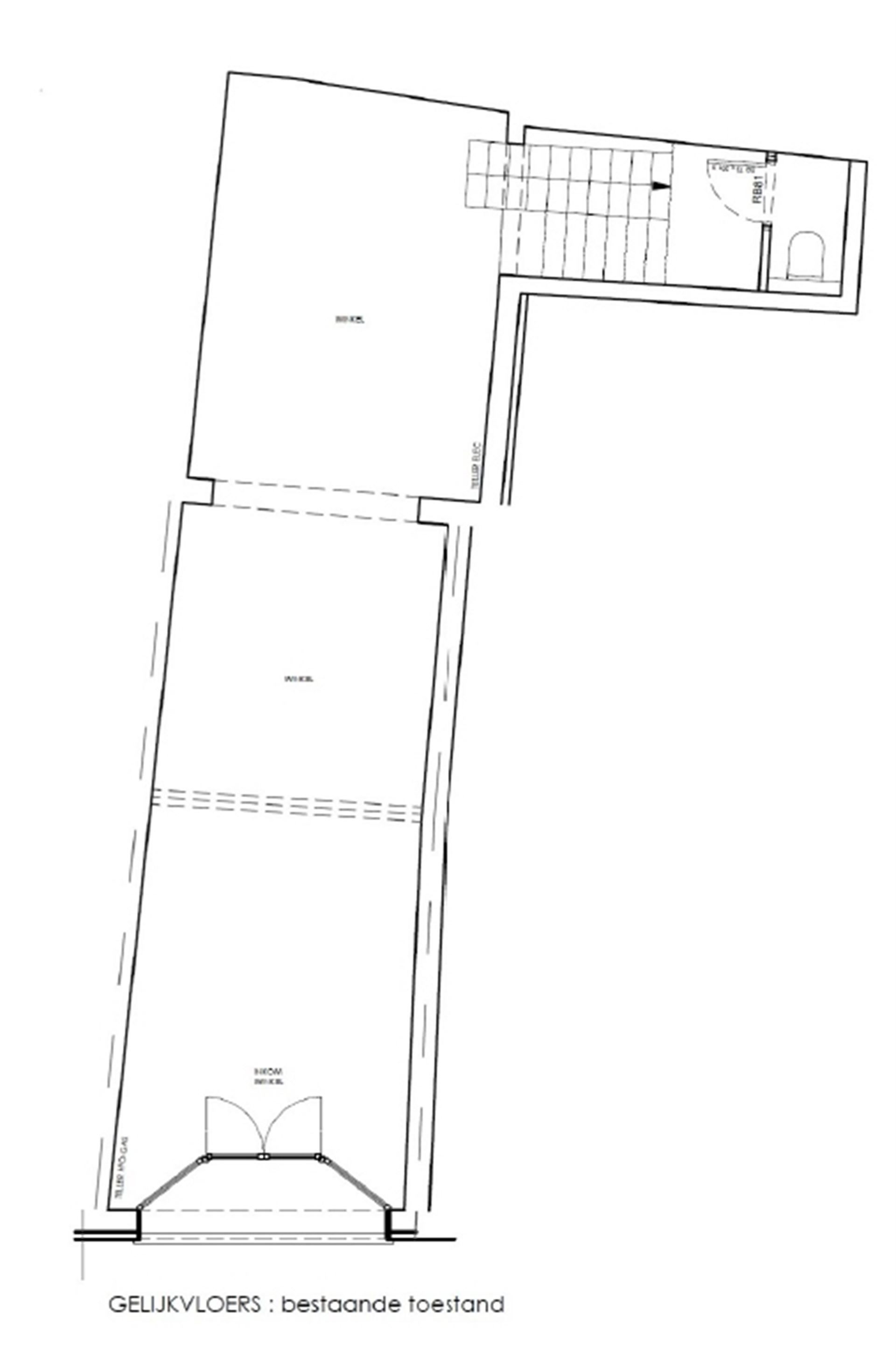
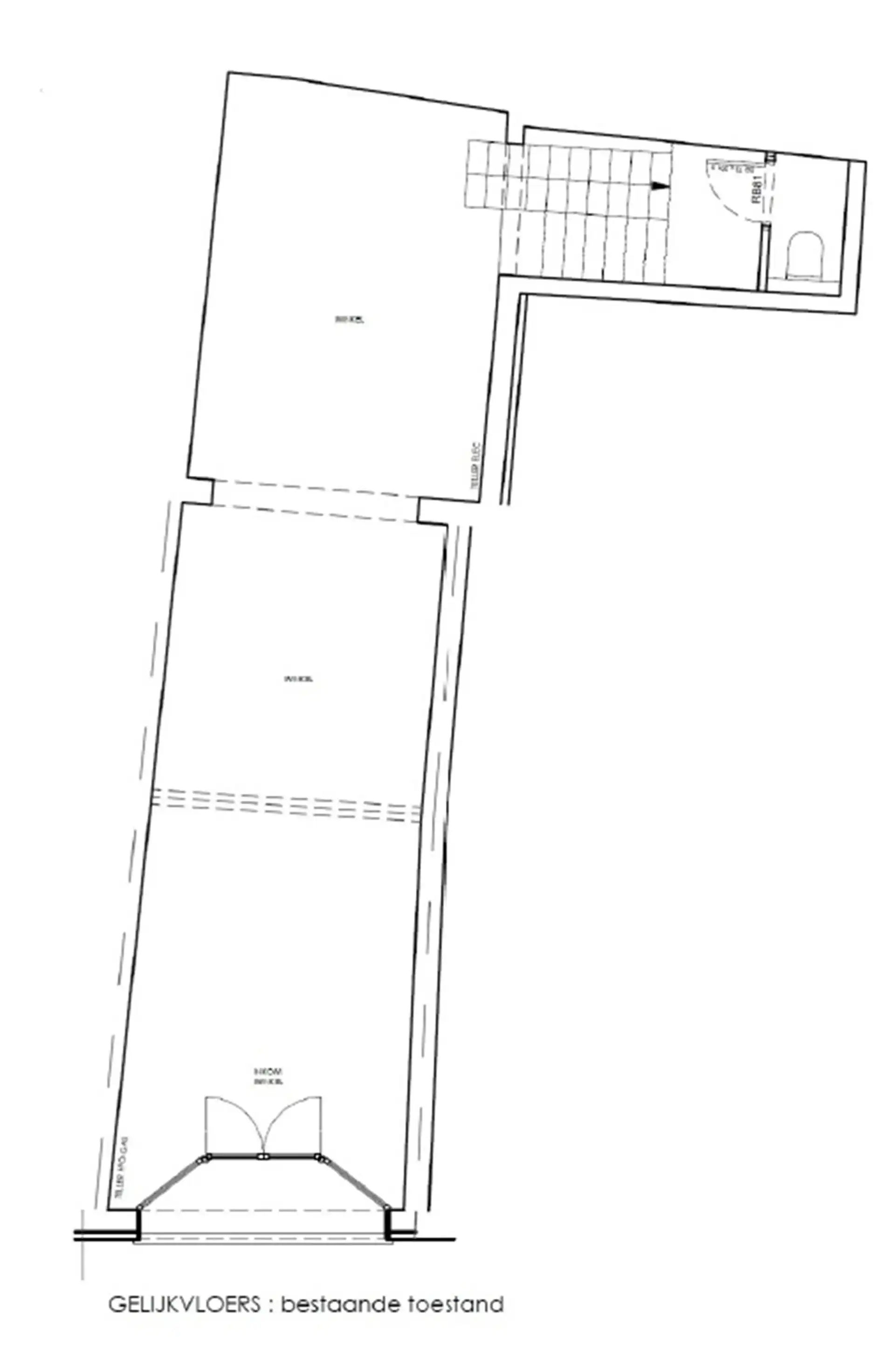
Op het gelijkvloers bevindt zich een handelsruimte van 48 m², voorzien van een praktische bergruimte en toilet. Dankzij de open indeling is deze ruimte veelzijdig inzetbaar voor diverse handelsactiviteiten (uitgezonderd horeca). De grote ramen in het inkomportaal geven een uitnodigende uitstraling.
Woonruimte
De bovenliggende verdiepingen bieden verrassend veel ruimte en mogelijkheden voor privatief gebruik:
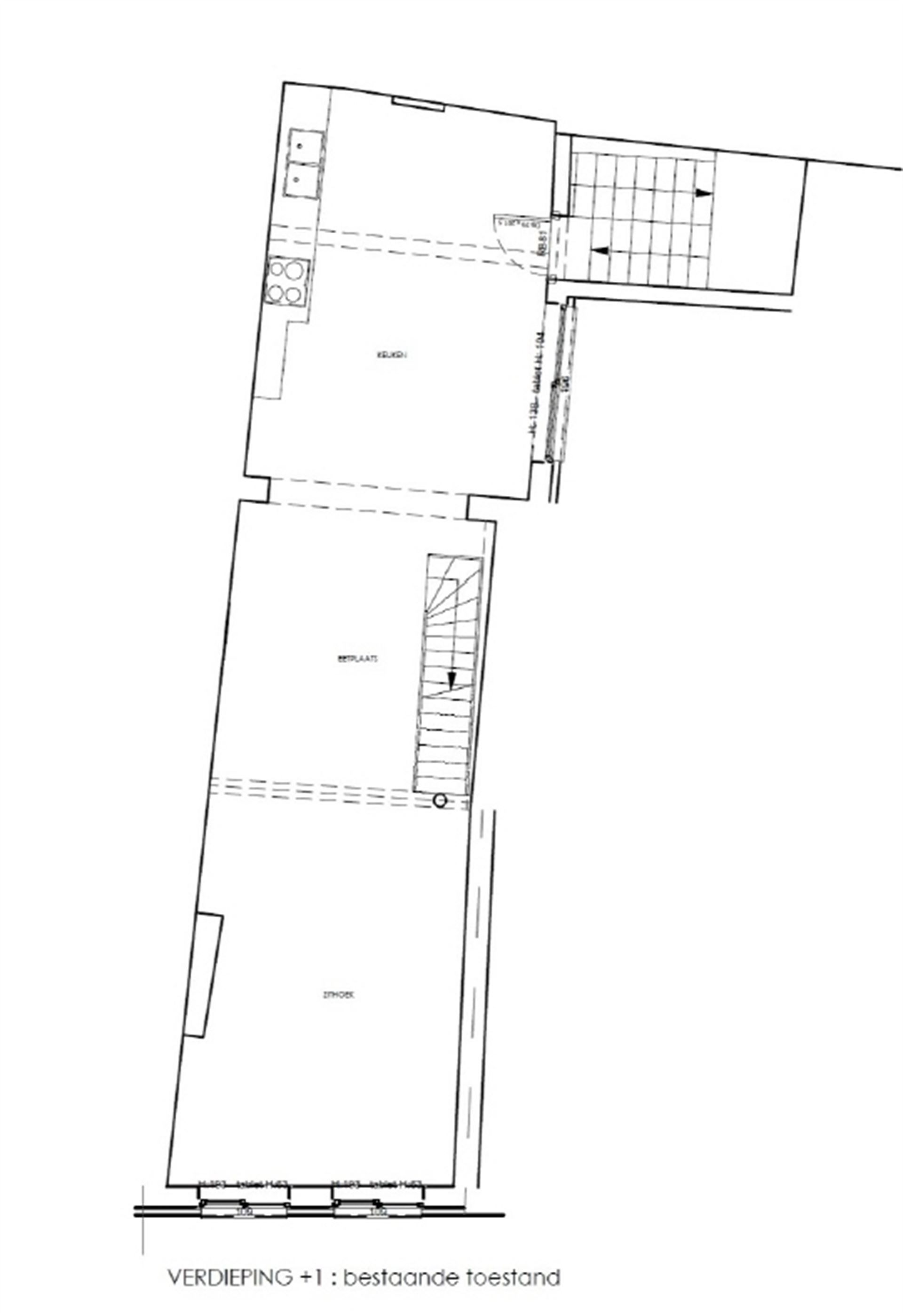
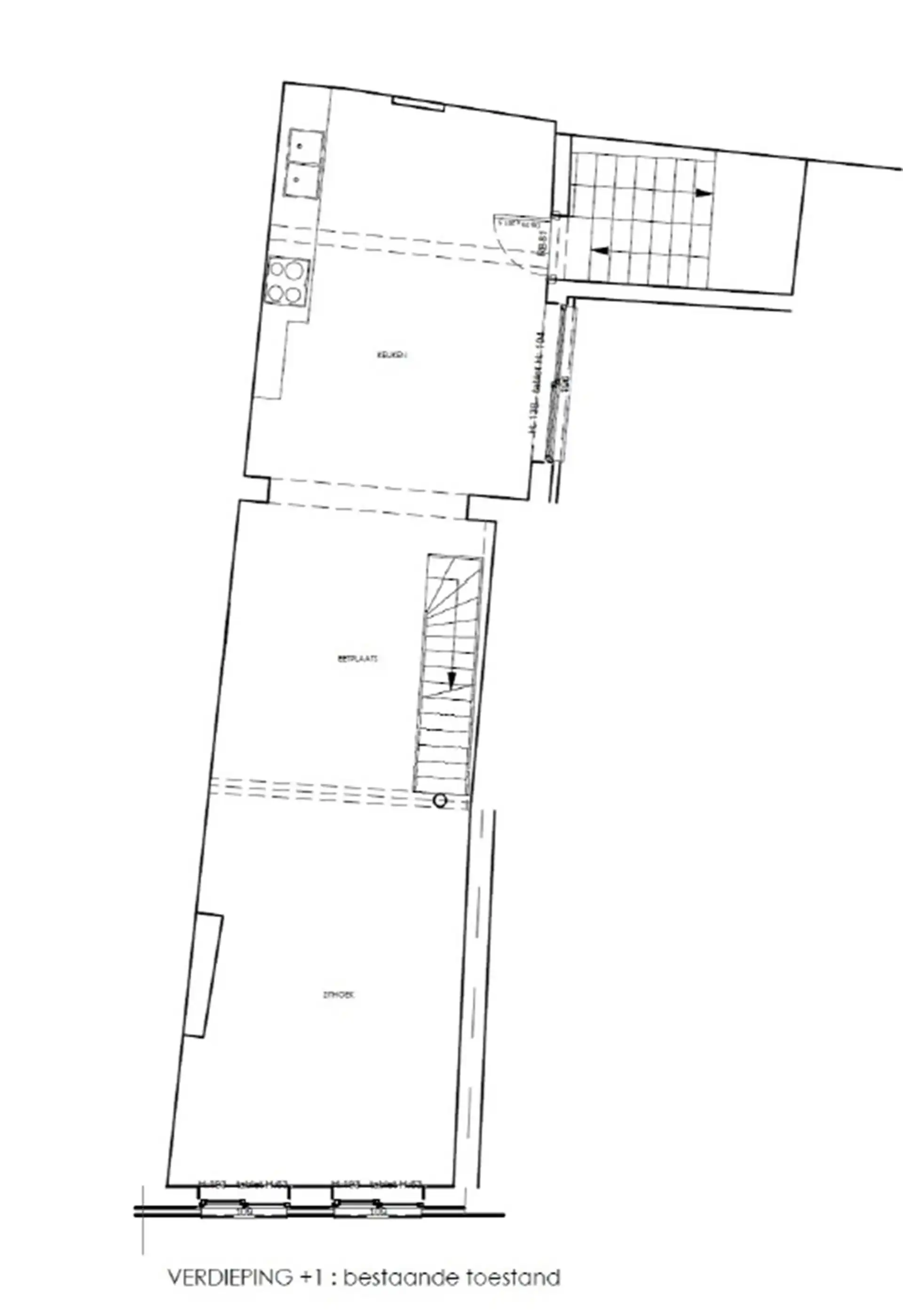
- Eerste verdieping (44 m²): een royale leefruimte met basiskeuken, die zowel kan ingericht worden als woon- en eetkamer of als bureau-/workshopruimte.
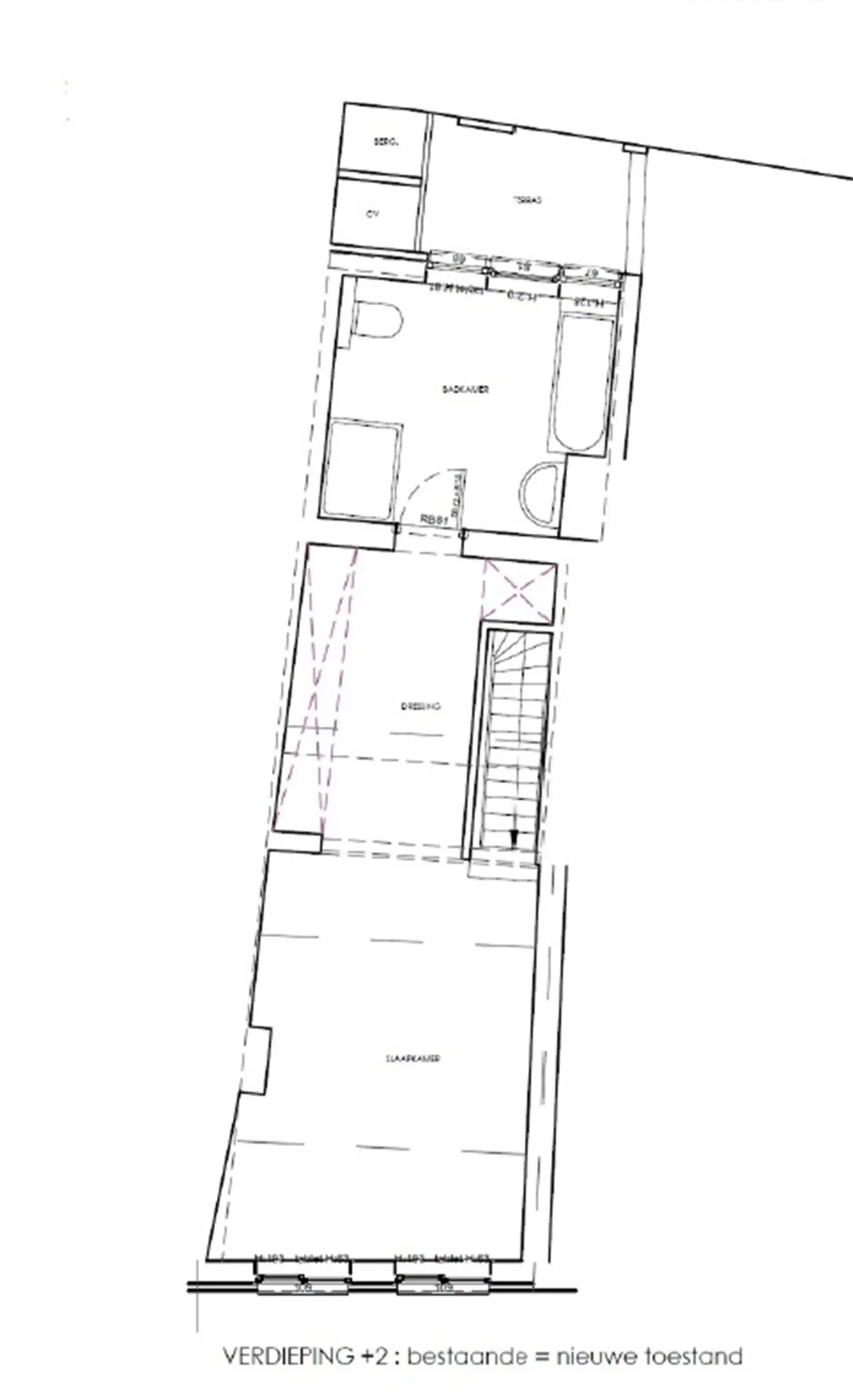
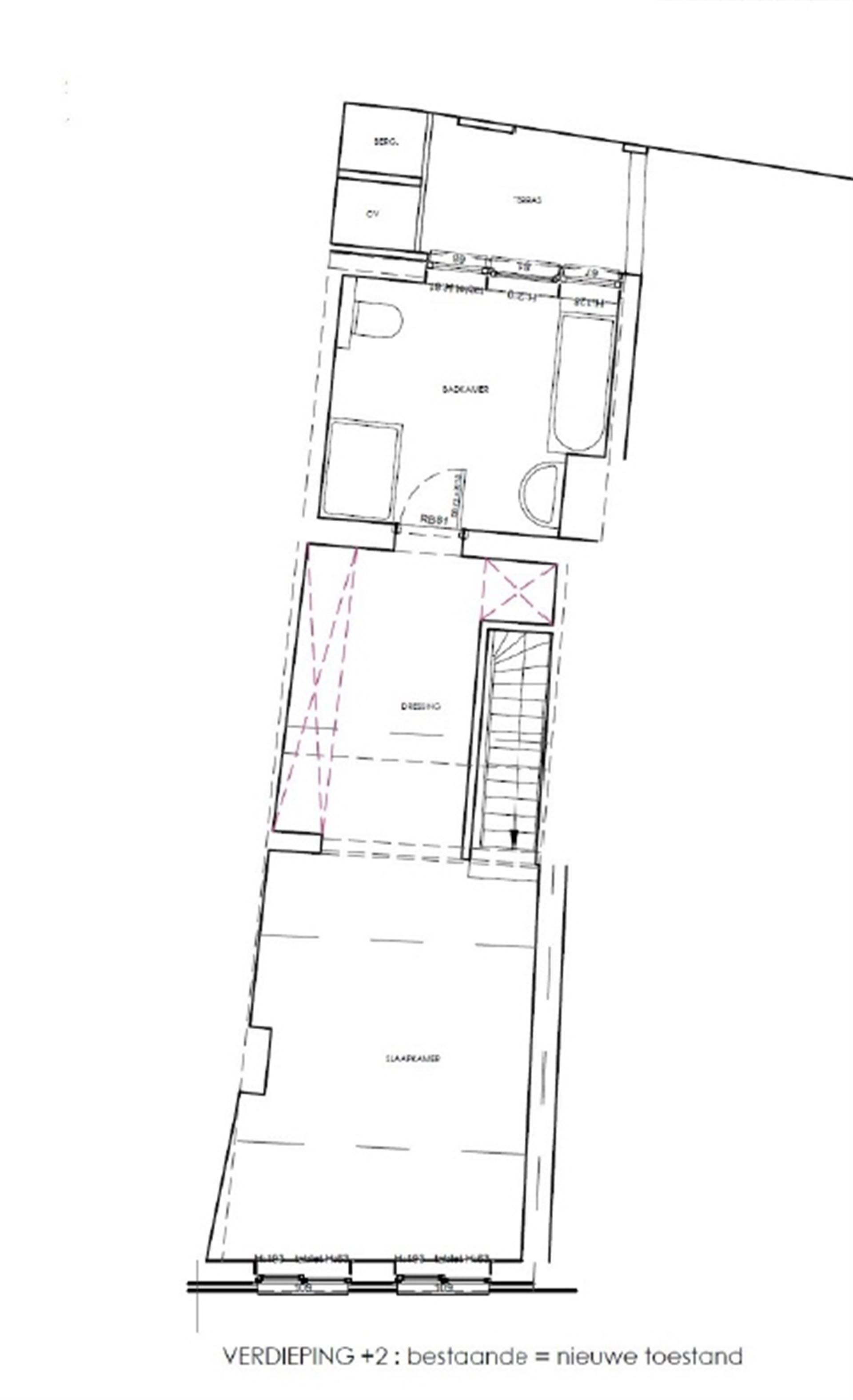
- Tweede verdieping: mogelijkheid tot ruime slaapkamer aan de voorzijde met dressing, aansluitend de badkamer met bad, douche, lavabo en toilet. Vanuit de badkamer is er toegang tot een gezellig terrasje met twee handige opbergkasten.
Het pand beschikt over een recente condenserende gaswandketel, wat zorgt voor een efficiënte verwarming. De ramen zijn momenteel nog voorzien van enkel glas.
Gelegen in een levendige en commerciële toplocatie in een winkel-wandelstraat die de Botermarkt, Grote Markt en de Bruul verbindt
Dit pand straalt karakter uit en biedt een zeldzame kans om een handelsruimte te combineren met een gezellige privatieve woonst, midden in het bruisende stadscentrum van Mechelen.
Energie
![]() |
- EPC Certificaat: 3662028
- E-peil: E0
- Verwarming: Gas
- Beglazing: Enkel
Extra budget nodig voor je renovatie?

Op de kaart

Financieel
| Prijs | |
|---|---|
| Kadastraal inkomen (niet geïndexeerd) | € 2.097 |
| Kadastraal inkomen (geïndexeerd) | € 0 |
Berekening kosten
Je aankoopkosten? Die heb je snel berekend via de knop hieronder.
Bijkomende info
Gebouw
| Bouwjaar | 1850 |
|---|---|
| Staat | Goed onderhouden |
| Bouwcertificaat | Nee |
| Bewoonbaar (m²) | 139 |
| Verdieping | 0 |
| Gevelbreedte | 4.2 |
| Badkamers | 1 |
| Slaapkamers | 1 |
| Verdiepingen | 0 |
| Garages | 0 |
| Parkeerplaatsen | 0 |
| Doucheruimtes | 0 |
| Toiletten | 2 |
Faciliteiten
| Keuken uitrusting | Standaard |
|---|---|
| Materiaal ramenomlijstingen | Hout |
| Beglazing | Enkel |
| Brandstof primaire verwarming | Gas |
| Elektrisch keuringsattest | Ja |
Perceel
| Overstromingsgevoelig | Geen |
|---|---|
| P-score | C |
| G-score | C |
| Voorkeurrecht | Nee |
| Bebouwde oppervlakte (m²) | 0 |
| Tuin oppervlakte (m²) | 0 |
| Oppervlakte terras (m²) | 3 |
Vergunning
| Vergunning | Vergunning beschikbaar |
|---|---|
| Verkavelingsvergunning | Geen beschikbaar |
Uitrusting
| Investeringspand | Nee |
|---|---|
| Geschikt voor praktijk | Nee |
| Parking | Nee |
| Garage | Nee |
| Thuiskantoor | Ja |
| Kelder | Nee |
| Zolder | Nee |
| Tuin | Nee |
| Terras | Ja |
| Lift | Nee |
| Rioolaansluiting | Nee |
| Gasaansluiting | Nee |
| Wateraansluiting | Nee |
| Elektriciteitsaansluiting | Nee |
| TV aansluiting | Nee |
| Internetaansluiting | Nee |
| Telefoonaansluiting | Nee |


