Zeer goed gelegen handelshuis + bovengelegen woonst
€ 529.000
Een pand van Altro Vastgoed Mechelen
Overzicht
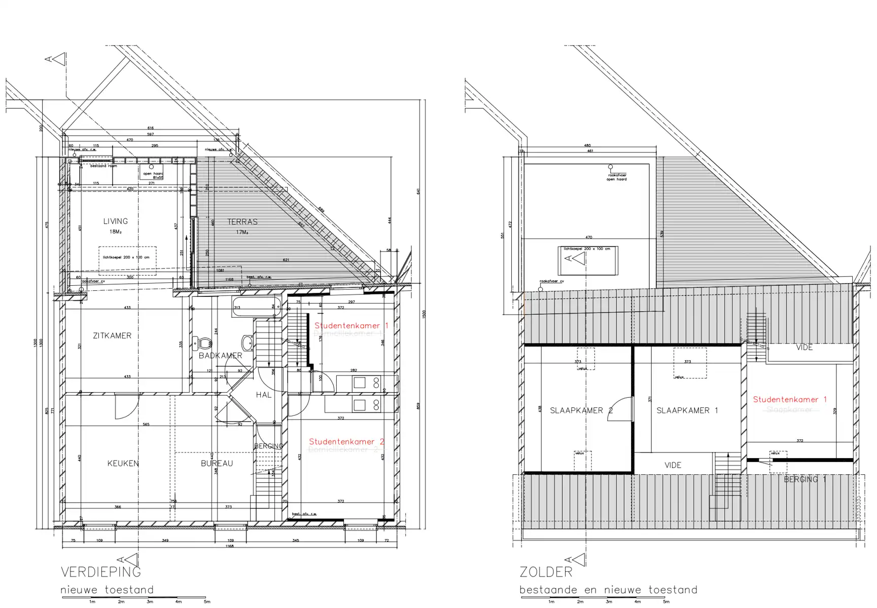
- 273 m² bewoonbaar
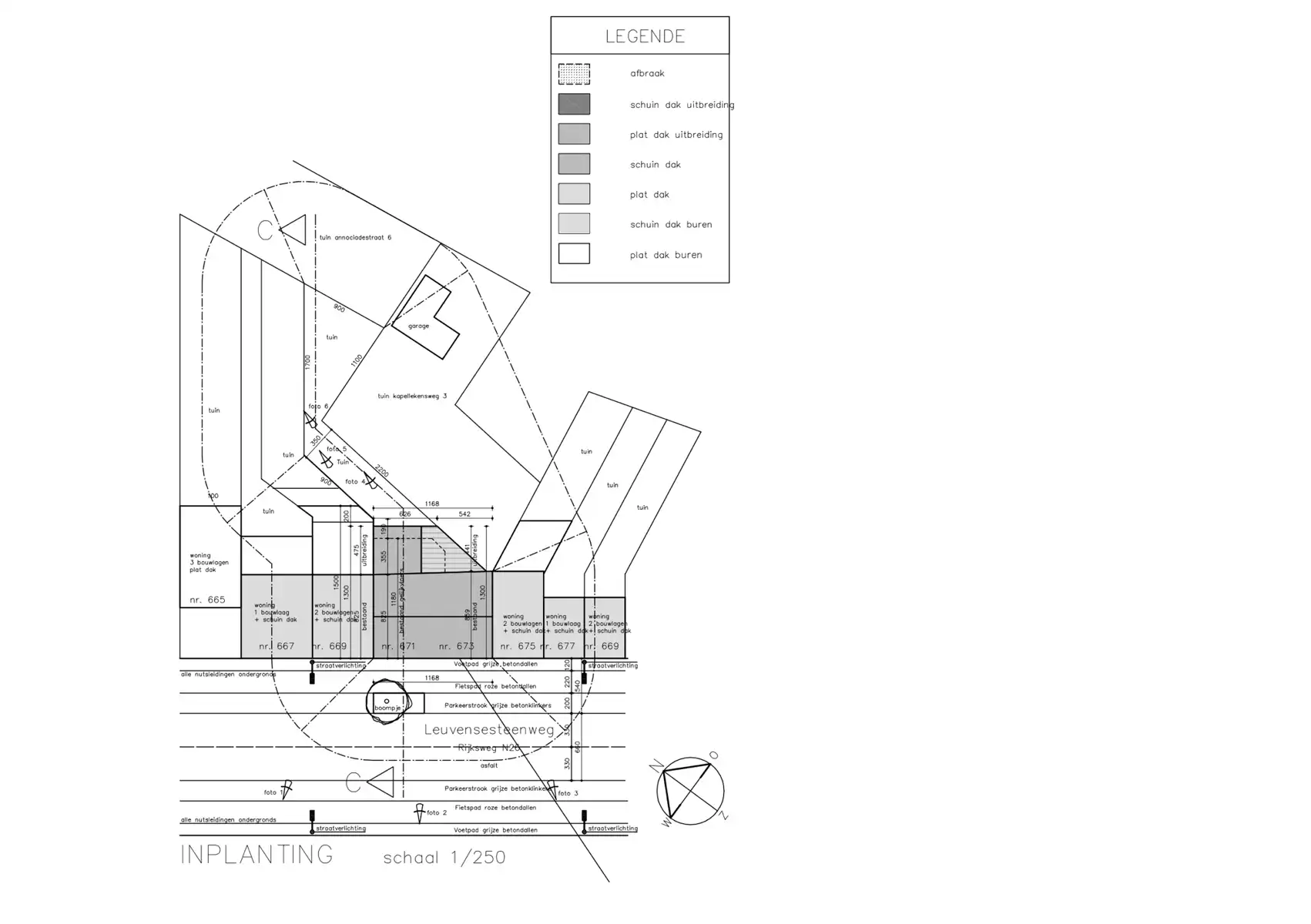
- 230 m² grond
- 4 Slaapkamer(s)
- 2 Badkamer(s)
- 3 Toilet(ten)
- 1 Tuin
Beschrijving
Ontdek dit veelzijdige handelshuis met tal van mogelijkheden, ideaal gelegen nabij Mechelen (Muizen), zeer centrale ligging richting Kampenhout - Leuven. Dit pand combineert een handelspand met polyvalente ruimte, ruime keuken en achterliggende stockage ruimte, eveneens leuk terras en tuin. Een ruim duplex appartement met een royale indeling met keuken, badkamer, bureau , 2 slaapkamers en dakterras. Bijkomstig twee afzonderlijke kamers met gedeelde badkamer – perfect als investeringsvastgoed of voor eigen bewoning met extra inkomstenpotentieel.
Aarzel niet en contacteer uw makelaar Emma via emma@altro-vastgoed.be voor meer informatie of een bezichtiging.
Veelzijdig handelshuis met duplex appartement, tuin en dakterras – topinvestering tussen Mechelen en Leuven!
Unieke opportuniteit! Dit ruime handelshuis biedt talloze mogelijkheden dankzij de combinatie van een handelspand, een duplex appartement en twee afzonderlijke kamers met kitchenette.
Het handelspand beschikt over een polyvalente ruimte, keuken met bijberging en rechtstreekse toegang tot het terras en de grote tuin. Vanuit de keuken leidt een trap naar het duplex appartement met ruime leefruimte, volledig uitgeruste keuken, bureau, badkamer, dakterras en twee slaapkamers.
Daarnaast zijn er twee aparte kamers met gedeelde badkamer, ideaal als studentenkamers of huurunits.
Extra troeven: zonnepanelen met certificaten, kelder, en een centrale ligging tussen Mechelen en Leuven.
Handelshuis - kantoor : epc D - 99m2
Duplex app : epc B - 101Kwh -129m2
Kamer 1 : epc C - 288 Kwh - 19.5m2
Kamer 2 : epc D - 392Kwh - 26m2
📩 Contacteer Emma – emma@altro-vastgoed.be voor meer info of een bezoek.
Energie
![]() |
- EPC Certificaat: 0003004178
- Energieverbruik: 101 kWh/m²/jaar
Op de kaart

Downloads
- inplanting laatst en nieuw.pdf (pdf)
- grondplannen fud & gelijkvl laatst & nieuw 2019.pdf (pdf)
- grondplannen laatst & nieuw 1ste & 2de verdiep 2019.pdf (pdf)
- Certificaat-20231002-0003004157-KNR-1.pdf (pdf)
- Certificaat-20231002-0003004177-RES-1 (1).pdf (pdf)
- Certificaat-20231003-0003004175-RES-2.pdf (pdf)
- Certificaat-20231003-0003004178-RES-2.pdf (pdf)
Financieel
| Prijs | |
|---|---|
| Kadastraal inkomen (geïndexeerd) | € 1.403 |
Berekening kosten
Je aankoopkosten? Die heb je snel berekend via de knop hieronder.
Bijkomende info
Gebouw
| Staat | Goed onderhouden |
|---|---|
| Bewoonbaar (m²) | 273 |
| Gevels | 2 |
| Badkamers | 2 |
| Slaapkamers | 4 |
| Parkeerplaatsen | 0 |
| Doucheruimtes | 1 |
| Toiletten | 3 |
Faciliteiten
| Type vloer | |
|---|---|
| Elektrisch keuringsattest | Ja |
Perceel
| P-score | A |
|---|---|
| G-score | A |
| Voorkeurrecht | Nee |
| Totale oppervlakte (m²) | 230 |
| Tuin oppervlakte (m²) | 120 |
Vergunning
| Vergunning | Vergunning beschikbaar |
|---|---|
| Verkavelingsvergunning | Geen beschikbaar |
| Bouwovertreding | Geen |
| Bouwovertreding dagvaardiging | Geen |
Uitrusting
| Geschikt voor praktijk | Ja |
|---|---|
| Parking | Nee |
| Garage | Nee |
| Thuiskantoor | Ja |
| Kelder | Ja |
| Tuin | Ja |
| Terras | Ja |
| Lift | Nee |
| Gasaansluiting | Ja |
| Wateraansluiting | Ja |
| Elektriciteitsaansluiting | Ja |
| TV aansluiting | Ja |
| Telefoonaansluiting | Ja |
| Zonnepanelen | Ja |
