Op te frissen woning te Mechelen-Zuid, nabij het Vrijbroekpark
€ 385.000
Een pand van Immo Vercammen
Overzicht
- 245 m² bewoonbaar
- 215 m² grond
- 4 Slaapkamer(s)
- 1 Badkamer(s)
- 1 Toilet(ten)
- 1 Tuin
Beschrijving
Te moderniseren gezinswoning met 4 slaapkamers (mogelijkheid tot 5 - 6 slaapkamers!) en gezellige tuin, gelegen op de stadsrand van Mechelen.
Met een bewoonbare oppervlakte van maar liefst 245 m² biedt deze woning vele mogelijkheden.
De gelijkvloerse verdieping beschikt over een ruime inkomhal met aansluitend slaapkamer, wat kan dienen als respectievelijk wachtkamer en praktijkruimte.
Verder bevinden zich hier nog een ruime living met eetkamer en aansluitend keuken en een veranda.
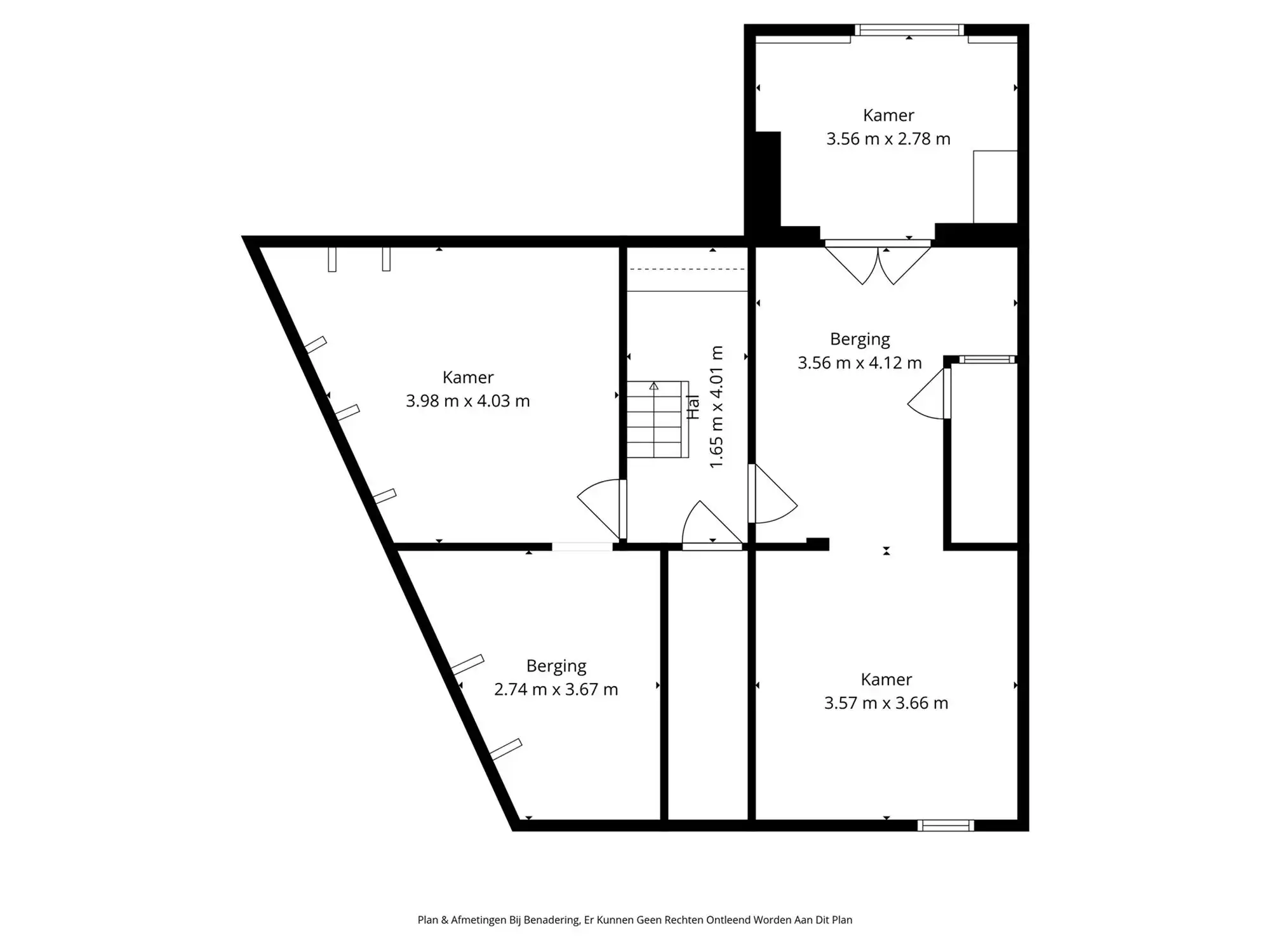
De verdieping beschikt over drie ruime slaapkamers en een badkamer dat volledig naar eigen smaak kan ingericht worden.
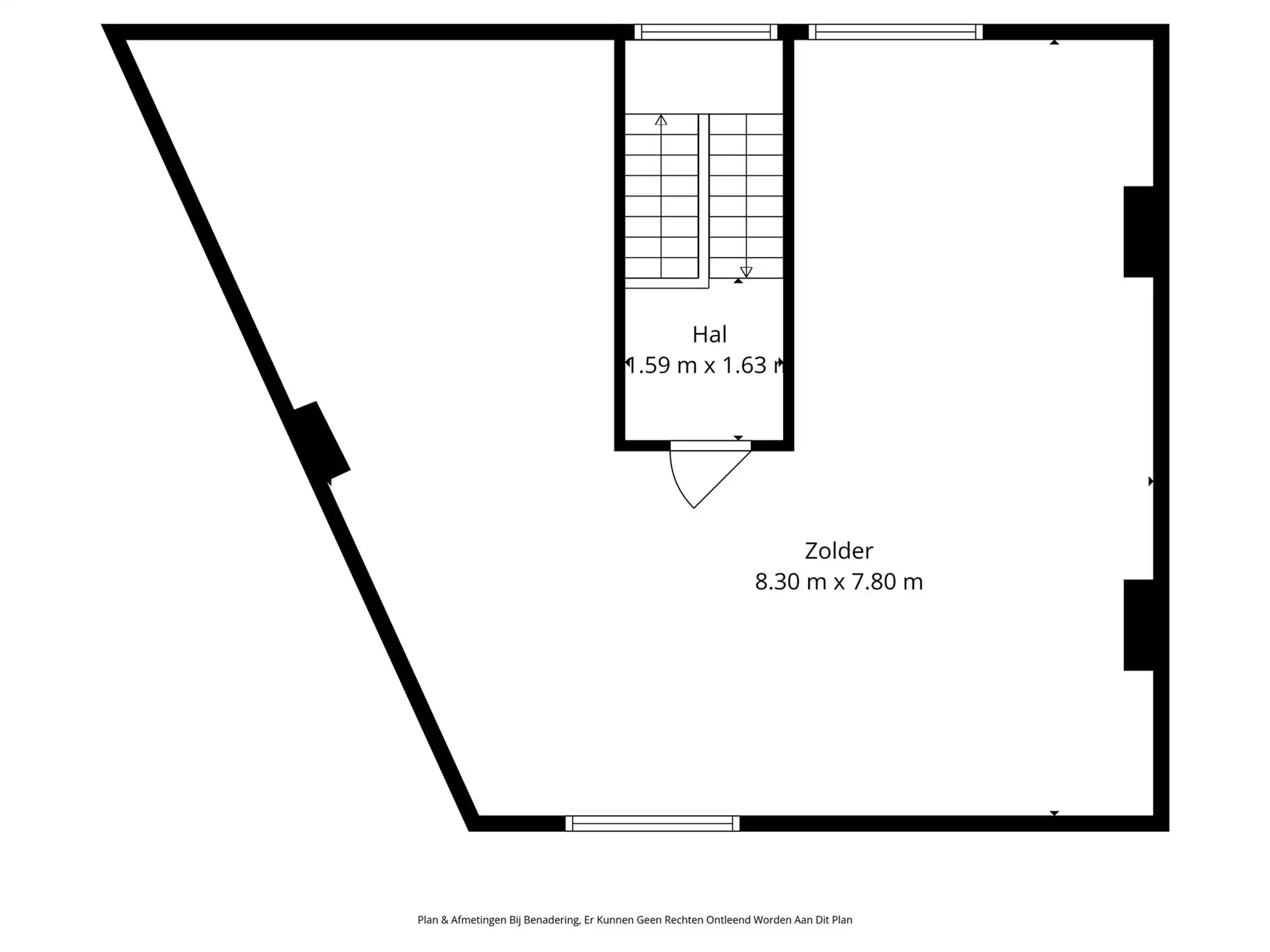
De zolderverdieping met vaste trap biedt nog voldoende ruimte om extra kamers te voorzien.
Tenslotte is het achteraan heerlijk vertoeven in de west georiënteerde tuin.
Deze aangename en ruime woning is gunstig gelegen vlakbij het Vrijbroekpark, winkels en scholen, evenals met vlotte verbinding tussen Brussel en Antwerpen via E19 en station Mechelen.
Renovatieplicht EPC: binnen 5 jaar na aankoop = verplichte renovatie tot label D of beter.
Energie
![]() |
- EPC Certificaat: 20260124-0003782907-RES-1
- Energieverbruik: 416 kWh/m²/jaar
- E-peil: E0
- Verwarming: Gas
- Beglazing: Standaard dubbel
Extra budget nodig voor je renovatie?

Op de kaart

Virtual tour
Ontdek het hele pand alvorens je bezoek via de virtuele tour, werkelijkheid gemaakt door Walkly. Geen verassingen tijdens het bezoek!
Beleef de virtuele tourFinancieel
| Prijs | |
|---|---|
| Kadastraal inkomen (niet geïndexeerd) | € 689 |
| Kadastraal inkomen (geïndexeerd) | € 0 |
Berekening kosten
Je aankoopkosten? Die heb je snel berekent via de knop hieronder.
Bijkomende info
Gebouw
| Bouwjaar | 1918 |
|---|---|
| Staat | Op te frissen |
| Bouwcertificaat | Nee |
| Bewoonbaar (m²) | 245 |
| Verdieping | 0 |
| Badkamers | 1 |
| Slaapkamers | 4 |
| Verdiepingen | 0 |
| Garages | 0 |
| Parkeerplaatsen | 0 |
| Doucheruimtes | 0 |
| Toiletten | 1 |
Faciliteiten
| Keuken uitrusting | Standaard |
|---|---|
| Materiaal ramenomlijstingen | PVC |
| Beglazing | Standaard dubbel |
| Brandstof primaire verwarming | Gas |
| Elektrisch keuringsattest | Nee |
Perceel
| Overstromingsgevoelig | Geen |
|---|---|
| P-score | A |
| G-score | A |
| Voorkeurrecht | Nee |
| Totale oppervlakte (m²) | 215 |
| Bebouwde oppervlakte (m²) | 0 |
| Tuin oppervlakte (m²) | 0 |
| Oppervlakte terras (m²) | 0 |
Vergunning
| Vergunning | Vergunning beschikbaar |
|---|---|
| Verkavelingsvergunning | Geen beschikbaar |
Uitrusting
| Investeringspand | Nee |
|---|---|
| Geschikt voor praktijk | Nee |
| Parking | Nee |
| Garage | Nee |
| Thuiskantoor | Nee |
| Kelder | Ja |
| Zolder | Ja |
| Tuin | Ja |
| Terras | Ja |
| Lift | Nee |
| Rioolaansluiting | Ja |
| Gasaansluiting | Ja |
| Wateraansluiting | Ja |
| Elektriciteitsaansluiting | Ja |
| TV aansluiting | Ja |
| Internetaansluiting | Ja |
| Telefoonaansluiting | Ja |



