Gezellige woning met 3 SLPK en garage te Mechelen
€ 310.000
Een pand van Immo Vercammen
Overzicht
- 161 m² bewoonbaar
- 200 m² grond
- 3 Slaapkamer(s)
- 1 Badkamer(s)
- 2 Toilet(ten)
- 1 Tuin
- 1 Garage(s)
Beschrijving
Verzorgde gezinswoning, gunstig gelegen op fietsafstand van bruisende stad Mechelen en Vrijbroekpark.
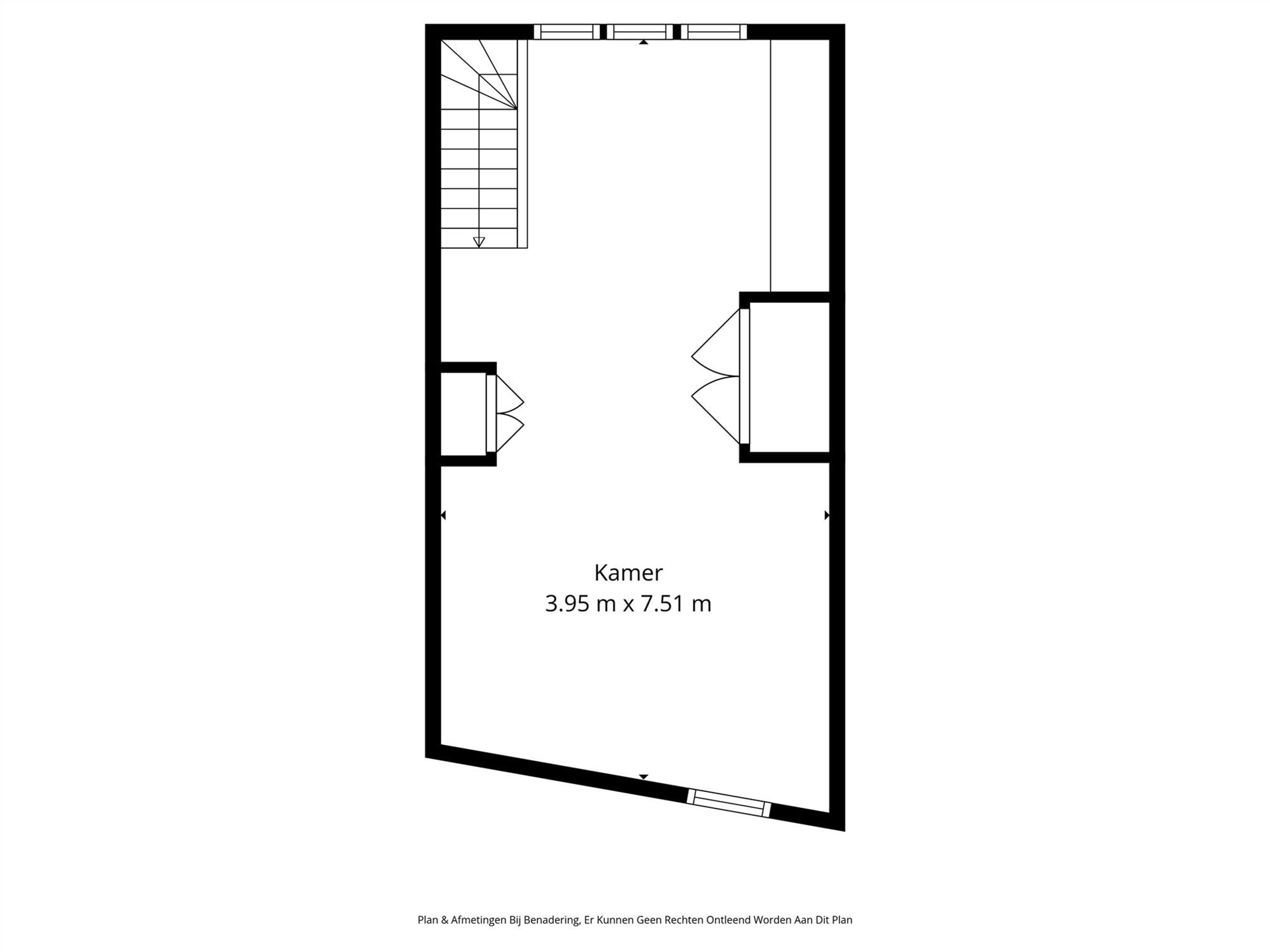
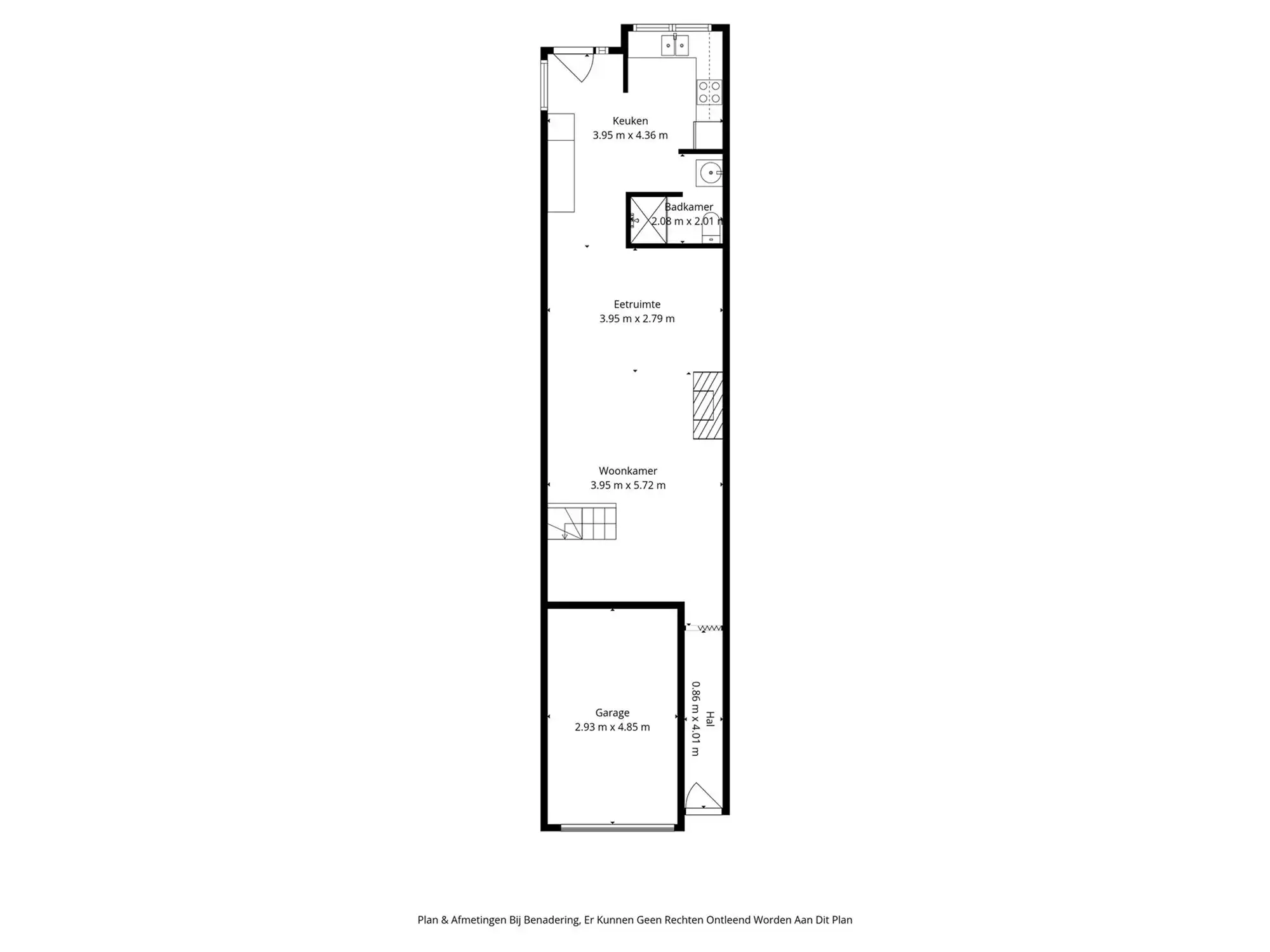
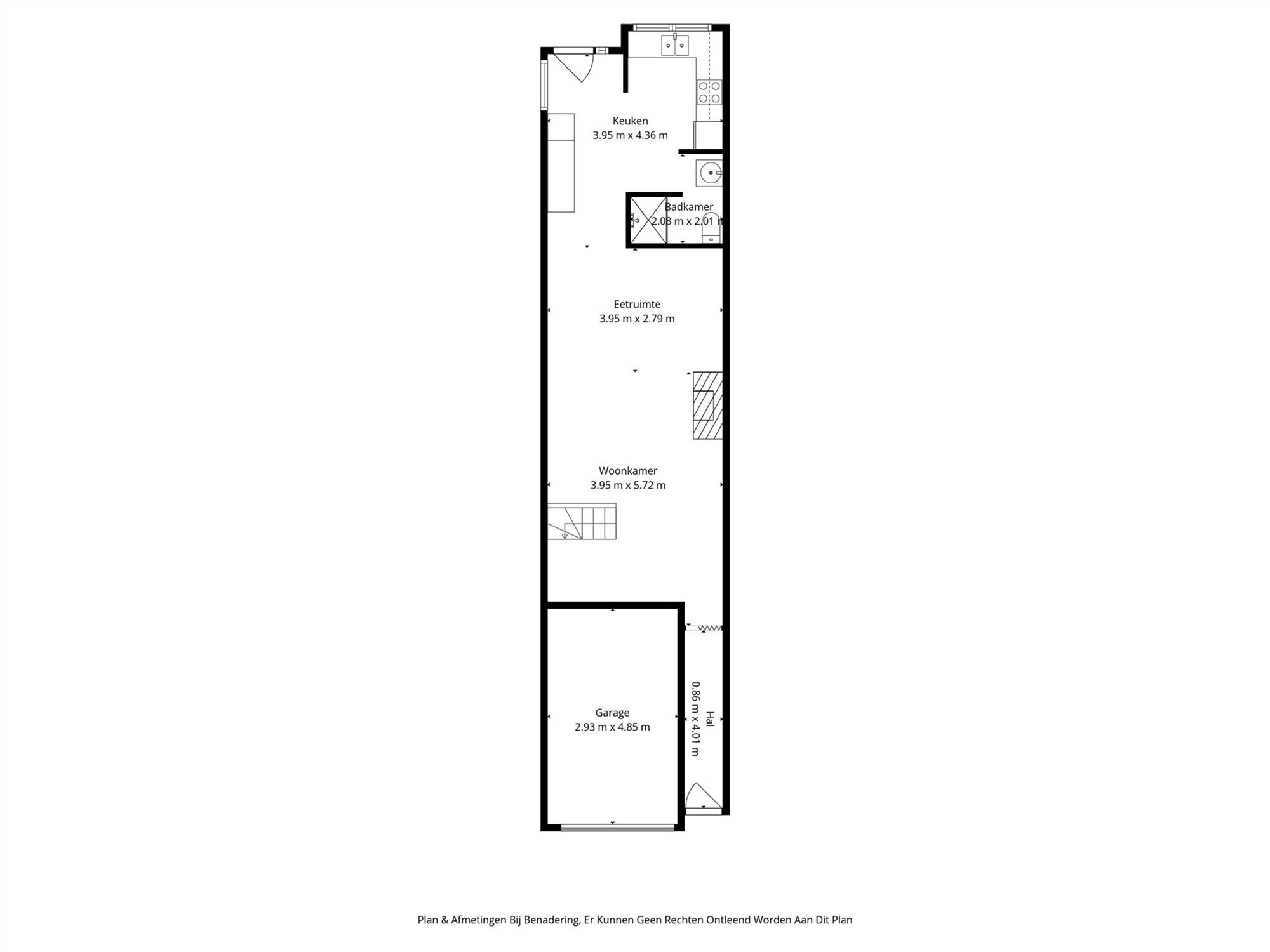
Deze aangename woning werd steeds met de grootste zorg onderhouden en grotendeels gemoderniseerd, o.a. recente condensatieketel, nieuwe daken en isolatie, ALU-ramen met dubbelglas op de verdieping, vernieuwde keuken, recente inloopdouche en aparte doucheruimte op het gelijkvloers, etc. De woning heeft een verrassend ruime bewoonbare oppervlakte en is functioneel ingedeeld. Via een inkomhal betreedt u de woning om vervolgens de gezellige woonkamer met aansluitend keuken te bereiken. Naast de keuken is een wasruimte met douche en toilet geïnstalleerd. De nachthal op de eerste verdieping geeft toegang tot 2 ruime slaapkamers en een badkamer met inloopdouche en toilet. De bovenverdieping, tevens bereikbaar via vaste trap, is heden ingericht al een grote kamer doch kan eenvoudig gesplitst worden. De inpandige garage is een mooie troef ! En indien u niet binnen wilt vertoeven, kan u heerlijk tot rust komen in de aangename tuin met ruim terras en tuinberging.
De woning is absoluut gunstig gelegen nabij bruisende stad Mechelen, met scholen - winkels - sport- en ontspanningsmogelijkheden. Het populaire Vrijbroekpark is op fietsafstand gelegen. Dankzij de centrale ligging tussen Brussel - Antwerpen is de woning vlot bereikbaar.
Kom de troeven van deze woonst ter plaatse ontdekken en maak een afspraak: 015/755 444 of info@immovercammen.be
Energie
![]() |
- Energieverbruik: 216 kWh/m²/jaar
- E-peil: E0
- Verwarming: Gas
- Beglazing: Standaard dubbel
Op de kaart

Virtual tour
Ontdek het hele pand alvorens je bezoek via de virtuele tour, werkelijkheid gemaakt door Walkly. Geen verassingen tijdens het bezoek!
Beleef de virtuele tourFinancieel
| Prijs | |
|---|---|
| Kadastraal inkomen (niet geïndexeerd) | € 699 |
| Kadastraal inkomen (geïndexeerd) | € 0 |
Berekening kosten
Je aankoopkosten? Die heb je snel berekent via de knop hieronder.
Bijkomende info
Gebouw
| Staat | Goed onderhouden |
|---|---|
| Bouwcertificaat | Nee |
| Bewoonbaar (m²) | 161 |
| Verdieping | 0 |
| Badkamers | 1 |
| Slaapkamers | 3 |
| Verdiepingen | 0 |
| Garages | 1 |
| Parkeerplaatsen | 0 |
| Doucheruimtes | 1 |
| Toiletten | 2 |
Faciliteiten
| Materiaal ramenomlijstingen | Aluminium |
|---|---|
| Beglazing | Standaard dubbel |
| Brandstof primaire verwarming | Gas |
| Elektrisch keuringsattest | Nee |
Perceel
| Overstromingsgevoelig | Geen |
|---|---|
| P-score | A |
| G-score | A |
| Voorkeurrecht | Nee |
| Totale oppervlakte (m²) | 200 |
| Bebouwde oppervlakte (m²) | 0 |
| Tuin oppervlakte (m²) | 0 |
| Oppervlakte terras (m²) | 0 |
| Oriëntatie tuin | Noord |
Vergunning
| Vergunning | Vergunning beschikbaar |
|---|
Uitrusting
| Investeringspand | Nee |
|---|---|
| Geschikt voor praktijk | Nee |
| Parking | Nee |
| Garage | Ja |
| Thuiskantoor | Nee |
| Kelder | Ja |
| Zolder | Nee |
| Tuin | Ja |
| Terras | Ja |
| Lift | Nee |
| Rioolaansluiting | Ja |
| Gasaansluiting | Ja |
| Wateraansluiting | Ja |
| Elektriciteitsaansluiting | Ja |
| TV aansluiting | Ja |
| Internetaansluiting | Ja |
| Telefoonaansluiting | Ja |
