Karaktervolle herenwoning met 4 slpk te Mechelen
Een pand van Immo Vercammen
Overzicht
- 168 m² bewoonbaar
- 110 m² grond
- 4 Slaapkamer(s)
- 1 Badkamer(s)
- 2 Toilet(ten)
- 1 Tuin
Overstromingsgevaar gebouw
Overstromingsgevaar perceel
Beschrijving
Karaktervol, te renoveren herenhuis met 4 ruime slaapkamers en een stadstuin met zicht op de Sint-Romboutstoren in Mechelen.
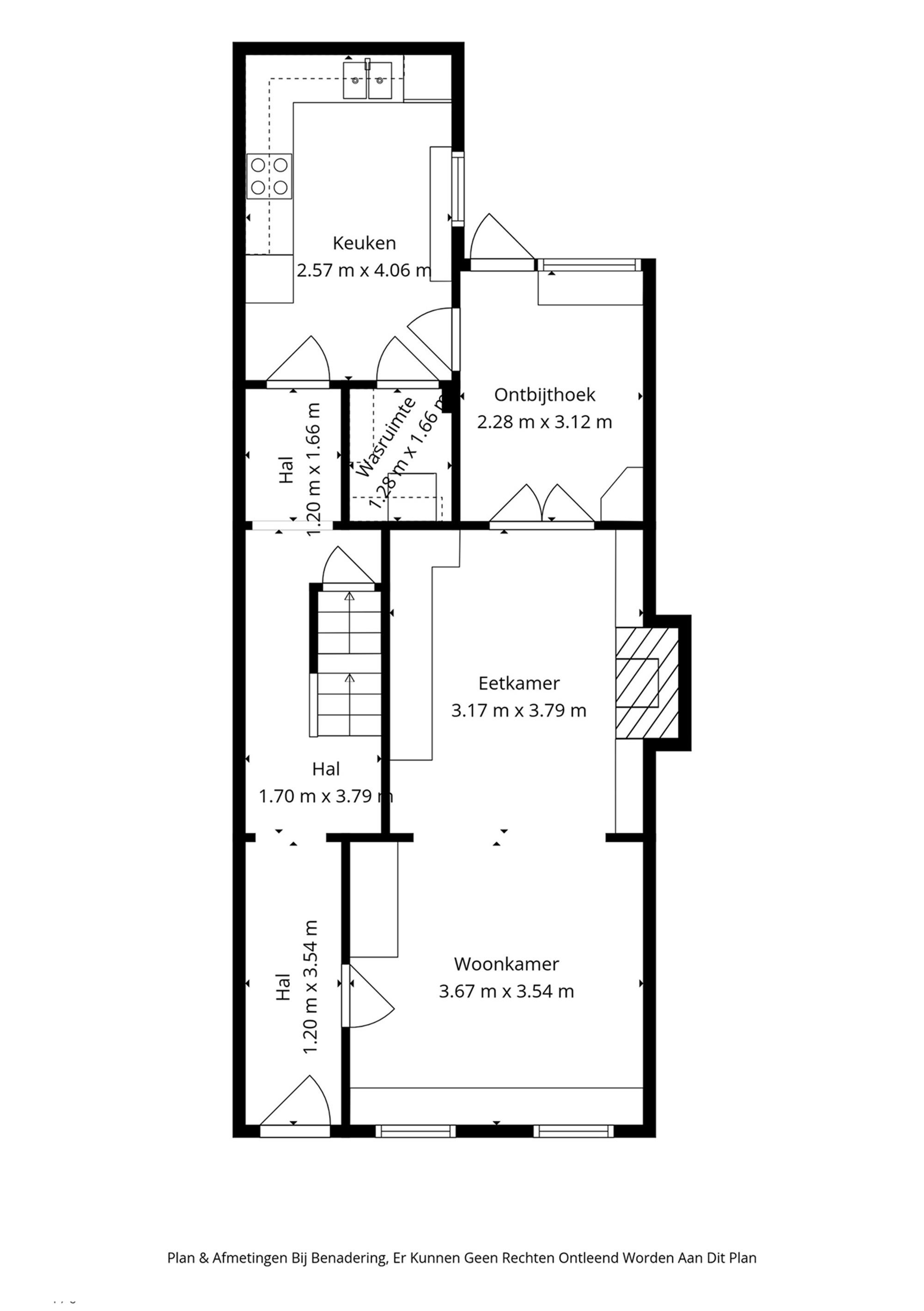
We betreden deze verrassend ruime woning via de mooie inkomhal. Deze geeft toegang tot de woon- en eetkamer en de achterliggende keuken met eethoek. Een droge kelder doet dienst als technische ruimte en voorraadplaats. De authentieke trap brengt ons naar de 3 bovenliggende verdiepingen. Op de eerste verdieping vinden we naast de eerste royale slaapkamer, de badkamer met ligbad, lavabo en toilet. Op tweede verdieping bevinden zich 2 bijkomende slaapkamers en de derde verdieping herbergt de vierde slaapkamer en een ruime bergzolder met mezzanine.
Achteraan de woning is een gezellige, zuidoost gerichte stadstuin.
De woning bevindt zich aan de zuidkant van het begijnhof, op wandelafstand van het bruisende centrum van Mechelen.
Een unieke gelegenheid om een karaktervolle woning om te vormen naar een nieuwe thuis en dit in het centrum van Mechelen !
Renovatieplicht EPC: binnen 5 jaar na aankoop = verplichte renovatie tot label D of beter.
Energie
![]() |
- EPC Certificaat: 20251205-0003750935-RES-1
- Energieverbruik: 491 kWh/m²/jaar
- E-peil: E0
- Beglazing: Enkel
Extra budget nodig voor je renovatie?

Op de kaart

Financieel
| Prijs | |
|---|---|
| Kadastraal inkomen (niet geïndexeerd) | € 619 |
| Kadastraal inkomen (geïndexeerd) | € 0 |
Berekening kosten
Je aankoopkosten? Die heb je snel berekent via de knop hieronder.
Bijkomende info
Gebouw
| Bouwjaar | 1899 |
|---|---|
| Bouwcertificaat | Nee |
| Bewoonbaar (m²) | 168 |
| Verdieping | 0 |
| Badkamers | 1 |
| Slaapkamers | 4 |
| Verdiepingen | 0 |
| Garages | 0 |
| Parkeerplaatsen | 0 |
| Doucheruimtes | 0 |
| Toiletten | 2 |
Faciliteiten
| Keuken uitrusting | Standaard |
|---|---|
| Materiaal ramenomlijstingen | Hout |
| Beglazing | Enkel |
| Elektrisch keuringsattest | Nee |
Perceel
| Overstromingsgevoelig | Geen |
|---|---|
| P-score | D |
| G-score | D |
| Voorkeurrecht | Nee |
| Totale oppervlakte (m²) | 110 |
| Bebouwde oppervlakte (m²) | 0 |
| Tuin oppervlakte (m²) | 0 |
| Oppervlakte terras (m²) | 0 |
| Oriëntatie tuin | ZuidOost |
Vergunning
| Vergunning | Aanvraag ingediend |
|---|---|
| Verkavelingsvergunning | Aanvraag ingediend |
Uitrusting
| Investeringspand | Nee |
|---|---|
| Geschikt voor praktijk | Nee |
| Parking | Nee |
| Garage | Nee |
| Thuiskantoor | Nee |
| Kelder | Ja |
| Zolder | Ja |
| Tuin | Ja |
| Terras | Nee |
| Lift | Nee |
| Rioolaansluiting | Ja |
| Gasaansluiting | Nee |
| Wateraansluiting | Ja |
| Elektriciteitsaansluiting | Ja |
| TV aansluiting | Ja |
| Internetaansluiting | Ja |
| Telefoonaansluiting | Ja |



