Knappe herenwoning in het Begijnhof te Mechelen
€ 398.000
Een pand van Immo Vercammen
Overzicht
- 164 m² bewoonbaar
- 114 m² grond
- 4 Slaapkamer(s)
- 1 Badkamer(s)
- 1 Tuin
Overstromingsgevaar gebouw
Overstromingsgevaar perceel
Beschrijving
Dit karaktervol herenhuis is uitstekend gelegen in het Begijnhof te Mechelen.
Bij binnenkomst merkt u meteen de charme van deze woning. Mooie ruimtes met hoge plafonds en veel karakter.
De gelijkvloerse verdieping bestaat heden uit een tweedelige leefruimte met aansluitend een eetkamer, vernieuwde keuken en een recente badkamer.
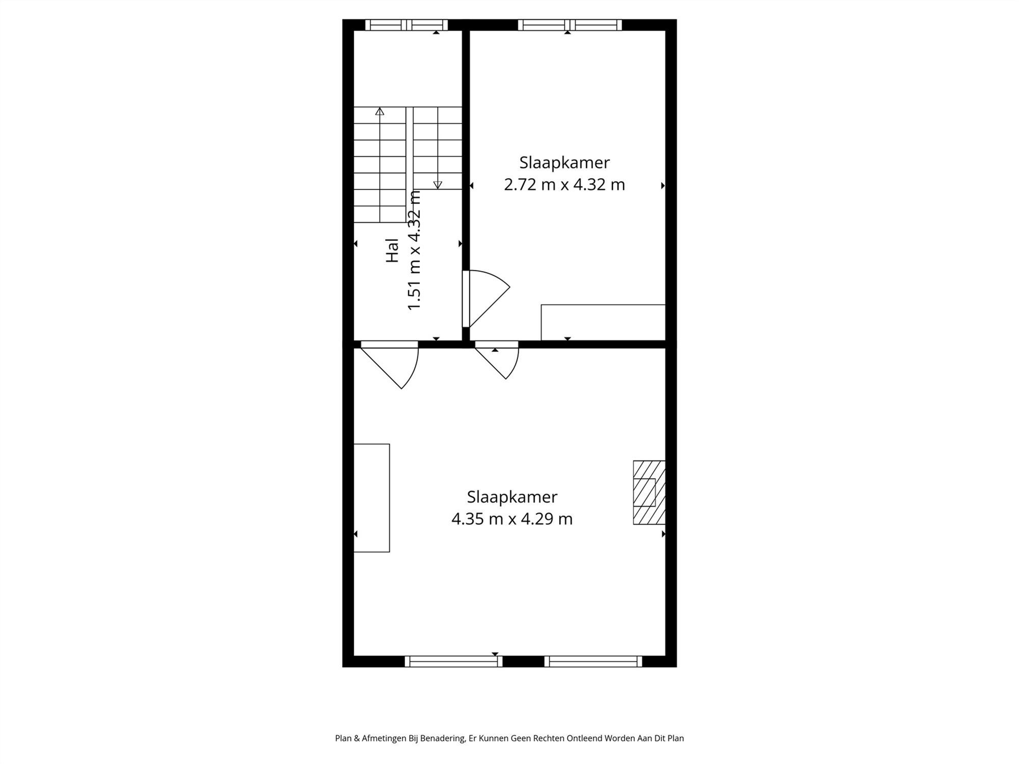
Op de eerste en tweede verdieping zijn samen nog 3 royale slaapkamers te vinden en een zolderkamer die perfect kan ingericht worden tot een 4de ruime kamer.
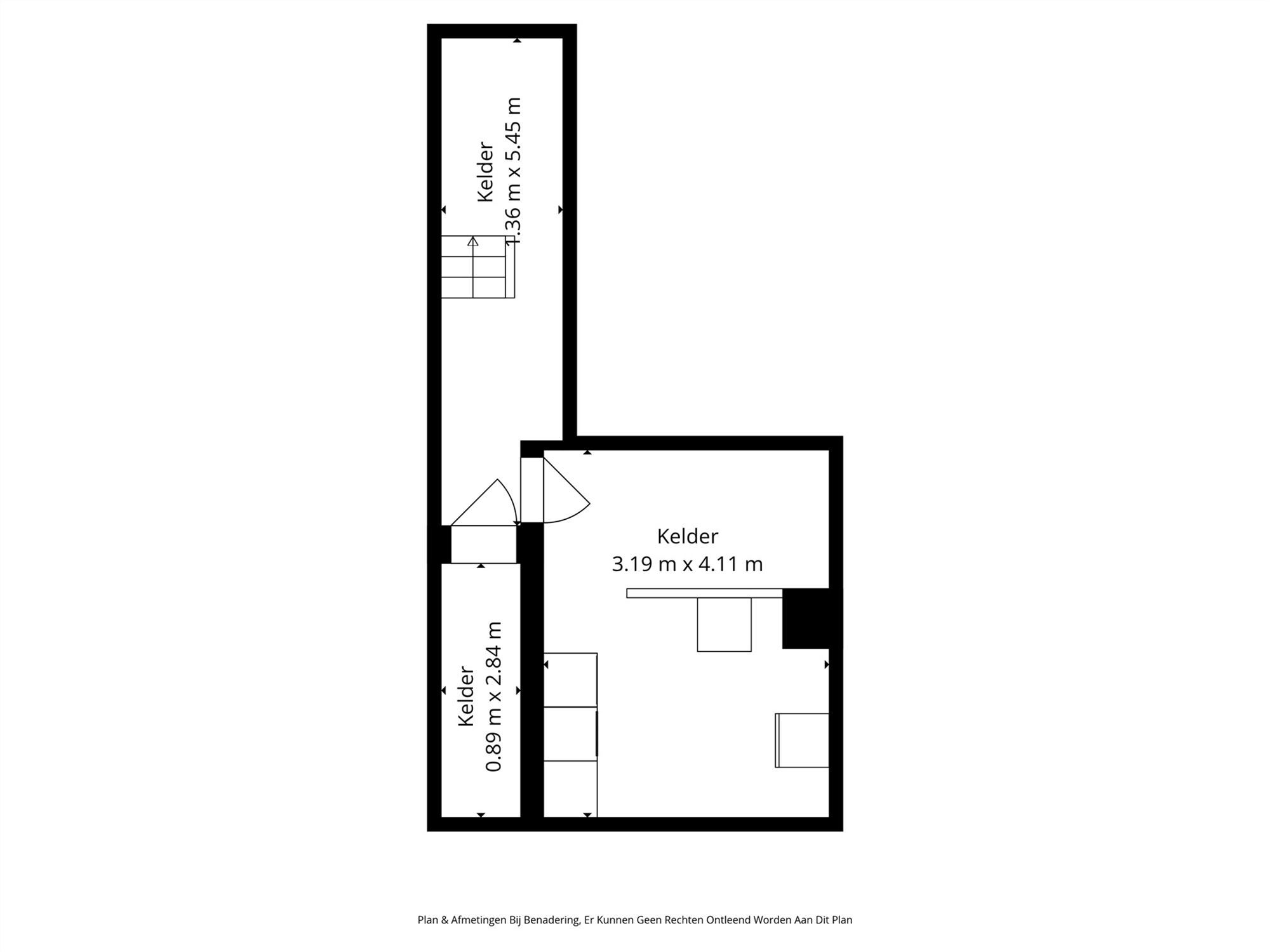
De woning is deels onderkelderd en biedt hierdoor meer dan voldoende stockageruimte.
Achteraan de woning is het heerlijk vertoeven in de stadstuin.
Optioneel kan een garagebox, recht tegenover de woning, aangekocht worden aan € 50.000.
Kortom: een direct bewoonbare, karaktervolle herenwoning, op een uitstekende locatie, met ruimte om nog je eigen stijl/smaak toe te voegen.
Renovatieplicht EPC: binnen 5 jaar na aankoop = verplichte renovatie tot label D of beter.
Energie
![]() |
- EPC Certificaat: 20250818-0003664376-RES-1
- Energieverbruik: 505 kWh/m²/jaar
- E-peil: E0
- Verwarming: Gas
- Beglazing: Standaard dubbel
Extra budget nodig voor je renovatie?

Op de kaart

Virtual tour
Ontdek het hele pand alvorens je bezoek via de virtuele tour, werkelijkheid gemaakt door Walkly. Geen verassingen tijdens het bezoek!
Beleef de virtuele tourFinancieel
| Prijs | |
|---|---|
| Kadastraal inkomen (niet geïndexeerd) | € 399 |
| Kadastraal inkomen (geïndexeerd) | € 0 |
Berekening kosten
Je aankoopkosten? Die heb je snel berekent via de knop hieronder.
Bijkomende info
Gebouw
| Bouwcertificaat | Nee |
|---|---|
| Bewoonbaar (m²) | 164 |
| Verdieping | 0 |
| Badkamers | 1 |
| Slaapkamers | 4 |
| Verdiepingen | 0 |
| Garages | 0 |
| Parkeerplaatsen | 0 |
| Doucheruimtes | 0 |
| Toiletten | 0 |
Faciliteiten
| Keuken uitrusting | Standaard |
|---|---|
| Beglazing | Standaard dubbel |
| Brandstof primaire verwarming | Gas |
| Elektrisch keuringsattest | Nee |
Perceel
| Overstromingsgevoelig | Mogelijk overstromingsgevoelig |
|---|---|
| P-score | D |
| G-score | D |
| Voorkeurrecht | Nee |
| Totale oppervlakte (m²) | 114 |
| Bebouwde oppervlakte (m²) | 0 |
| Tuin oppervlakte (m²) | 0 |
| Oppervlakte terras (m²) | 0 |
| Oriëntatie tuin | Zuid |
Vergunning
| Vergunning | Vergunning beschikbaar |
|---|
Uitrusting
| Investeringspand | Nee |
|---|---|
| Geschikt voor praktijk | Nee |
| Parking | Nee |
| Garage | Nee |
| Thuiskantoor | Nee |
| Kelder | Ja |
| Zolder | Ja |
| Tuin | Ja |
| Terras | Ja |
| Lift | Nee |
| Rioolaansluiting | Ja |
| Gasaansluiting | Ja |
| Wateraansluiting | Ja |
| Elektriciteitsaansluiting | Ja |
| TV aansluiting | Ja |
| Internetaansluiting | Ja |
| Telefoonaansluiting | Ja |



