Charmante, verrassend ruime, op te frissen woning met 3 slaapkamers, garage en zonnig tuintje op fietsafstand van Mechelen centrum!
€ 365.000
Een pand van ReuzeGoed
Jouw zoektocht
Overzicht
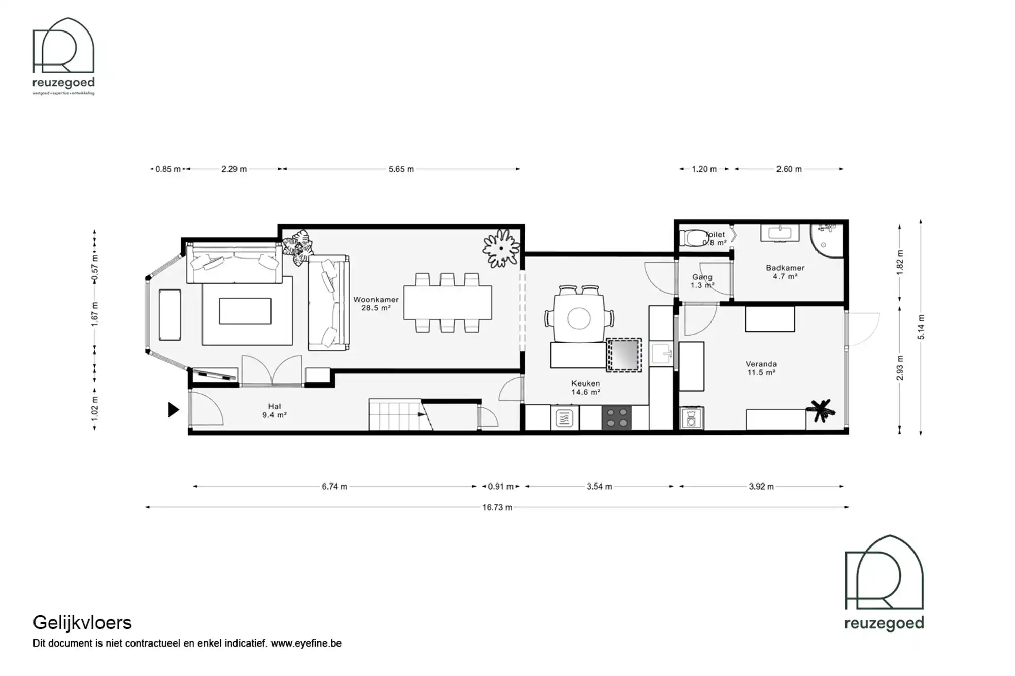
- 164 m² bewoonbaar
- 230 m² grond
- 3 Slaapkamer(s)
- 1 Badkamer(s)
Overstromingsgevaar gebouw
Overstromingsgevaar perceel
Beschrijving
Charmante, verrassend ruime, op te frissen woning met 3 slaapkamers, garage en zonnig tuintje op fietsafstand van Mechelen centrum!
Op zoek naar een karaktervolle woning met ruimte, licht én potentieel? Dan is deze goed onderhouden gezinswoning zeker een bezoek waard. Met een kleine voortuin en een gezellige, westgerichte achtertuin geniet u hier volop van de namiddag- en avondzon. De aanwezigheid van een garagebox achteraan, bereikbaar via een handige achtertoegang, is bovendien een grote troef.
Binnenkomen doet u via de inkomhal, die leidt naar de lichtrijke leefruimte met eetplaats. Dankzij de grote raampartijen geniet deze ruimte van natuurlijk licht. Aansluitend vindt u een verzorgde keuken en een badkamer met douche op het gelijkvloers. De veranda vormt een extra troef.
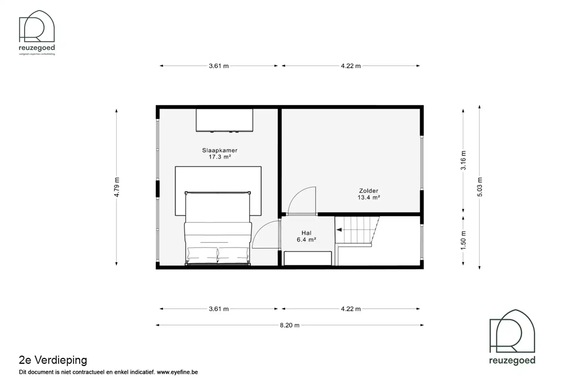
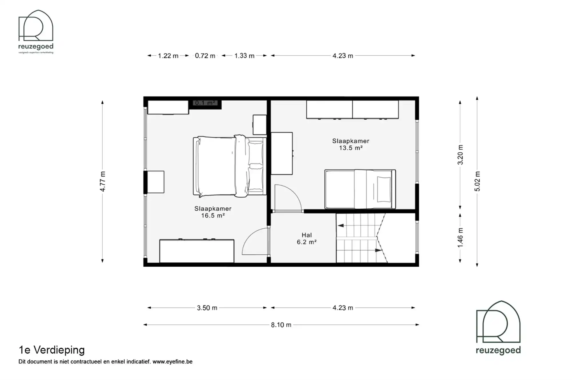
Op de eerste verdieping bevinden zich twee bijzonder ruime slaapkamers. De tweede verdieping biedt nog een derde ruime slaapkamer en een zolderruimte met mogelijkheden ideaal voor wie graag zijn eigen stempel drukt en extra ruimte wil creëren.
Met een EPC-label C is er geen renovatieverplichting. De woning is asbestveilig, al is de elektriciteit momenteel niet conform en kunnen bepaalde elementen een opfrissing gebruiken een mooie kans om deze woning verder naar uw smaak te moderniseren.
Gelegen in een aangename buurt met tal van voorzieningen in de nabije omgeving én het bruisende centrum van Mechelen op fietsafstand, combineert deze woning comfort, ligging en potentieel.
Laat u verrassen en plan snel uw bezoek met ReuzeGoed via welkom@reuzegoed.be of 0470 11 56 80!
Energie
![]() |
- Energieverbruik: 237 kWh/m²/jaar
- E-peil: E0
- Verwarming: Gas
- Beglazing: Onbekend
Op de kaart

Financieel
| Prijs | |
|---|---|
| Kadastraal inkomen (niet geïndexeerd) | € 780 |
| Kadastraal inkomen (geïndexeerd) | € 0 |
Berekening kosten
Je aankoopkosten? Die heb je snel berekend via de knop hieronder.
Bijkomende info
Gebouw
| Bouwjaar | 1930 |
|---|---|
| Staat | Op te frissen |
| Bouwcertificaat | Nee |
| Bewoonbaar (m²) | 164 |
| Verdieping | 0 |
| Gevelbreedte | 4.7 |
| Badkamers | 1 |
| Slaapkamers | 3 |
| Verdiepingen | 0 |
| Garages | 0 |
| Parkeerplaatsen | 1 |
| Doucheruimtes | 0 |
| Toiletten | 0 |
Faciliteiten
| Keuken uitrusting | Luxueus uitgerust |
|---|---|
| Brandstof primaire verwarming | Gas |
| Elektrisch keuringsattest | Nee |
Perceel
| Breedte (m) | 4 |
|---|---|
| Overstromingsgevoelig | Geen |
| P-score | D |
| G-score | D |
| Voorkeurrecht | Nee |
| Totale oppervlakte (m²) | 230 |
| Bebouwde oppervlakte (m²) | 0 |
| Tuin oppervlakte (m²) | 0 |
| Oppervlakte terras (m²) | 0 |
| Oriëntatie tuin | West |
Vergunning
| Vergunning | Vergunning beschikbaar |
|---|---|
| Verkavelingsvergunning | Geen beschikbaar |
Uitrusting
| Investeringspand | Nee |
|---|---|
| Geschikt voor praktijk | Nee |
| Parking | Ja |
| Garage | Nee |
| Thuiskantoor | Nee |
| Kelder | Ja |
| Zolder | Ja |
| Tuin | Nee |
| Terras | Nee |
| Lift | Nee |
| Rioolaansluiting | Ja |
| Gasaansluiting | Ja |
| Wateraansluiting | Ja |
| Elektriciteitsaansluiting | Ja |
| TV aansluiting | Ja |
| Internetaansluiting | Ja |
| Telefoonaansluiting | Ja |
