Bouwgrond voor halfopen bebouwing aan het Vrijbroekpark!
€ 199.000
Een pand van IMMO ID
Overzicht
- 272 m² grond
- 1 Garage(s)
Beschrijving
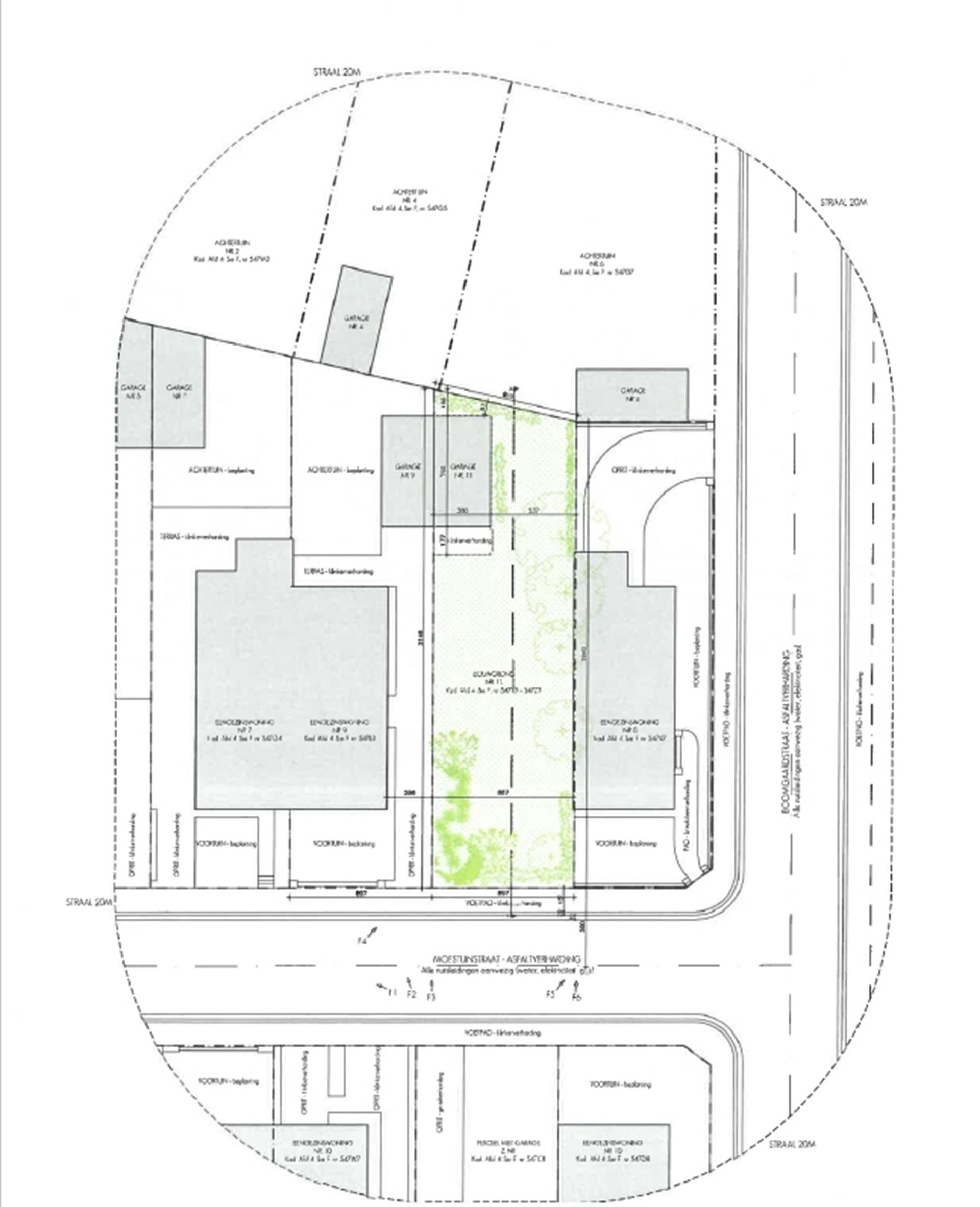
Bouwgrond met vergunning voor halfopen bebouwing in rustige doodlopende straat Mechelen Zuid
Op een steenworp van het Vrijbroekpark vind je dit mooi gelegen perceel van 272 m², ideaal voor de realisatie van een halfopen gezinswoning met tuin en veel natuurlijke lichtinval.
Het perceel heeft een straatbreedte van 8,87 m en een diepte van ca. 30 m.
Extra troef: er is reeds een bouwvergunning én een stabiliteitsstudie beschikbaar. De vergunde plannen liggen klaar, waardoor je meteen kan starten met de uitvoering. De woning sluit aan op de bouwlijnen van het aanpalende pand en voorziet een bewoonbare oppervlakte van ca. 175 m² + kelder.
Een zeldzame kans in een groene, rustige buurt met vlotte bereikbaarheid.
Interesse? Maak een afspraak bij ons op kantoor. Daar bekijken we samen de vergunde plannen en lichten we graag toe welke mogelijkheden er zijn voor dit perceel. Contacteer ons om je moment vast te leggen.
Energie
- E-peil: E0
- Beglazing: Onbekend
Op de kaart

Financieel
| Prijs | |
|---|---|
| Kadastraal inkomen (niet geïndexeerd) | € 76 |
| Kadastraal inkomen (geïndexeerd) | € 0 |
Berekening kosten
Je aankoopkosten? Die heb je snel berekent via de knop hieronder.
Bijkomende info
Gebouw
| Bouwcertificaat | Nee |
|---|
Perceel
| Diepte (m) | 30 |
|---|---|
| Breedte (m) | 8 |
| Overstromingsgevoelig | Geen |
| P-score | A |
| Voorkeurrecht | Nee |
| Totale oppervlakte (m²) | 272 |
Vergunning
| Vergunning | Vergunning beschikbaar |
|---|---|
| Verkavelingsvergunning | Vergunning beschikbaar |
Uitrusting
| Investeringspand | Nee |
|---|---|
| Rioolaansluiting | Nee |
| Gasaansluiting | Nee |
| Wateraansluiting | Nee |
| Elektriciteitsaansluiting | Nee |
| TV aansluiting | Nee |
| Internetaansluiting | Nee |
| Telefoonaansluiting | Nee |