Hoekpand handelspand met toekomstpotentieel
€ 195.000
Een pand van Altro Vastgoed Mechelen
Overzicht
- 116 m² bewoonbaar
- 116 m² grond
- 1 Garage(s)
Beschrijving
Unieke kans: karaktervol hoekpand in een zone-30 straat in Hombeek (Mechelen), met veel passage en een bushalte voor de deur. De indrukwekkende historische gevel – momenteel in opknapfase – geeft het pand extra uitstraling en zichtbaarheid. Binnen vindt u een ruime, solide structuur met een inpandige garage voor 1 wagen: een zeldzame troef.
Dit is een pand waar alle mogelijkheden nog openliggen. Renoveer naar uw visie en realiseer wat u voor ogen hebt: kantoorruimte, kinesitherapiepraktijk, boetiek, showroom, atelier, coworking of een slimme mix. Dankzij de hoekligging stroomt er veel natuurlijk licht binnen, wat een aangename, commerciële en inspirerende setting creëert.
Locatieplus: Hombeek is een groene deelgemeente van Mechelen, strategisch gelegen op de as Antwerpen–Brussel. U geniet er van rust en natuur – met o.a. de Eglegemvijver nabij – terwijl het bruisende Mechelse centrum op enkele minuten ligt. Bereikbaarheid, zichtbaarheid en leefkwaliteit komen hier samen.
Zoekt u een investering met karakter, visibiliteit en toekomstpotentieel? Dit pand is uw canvas. Kom ter plaatse kijken en laat u overtuigen door de combinatie van historische charme, sterke ligging en eindeloze invulbaarheid.
Uw volgende hoofdstuk begint hier, in Hombeek.
ONTDEK UW TOEKOMSTIGE HANDELSPAND IN HOMBEEK – FRANS REYNIERSSTRAAT 46A
Unieke kans: dit karaktervolle hoekpand in een rustige zone-30 straat in Hombeek (Mechelen) biedt een zeldzame combinatie van zichtbaarheid, bereikbaarheid én flexibiliteit. Dankzij de gunstige ligging is er aanzienlijke voorbijgang – een bushalte pal voor de deur versterkt de toegankelijkheid – wat dit pand uitermate geschikt maakt als commerciële trekker of multifunctionele investering.
De voorgevel is een echte blikvanger: een indrukwekkende historische gevel, momenteel in opknapfase, die het pand extra uitstraling en prestige verleent. Achter deze fraaie gevel schuilt een ruime, solide structuur met een inpandige garage voor één wagen – een zeldzame troef in deze omgeving.
Het geheel wacht op uw visie: renoveer naar eigen inzicht en geef er vorm aan wat ú voor ogen hebt. Van kantoorruimtes tot een kinesitherapiepraktijk, van stijlvolle boetiek tot creatieve coworkingruimte – alles is mogelijk.
Hombeek is een groene deelgemeente van Mechelen, strategisch gelegen op de as Antwerpen–Brussel. U geniet er van rust en natuur – met onder meer de Eglegemvijver om de hoek – terwijl het bruisende Mechelse centrum slechts enkele minuten verwijderd is.
Dankzij de hoekligging valt er veel natuurlijk licht binnen, wat een aangename en inspirerende werkomgeving creëert.
Voor wie op zoek is naar een investering met karakter en toekomstpotentieel: dit pand is uw ideale canvas. Kom ter plaatse kijken en laat u overtuigen door de combinatie van historische charme en eindeloze mogelijkheden.
Interesse? Neem vandaag nog contact op om een bezichtiging te plannen. Uw toekomst begint hier, in Hombeek.
emma@altro-vastgoed.be
Energie
![]() |
- EPC Certificaat: 20250620-0003627298-KNR-1
Op de kaart

Downloads
- asbestattest - Frans Reyniersstraat 46A, 2811 Mechelen.pdf (pdf)
- EPC-gemenedelen.pdf (pdf)
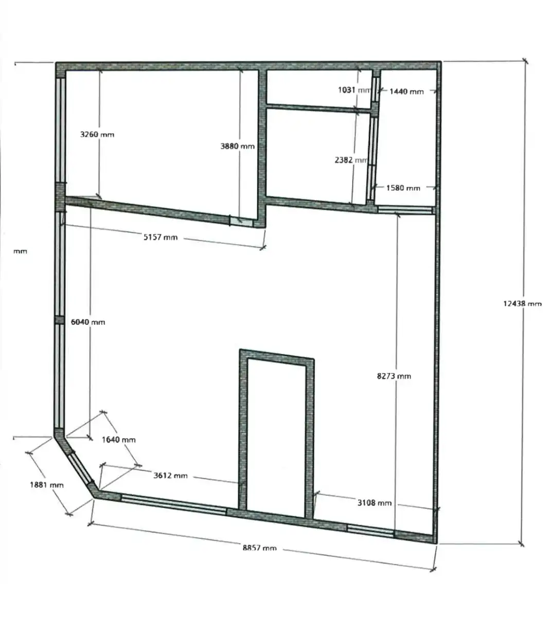
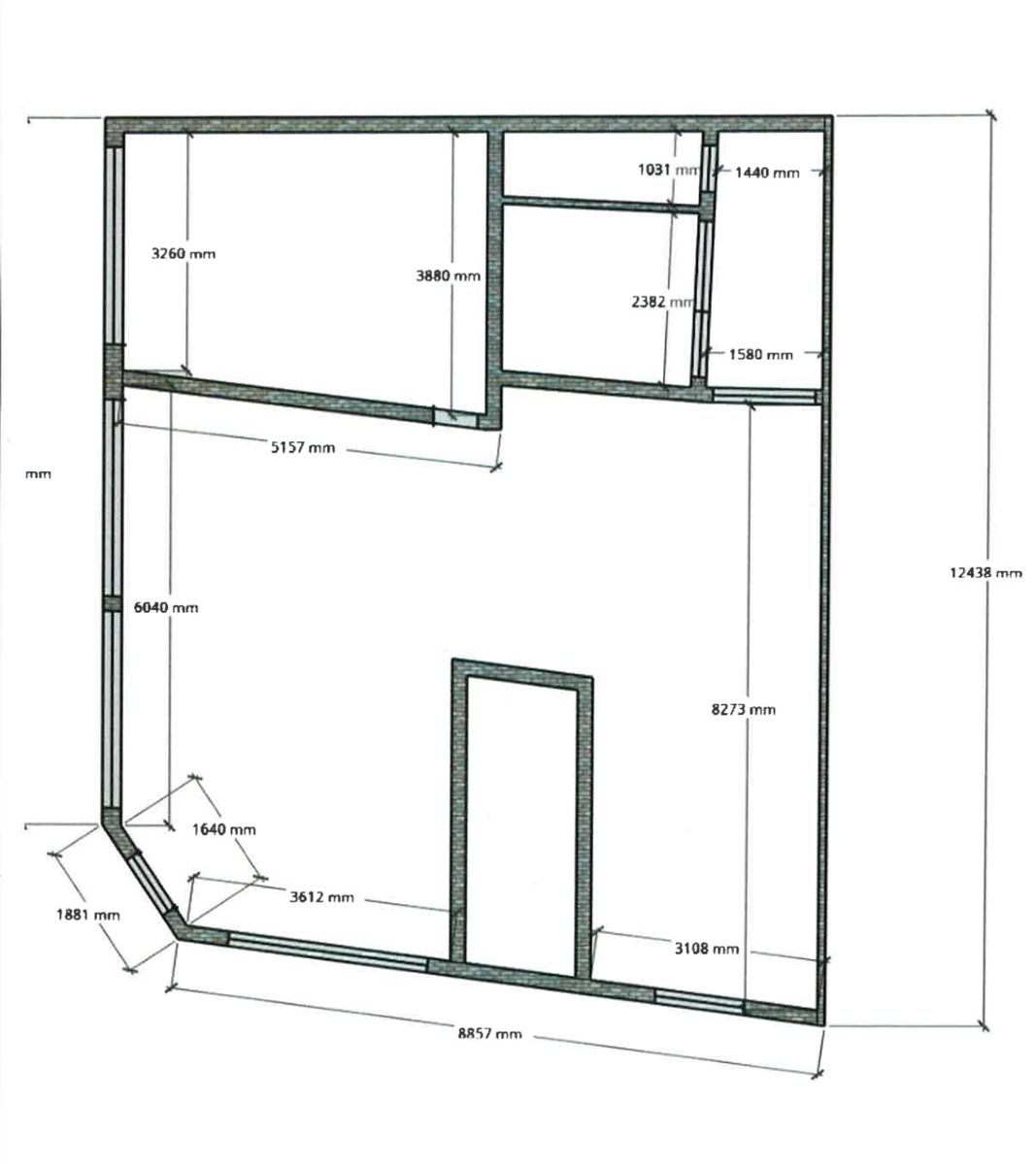
- grondplan-FransReyniersstraat.pdf (pdf)
- Mobiscore-O2025-0924352-29_9_2025.pdf (pdf)
- Overstromingsgevaar-O2025-0924342-29_9_2025.pdf (pdf)
- Gewestinfo-O2025-0924338-29_9_2025.pdf (pdf)
- RechtVanVoorkoop-O2025-0924339-29_9_2025.pdf (pdf)
- Brochure-Frans Reyniersstraat 46a,Hombeek.pdf (pdf)
Financieel
| Prijs |
|---|
Berekening kosten
Je aankoopkosten? Die heb je snel berekent via de knop hieronder.
Bijkomende info
Gebouw
| Staat | Te renoveren |
|---|---|
| Bewoonbaar (m²) | 116 |
| Verdieping | 0 |
| Gevels | 2 |
| Gevelbreedte | 11 |
| Badkamers | 0 |
| Slaapkamers | 0 |
| Garages | 1 |
| Parkeerplaatsen | 1 |
Faciliteiten
| Type vloer |
|---|
Perceel
| Overstromingsgevoelig | Geen |
|---|---|
| P-score | A |
| G-score | A |
| Voorkeurrecht | Nee |
| Totale oppervlakte (m²) | 116 |
| Bebouwde oppervlakte (m²) | 8 |
| Tuin oppervlakte (m²) | 0 |
| Oriëntatie terras | Zuid |
Vergunning
| Vergunning | Geen beschikbaar |
|---|---|
| Verkavelingsvergunning | Geen beschikbaar |
Uitrusting
| Geschikt voor praktijk | Ja |
|---|---|
| Parking | Nee |
| Garage | Nee |
| Thuiskantoor | Ja |
| Tuin | Nee |
| Terras | Nee |
| Gasaansluiting | Ja |
| Wateraansluiting | Ja |
| Elektriciteitsaansluiting | Ja |
