Handelspand met topligging op het Kerkplein van Bonheiden
€ 352.000
Een pand van ReuzeGoed
Jouw zoektocht
Overzicht
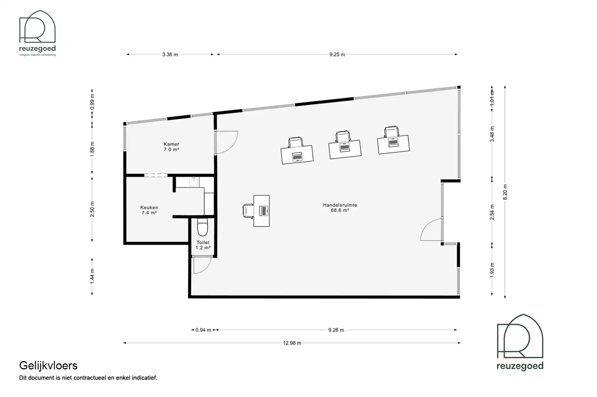
- 86 m² bewoonbaar
- 1 Slaapkamer(s)
- 1 Toilet(ten)
Beschrijving
Handelspand met topligging op het Kerkplein van Bonheiden
Op zoek naar een zichtbare en veelzijdige locatie voor jouw zaak? Dit recente handelspand (bouwjaar 2009) op het Kerkplein van Bonheiden heeft alles in huis om jouw onderneming te laten groeien.
Dankzij de uitstekende zichtbaarheid, ruime parkeergelegenheid en de grote raampartijen/vitrines springt dit pand meteen in het oog. De vele ramen zorgen bovendien voor een overvloed aan natuurlijk licht, wat bijdraagt aan een aangename en professionele sfeer.
Je betreedt het pand via de commerciële ruimte van ca. 69 m², ideaal voor handel, horeca, kantoorruimte of een vrij beroep. De indeling laat veel flexibiliteit toe hier geef je jouw concept alle ruimte.
Verder beschikt het pand over:
- een apart toilet, vlot bereikbaar zonder door keuken of berging te moeten (een duidelijke meerwaarde),
- een extra ruimte die kan dienen als kantoor, eetruimte of berging,
- een praktisch ingerichte keuken met kitchenette en veel kastruimte.
Het pand is momenteel nog verhuurd, maar de huurder heeft zijn huur opgezegd. Hierdoor wordt het vrij van huur verkocht, ideaal voor eigen gebruik of een nieuwe investering.
Met een sterk trackrecord van succesvolle ondernemingen die hier reeds gevestigd waren, is dit een bewezen locatie om te starten, te groeien of je definitief te vestigen.
Bonheiden ziet jullie graag komen!
Contacteer ons via welkom@reuzegoed.be of bel 0470 11 56 80 voor meer info of een bezoek ter plaatse.
Energie
![]() |
- E-peil: E0
- Verwarming: Gas
- Beglazing: Standaard dubbel
Op de kaart

Downloads
Financieel
| Prijs | |
|---|---|
| Kadastraal inkomen (niet geïndexeerd) | € 1.039 |
| Kadastraal inkomen (geïndexeerd) | € 0 |
Berekening kosten
Je aankoopkosten? Die heb je snel berekend via de knop hieronder.
Bijkomende info
Gebouw
| Bouwjaar | 2009 |
|---|---|
| Staat | Goed onderhouden |
| Bouwcertificaat | Ja |
| Bewoonbaar (m²) | 86 |
| Verdieping | 0 |
| Gevelbreedte | 22.6 |
| Badkamers | 0 |
| Slaapkamers | 1 |
| Verdiepingen | 0 |
| Garages | 0 |
| Parkeerplaatsen | 0 |
| Doucheruimtes | 0 |
| Toiletten | 1 |
Faciliteiten
| Keuken uitrusting | Standaard |
|---|---|
| Materiaal ramenomlijstingen | Aluminium |
| Beglazing | Standaard dubbel |
| Brandstof primaire verwarming | Gas |
| Elektrisch keuringsattest | Ja |
Perceel
| Overstromingsgevoelig | Geen |
|---|---|
| P-score | B |
| G-score | B |
| Voorkeurrecht | Nee |
| Bebouwde oppervlakte (m²) | 86 |
| Tuin oppervlakte (m²) | 0 |
| Oppervlakte terras (m²) | 0 |
Vergunning
| Vergunning | Vergunning beschikbaar |
|---|---|
| Verkavelingsvergunning | Vergunning beschikbaar |
Uitrusting
| Investeringspand | Nee |
|---|---|
| Geschikt voor praktijk | Ja |
| Parking | Nee |
| Garage | Nee |
| Thuiskantoor | Ja |
| Kelder | Nee |
| Zolder | Nee |
| Tuin | Nee |
| Terras | Nee |
| Lift | Nee |
| Rioolaansluiting | Nee |
| Gasaansluiting | Nee |
| Wateraansluiting | Nee |
| Elektriciteitsaansluiting | Nee |
| TV aansluiting | Nee |
| Internetaansluiting | Nee |
| Telefoonaansluiting | Nee |
Appartementsblok
| Lift | Nee |
|---|
