Goed onderhouden gelijkvloerse woning, gelegen op een residentiële en groene locatie te Bonheiden
€ 429.000
Een pand van Immo Vercammen
Jouw zoektocht
Overzicht
- 154 m² bewoonbaar
- 1010 m² grond
- 2 Slaapkamer(s)
- 1 Badkamer(s)
- 1 Tuin
- 1 Garage(s)
Beschrijving
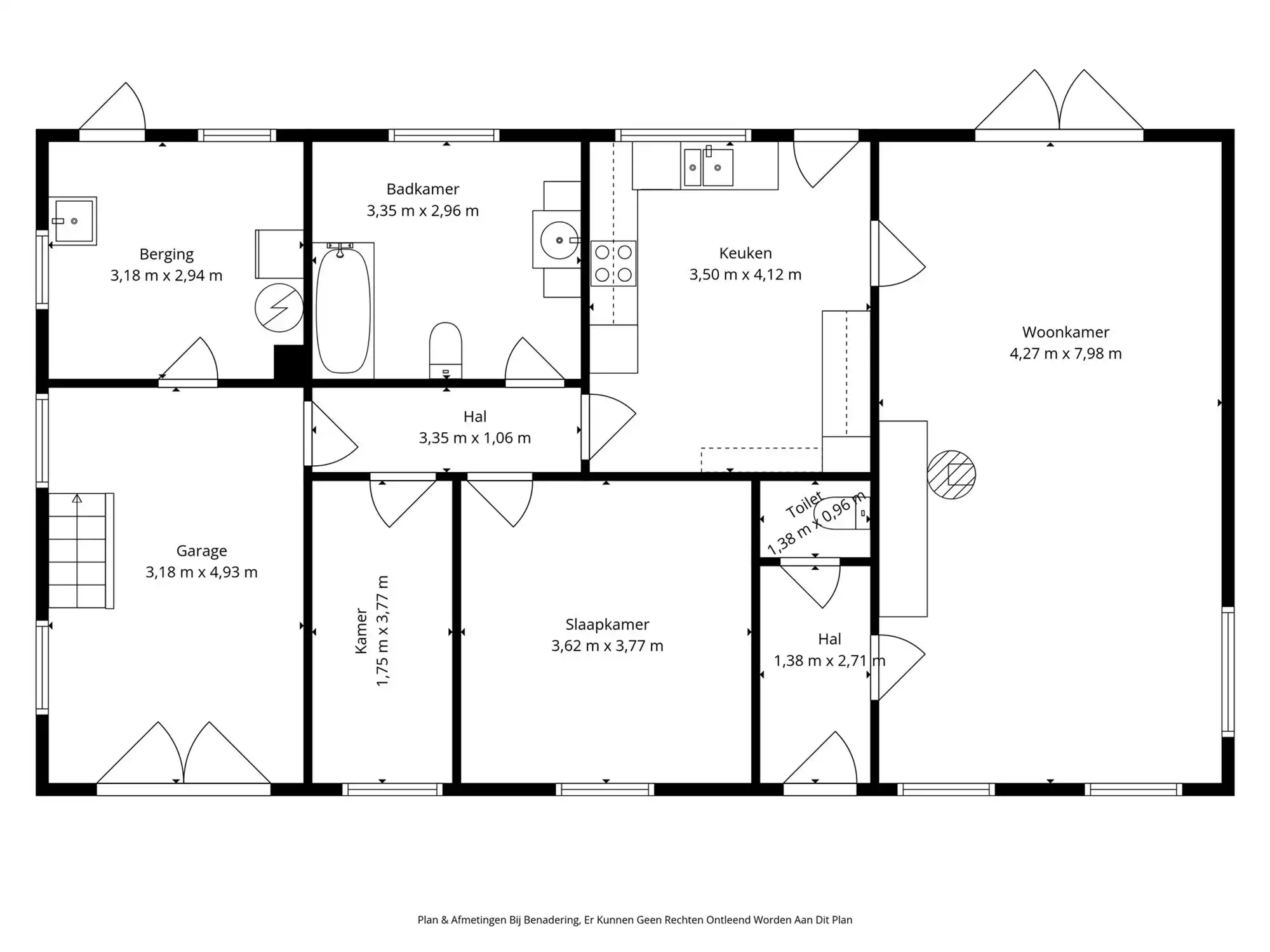
Deze goed onderhouden gelijkvloerse woning is gelegen op een residentiële en groene locatie te Bonheiden en biedt een aangename combinatie van rust, comfort en bereikbaarheid. Bij het betreden van de woning komt u in de inkomhal met gastentoilet, die toegang geeft tot de lichtrijke leefruimte en de functionele keuken. Verder beschikt de woning over twee volwaardige slaapkamers en een badkamer uitgerust met ligbad en toilet. De inpandige garage en aansluitende wasplaats zorgen voor extra praktische bergruimte en comfort in het dagelijks gebruik. Via een vaste trap bereikt u de zolderverdieping, waar bijkomende kamers kunnen ingericht worden, wat interessante uitbreidingsmogelijkheden biedt. De woning beschikt bovendien over een aangename, onderhoudsvriendelijke tuin waar u in alle rust kan genieten van het buitenleven. Gelegen in een rustige buurt met een uitstekende bereikbaarheid dankzij de nabijheid van de R6 en E19, bevindt het centrum van Bonheiden zich op korte afstand en is ook de stad Mechelen vlot bereikbaar via de fietsstraat. Deze woning valt onder de renovatieplicht: binnen de zes jaar na aankoop dient het EPC-label verbeterd te worden tot minstens label D. Met de plaatsing van een lucht-lucht warmtepomp en dakisolatie / vloerisolatie op zolder kan reeds een EPC-label C behaald worden, wat deze eigendom extra interessant maakt voor wie toekomstgericht wil investeren.
Energie
![]() |
- Energieverbruik: 684 kWh/m²/jaar
- E-peil: E0
- Beglazing: Standaard dubbel
Extra budget nodig voor je renovatie?

Op de kaart

Financieel
| Prijs | |
|---|---|
| Kadastraal inkomen (niet geïndexeerd) | € 0 |
| Kadastraal inkomen (geïndexeerd) | € 0 |
Berekening kosten
Je aankoopkosten? Die heb je snel berekend via de knop hieronder.
Bijkomende info
Gebouw
| Staat | Goed onderhouden |
|---|---|
| Bouwcertificaat | Nee |
| Bewoonbaar (m²) | 154 |
| Verdieping | 0 |
| Badkamers | 1 |
| Slaapkamers | 2 |
| Verdiepingen | 0 |
| Garages | 1 |
| Parkeerplaatsen | 2 |
| Doucheruimtes | 0 |
| Toiletten | 0 |
Faciliteiten
| Keuken uitrusting | Standaard |
|---|---|
| Materiaal ramenomlijstingen | Hout |
| Beglazing | Standaard dubbel |
| Elektrisch keuringsattest | Nee |
Perceel
| Overstromingsgevoelig | Geen |
|---|---|
| P-score | A |
| G-score | A |
| Voorkeurrecht | Nee |
| Totale oppervlakte (m²) | 1010 |
| Bebouwde oppervlakte (m²) | 0 |
| Tuin oppervlakte (m²) | 0 |
| Oppervlakte terras (m²) | 0 |
Vergunning
| Vergunning | Vergunning beschikbaar |
|---|---|
| Verkavelingsvergunning | Geen beschikbaar |
Uitrusting
| Investeringspand | Nee |
|---|---|
| Geschikt voor praktijk | Nee |
| Parking | Ja |
| Garage | Ja |
| Thuiskantoor | Nee |
| Kelder | Ja |
| Zolder | Ja |
| Tuin | Ja |
| Terras | Ja |
| Lift | Nee |
| Rioolaansluiting | Ja |
| Gasaansluiting | Nee |
| Wateraansluiting | Ja |
| Elektriciteitsaansluiting | Ja |
| TV aansluiting | Ja |
| Internetaansluiting | Ja |
| Telefoonaansluiting | Ja |



