Unieke renovatiekans in het hart van Bonheiden
Prijs op aanvraag
Een pand van ReuzeGoed
Jouw zoektocht
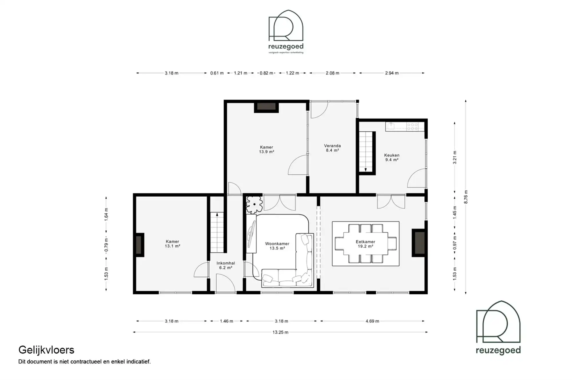
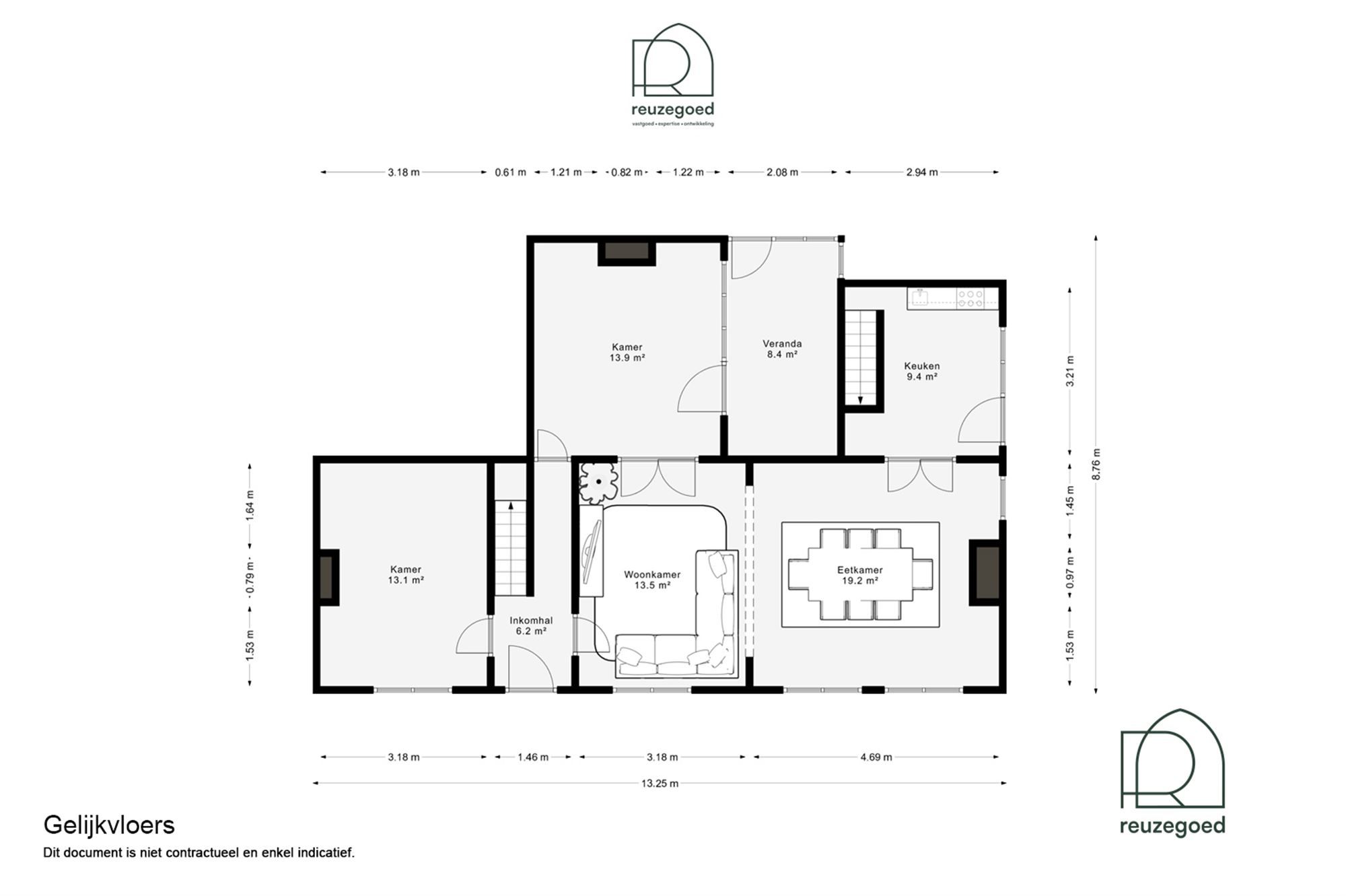
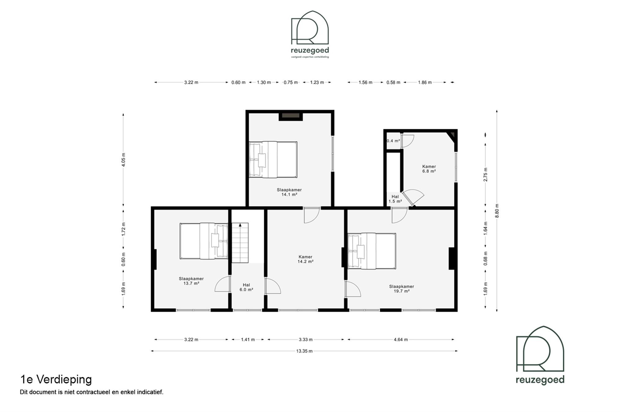
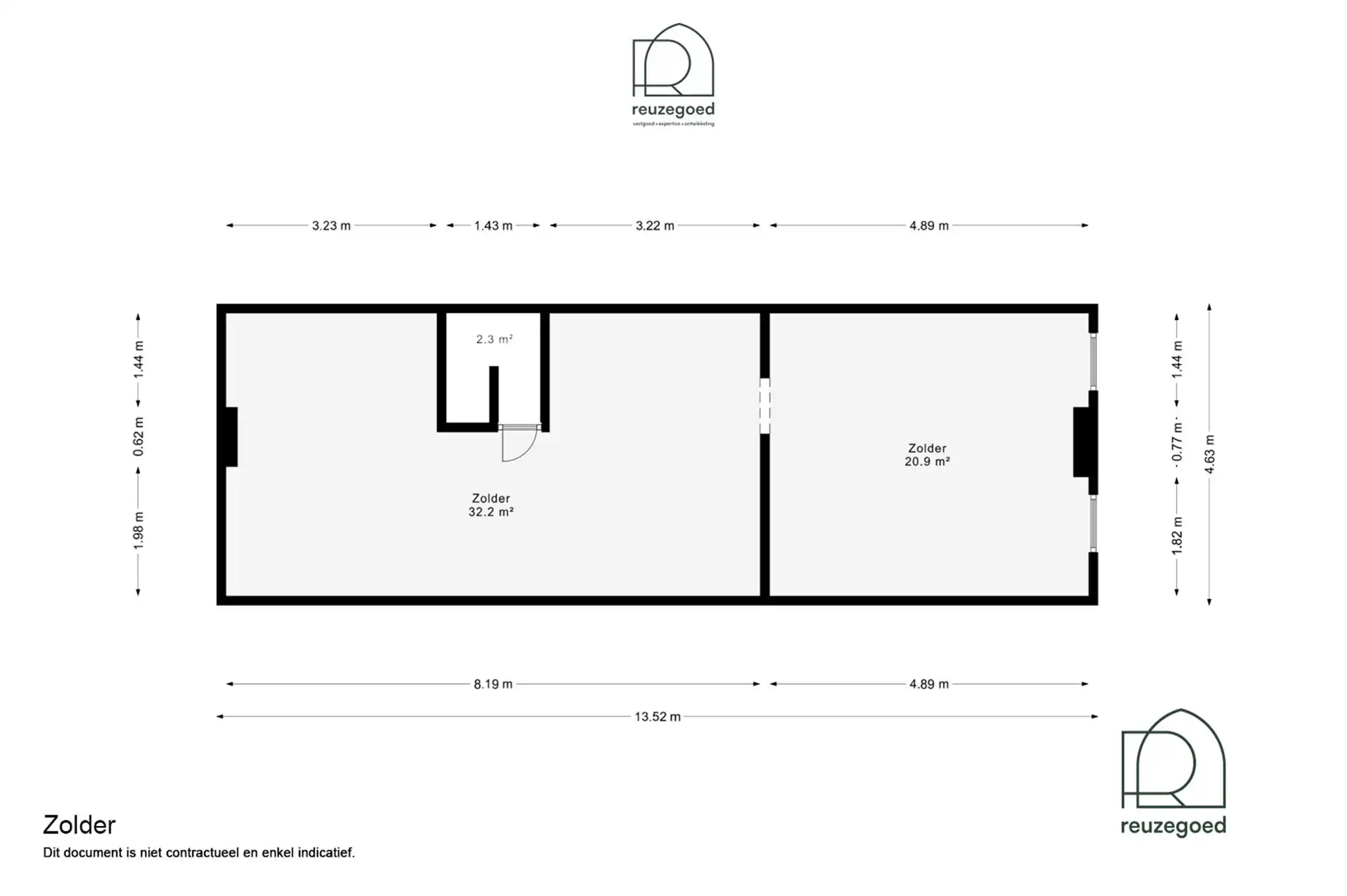
Overzicht
- 230 m² bewoonbaar
- 535 m² grond
- 6 Slaapkamer(s)
- 1 Badkamer(s)
- 3 Garage(s)
Beschrijving
Unieke renovatiekans in het hart van Bonheiden
Aan het charmante kerkplein van Bonheiden vind je deze ruime, te renoveren woning met karakter. Ooit bestond dit pand uit twee aparte woningen en een winkelruimte. Vandaag biedt het een zee aan mogelijkheden voor wie groot en centraal wil wonen, of een combinatie van wonen en werken zoekt.
De beschermde gevel ademt geschiedenis en charme, terwijl het royale binnenvolume uitnodigt tot creatief herdenken. De woning omvat onder meer twee leefruimtes, zes slaapkamers en een keuken, waardoor de basis voor een groot gezin, kangoeroewoning of woon-werkconcept al aanwezig is.
Daarnaast zijn er twee bijgebouwen: één waarin vroeger een bakkerij gevestigd was, en een ander met een speelruimte en badkamer ideaal om om te vormen tot atelier, praktijk of gastenverblijf.
Uniek voor deze ligging is de ruime tuin, die zorgt voor rust en privacy, terwijl je toch vlak bij winkels, scholen en openbaar vervoer woont. Het is bovendien één van de laatste grote percelen in het centrum van Bonheiden.
Deze eigendom vraagt om een grondige renovatie, maar biedt des te meer potentieel. Of je nu droomt van een stijlvolle gezinswoning, een handelspand met woonst of een vernieuwend concept samen met de gemeente wordt bekeken wat allemaal mogelijk is.
Kortom: een uitzonderlijke opportuniteit voor wie een project met ziel zoekt, in het kloppend hart van Bonheiden.
Contacteer ons op welkom@reuzegoed.be of op 0470 11 56 80 voor een bezoek!
Energie
![]() |
- Energieverbruik: 1031 kWh/m²/jaar
- E-peil: E0
- Verwarming: Gas
- Beglazing: Enkel
Extra budget nodig voor je renovatie?

Op de kaart

Financieel
| Kadastraal inkomen (niet geïndexeerd) | € 570 |
|---|---|
| Kadastraal inkomen (geïndexeerd) | € 0 |
Berekening kosten
Je aankoopkosten? Die heb je snel berekend via de knop hieronder.
Bijkomende info
Gebouw
| Bouwjaar | 1918 |
|---|---|
| Staat | Op te frissen |
| Bouwcertificaat | Nee |
| Bewoonbaar (m²) | 230 |
| Verdieping | 0 |
| Badkamers | 1 |
| Slaapkamers | 6 |
| Verdiepingen | 0 |
| Garages | 3 |
| Parkeerplaatsen | 0 |
| Doucheruimtes | 0 |
| Toiletten | 0 |
Faciliteiten
| Keuken uitrusting | Basis |
|---|---|
| Materiaal ramenomlijstingen | Hout |
| Beglazing | Enkel |
| Brandstof primaire verwarming | Gas |
| Elektrisch keuringsattest | Nee |
Perceel
| Overstromingsgevoelig | Geen |
|---|---|
| P-score | A |
| G-score | A |
| Voorkeurrecht | Nee |
| Totale oppervlakte (m²) | 535 |
| Bebouwde oppervlakte (m²) | 0 |
| Tuin oppervlakte (m²) | 0 |
| Oppervlakte terras (m²) | 0 |
| Oriëntatie tuin | Noordwest |
Uitrusting
| Investeringspand | Nee |
|---|---|
| Geschikt voor praktijk | Nee |
| Parking | Nee |
| Garage | Ja |
| Thuiskantoor | Nee |
| Kelder | Ja |
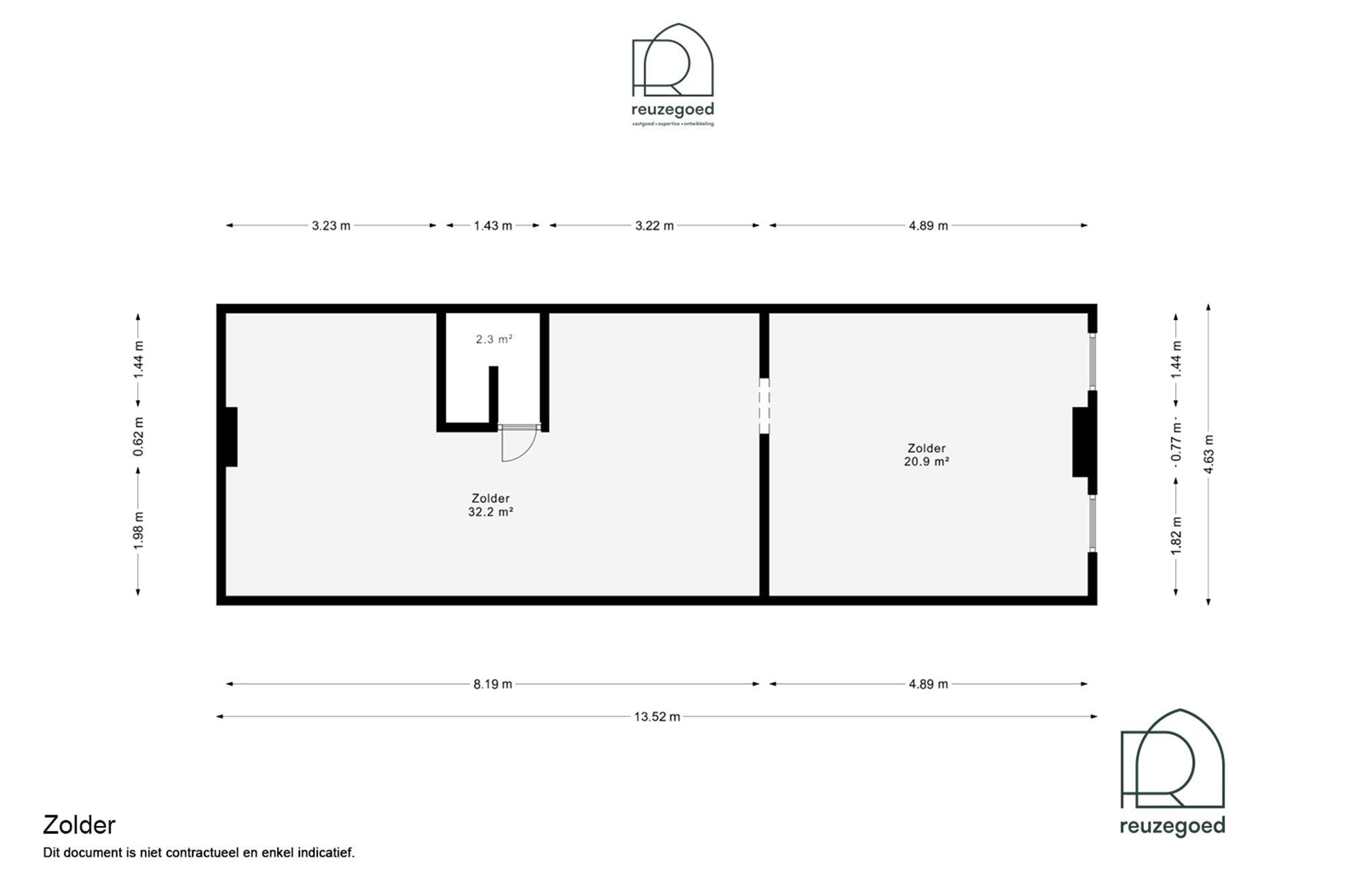
| Zolder | Ja |
| Tuin | Nee |
| Terras | Nee |
| Lift | Nee |
| Rioolaansluiting | Ja |
| Gasaansluiting | Ja |
| Wateraansluiting | Ja |
| Elektriciteitsaansluiting | Ja |
| TV aansluiting | Nee |
| Internetaansluiting | Nee |
| Telefoonaansluiting | Ja |



