Laagbouwvilla op een uitstekende locatie te Bonheiden
€ 585.000
Een pand van Immo Vercammen
Overzicht
- 237 m² bewoonbaar
- 1142 m² grond
- 4 Slaapkamer(s)
- 1 Badkamer(s)
- 2 Toilet(ten)
- 1 Tuin
- 2 Garage(s)
Beschrijving
In een rustige en residentiële omgeving in Bonheiden bevindt zich deze bijzonder lichtrijke en ruime laagbouwvilla. De woning biedt een bewoonbare oppervlakte van 237 m² (exclusief kelders) en is gelegen op een mooi perceel van 1.142 m².
Bij het betreden van de woning komt u in een ruime inkomhal met gastentoilet en praktische bureauruimte, ideaal voor thuiswerk of een vrij beroep. Aansluitend bevindt zich de zeer royale en lichtrijke leefruimte, waar grote raampartijen zorgen voor een aangename lichtinval en een mooi zicht op de tuin.
De woning beschikt verder over drie volwaardige slaapkamers en een badkamer, wat ze geschikt maakt voor gezinnen of voor wie comfortabel gelijkvloers wil wonen.
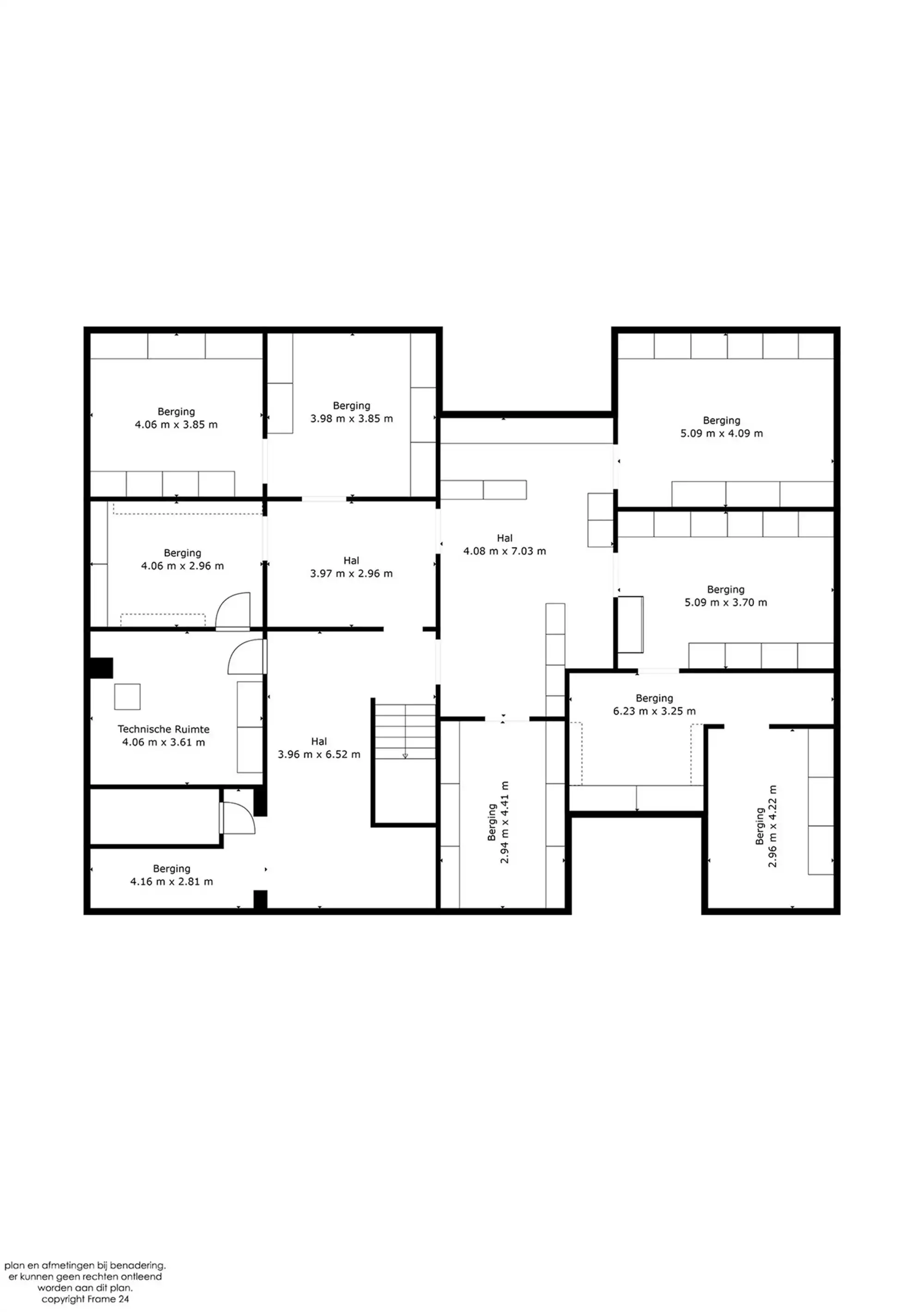
Een extra troef is de dubbele inpandige garage, die rechtstreeks verbonden is met de woning. Vanuit de garage is er bovendien een goederenlift naar de volledig onderkelderde verdieping, wat extra praktisch is voor opslag, hobbyruimte of werkatelier.
De zuidgerichte tuin en het terras vormen een heerlijke plek om tot rust te komen en te genieten van privacy en zon.
Bovendien geniet de woning van een uitstekende bereikbaarheid, met vlotte verbindingen via belangrijke invalswegen zoals de R6 en de E19.
Stad Mechelen is eveneens op fietsafstand bereikbaar.
Renovatieplicht EPC: binnen 6 jaar na aankoop = verplichte renovatie tot label D of beter.
Energie
![]() |
- EPC Certificaat: 20250629-0003636539-RES-1
- Energieverbruik: 424 kWh/m²/jaar
- E-peil: E0
- Verwarming: Gas
- Beglazing: Standaard dubbel
Extra budget nodig voor je renovatie?

Op de kaart

Financieel
| Prijs | |
|---|---|
| Kadastraal inkomen (niet geïndexeerd) | € 1.846 |
| Kadastraal inkomen (geïndexeerd) | € 0 |
Berekening kosten
Je aankoopkosten? Die heb je snel berekend via de knop hieronder.
Bijkomende info
Gebouw
| Bouwjaar | 1977 |
|---|---|
| Bouwcertificaat | Nee |
| Bewoonbaar (m²) | 237 |
| Verdieping | 0 |
| Badkamers | 1 |
| Slaapkamers | 4 |
| Verdiepingen | 0 |
| Garages | 2 |
| Parkeerplaatsen | 4 |
| Doucheruimtes | 0 |
| Toiletten | 2 |
Faciliteiten
| Materiaal ramenomlijstingen | Aluminium |
|---|---|
| Beglazing | Standaard dubbel |
| Brandstof primaire verwarming | Gas |
| Elektrisch keuringsattest | Nee |
Perceel
| Overstromingsgevoelig | Geen |
|---|---|
| P-score | A |
| G-score | A |
| Voorkeurrecht | Nee |
| Totale oppervlakte (m²) | 1142 |
| Bebouwde oppervlakte (m²) | 0 |
| Tuin oppervlakte (m²) | 0 |
| Oppervlakte terras (m²) | 0 |
| Oriëntatie tuin | Zuid |
Vergunning
| Vergunning | Vergunning beschikbaar |
|---|
Uitrusting
| Investeringspand | Nee |
|---|---|
| Geschikt voor praktijk | Nee |
| Parking | Ja |
| Garage | Ja |
| Thuiskantoor | Nee |
| Kelder | Ja |
| Zolder | Nee |
| Tuin | Ja |
| Terras | Ja |
| Lift | Ja |
| Rioolaansluiting | Nee |
| Gasaansluiting | Ja |
| Wateraansluiting | Ja |
| Elektriciteitsaansluiting | Ja |
| TV aansluiting | Ja |
| Internetaansluiting | Ja |
| Telefoonaansluiting | Ja |



