Te Renoveren Meergezinswoning met Garage
€ 275.000
Een pand van Reant
Overzicht
- 158 m² bewoonbaar
- 178 m² grond
- 4 Slaapkamer(s)
- 2 Badkamer(s)
- 2 Toilet(ten)
- 1 Garage(s)
Beschrijving
Te Renoveren Meergezinswoning met Garage in Niel
Deze ruime en meermaals opgedeelde woning biedt tal van mogelijkheden voor wie op zoek is naar een investeringspand of een woning met meerdere woonentiteiten.
De woning is door de gemeente erkend als meergezinswoning en wordt vergund geacht.
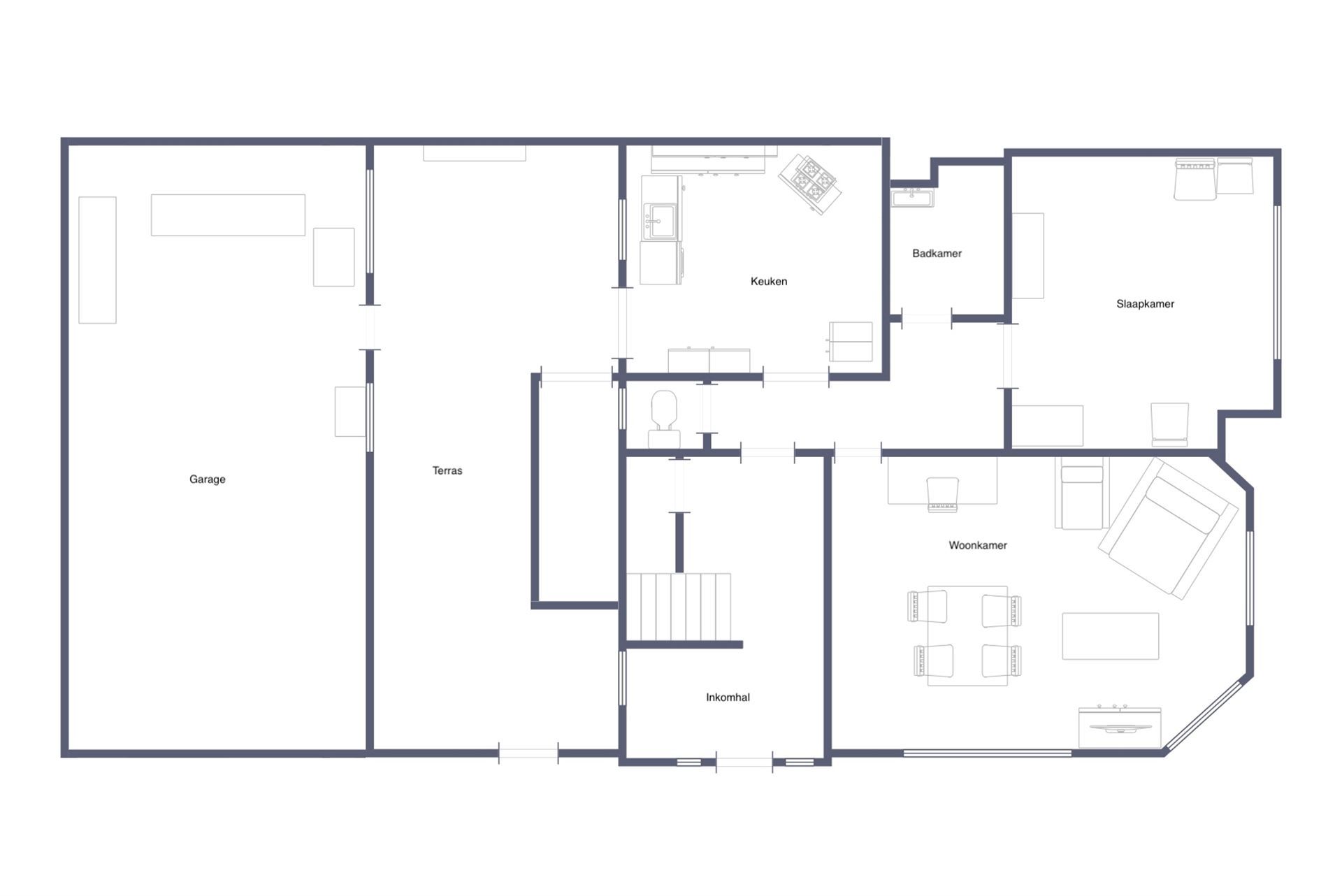
Via de inkomhal bereikt u zowel het gelijkvloerse leefgedeelte als de bovenliggende woonruimte. Op het gelijkvloers bevindt zich de woonkamer, een aparte keuken, een slaapkamer en een eerste badkamer en afzonderlijk toilet. Achteraan is er een verharde binnenkoer die toegang biedt tot een ruime garage.
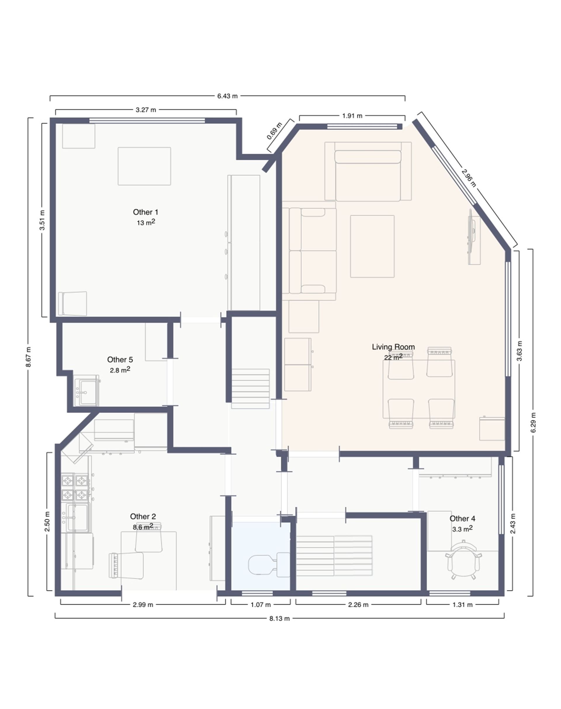
Op de eerste verdieping treft u een tweede leefruimte aan, samen met een slaapkamer, keuken, badkamer en apart toilet. Daarnaast is er nog een bureauruimte en een vaste trap naar de zolderverdieping, waar zich nog 2 bijkomende slaapkamers bevinden.
De woning wordt verwarmd op gas en biedt mits renovatie heel wat potentieel.
Gelegen in een rustige straat in het centrum van Niel, met vlotte bereikbaarheid naar A12 en E19. Winkels, scholen, openbaar vervoer en andere voorzieningen bevinden zich op wandelafstand. Ook het nabijgelegen natuurgebied Walenhoek biedt een fijne plek voor ontspanning.
TROEVEN
+ Vergund geacht als meergezinswoning
+ Ruime garage
+ 2 aparte woonniveaus met eigen voorzieningen
+ Interessante ligging nabij centrum en invalswegen
EXTRA
Renovatieverplichting van toepassing binnen de 6 jaar na aankoop (conform de Vlaamse regelgeving voor residentieel vastgoed met EPC-label E of F).
Energie
![]() |
- EPC Certificaat: 3704210
- Energieverbruik: 610 kWh/m²/jaar
- E-peil: E0
- Verwarming: Gas
- Beglazing: Standaard dubbel
Extra budget nodig voor je renovatie?

Op de kaart

Financieel
Prijs | |
---|---|
Kadastraal inkomen (niet geïndexeerd) | € 937 |
Kadastraal inkomen (geïndexeerd) | € 0 |
Berekening kosten
Je aankoopkosten? Die heb je snel berekent via de knop hieronder.
Bijkomende info
Gebouw
Bouwjaar | 1955 |
---|---|
Staat | Op te frissen |
Bouwcertificaat | Nee |
Bewoonbaar (m²) | 158 |
Verdieping | 0 |
Gevelbreedte | 9 |
Badkamers | 2 |
Slaapkamers | 4 |
Verdiepingen | 2 |
Garages | 1 |
Parkeerplaatsen | 1 |
Doucheruimtes | 0 |
Toiletten | 2 |
Faciliteiten
Keuken uitrusting | Luxueus uitgerust |
---|---|
Materiaal ramenomlijstingen | PVC |
Beglazing | Standaard dubbel |
Brandstof primaire verwarming | Gas |
Elektrisch keuringsattest | Nee |
Perceel
Diepte (m) | 10 |
---|---|
Breedte (m) | 16 |
Overstromingsgevoelig | Geen |
P-score | C |
G-score | C |
Voorkeurrecht | Ja |
Totale oppervlakte (m²) | 178 |
Bebouwde oppervlakte (m²) | 108 |
Tuin oppervlakte (m²) | 0 |
Oppervlakte terras (m²) | 25 |
Oriëntatie tuin | West |
Vergunning
Vergunning | Vergunning beschikbaar |
---|---|
Verkavelingsvergunning | Geen beschikbaar |
Uitrusting
Investeringspand | Nee |
---|---|
Geschikt voor praktijk | Nee |
Parking | Ja |
Garage | Ja |
Thuiskantoor | Nee |
Kelder | Ja |
Zolder | Nee |
Tuin | Nee |
Terras | Ja |
Lift | Nee |
Rioolaansluiting | Ja |
Gasaansluiting | Ja |
Wateraansluiting | Ja |
Elektriciteitsaansluiting | Ja |
TV aansluiting | Ja |
Internetaansluiting | Ja |
Telefoonaansluiting | Nee |
Appartementsblok
Aantal verdiepingen | 2 |
---|---|
Lift | Nee |