Nieuw
Unieke bouwgrond met vergund bouwplan te Niel!
€ 155.000
Een pand van Coenen Vastgoed & Partners
Overzicht
- 439 m² grond
- 1 Tuin
Beschrijving
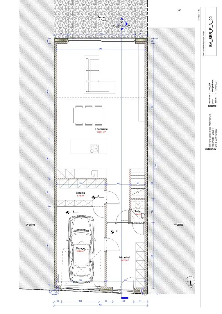
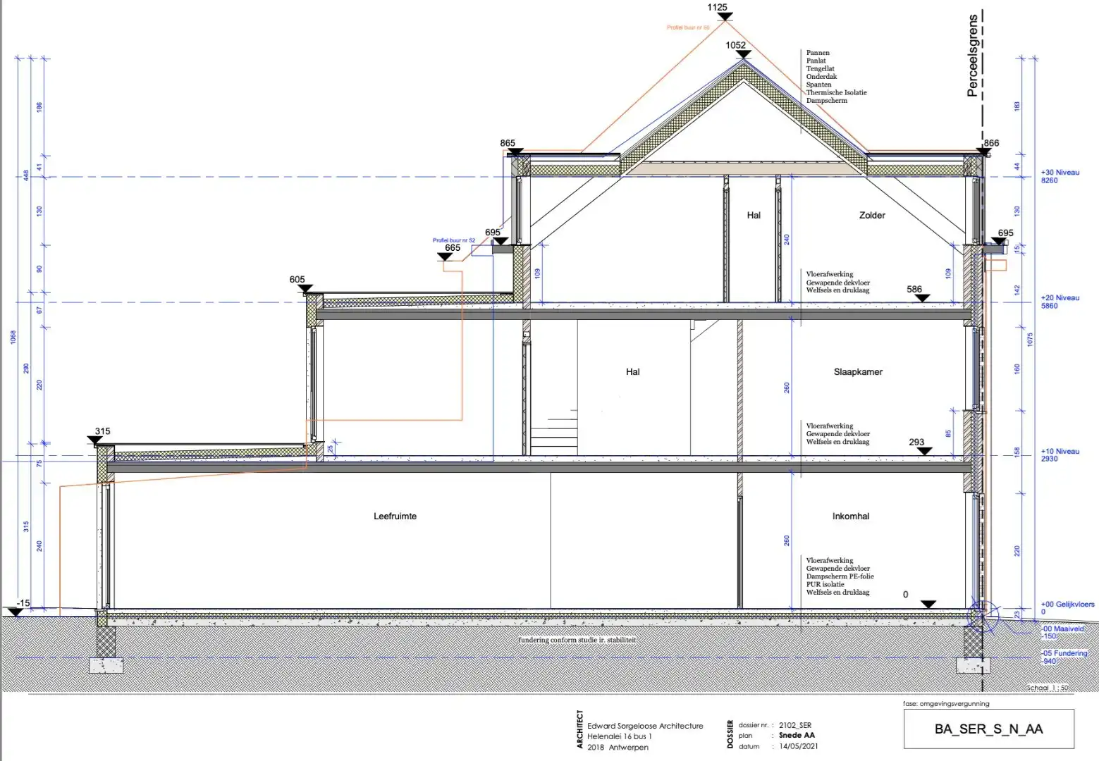
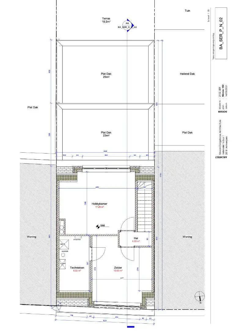
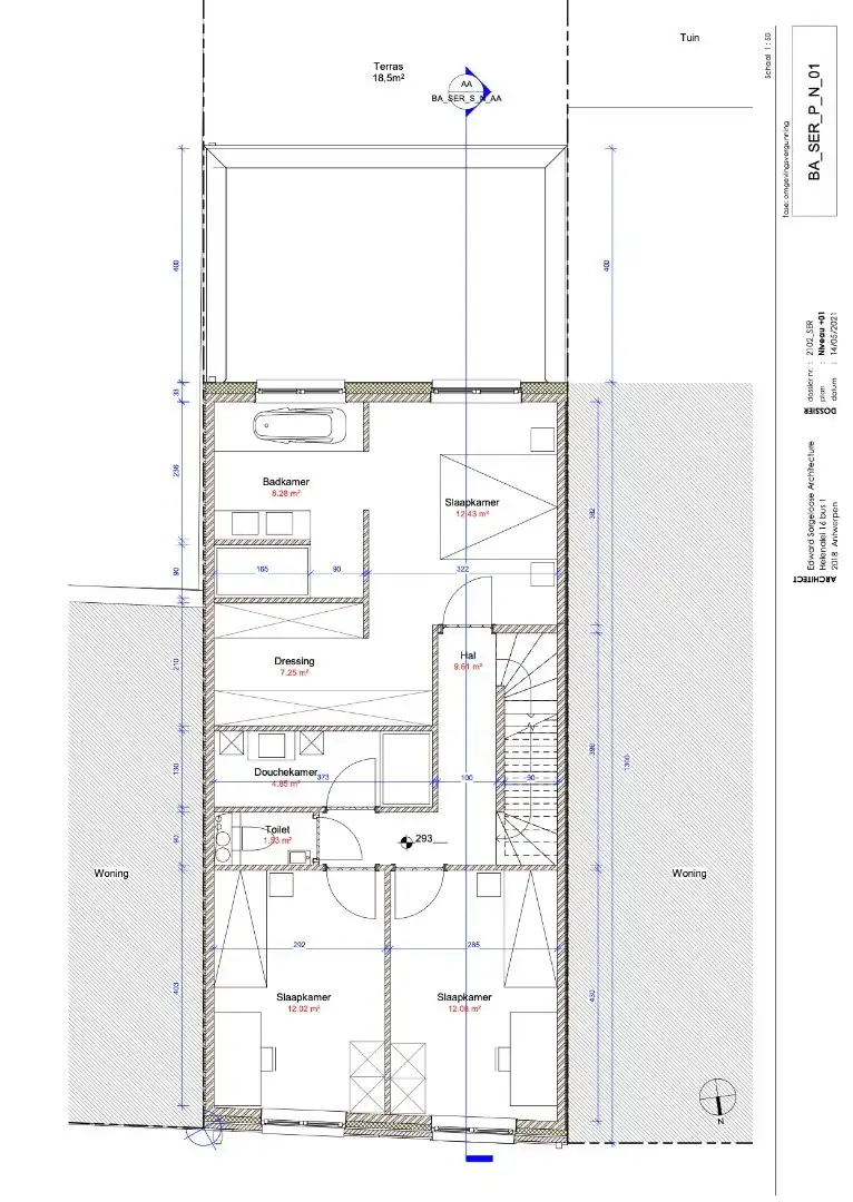
Deze bouwgrond van 439 m² in het gezellige Niel biedt een buitengewone kans! Met een reeds vergund bouwplan kan u hier een prachtig rijhuis realiseren met maar liefst drie verdiepingen én een aangename tuin – perfect voor gezinnen of wie houden van een groene buitenruimte. De gunstige ligging combineert rust en bereikbaarheid, met nabijheid van winkels, scholen en openbaar vervoer. Op de bouwgrond kan een woning gebouwd worden van ca. 6,22 meter breedte. De bouwdieptes bedragen 17 meter voor het gelijkvloers, 13 meter voor de eerste verdieping en 9 meter voor de 2e verdieping, goed voor een totale bewoonbare oppervlakte van +/- 235 m². Bouwplannen te verkrijgen via kantoor!
Niet gelegen in mogelijks overstromingsgevoelig gebied, niet gelegen in afgebakend overstromingsgebied of afgebakende oeverzone, niet gelegen in risicozone overstromingen, woongebied, stedenbouwkundige info in aanvraag. Voor meer info ga naar www.coenenvastgoed.be of bel 03/375.82.92
Niet gelegen in mogelijks overstromingsgevoelig gebied, niet gelegen in afgebakend overstromingsgebied of afgebakende oeverzone, niet gelegen in risicozone overstromingen, woongebied, stedenbouwkundige info in aanvraag. Voor meer info ga naar www.coenenvastgoed.be of bel 03/375.82.92
Energie
- Verwarming: Geen
- Beglazing: Onbekend
Op de kaart

Financieel
| Prijs | |
|---|---|
| Kadastraal inkomen (niet geïndexeerd) | € 0 |
| Kadastraal inkomen (geïndexeerd) | € 0 |
Berekening kosten
Je aankoopkosten? Die heb je snel berekend via de knop hieronder.
Bijkomende info
Gebouw
| Is beschermd | Nee |
|---|
Ruimtes
| Tuin | 300 m² |
|---|
Perceel
| Overstromingsgevoelig | Geen |
|---|---|
| P-score | A |
| Totale oppervlakte (m²) | 439 |
Vergunning
| Vergunning | Vergunning beschikbaar |
|---|---|
| Bouwovertreding dagvaardiging | Geen |
| Type gebied | Stedelijk |
Uitrusting
| Meerdere eigenaars | Nee |
|---|---|
| Rioolaansluiting | Nee |
| Gasaansluiting | Nee |
| Wateraansluiting | Nee |
| Elektriciteitsaansluiting | Nee |
| TV aansluiting | Nee |
| Internetaansluiting | Nee |
Een pand van
Coenen Vastgoed & Partners
#zorgeloosverkopen
Coenen vastgoed & Partners staat voor zorgeloos kopen en verkopen, want met hun jarenlange ervaring neemt de zaakvoerder Tim Coenen en het voltallige team uw zorgen rond de aankoop/verkoop of huur/verhuur weg.
Eerder was Tim actief bij zowel kleine als grote vastgoedondernemingen wat zorgt voor een goede mix aan ervaring om uiteindelijk zelf de vleugels te spreiden.
Coenen vastgoed & Partners staat voor een one-stop-shop waarbij alles voor u geregeld wordt met net dat tikkeltje meer. De gedrevenheid en betrokkenheid van onze zaakvoerder en het ganse team zorgt voor meer persoonlijk contact, meer flexibiliteit en vooral MEER resultaat!
Had u graag een geheel vrijblijvend kennismakingsgesprek? Neem gerust contact op via de website of op het nummer 03/375.82.92.
TK/1155
Leer meer over vastgoed
17 February 2026
Hoe breng ik een bod uit op een woning?
24 November 2025
Uitgezocht voor jouw gemeente: Hoeveel stijgt de waarde van je woning door een renovatie?
22 October 2025
Hoeveel kan ik lenen om een huis te kopen?
11 June 2025