Unieke bouwgrond met vergund bouwplan te Niel!
€ 155.000
Een pand van Coenen Vastgoed & Partners
Jouw zoektocht
Overzicht
- 439 m² grond
- 1 Tuin
Beschrijving
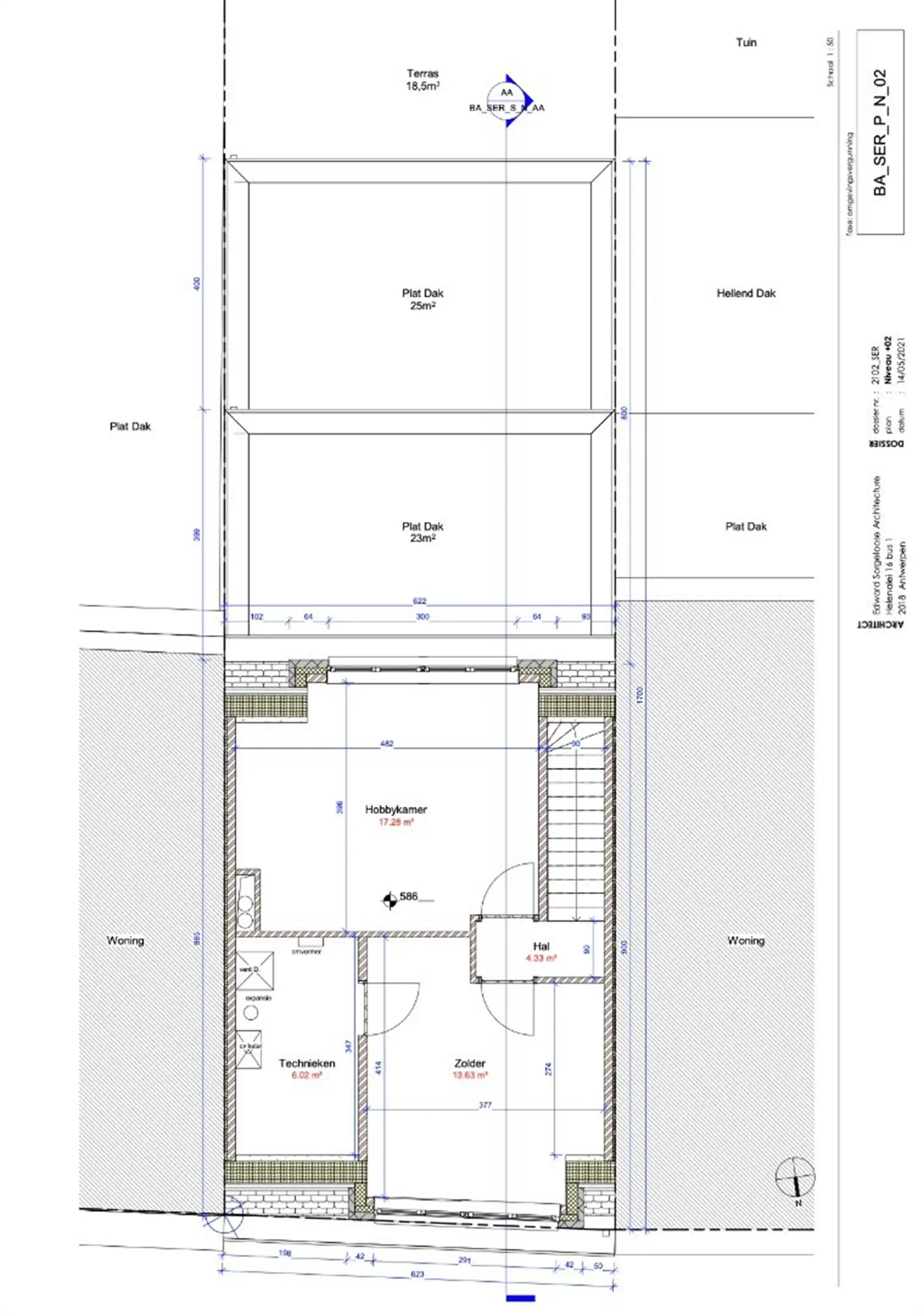
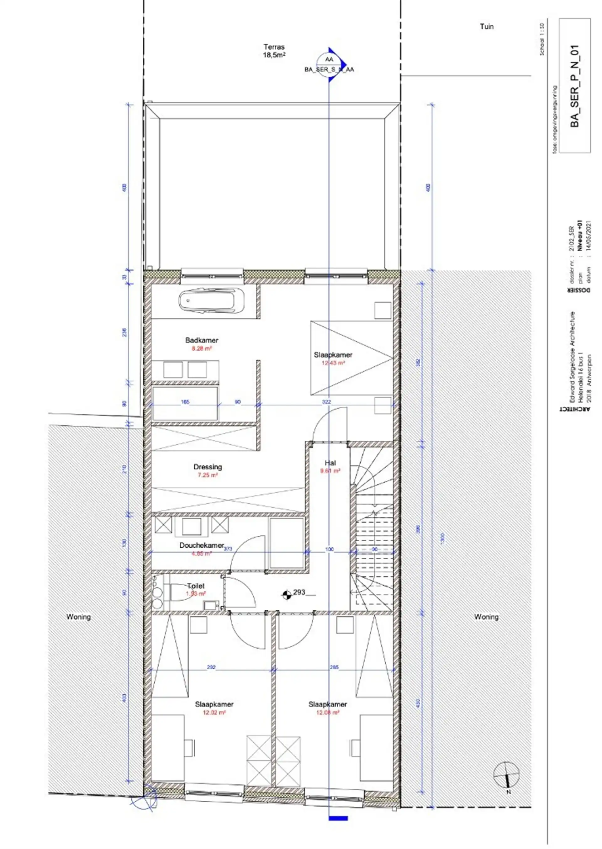
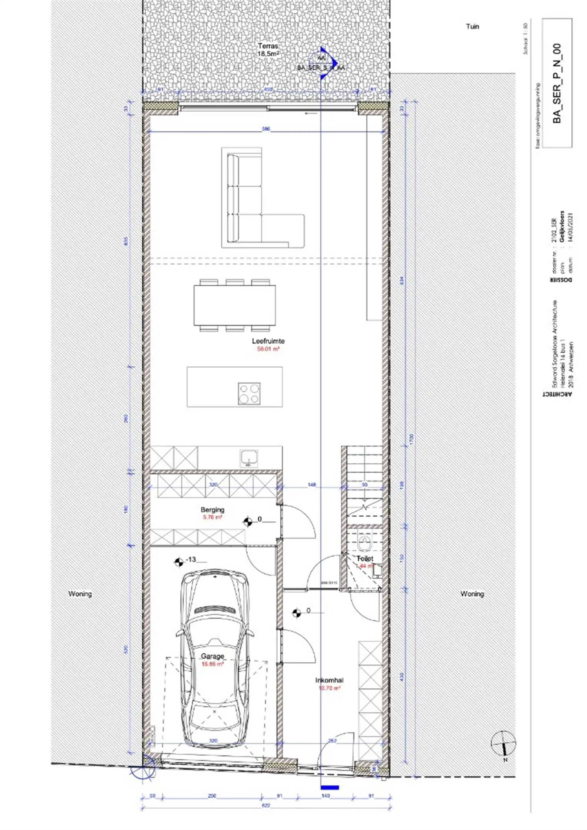
Deze bouwgrond van 439 m² in het gezellige Niel biedt een buitengewone kans! Met een reeds vergund bouwplan kan u hier een prachtig rijhuis realiseren met maar liefst drie verdiepingen én een aangename tuin – perfect voor gezinnen of wie houden van een groene buitenruimte. De gunstige ligging combineert rust en bereikbaarheid, met nabijheid van winkels, scholen en openbaar vervoer. Op de bouwgrond kan een woning gebouwd worden van ca. 6,22 meter breedte. De bouwdieptes bedragen 17 meter voor het gelijkvloers, 13 meter voor de eerste verdieping en 9 meter voor de 2e verdieping, goed voor een totale bewoonbare oppervlakte van +/- 235 m². Bouwplannen te verkrijgen via kantoor!
Niet gelegen in mogelijks overstromingsgevoelig gebied, niet gelegen in afgebakend overstromingsgebied of afgebakende oeverzone, niet gelegen in risicozone overstromingen, woongebied, stedenbouwkundige info in aanvraag. Voor meer info ga naar www.coenenvastgoed.be of bel 03/375.82.92
Energie
- E-peil: E0
- Beglazing: Onbekend
Op de kaart

Financieel
| Prijs | |
|---|---|
| Kadastraal inkomen (niet geïndexeerd) | € 0 |
| Kadastraal inkomen (geïndexeerd) | € 0 |
Berekening kosten
Je aankoopkosten? Die heb je snel berekend via de knop hieronder.
Bijkomende info
Gebouw
| Bouwcertificaat | Nee |
|---|
Perceel
| Diepte (m) | 70 |
|---|---|
| Breedte (m) | 6 |
| Overstromingsgevoelig | Geen |
| P-score | A |
| Voorkeurrecht | Nee |
| Totale oppervlakte (m²) | 439 |
Vergunning
| Vergunning | Vergunning beschikbaar |
|---|---|
| Verkavelingsvergunning | Geen beschikbaar |
Uitrusting
| Investeringspand | Nee |
|---|---|
| Rioolaansluiting | Nee |
| Gasaansluiting | Nee |
| Wateraansluiting | Nee |
| Elektriciteitsaansluiting | Nee |
| TV aansluiting | Nee |
| Internetaansluiting | Nee |
| Telefoonaansluiting | Nee |