Serviceflat te koop
€ 181.125
Rector de Somerstraat 3/0106 - 2845 Niel
Favoriet
Jouw zoektocht
Jouw scoretabel voor dit pand
Aan het laden...
Jouw geplande bezichtigingen
Aan het laden...
Overzicht
- 57.8 m² bewoonbaar
- 1 Slaapkamer(s)
- 1 Badkamer(s)
Overstromingsgevaar perceel
Beschrijving
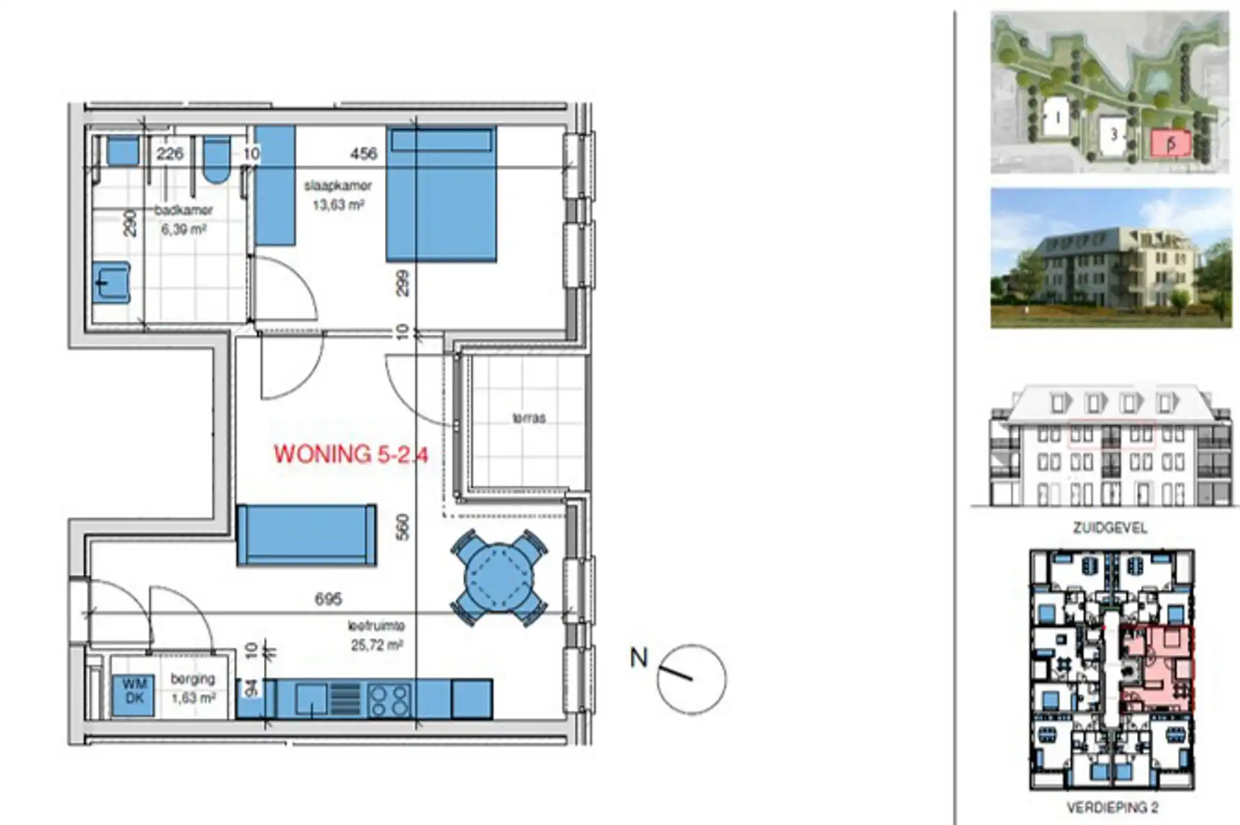
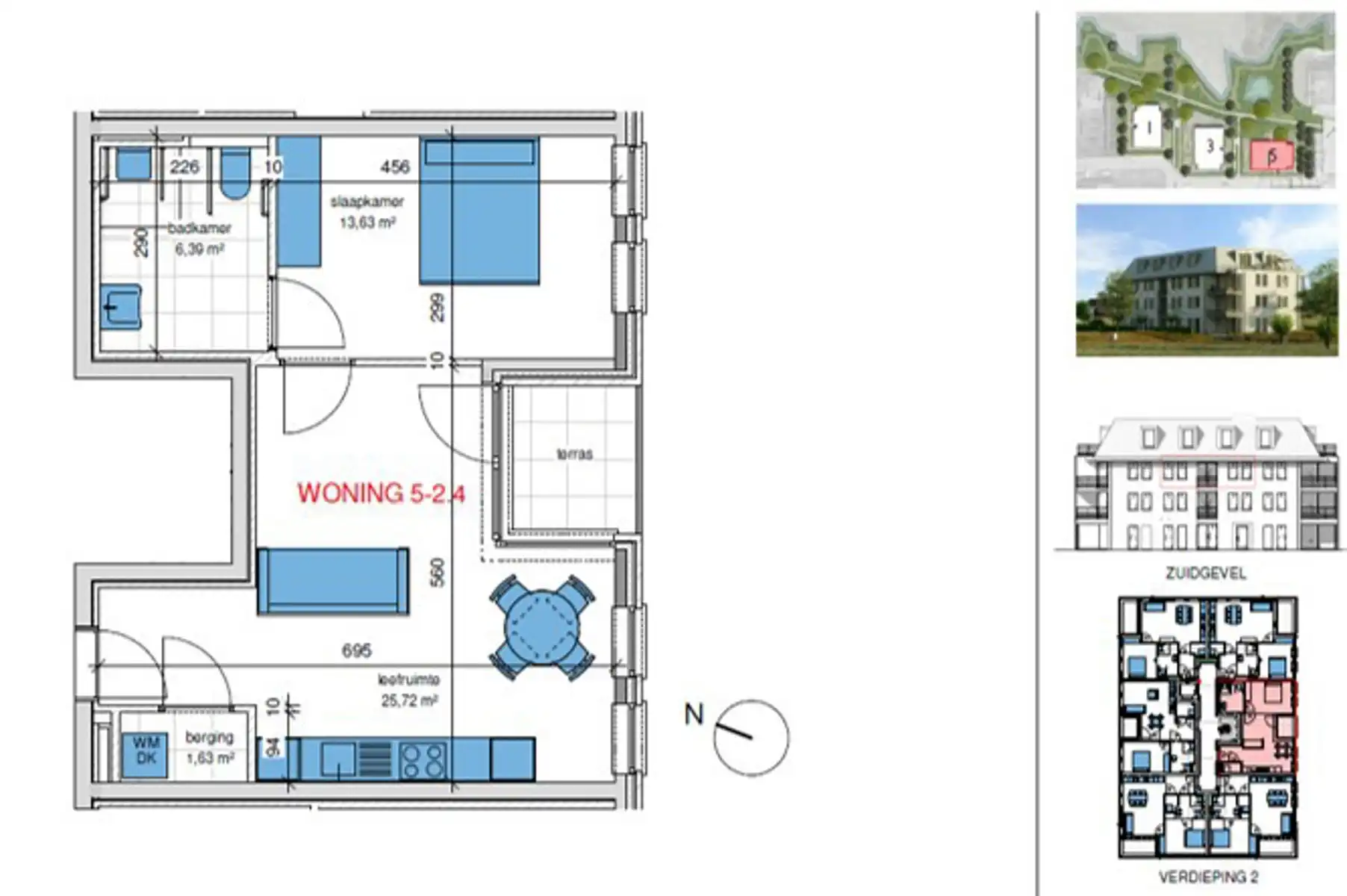
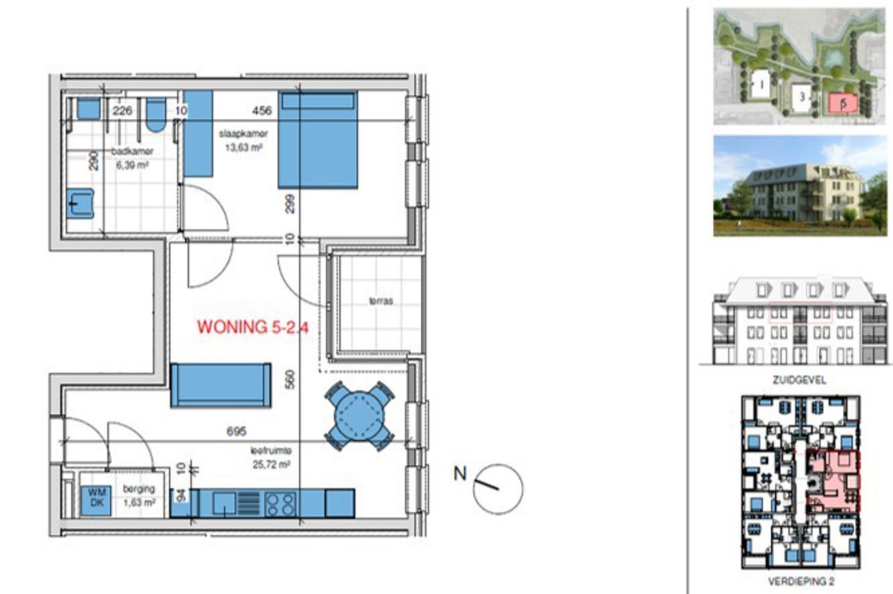
Deze assistentiewoning is gelegen in de Rector de Somerstraat blok 5 op de 2de verdieping, dicht bij de Beekstraat.
Dit appartement voldoet aan alles voorwaarden om een ‘erkende’ assistentiewoning te zijn
Instapklaar, mooi afgewerkt en in zeer goede staat … als nieuwe bewoners kan u direct uw nieuwe ‘thuis’ bewonen.
Indeling: inkomhal, berging, leefruimte met open keuken, badkamer, een grote slaapkamer en een inpandig terras (2x2).
Via de lift kan men ook naar de ondergrondse parking waar ook nog een ruime privatieve berging is (niveau -1) en een open autostaanplaats. Een berging is mee opgenomen in deze vraagprijs.
Op het gelijkvloers in blok 3 (middelste) is er een grote polyvalente ruimte toegangelijk voor de bewoners (en bezoek). Hier worden wekelijks activiteiten georganiseerd door Zorgbedrijf Vlaanderen (woonassistente).
Ook in Brasserie Wullebeeck (Blauwbrugstraat) kan u genieten op wo, do, vr en zat.
Voor de zorg (service fee) via Zorgbedrijf Vlaanderen dient u wel rekening te houden met 10,30 euro per dag.
Dit appartement voldoet aan alles voorwaarden om een ‘erkende’ assistentiewoning te zijn.
Heeft u interesse voor eigen gebruik (65-plus of zorgbehoevend) of bent u een investeerder dan nodigen wij u graag uit voor een bezichtiging.
Aarzel dus niet om ons te contacteren. + Sted. in aanvr.
Dit appartement voldoet aan alles voorwaarden om een ‘erkende’ assistentiewoning te zijn
Instapklaar, mooi afgewerkt en in zeer goede staat … als nieuwe bewoners kan u direct uw nieuwe ‘thuis’ bewonen.
Indeling: inkomhal, berging, leefruimte met open keuken, badkamer, een grote slaapkamer en een inpandig terras (2x2).
Via de lift kan men ook naar de ondergrondse parking waar ook nog een ruime privatieve berging is (niveau -1) en een open autostaanplaats. Een berging is mee opgenomen in deze vraagprijs.
Op het gelijkvloers in blok 3 (middelste) is er een grote polyvalente ruimte toegangelijk voor de bewoners (en bezoek). Hier worden wekelijks activiteiten georganiseerd door Zorgbedrijf Vlaanderen (woonassistente).
Ook in Brasserie Wullebeeck (Blauwbrugstraat) kan u genieten op wo, do, vr en zat.
Voor de zorg (service fee) via Zorgbedrijf Vlaanderen dient u wel rekening te houden met 10,30 euro per dag.
Dit appartement voldoet aan alles voorwaarden om een ‘erkende’ assistentiewoning te zijn.
Heeft u interesse voor eigen gebruik (65-plus of zorgbehoevend) of bent u een investeerder dan nodigen wij u graag uit voor een bezichtiging.
Aarzel dus niet om ons te contacteren. + Sted. in aanvr.
Energie
![]() |
- EPC Certificaat: 11030-G-2014/35/EP05954/A651/D01/SD017
Downloads
Financieel
| Prijs |
|---|
Berekening kosten
Je aankoopkosten? Die heb je snel berekend via de knop hieronder.
Bijkomende info
Gebouw
| Bouwjaar | 2018 |
|---|---|
| Bewoonbaar (m²) | 57.8 |
| Verdieping | 1 |
| Badkamers | 1 |
| Slaapkamers | 1 |
| Parkeerplaatsen | 0 |
Faciliteiten
| Type vloer | |
|---|---|
| Elektrisch keuringsattest | Ja |
Perceel
| P-score | D |
|---|---|
| G-score | A |
| Voorkeurrecht | Nee |
| Tuin oppervlakte (m²) | 0 |
Vergunning
| Vergunning | Vergunning beschikbaar |
|---|---|
| Verkavelingsvergunning | Vergunning beschikbaar |
| Bouwovertreding | Geen |
| Bouwovertreding dagvaardiging | Geen |
Uitrusting
| Parking | Nee |
|---|---|
| Garage | Nee |
| Kelder | Ja |
| Tuin | Nee |
| Terras | Ja |
| Lift | Ja |
| Gasaansluiting | Ja |
| Wateraansluiting | Ja |
| Elektriciteitsaansluiting | Ja |
Leer meer over vastgoed
23 March 2026
Op Spotto zoeken als een pro: 10 slimme tips
21 March 2026
Hoeveel kan ik lenen om een huis te kopen?
01 March 2026
Wanneer heb ik een bouwvergunning of omgevingsvergunning nodig?
17 February 2026
