Ideale gezinswoning op een A-locatie te Sint-Katelijne-Waver
Een pand van Immo Vercammen
Overzicht
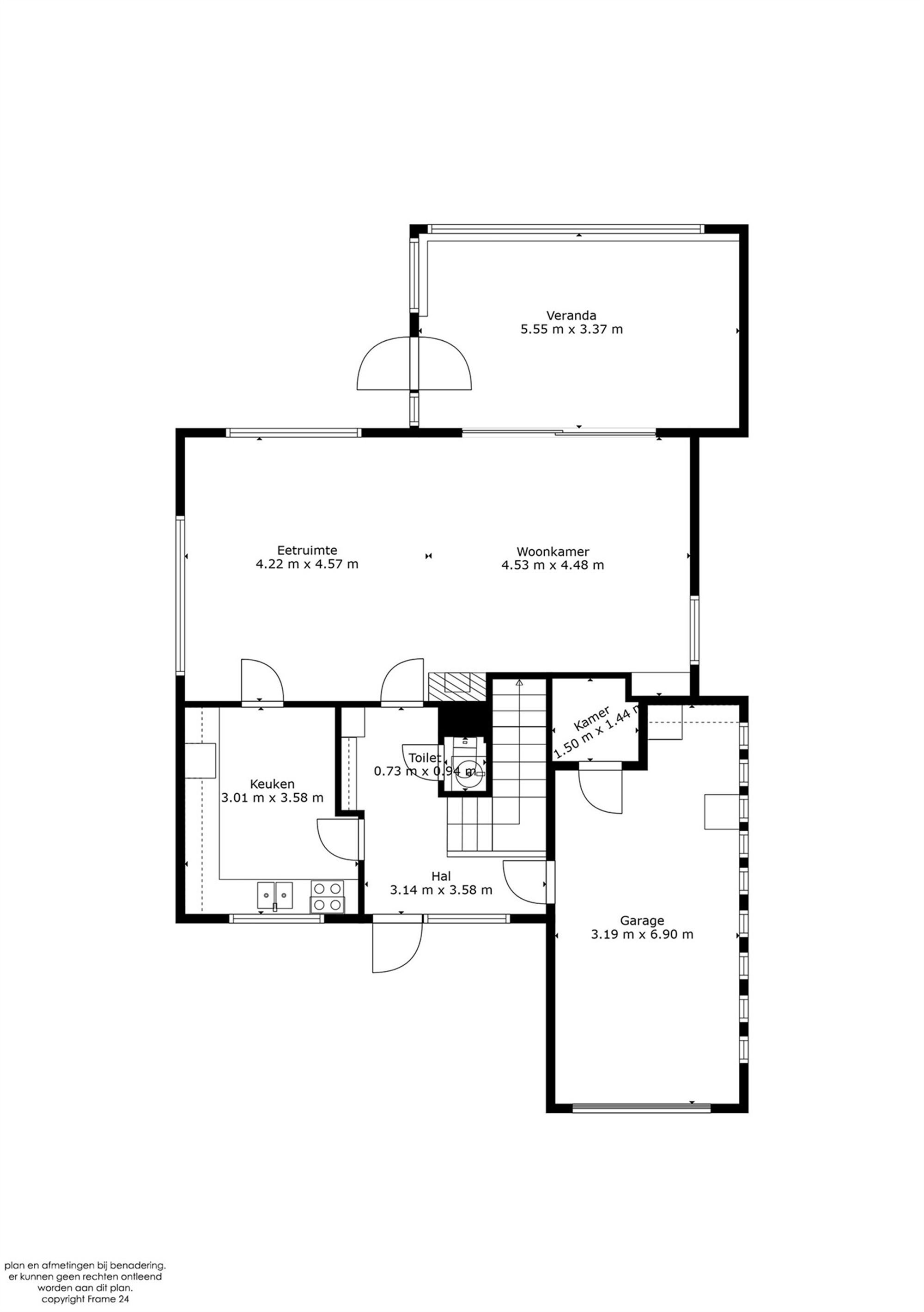
- 212 m² bewoonbaar
- 720 m² grond
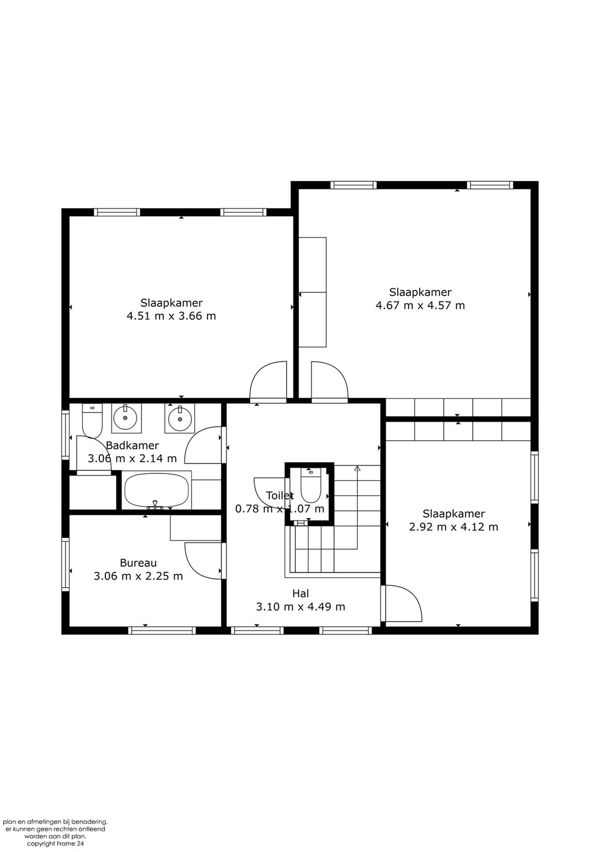
- 4 Slaapkamer(s)
- 1 Badkamer(s)
- 2 Toilet(ten)
- 1 Tuin
- 1 Garage(s)
Beschrijving
Ideale gezinswoning op een ware A-locatie te Sint-Katelijne-Waver, gelegen in een kindvriendelijke buurt met vlotte bereikbaarheid.
Deze solide open bebouwing werd steeds met de grootste zorg onderhouden. Dankzij de functionele indeling biedt deze woning een ideale thuis. Op het gelijkvloers is er een gezellige en lichtrijke woonkamer, bestaande uit tv-hoek en eetplaats, met aansluitend een ingerichte keuken en aan de andere zijde een knappe tuinkamer - mogelijk in te richten als bureau of bv. speelkamer. Op de eerste verdieping zijn er in totaal 4 slaapkamers, een badkamer met ligbad en een apart toilet. Een ruime garage, een wasruimte en een berging bieden voldoende parkeer- en stockageruimte en maken het geheel compleet. En indien u niet binnen wenst te vertoeven kan u heerlijk tot rust komen op het west gericht terras - met zonnetent - en in de aangename tuin met achteraan een praktische tuinberging.
Een unieke kans voor wie een woning zoekt gelegen in het landelijke Sint-Katelijne-Waver. Vlotte bereikbaarheid is een absolute troef dankzij een centrale ligging tussen Brussel en Antwerpen, nabij treinstation en fietsostrade.
Bezoek enkel na afspraak, vrijblijvende info op kantoor: 015/755 444 of info@immovercammen.be .
Renovatieplicht EPC: binnen 5 jaar na aankoop = verplichte renovatie tot label D of beter.
Energie
![]() |
- EPC Certificaat: 20250515-0003601788-RES-1
- Energieverbruik: 437 kWh/m²/jaar
- E-peil: E0
- Beglazing: Standaard dubbel
Extra budget nodig voor je renovatie?

Op de kaart

Downloads
Virtual tour
Ontdek het hele pand alvorens je bezoek via de virtuele tour, werkelijkheid gemaakt door Walkly. Geen verassingen tijdens het bezoek!
Beleef de virtuele tourFinancieel
| Prijs | |
|---|---|
| Kadastraal inkomen (niet geïndexeerd) | € 1.135 |
| Kadastraal inkomen (geïndexeerd) | € 0 |
Berekening kosten
Je aankoopkosten? Die heb je snel berekent via de knop hieronder.
Bijkomende info
Gebouw
| Bouwjaar | 1967 |
|---|---|
| Staat | Goed onderhouden |
| Bouwcertificaat | Nee |
| Bewoonbaar (m²) | 212 |
| Verdieping | 0 |
| Badkamers | 1 |
| Slaapkamers | 4 |
| Verdiepingen | 0 |
| Garages | 1 |
| Parkeerplaatsen | 1 |
| Doucheruimtes | 0 |
| Toiletten | 2 |
Faciliteiten
| Materiaal ramenomlijstingen | Hout |
|---|---|
| Beglazing | Standaard dubbel |
| Elektrisch keuringsattest | Nee |
Perceel
| Overstromingsgevoelig | Geen |
|---|---|
| P-score | A |
| G-score | A |
| Voorkeurrecht | Nee |
| Totale oppervlakte (m²) | 720 |
| Bebouwde oppervlakte (m²) | 0 |
| Tuin oppervlakte (m²) | 0 |
| Oppervlakte terras (m²) | 0 |
| Oriëntatie tuin | West |
Vergunning
| Vergunning | Vergunning beschikbaar |
|---|---|
| Verkavelingsvergunning | Vergunning beschikbaar |
Uitrusting
| Investeringspand | Nee |
|---|---|
| Geschikt voor praktijk | Nee |
| Parking | Ja |
| Garage | Ja |
| Thuiskantoor | Nee |
| Kelder | Ja |
| Zolder | Ja |
| Tuin | Ja |
| Terras | Ja |
| Lift | Nee |
| Rioolaansluiting | Ja |
| Gasaansluiting | Ja |
| Wateraansluiting | Ja |
| Elektriciteitsaansluiting | Ja |
| TV aansluiting | Ja |
| Internetaansluiting | Ja |
| Telefoonaansluiting | Ja |



