Instapklare woning te Sint-Katelijne-Waver, ideaal voor starters en kleine gezinnen
Een pand van Immo Vercammen
Overzicht
- 120 m² bewoonbaar
- 175 m² grond
- 2 Slaapkamer(s)
- 1 Badkamer(s)
- 1 Toilet(ten)
Beschrijving
Ontdek deze instapklare woning te Sint-Katelijne-Waver, ideaal voor starters en kleine gezinnen.
Bij binnenkomst in de woning wordt u verwelkomd in een gezellige woonkamer met veel natuurlijk licht en moderne elementen die bijdragen aan het open gevoel van de ruimte. De houten vloer straalt warmte en karakter uit, terwijl de minimalistische inrichting een stijlvolle uitstraling heeft. Aansluitend aan de woonkamer bevindt zich de volledig uitgeruste en vernieuwde keuken, voorzien van moderne toestellen en voldoende kastruimte. Verder is er op het gelijkvloers nog een ruime, en op haar beurt vernieuwde, badkamer met een apart toilet.
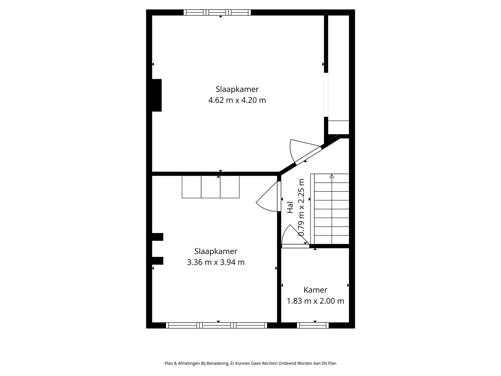
Op de verdieping geeft de nachthal toegang tot 2 royale slaapkamers en nog een aangename bureauruimte, ideaal voor thuiswerk of hobby.
De woning is praktisch ingedeeld, met een bruikbare kelder als extra troef om te kunnen stockeren. Daarnaast is er een knusse buitenruimte met voldoende privacy, waar u kunt ontspannen en genieten van de zon. Ideaal voor gezellige avonden !
Voldoende parkeergelegenheid gegarandeerd, o.a. door de twee parkeerplaatsen op de oprit van de woning.
Een unieke kans voor wie een woning zoekt gelegen op de stadsrand van Mechelen, nabij scholen en winkels, sport en ontspanning.
Vlotte bereikbaarheid is tevens een troef: een centrale ligging tussen Brussel en Antwerpen, te bereiken via openbaar vervoer, treinstation, belangrijke verbindingswegen en fietsostrade.
Bezoek enkel na afspraak, vrijblijvende info op kantoor: 015/755 444 of info@immovercammen.be
Energie
![]() |
- EPC Certificaat: 20251108-0003729448-RES-1
- Energieverbruik: 313 kWh/m²/jaar
- E-peil: E0
- Verwarming: Gas
- Beglazing: Standaard dubbel
Extra budget nodig voor je renovatie?

Op de kaart

Financieel
| Prijs | |
|---|---|
| Kadastraal inkomen (niet geïndexeerd) | € 569 |
| Kadastraal inkomen (geïndexeerd) | € 0 |
Berekening kosten
Je aankoopkosten? Die heb je snel berekent via de knop hieronder.
Bijkomende info
Gebouw
| Bouwjaar | 1935 |
|---|---|
| Staat | Goed onderhouden |
| Bouwcertificaat | Nee |
| Bewoonbaar (m²) | 120 |
| Verdieping | 0 |
| Badkamers | 1 |
| Slaapkamers | 2 |
| Verdiepingen | 0 |
| Garages | 0 |
| Parkeerplaatsen | 3 |
| Doucheruimtes | 0 |
| Toiletten | 1 |
Faciliteiten
| Keuken uitrusting | Luxueus uitgerust |
|---|---|
| Materiaal ramenomlijstingen | PVC |
| Beglazing | Standaard dubbel |
| Brandstof primaire verwarming | Gas |
| Elektrisch keuringsattest | Nee |
Perceel
| Overstromingsgevoelig | Geen |
|---|---|
| P-score | A |
| G-score | A |
| Voorkeurrecht | Nee |
| Totale oppervlakte (m²) | 175 |
| Bebouwde oppervlakte (m²) | 0 |
| Tuin oppervlakte (m²) | 0 |
| Oppervlakte terras (m²) | 0 |
| Oriëntatie tuin | ZuidOost |
Vergunning
| Vergunning | Vergunning beschikbaar |
|---|
Uitrusting
| Investeringspand | Nee |
|---|---|
| Geschikt voor praktijk | Nee |
| Parking | Ja |
| Garage | Nee |
| Thuiskantoor | Nee |
| Kelder | Ja |
| Zolder | Nee |
| Tuin | Nee |
| Terras | Nee |
| Lift | Nee |
| Rioolaansluiting | Ja |
| Gasaansluiting | Ja |
| Wateraansluiting | Ja |
| Elektriciteitsaansluiting | Ja |
| TV aansluiting | Ja |
| Internetaansluiting | Ja |
| Telefoonaansluiting | Ja |


