Recent gemoderniseerde woning te Sint-Katelijne-Waver
Een pand van Immo Vercammen
Overzicht
- 185 m² bewoonbaar
- 239 m² grond
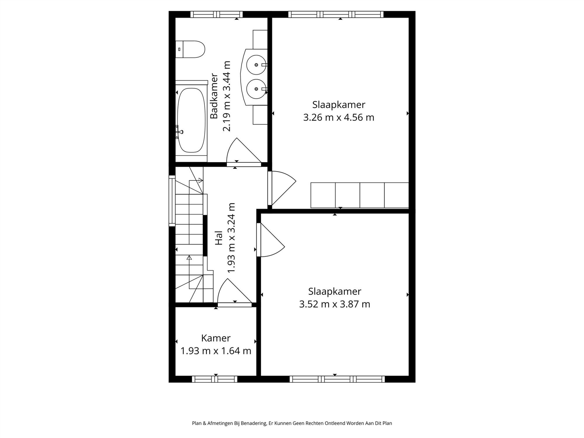
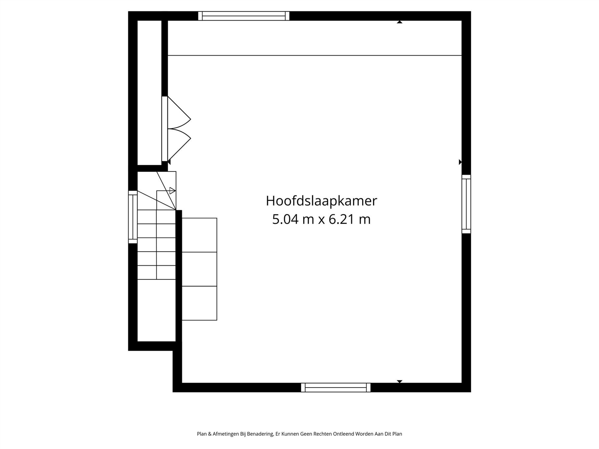
- 3 Slaapkamer(s)
- 1 Badkamer(s)
- 2 Toilet(ten)
- 1 Tuin
Beschrijving
Perfect instapklare woning met 3 slaapkamers en bureel, gunstig gelegen te Sint-Katelijne-Waver.
Deze mooie woning werd afgelopen jaren grotendeels gemoderniseerd en geoptimaliseerd. Een gunstig EPC is verkregen, o.a. dankzij zonnepanelen, thuisbatterij, een recente condensatieketel op aardgas en warmtepomp (lucht-lucht). De woonkamer en slaapkamers kunnen gekoeld/verwarmd worden via airco. Op het gelijkvloers is er een gezellige en lichtrijke woonkamer met aansluitend open leefkeuken met eetplaats en bureauruimte, een ideale thuis om mensen te ontvangen. Op de eerste verdieping zijn er in totaal 2 slaapkamers, een kleine kamer / bureel en een knappe badkamer met ligbad en toilet. Op de tweede verdieping is er een zeer ruime slaapkamer ingericht met naastliggend technische ruimte. Twee praktische bergruimtes bieden voldoende stockageruimte. En indien u niet binnen wenst te vertoeven, kan u heerlijk tot rust komen op het ruime terras en in de gezellige stadstuin - zuidoost georiënteerd.
Een unieke kans voor wie een woning zoekt nabij in het dorpscentrum van Sint-Katelijne-Waver, nabij scholen en winkels. Vlotte bereikbaarheid is tevens een troef, een centrale ligging tussen Brussel en Antwerpen, nabij stad Mechelen, treinstation en fietsostrade.
Kom de troeven ter plaatse ontdekken. Bezoek enkel na afspraak, vrijblijvende info op kantoor: 015/755 444 of info@immovercammen.be
Beschikbaarheid overeen te komen.
Energie
![]() |
- EPC Certificaat: 20251127-0003743793-RES-1
- Energieverbruik: 110 kWh/m²/jaar
- E-peil: E0
- Verwarming: Gas
- Beglazing: Standaard dubbel
Op de kaart

Financieel
| Prijs | |
|---|---|
| Kadastraal inkomen (niet geïndexeerd) | € 657 |
| Kadastraal inkomen (geïndexeerd) | € 0 |
Berekening kosten
Je aankoopkosten? Die heb je snel berekent via de knop hieronder.
Bijkomende info
Gebouw
| Bouwjaar | 1952 |
|---|---|
| Staat | Goed onderhouden |
| Bouwcertificaat | Nee |
| Bewoonbaar (m²) | 185 |
| Verdieping | 0 |
| Badkamers | 1 |
| Slaapkamers | 3 |
| Verdiepingen | 0 |
| Garages | 0 |
| Parkeerplaatsen | 2 |
| Doucheruimtes | 0 |
| Toiletten | 2 |
Faciliteiten
| Materiaal ramenomlijstingen | PVC |
|---|---|
| Beglazing | Standaard dubbel |
| Brandstof primaire verwarming | Gas |
| Elektrisch keuringsattest | Ja |
Perceel
| Overstromingsgevoelig | Geen |
|---|---|
| P-score | A |
| G-score | A |
| Voorkeurrecht | Nee |
| Totale oppervlakte (m²) | 239 |
| Bebouwde oppervlakte (m²) | 0 |
| Tuin oppervlakte (m²) | 0 |
| Oppervlakte terras (m²) | 0 |
| Oriëntatie tuin | Oost |
Vergunning
| Vergunning | Vergunning beschikbaar |
|---|
Uitrusting
| Investeringspand | Nee |
|---|---|
| Geschikt voor praktijk | Nee |
| Parking | Ja |
| Garage | Nee |
| Thuiskantoor | Nee |
| Kelder | Ja |
| Zolder | Nee |
| Tuin | Ja |
| Terras | Ja |
| Lift | Nee |
| Rioolaansluiting | Ja |
| Gasaansluiting | Ja |
| Wateraansluiting | Ja |
| Elektriciteitsaansluiting | Ja |
| TV aansluiting | Ja |
| Internetaansluiting | Ja |
| Telefoonaansluiting | Ja |
