Woning
Een pand van Immo Vasta
Overzicht
- 317 m² bewoonbaar
- 11319 m² grond
- 2 Slaapkamer(s)
- 1 Badkamer(s)
- 1 Toilet(ten)
- 1 Tuin
Beschrijving
Deze te renoveren hoeve op de Spoorweglei 2 is een zeldzame vondst: een charmant, vrijstaand pand op een perceel van meer dan 1 hectare groen, vlakbij het station van Sint-Katelijne-Waver. Perfect voor wie houdt van rust, ruimte en een landelijke omgeving, maar ook vlotte verbindingen naar Mechelen, Lier en Antwerpen wil.
Rustig wonen in het groen, authentiek & vol potentieel
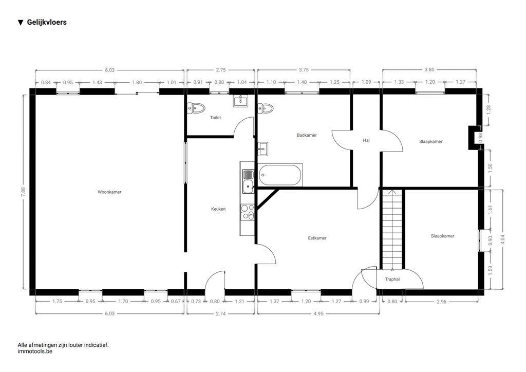
Achter de landelijke gevel schuilt een woning met karakter en tal van mogelijkheden. Het gelijkvloers omvat een ruime leefruimte van 50m² met tegelvloer, schuifraam en veel lichtinval — ideaal om open te trekken naar tuin of terras. Via de eetkamer bereik je de keuken en aansluitende badkamer (met bad, lavabo en toilet). Verder zijn er twee slaapkamers (12m² en 15m²) op het gelijkvloers, en een uitgestrekte zolderruimte van 150m², perfect om extra kamers of een hobbyruimte te creëren.
De woning biedt een totale bewoonbare oppervlakte van 317m², met een grote oprit en ruime parkeermogelijkheden op het terrein.
Landelijk wonen, vlak bij alles
De ligging van deze hoeve is uitzonderlijk: in een rustige, landelijke omgeving, met weidse vergezichten over de omliggende velden en weilanden. Toch sta je te voet aan het station van Sint-Katelijne-Waver en op enkele minuten fietsen van winkels, scholen en horeca. De fietsostrade richting Mechelen en Lier loopt langs je deur, ideaal voor wie graag wandelt of fietst. Dankzij de nabijheid van de N15 en E19 ben je ook met de auto overal vlot.
Energie
![]() |
- EPC Certificaat: 20251228-0003767197-RES-1
- Energieverbruik: 580 kWh/m²/jaar
- E-peil: E0
- Verwarming: Gas
- Beglazing: Standaard dubbel
Extra budget nodig voor je renovatie?

Op de kaart

Financieel
| Prijs | |
|---|---|
| Kadastraal inkomen (niet geïndexeerd) | € 0 |
| Kadastraal inkomen (geïndexeerd) | € 0 |
Berekening kosten
Je aankoopkosten? Die heb je snel berekent via de knop hieronder.
Bijkomende info
Gebouw
| Bouwjaar | 1932 |
|---|---|
| Staat | Op te frissen |
| Bouwcertificaat | Nee |
| Bewoonbaar (m²) | 317 |
| Verdieping | 0 |
| Badkamers | 1 |
| Slaapkamers | 2 |
| Verdiepingen | 1 |
| Garages | 0 |
| Parkeerplaatsen | 4 |
| Doucheruimtes | 0 |
| Toiletten | 1 |
Faciliteiten
| Keuken uitrusting | Luxueus uitgerust |
|---|---|
| Materiaal ramenomlijstingen | PVC |
| Beglazing | Standaard dubbel |
| Brandstof primaire verwarming | Gas |
| Elektrisch keuringsattest | Nee |
Perceel
| Overstromingsgevoelig | Geen |
|---|---|
| P-score | A |
| G-score | A |
| Voorkeurrecht | Nee |
| Totale oppervlakte (m²) | 11319 |
| Bebouwde oppervlakte (m²) | 0 |
| Tuin oppervlakte (m²) | 11000 |
| Oppervlakte terras (m²) | 0 |
| Oriëntatie tuin | ZuidOost |
Vergunning
| Vergunning | Aanvraag ingediend |
|---|---|
| Type gebied | Landelijk |
Uitrusting
| Investeringspand | Nee |
|---|---|
| Geschikt voor praktijk | Nee |
| Parking | Ja |
| Garage | Nee |
| Thuiskantoor | Nee |
| Kelder | Nee |
| Zolder | Nee |
| Tuin | Ja |
| Terras | Nee |
| Lift | Nee |
| Rioolaansluiting | Nee |
| Gasaansluiting | Nee |
| Wateraansluiting | Nee |
| Elektriciteitsaansluiting | Nee |
| TV aansluiting | Nee |
| Internetaansluiting | Nee |
| Telefoonaansluiting | Nee |



