Te renoveren woning met achterliggend weiland
Een pand van Immo Vasta
Overzicht
- 165 m² bewoonbaar
- 3754 m² grond
- 3 Slaapkamer(s)
- 1 Badkamer(s)
- 1 Toilet(ten)
- 1 Tuin
Beschrijving
Op zoek naar een woning met potentieel én een zee van ruimte rondom? Aan de Spoorweglei 5 in Sint-Katelijne-Waver vind je deze open bebouwing met drie slaapkamers, een ruime garageberging en een groen perceel van meer dan 36 are. Dankzij de centrale ligging nabij het station en de fietsostrade geniet je hier van rust, natuur en een vlotte bereikbaarheid tegelijk.
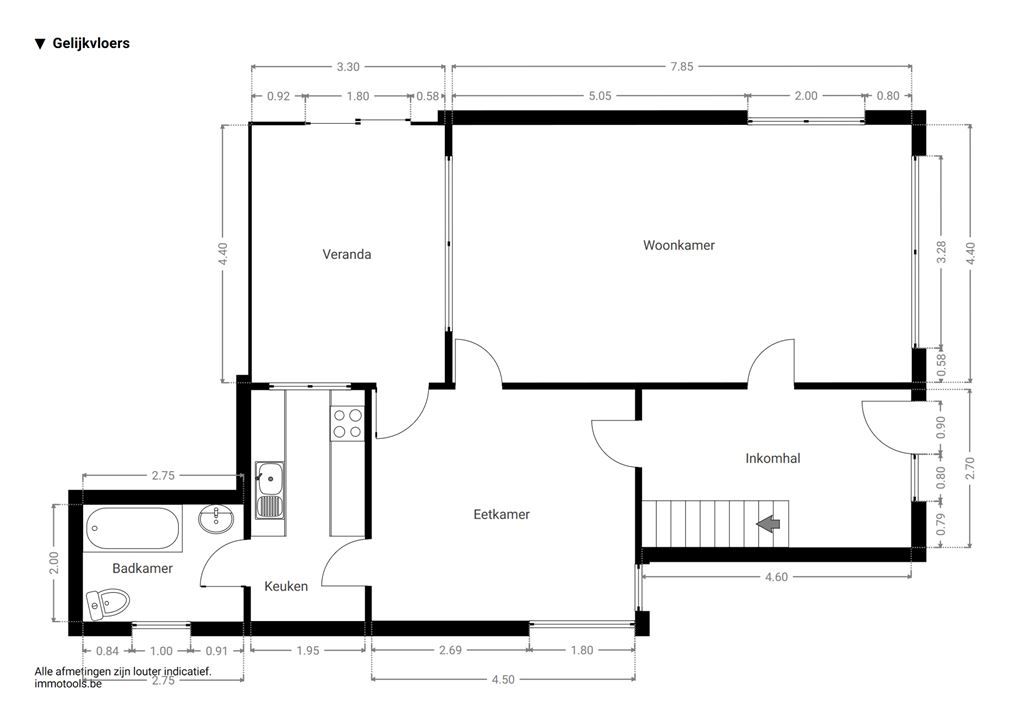
Ruimte, licht en authenticiteit
Via de inkomhal met tegelvloer en houten trap kom je in de ruime living van 37 m², waar veel licht binnenvalt via de grote ramen. De authentieke schouw herinnert aan het karakter van de woning. De aansluitende eetkamer (19 m²) vormt het hart van het huis en verbindt de leefruimte met de keuken en veranda. De keuken kijkt uit op de veranda en biedt een mooie basis om te moderniseren. Verder vind je beneden een badkamer met ligbad en toilet, en een veranda met schuifdeur naar de tuin met landelijk uitzicht.
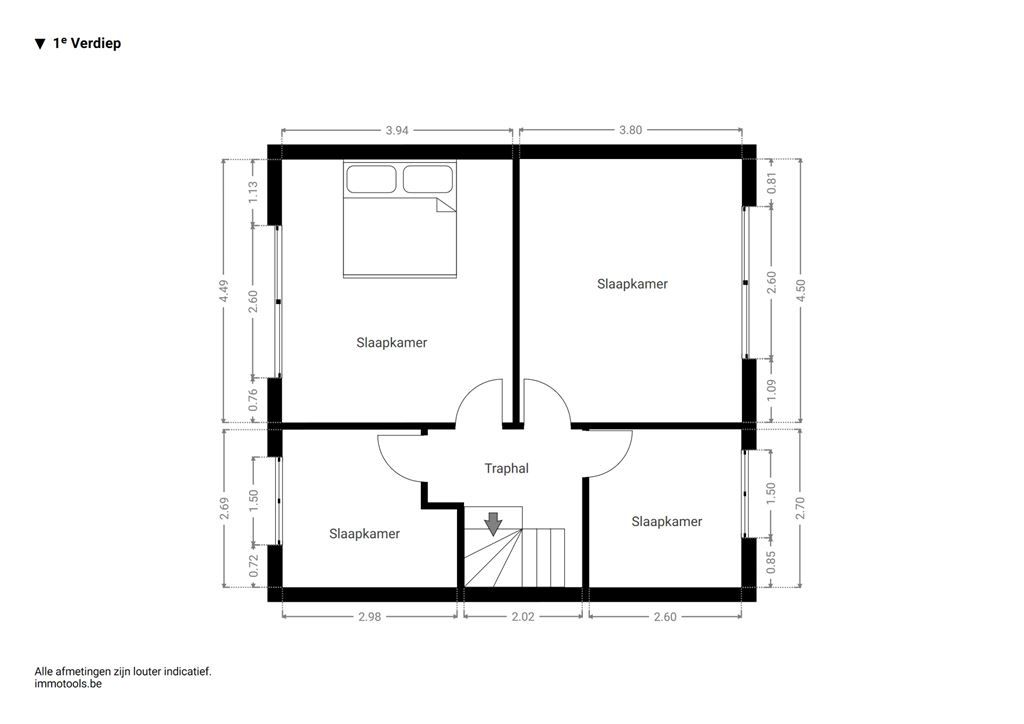
Drie slaapkamers & berging
Op de eerste verdieping liggen drie slaapkamers van respectievelijk ca. 7 m², 15 m² en 18 m². Achteraan bevindt zich nog een praktische berging – ideaal als dressing of extra opslagruimte.
Groen rondom & rust verzekerd
Met een tuin van 3.609 m², inclusief weiland en landelijk uitzicht, woon je hier in een oase van rust. Een ruim tuinhuis biedt extra berging, en de grote oprit zorgt voor meerdere parkeerplaatsen. De ligging is top: tussen Mechelen, Lier en Antwerpen, op wandelafstand van het station van Sint-Katelijne-Waver. Winkels, scholen en horeca liggen vlakbij, terwijl je geniet van een landelijke, groene omgeving.
Energie
![]() |
- EPC Certificaat: 20251229-0003767607-RES-2
- Energieverbruik: 1049 kWh/m²/jaar
- E-peil: E0
- Beglazing: Standaard dubbel
Extra budget nodig voor je renovatie?

Op de kaart

Financieel
| Prijs | |
|---|---|
| Kadastraal inkomen (niet geïndexeerd) | € 0 |
| Kadastraal inkomen (geïndexeerd) | € 0 |
Berekening kosten
Je aankoopkosten? Die heb je snel berekent via de knop hieronder.
Bijkomende info
Gebouw
| Bouwjaar | 1965 |
|---|---|
| Staat | Op te frissen |
| Bouwcertificaat | Nee |
| Bewoonbaar (m²) | 165 |
| Verdieping | 0 |
| Badkamers | 1 |
| Slaapkamers | 3 |
| Verdiepingen | 2 |
| Garages | 0 |
| Parkeerplaatsen | 4 |
| Doucheruimtes | 0 |
| Toiletten | 1 |
Faciliteiten
| Keuken uitrusting | Luxueus uitgerust |
|---|---|
| Materiaal ramenomlijstingen | PVC |
| Beglazing | Standaard dubbel |
| Elektrisch keuringsattest | Nee |
Perceel
| Overstromingsgevoelig | Geen |
|---|---|
| P-score | A |
| G-score | A |
| Voorkeurrecht | Nee |
| Totale oppervlakte (m²) | 3754 |
| Bebouwde oppervlakte (m²) | 0 |
| Tuin oppervlakte (m²) | 3609 |
| Oppervlakte terras (m²) | 0 |
| Oriëntatie tuin | Oost |
Vergunning
| Vergunning | Aanvraag ingediend |
|---|---|
| Type gebied | Landelijk |
Uitrusting
| Investeringspand | Nee |
|---|---|
| Geschikt voor praktijk | Nee |
| Parking | Ja |
| Garage | Nee |
| Thuiskantoor | Nee |
| Kelder | Nee |
| Zolder | Nee |
| Tuin | Ja |
| Terras | Nee |
| Lift | Nee |
| Rioolaansluiting | Nee |
| Gasaansluiting | Nee |
| Wateraansluiting | Nee |
| Elektriciteitsaansluiting | Nee |
| TV aansluiting | Nee |
| Internetaansluiting | Nee |
| Telefoonaansluiting | Nee |



