Standingvolle woning met 6 slaapkamers te Sint-Katelijne-Waver
Een pand van Immo Vercammen
Overzicht
- 246 m² bewoonbaar
- 1000 m² grond
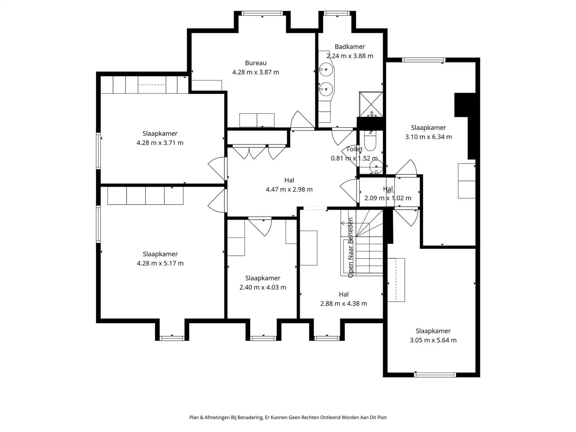
- 6 Slaapkamer(s)
- 1 Badkamer(s)
- 2 Toilet(ten)
- 1 Tuin
- 1 Garage(s)
Beschrijving
Standingvolle gezinswoning met verrassend ruime bewoonbare oppervlakte, gunstig gelegen in een residentiële omgeving te Sint-Katelijne-Waver, nabij het bruisende Mechelen.
Deze aangename gezinswoning biedt dankzij een ruime bewoonbare oppervlakte en een groot aantal kamers diverse mogelijkheden, o.a. grote of nieuw samengestelde gezinnen, thuiswerk, zelfstandige activiteit, etc. We betreden de woning via de riante inkomhal met traphal, vestiaire en gastentoilet. Een lichtrijke woonkamer biedt samen met de gezellige eetplaats en veranda een ideale thuis om mensen te ontvangen. Zowel vanuit de leefruimte als ook de leefkeuken heeft u zicht op de aangename tuin.
De wasplaats, koele berging, CV-ruimte en inpandige, dubbele garage maken het gelijkvloers compleet. De nachthal op de eerste verdieping geeft toegang tot maar liefst 6 slaapkamers, een badkamer met douche, een apart toilet en verscheidene bergruimtes.
Deze knappe villa is gelegen in een rustige straat op fietsafstand van scholen, winkels, openbaar vervoer, sport- en ontspanningsmogelijkheden. Het nabij gelegen militair domein biedt eveneens mogelijkheden voor mooie wandelingen.
Een vlotte bereikbaarheid is gegarandeerd dankzij de gunstige ligging centraal tussen Brussel en Antwerpen, via belangrijke invalswegen, openbaar vervoer of fietsostrade.
Kom de troeven van dit prachtig eigendom ter plaatse ontdekken en maak een afspraak: 015/755 444 of info@immovercammen.be
Renovatieplicht EPC: binnen 6 jaar na aankoop = verplichte renovatie tot label D of beter.
Energie
![]() |
- EPC Certificaat: 20260227-0003812995-RES-1
- Energieverbruik: 459 kWh/m²/jaar
- E-peil: E0
- Verwarming: Gas
- Beglazing: Standaard dubbel
Extra budget nodig voor je renovatie?

Op de kaart

Financieel
| Prijs | |
|---|---|
| Kadastraal inkomen (niet geïndexeerd) | € 1.603 |
| Kadastraal inkomen (geïndexeerd) | € 0 |
Berekening kosten
Je aankoopkosten? Die heb je snel berekend via de knop hieronder.
Bijkomende info
Gebouw
| Bouwjaar | 1979 |
|---|---|
| Staat | Goed onderhouden |
| Bouwcertificaat | Nee |
| Bewoonbaar (m²) | 246 |
| Verdieping | 0 |
| Badkamers | 1 |
| Slaapkamers | 6 |
| Verdiepingen | 0 |
| Garages | 1 |
| Parkeerplaatsen | 2 |
| Doucheruimtes | 0 |
| Toiletten | 2 |
Faciliteiten
| Keuken uitrusting | Luxueus uitgerust |
|---|---|
| Materiaal ramenomlijstingen | Hout |
| Beglazing | Standaard dubbel |
| Brandstof primaire verwarming | Gas |
| Elektrisch keuringsattest | Nee |
Perceel
| Overstromingsgevoelig | Geen |
|---|---|
| P-score | A |
| G-score | A |
| Voorkeurrecht | Nee |
| Totale oppervlakte (m²) | 1000 |
| Bebouwde oppervlakte (m²) | 0 |
| Tuin oppervlakte (m²) | 0 |
| Oppervlakte terras (m²) | 0 |
| Oriëntatie tuin | Noord |
Vergunning
| Vergunning | Vergunning beschikbaar |
|---|---|
| Verkavelingsvergunning | Vergunning beschikbaar |
Uitrusting
| Investeringspand | Nee |
|---|---|
| Geschikt voor praktijk | Nee |
| Parking | Ja |
| Garage | Ja |
| Thuiskantoor | Nee |
| Kelder | Ja |
| Zolder | Ja |
| Tuin | Ja |
| Terras | Ja |
| Lift | Nee |
| Rioolaansluiting | Ja |
| Gasaansluiting | Ja |
| Wateraansluiting | Ja |
| Elektriciteitsaansluiting | Ja |
| TV aansluiting | Ja |
| Internetaansluiting | Ja |
| Telefoonaansluiting | Ja |



