UW KANTOOR IN HET INNOVATIEVE MARTAL BEDRIJVENCENTRUM!
Prijs op aanvraag
Een pand van IMMO ID
Jouw zoektocht
Overzicht
Beschrijving
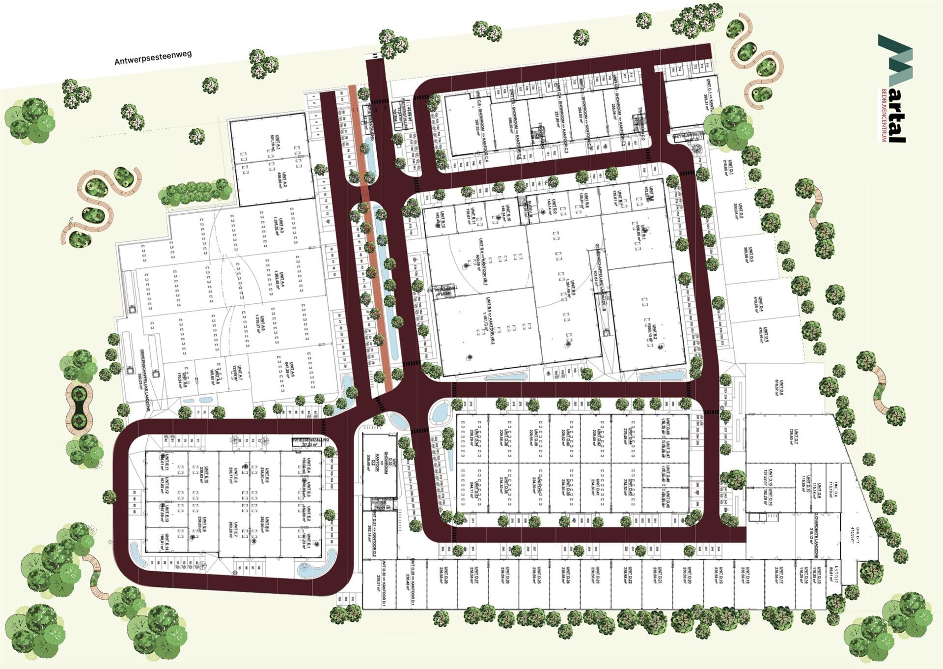
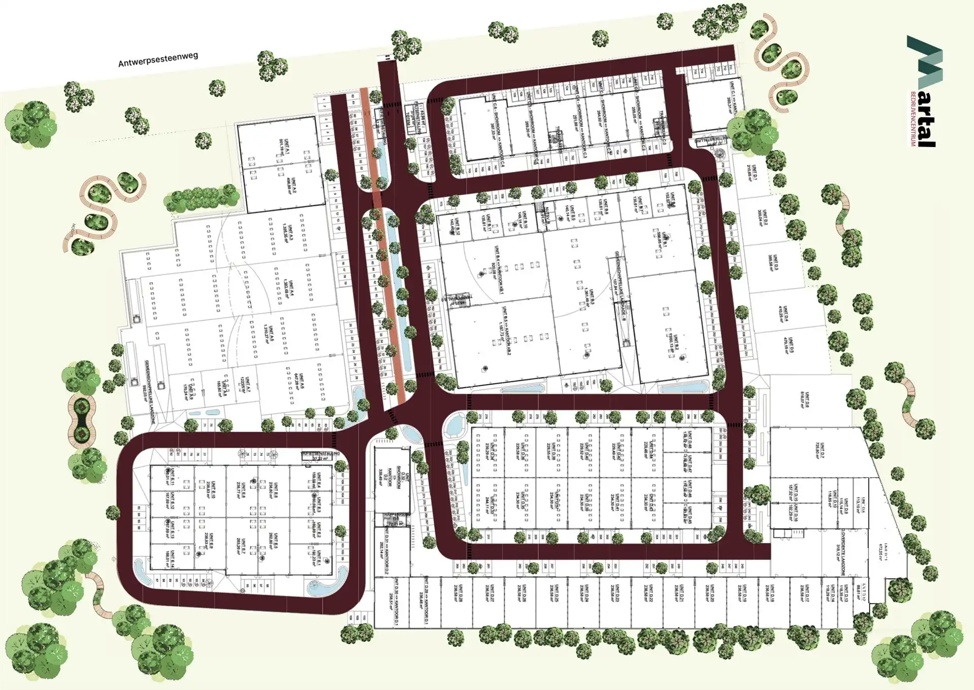
Uw kantoor in het Martal Bedrijvencentrum
Het Martal Bedrijvencentrum biedt kantoren die variëren in grootte, van +/- 262 m² tot +/- 830 m², perfect voor bedrijven die een professionele en inspirerende werkomgeving zoeken.
Dit moderne bedrijvencomplex is dé locatie om uw bedrijf te vestigen en te verbinden met een breed netwerk van professionals.
Waarom kiezen voor kantoorruimte in Martal?
Flexibele kantoren
Kantoorunits op maat, afgestemd op de behoeften van uw bedrijf, met indelingsmogelijkheden voor optimale werkefficiëntie.
Onderdeel van een professioneel netwerk
Werk in een stimulerende omgeving vol gelijkgestemde professionals en partners, met volop netwerkkansen.
Duurzaam en innovatief
Het bedrijvencentrum mikt op moderne, duurzame technieken voor een veilige, toekomstgerichte werkplek.
Strategische ligging tussen Antwerpen en Brussel
Gemakkelijk bereikbaar voor medewerkers en klanten, en centraal gelegen met snelle verbindingen naar Antwerpen, Brussel en Mechelen.
Combineer met showroom of magazijn
Koppel uw kantoorruimte naar wens met een showroom of magazijn voor een alles-in-één bedrijfsoplossing.
We zijn enthousiast om met u in gesprek te gaan over een op maat gemaakte oplossing die perfect aansluit bij uw wensen en behoeften.
Ons team staat klaar om een gerichte prijsofferte te presenteren die precies past bij uw specifieke eisen.
Laten we samen de volgende stappen zetten voor een optimale aanwezigheid in het Martal-project!
Oplevering eind 2025, begin 2026.
Energie
- E-peil: E0
- Beglazing: Onbekend
Op de kaart

Financieel
| Kadastraal inkomen (niet geïndexeerd) | € 0 |
|---|---|
| Kadastraal inkomen (geïndexeerd) | € 0 |
Berekening kosten
Je aankoopkosten? Die heb je snel berekend via de knop hieronder.
Bijkomende info
Gebouw
| Bouwcertificaat | Nee |
|---|---|
| Verdieping | 0 |
| Badkamers | 0 |
| Slaapkamers | 0 |
| Verdiepingen | 0 |
| Garages | 0 |
| Parkeerplaatsen | 0 |
| Doucheruimtes | 0 |
| Toiletten | 0 |
Faciliteiten
| Elektrisch keuringsattest | Nee |
|---|
Perceel
| Overstromingsgevoelig | Geen |
|---|---|
| Voorkeurrecht | Ja |
| Bebouwde oppervlakte (m²) | 0 |
| Tuin oppervlakte (m²) | 0 |
| Oppervlakte terras (m²) | 0 |
Vergunning
| Vergunning | Vergunning beschikbaar |
|---|
Uitrusting
| Investeringspand | Nee |
|---|---|
| Geschikt voor praktijk | Nee |
| Parking | Nee |
| Garage | Nee |
| Thuiskantoor | Nee |
| Kelder | Nee |
| Zolder | Nee |
| Tuin | Nee |
| Terras | Nee |
| Lift | Nee |
| Rioolaansluiting | Nee |
| Gasaansluiting | Nee |
| Wateraansluiting | Nee |
| Elektriciteitsaansluiting | Nee |
| TV aansluiting | Nee |
| Internetaansluiting | Nee |
| Telefoonaansluiting | Nee |
Appartementsblok
| Lift | Nee |
|---|