UW UNIT IN HET INNOVATIEVE MARTAL BEDRIJVENCENTRUM!
Prijs op aanvraag
Een pand van IMMO ID
Jouw zoektocht
Overzicht
Beschrijving
Uw unit in het Martal Bedrijvencentrum
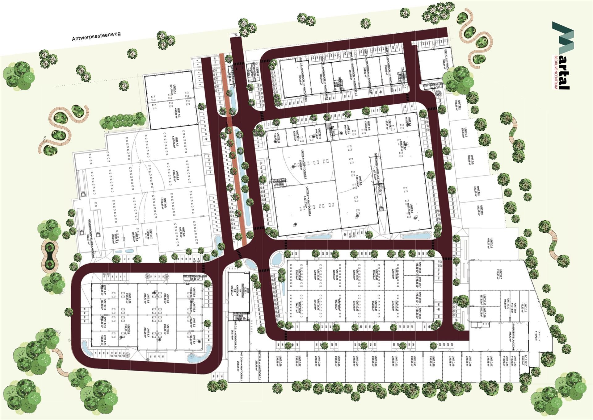
Het Martal Bedrijvencentrum biedt hoogwaardige units vanaf 141 m² tot 3.900 m², ideaal voor bedrijven die op zoek zijn naar efficiënte opslag- en werkruimtes.
Dit moderne bedrijvencomplex vormt een unieke community van professionals, waar samenwerking en netwerken centraal staan.
Voordelen van een unit in Martal
Units van 141 m² tot +/- 3.900 m²
Flexibele units die meegroeien met uw bedrijf, met een indeling die ideaal is voor opslag en/of werkruimte.
Onderdeel van een bouwgericht netwerk
Omring uzelf met toonaangevende bedrijven vnl. in de bouwsector en werk samen met strategische partners.
Duurzaam en innovatief
Het bedrijvencentrum mikt naar duurzame technieken voor een veilige en toekomstbestendige werkomgeving.
Strategische ligging tussen Antwerpen en Brussel
Perfect bereikbaar voor klanten en leveranciers, en een ideale uitvalsbasis richting Antwerpen, Brussel en Mechelen.
Combinatie-opties
Koppel uw magazijn eenvoudig aan kantoor- of showroomruimte, afgestemd op de specifieke behoeften van uw bedrijf.
Ontdek de vele voordelen van Martal Bedrijvencentrum en geef uw bedrijf een inspirerende, professionele basis.
We zijn enthousiast om met u in gesprek te gaan over een op maat gemaakte oplossing die perfect aansluit bij uw wensen en behoeften.
Ons team staat klaar om een gerichte prijsofferte te presenteren die precies past bij uw specifieke eisen.
Laten we samen de volgende stappen zetten voor een optimale aanwezigheid in het Martal-project!
Oplevering eind 2025, begin 2026.
Energie
- E-peil: E0
- Beglazing: Onbekend
Op de kaart

Financieel
| Kadastraal inkomen (niet geïndexeerd) | € 0 |
|---|---|
| Kadastraal inkomen (geïndexeerd) | € 0 |
Berekening kosten
Je aankoopkosten? Die heb je snel berekend via de knop hieronder.
Bijkomende info
Gebouw
| Bouwcertificaat | Nee |
|---|---|
| Verdieping | 0 |
| Badkamers | 0 |
| Slaapkamers | 0 |
| Verdiepingen | 0 |
| Garages | 0 |
| Parkeerplaatsen | 0 |
| Doucheruimtes | 0 |
| Toiletten | 0 |
Faciliteiten
| Elektrisch keuringsattest | Nee |
|---|
Perceel
| Overstromingsgevoelig | Geen |
|---|---|
| Voorkeurrecht | Ja |
| Bebouwde oppervlakte (m²) | 0 |
| Tuin oppervlakte (m²) | 0 |
| Oppervlakte terras (m²) | 0 |
Vergunning
| Vergunning | Vergunning beschikbaar |
|---|
Uitrusting
| Investeringspand | Nee |
|---|---|
| Geschikt voor praktijk | Nee |
| Parking | Nee |
| Garage | Nee |
| Thuiskantoor | Nee |
| Kelder | Nee |
| Zolder | Nee |
| Tuin | Nee |
| Terras | Nee |
| Lift | Nee |
| Rioolaansluiting | Nee |
| Gasaansluiting | Nee |
| Wateraansluiting | Nee |
| Elektriciteitsaansluiting | Nee |
| TV aansluiting | Nee |
| Internetaansluiting | Nee |
| Telefoonaansluiting | Nee |
Appartementsblok
| Lift | Nee |
|---|