Nieuw
Mooi dakappartement met zonneterras in Wintam
€ 399.000
Een pand van AX Quality Bornem
Favoriet
Jouw zoektocht
Jouw scoretabel voor dit pand
Aan het laden...
Jouw geplande bezichtigingen
Aan het laden...
Overzicht
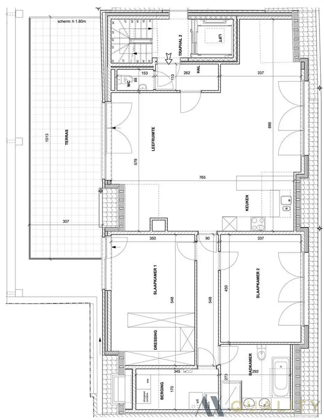
- 125 m² bewoonbaar
- 2 Slaapkamer(s)
- 1 Badkamer(s)
- 2 Toilet(ten)
Beschrijving
Mooi dakappartement (lift voorzien) met een groot zonneterras (31m²) in Wintam nabij de Schelde bestaande uit: inkomhal, apart toilet, ruime lichtrijke woonkamer met aansluitend de open volledig geïnstalleerde Ilwa keuken, nachthal, berging, badkamer voorzien van een ligbad, toilet en inloopdouche en 2 ruime slaapkamers (19m² en 15m²). Zowel vanuit de master bedroom als vanuit de woonkamer heeft men toegang tot het terras. Dit appartement beschikt tevens over een ruime bergzolder, te bereiken via een vlieringtrap en een staanplaats in de parkeergarage op het gelijkvloers. Gemeenschappelijke fietsenberging en vuilnisberging voorzien. Dit energiezuinig appartement is afgewerkt met hoogwaardige materialen. Verwarming via warmtepomp. Zeker een bezoekje waard. Voor meer info of een bezoek bel ons gerust op het nummer: 03/283.84.84 of mail naar christel@ax-quality.be.Vg/Wg/Gmo/Gvkr/Gvv EPB: 12007-G-2016/0044/EP13934/A001/D01/SD008 E-peil: E30. P score: A, G score: A
Energie
![]() |
Op de kaart

Financieel
| Prijs | |
|---|---|
| Kadastraal inkomen (niet geïndexeerd) | € 790 |
Berekening kosten
Je aankoopkosten? Die heb je snel berekend via de knop hieronder.
Bijkomende info
Gebouw
| Bouwjaar | 2019 |
|---|---|
| Staat | Nieuw |
| Bewoonbaar (m²) | 125 |
| Verdieping | 2 |
| Badkamers | 1 |
| Slaapkamers | 2 |
| Parkeerplaatsen | 1 |
| Toiletten | 2 |
Faciliteiten
| Type vloer | |
|---|---|
| Keuken uitrusting | Luxueus uitgerust |
Perceel
| Overstromingsgevoelig | Geen |
|---|---|
| P-score | A |
| G-score | A |
| Voorkeurrecht | Nee |
| Tuin oppervlakte (m²) | 0 |
| Oriëntatie terras | Zuid |
Vergunning
| Vergunning | Vergunning beschikbaar |
|---|---|
| Verkavelingsvergunning | Geen beschikbaar |
| Bouwovertreding | Geen |
| Bouwovertreding dagvaardiging | Geen |
Uitrusting
| Parking | Nee |
|---|---|
| Garage | Nee |
| Tuin | Nee |
| Terras | Ja |
| Lift | Ja |
Een pand van
AX Quality Bornem
Ax Quality, de sleutel naar uw toekomst
AX Immo en Immo-Quality slaan de handen in elkaar en worden samen Ax-Quality. Dezelfde experts, met dezelfde passie voor vastgoed.
7600079
Leer meer over vastgoed
23 March 2026
Op Spotto zoeken als een pro: 10 slimme tips
21 March 2026
Hoeveel kan ik lenen om een huis te kopen?
01 March 2026
Wanneer heb ik een bouwvergunning of omgevingsvergunning nodig?
17 February 2026
