Perceel bouwgrond voor een half-open bebouwing.
€ 279.000
Een pand van AX Quality Bornem
Overzicht
- 930 m² grond
Overstromingsgevaar perceel
Beschrijving
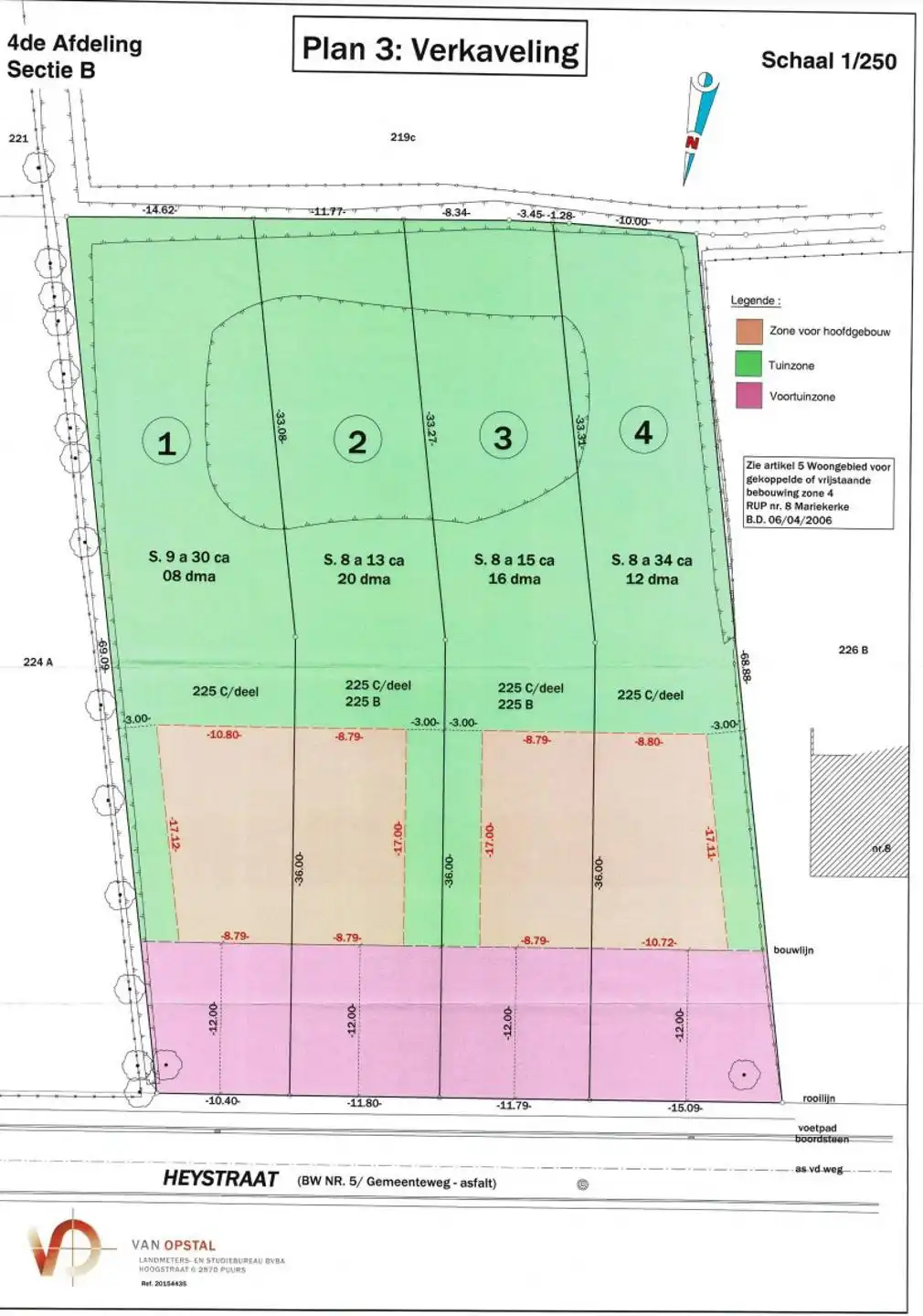
Mooi perceel bouwgrond voor een half-open bebouwing met een oppervlakte van 930m². Op het plan aangeduid als lot 1. Deze bouwgrond heeft een straatbreedte van 10m40, een bouwbreedte van 8m79 en een diepte van maximum 17m op het gelijkvloers, 13m op de eerste verdieping en 9m onder het dak. Vraag gerust naar de verkavelingsvoorschriften en verkavelingsplan. Niet overstromingsgevoelig. Wenst u meer info, maak een afspraak op nummer 03/283.84.84 of mail naar gert@ax-quality.be .
Energie
Op de kaart

Downloads
- RUP.pdf (pdf)
- Plan verkaveling.pdf (pdf)
- Verkavelingsvoorschriften.pdf (pdf)
Financieel
| Prijs |
|---|
Berekening kosten
Je aankoopkosten? Die heb je snel berekend via de knop hieronder.
Bijkomende info
Perceel
| Diepte (m) | 61 |
|---|---|
| Overstromingsgevoelig | Geen |
| P-score | D |
| Voorkeurrecht | Ja |
| Totale oppervlakte (m²) | 930 |
Vergunning
| Vergunning | Geen beschikbaar |
|---|---|
| Verkavelingsvergunning | Geen beschikbaar |
| Bouwovertreding | Geen |
| Bouwovertreding dagvaardiging | Geen |
Een pand van
AX Quality Bornem
Ax Quality, de sleutel naar uw toekomst
AX Immo en Immo-Quality slaan de handen in elkaar en worden samen Ax-Quality. Dezelfde experts, met dezelfde passie voor vastgoed.
5226429
Leer meer over vastgoed
01 March 2026
Wanneer heb ik een bouwvergunning of omgevingsvergunning nodig?
17 February 2026
Hoe breng ik een bod uit op een woning?
24 November 2025
Uitgezocht voor jouw gemeente: Hoeveel stijgt de waarde van je woning door een renovatie?
22 October 2025