Nieuw
Perceel bouwgrond voor een half-open bebouwing.
€ 279.000
Een pand van AX Quality Bornem
Favoriet
Jouw zoektocht
Jouw scoretabel voor dit pand
Aan het laden...
Jouw geplande bezichtigingen
Aan het laden...
Overzicht
- 930 m² grond
Overstromingsgevaar perceel
Beschrijving
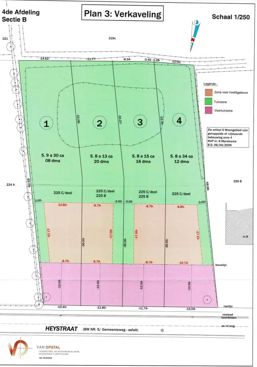
Mooi perceel bouwgrond voor een half-open bebouwing met een oppervlakte van 930m². Op het plan aangeduid als lot 1. Deze bouwgrond heeft een straatbreedte van 10m40, een bouwbreedte van 8m79 en een diepte van maximum 17m op het gelijkvloers, 13m op de eerste verdieping en 9m onder het dak. Vraag gerust naar de verkavelingsvoorschriften en verkavelingsplan. Niet overstromingsgevoelig. Wenst u meer info, maak een afspraak op nummer 03/283.84.84 of mail naar gert@ax-quality.be .
Energie
Op de kaart

Downloads
- RUP.pdf (pdf)
- Plan verkaveling.pdf (pdf)
- Verkavelingsvoorschriften.pdf (pdf)
Financieel
| Prijs |
|---|
Berekening kosten
Je aankoopkosten? Die heb je snel berekend via de knop hieronder.
Bijkomende info
Perceel
| Diepte (m) | 61 |
|---|---|
| Overstromingsgevoelig | Geen |
| P-score | D |
| Voorkeurrecht | Ja |
| Totale oppervlakte (m²) | 930 |
Vergunning
| Vergunning | Geen beschikbaar |
|---|---|
| Verkavelingsvergunning | Geen beschikbaar |
| Bouwovertreding | Geen |
| Bouwovertreding dagvaardiging | Geen |
Een pand van
AX Quality Bornem
Ax Quality, de sleutel naar uw toekomst
AX Immo en Immo-Quality slaan de handen in elkaar en worden samen Ax-Quality. Dezelfde experts, met dezelfde passie voor vastgoed.
6521605
Leer meer over vastgoed
23 March 2026
Op Spotto zoeken als een pro: 10 slimme tips
21 March 2026
Hoeveel kan ik lenen om een huis te kopen?
01 March 2026
Wanneer heb ik een bouwvergunning of omgevingsvergunning nodig?
17 February 2026