Nieuw
Perceel bouwgrond voor open bebouwing
€ 249.000
Een pand van AX Quality Bornem
Favoriet
Jouw zoektocht
Jouw scoretabel voor dit pand
Aan het laden...
Jouw geplande bezichtigingen
Aan het laden...
Overzicht
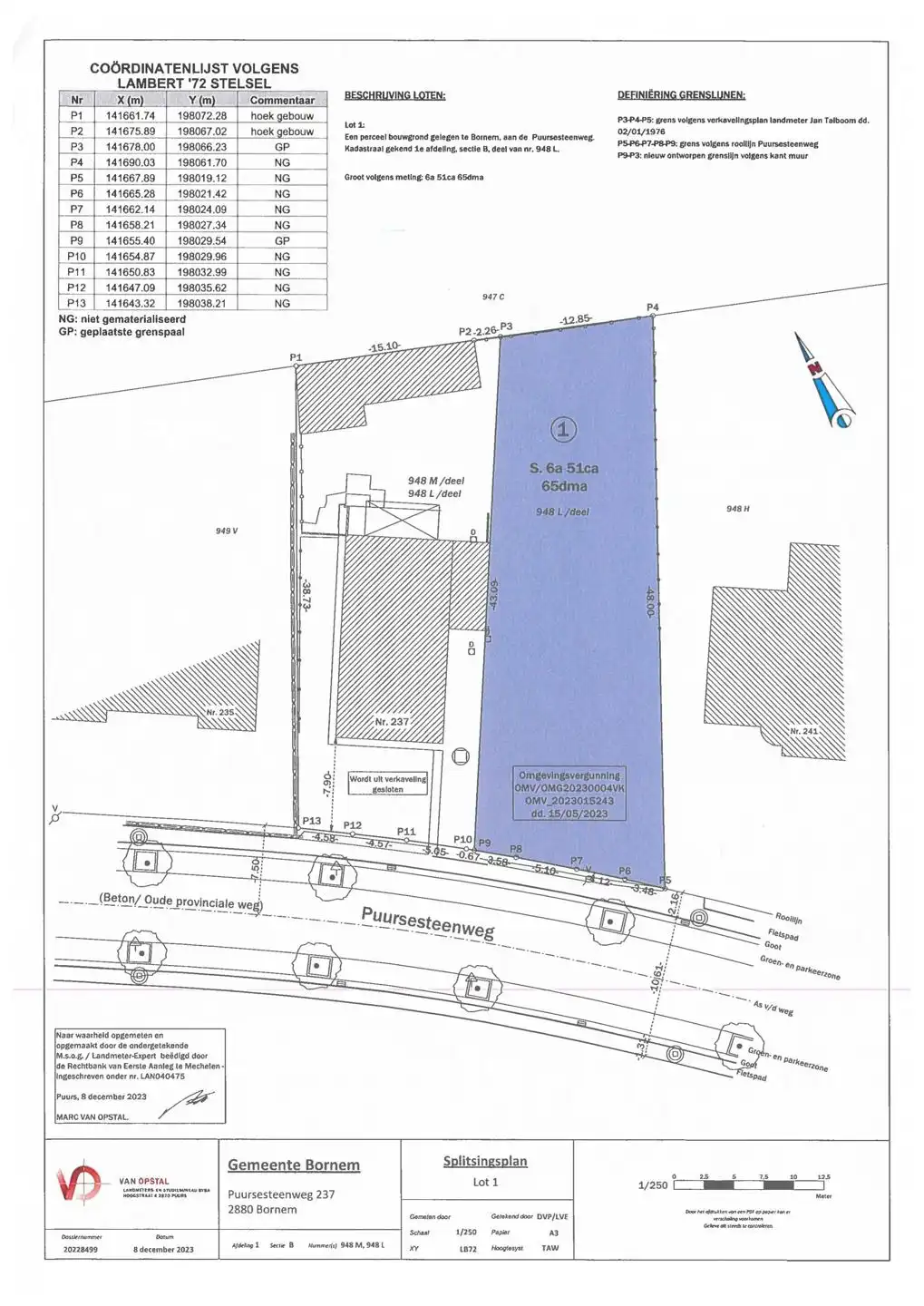
- 651 m² grond
Beschrijving
Nabij het centrum van Bornem vindt u dit mooi perceel bouwgrond, ideaal gelegen voor het realiseren van een open bebouwing. Het perceel heeft een totale oppervlakte van 651 m² en is op het verkavelingsplan aangeduid als lot 1. Met een straatbreedte van 16,5 meter en een diepte van 48 meter biedt deze bouwgrond tal van mogelijkheden voor het bouwen van een vrijstaande woning op een gunstige locatie. Dankzij de centrale ligging tussen Antwerpen, Brussel en Gent, geniet u van een vlotte verbinding met het centrum, winkels, scholen en openbaar vervoer. Voor meer informatie of een bezoek ter plaatse kunt u steeds contact opnemen via het nummer 03/283.84.84 of mailen naar gert@ax-quality.be.
Energie
Op de kaart

Financieel
| Prijs |
|---|
Berekening kosten
Je aankoopkosten? Die heb je snel berekend via de knop hieronder.
Bijkomende info
Perceel
| Diepte (m) | 48 |
|---|---|
| Totale oppervlakte (m²) | 651 |
Vergunning
| Vergunning | Geen beschikbaar |
|---|---|
| Verkavelingsvergunning | Geen beschikbaar |
Een pand van
AX Quality Bornem
Ax Quality, de sleutel naar uw toekomst
AX Immo en Immo-Quality slaan de handen in elkaar en worden samen Ax-Quality. Dezelfde experts, met dezelfde passie voor vastgoed.
6788688
Leer meer over vastgoed
23 March 2026
Op Spotto zoeken als een pro: 10 slimme tips
21 March 2026
Hoeveel kan ik lenen om een huis te kopen?
01 March 2026
Wanneer heb ik een bouwvergunning of omgevingsvergunning nodig?
17 February 2026