Nieuw
Huis te koop
€ 495.500
Guilhof 19 - 2880 Bornem
Overzicht
- 146.89 m² bewoonbaar
- 220 m² grond
- 4 Slaapkamer(s)
- 1 Badkamer(s)
- 1 Tuin
Beschrijving
!OPENHUIS MOMENT - zaterdag 14/02 - 10u tot 13u!
> inschrijving verplicht via info@arcasa.be
Deze halfopen bebouwing is gelegen in de nieuwe, residentiële woonwijk Guilhof te Bornem en geniet van een uiterst rustige ligging.
De nieuwbouwwoning beschikt over parkeergelegenheid voor twee wagens op eigen perceel, waarvan één onder de carport. Achteraan het perceel is er een servitude, waardoor de tuinberging vlot bereikbaar is voor het stallen van fietsen.
Gelijkvloers:
Inkomhal met vestiaire, gastentoilet met handenwasser, lichtrijke leefruimte met open keuken, praktische opbergruimte onder de trap en een aangename tuin (zuid-gericht) met berging.
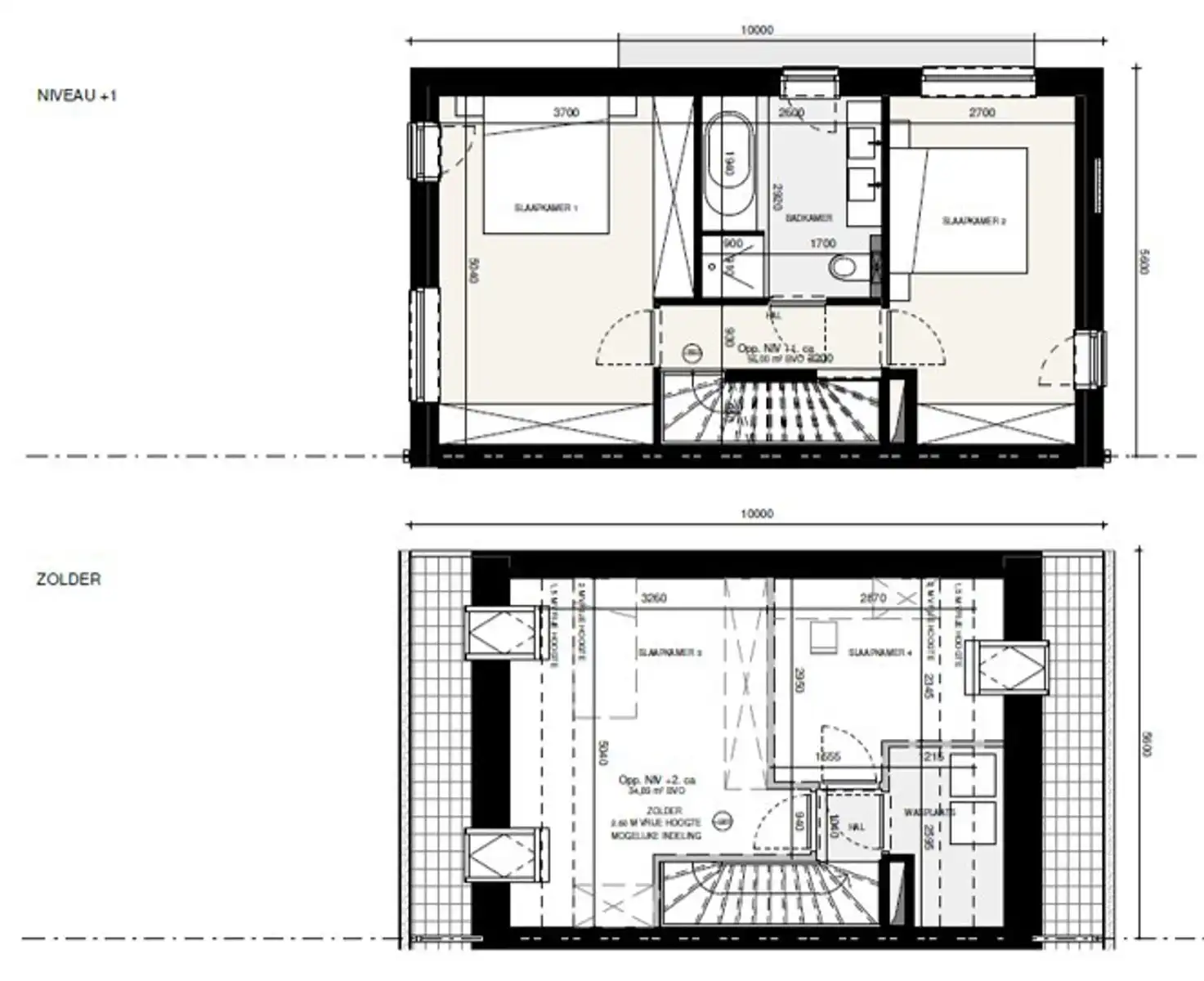
Eerste verdieping:
Badkamer uitgerust met ligbad, douche, toilet en dubbele lavabo en twee ruime slaapkamers (19 m² en 14 m²).
Zolderverdieping:
Wasberging/technische ruimte en twee bijkomende slaapkamers.
De woning is praktisch en energiezuinig ingericht en voldoet volledig aan de normen van een BEN-woning, met onder andere vloerverwarming, warmtepomp en zonnepanelen. Dankzij de zuid gerichte oriëntatie geniet u optimaal van natuurlijk licht.
Bent u op zoek naar een instapklare nieuwbouwwoning, beschikbaar bij akte? Dan maken wij graag een afspraak voor een bezichtiging.
De woning wordt verkocht onder het btw-stelsel, aangezien het een eerste bewoning betreft (constructiewaarde = 279.350 te verhogen met 21% BTW / grondaandeel = 216.150,00 euro te verhogen met 12% registratie).
> inschrijving verplicht via info@arcasa.be
Deze halfopen bebouwing is gelegen in de nieuwe, residentiële woonwijk Guilhof te Bornem en geniet van een uiterst rustige ligging.
De nieuwbouwwoning beschikt over parkeergelegenheid voor twee wagens op eigen perceel, waarvan één onder de carport. Achteraan het perceel is er een servitude, waardoor de tuinberging vlot bereikbaar is voor het stallen van fietsen.
Gelijkvloers:
Inkomhal met vestiaire, gastentoilet met handenwasser, lichtrijke leefruimte met open keuken, praktische opbergruimte onder de trap en een aangename tuin (zuid-gericht) met berging.
Eerste verdieping:
Badkamer uitgerust met ligbad, douche, toilet en dubbele lavabo en twee ruime slaapkamers (19 m² en 14 m²).
Zolderverdieping:
Wasberging/technische ruimte en twee bijkomende slaapkamers.
De woning is praktisch en energiezuinig ingericht en voldoet volledig aan de normen van een BEN-woning, met onder andere vloerverwarming, warmtepomp en zonnepanelen. Dankzij de zuid gerichte oriëntatie geniet u optimaal van natuurlijk licht.
Bent u op zoek naar een instapklare nieuwbouwwoning, beschikbaar bij akte? Dan maken wij graag een afspraak voor een bezichtiging.
De woning wordt verkocht onder het btw-stelsel, aangezien het een eerste bewoning betreft (constructiewaarde = 279.350 te verhogen met 21% BTW / grondaandeel = 216.150,00 euro te verhogen met 12% registratie).
Energie
![]() |
- EPC Certificaat: 12007-G-OMV_2019092269/EP17727/A001/D11/SD001
- Energieverbruik: 24 kWh/m²/jaar
Financieel
| Prijs |
|---|
Berekening kosten
Je aankoopkosten? Die heb je snel berekent via de knop hieronder.
Bijkomende info
Gebouw
| Bouwjaar | 2024 |
|---|---|
| Bewoonbaar (m²) | 146.89 |
| Gevels | 3 |
| Badkamers | 1 |
| Slaapkamers | 4 |
| Parkeerplaatsen | 2 |
Faciliteiten
| Type vloer | |
|---|---|
| Elektrisch keuringsattest | Ja |
Perceel
| Voorkeurrecht | Nee |
|---|---|
| Totale oppervlakte (m²) | 220 |
| Tuin oppervlakte (m²) | 0 |
Vergunning
| Vergunning | Geen beschikbaar |
|---|---|
| Verkavelingsvergunning | Geen beschikbaar |
Uitrusting
| Parking | Ja |
|---|---|
| Garage | Nee |
| Zolder | Ja |
| Tuin | Ja |
| Terras | Ja |
| Wateraansluiting | Ja |
| Elektriciteitsaansluiting | Ja |
| Zonnepanelen | Ja |
| Regenwaterput | Ja |
Leer meer over vastgoed
24 November 2025
Uitgezocht voor jouw gemeente: Hoeveel stijgt de waarde van je woning door een renovatie?
22 October 2025
Hoeveel kan ik lenen om een huis te kopen?
11 June 2025
Huis kopen met bouwovertreding? Dit moet je weten
11 May 2025
