Casco woning in nieuwbouwproject te Hingene, Bornem
€ 249.600
Een pand van AX Quality Bornem
Overzicht
- 150 m² bewoonbaar
- 121 m² grond
- 4 Slaapkamer(s)
- 1 Badkamer(s)
- 2 Toilet(ten)
- 1 Tuin
Overstromingsgevaar gebouw
Overstromingsgevaar perceel
Beschrijving
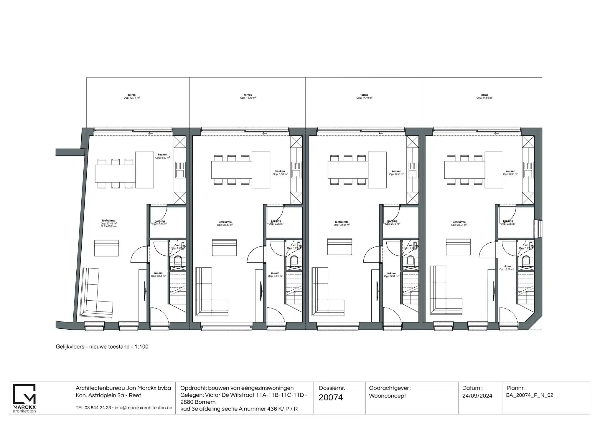
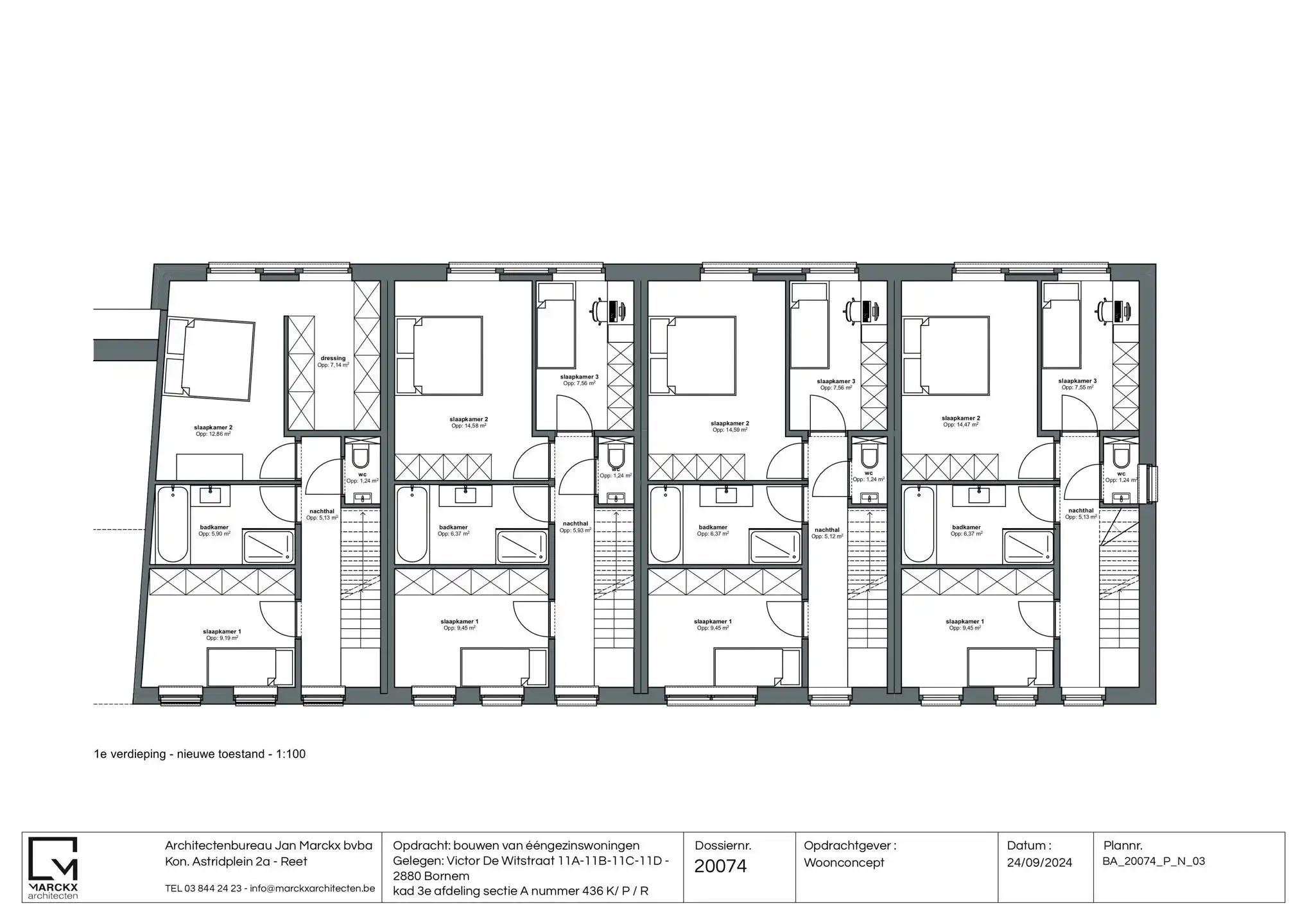
Deze casco nieuwbouwwoning in Hingene, Bornem, biedt 150m² moderne woonruimte en een ideale indeling. De lichte leefruimte vloeit naadloos over in de open keuken, die met een groot schuifraam toegang biedt tot de west-georiënteerde tuin – perfect voor een zonnig terras. Op de eerste verdieping bevinden zich drie slaapkamers, een badkamer met bad en douche, en een apart toilet. De bovenste verdieping herbergt een vierde slaapkamer met dressing en extra bergruimte. De woning is compleet met een handige berging naast de keuken en wordt geleverd met verplichte staanplaatsen voor €12.500. Gelegen in een rustige, maar centrale buurt, met scholen, winkels en openbaar vervoer vlakbij. Een ideale woning voor wie op zoek is naar comfort en modern gemak. Wenst u meer info, maak een afspraak op nummer 03/283.84.84 of mail naar gert@ax-quality.be.
Energie
Op de kaart

Downloads
Financieel
| Prijs |
|---|
Berekening kosten
Je aankoopkosten? Die heb je snel berekend via de knop hieronder.
Bijkomende info
Gebouw
| Bouwjaar | 2025 |
|---|---|
| Bewoonbaar (m²) | 150 |
| Gevels | 2 |
| Badkamers | 1 |
| Slaapkamers | 4 |
| Verdiepingen | 3 |
| Parkeerplaatsen | 1 |
| Toiletten | 2 |
Faciliteiten
| Type vloer |
|---|
Perceel
| P-score | D |
|---|---|
| G-score | D |
| Totale oppervlakte (m²) | 121 |
| Tuin oppervlakte (m²) | 0 |
Vergunning
| Vergunning | Geen beschikbaar |
|---|---|
| Verkavelingsvergunning | Geen beschikbaar |
Uitrusting
| Geschikt voor rolstoelgebruikers | Nee |
|---|---|
| Parking | Nee |
| Garage | Nee |
| Tuin | Ja |
| Terras | Ja |
Een pand van
AX Quality Bornem
Ax Quality, de sleutel naar uw toekomst
AX Immo en Immo-Quality slaan de handen in elkaar en worden samen Ax-Quality. Dezelfde experts, met dezelfde passie voor vastgoed.
6546432
Leer meer over vastgoed
01 March 2026
Wanneer heb ik een bouwvergunning of omgevingsvergunning nodig?
17 February 2026
Hoe breng ik een bod uit op een woning?
24 November 2025
Uitgezocht voor jouw gemeente: Hoeveel stijgt de waarde van je woning door een renovatie?
22 October 2025