SPANJE - villa 3bed/3bad prive zwembad dichtbij zee-strand.
€ 366.000
30730 San Javier
Een pand van Immo De Ras
Favoriet
Jouw zoektocht
Jouw scoretabel voor dit pand
Aan het laden...
Jouw geplande bezichtigingen
Aan het laden...
Overzicht
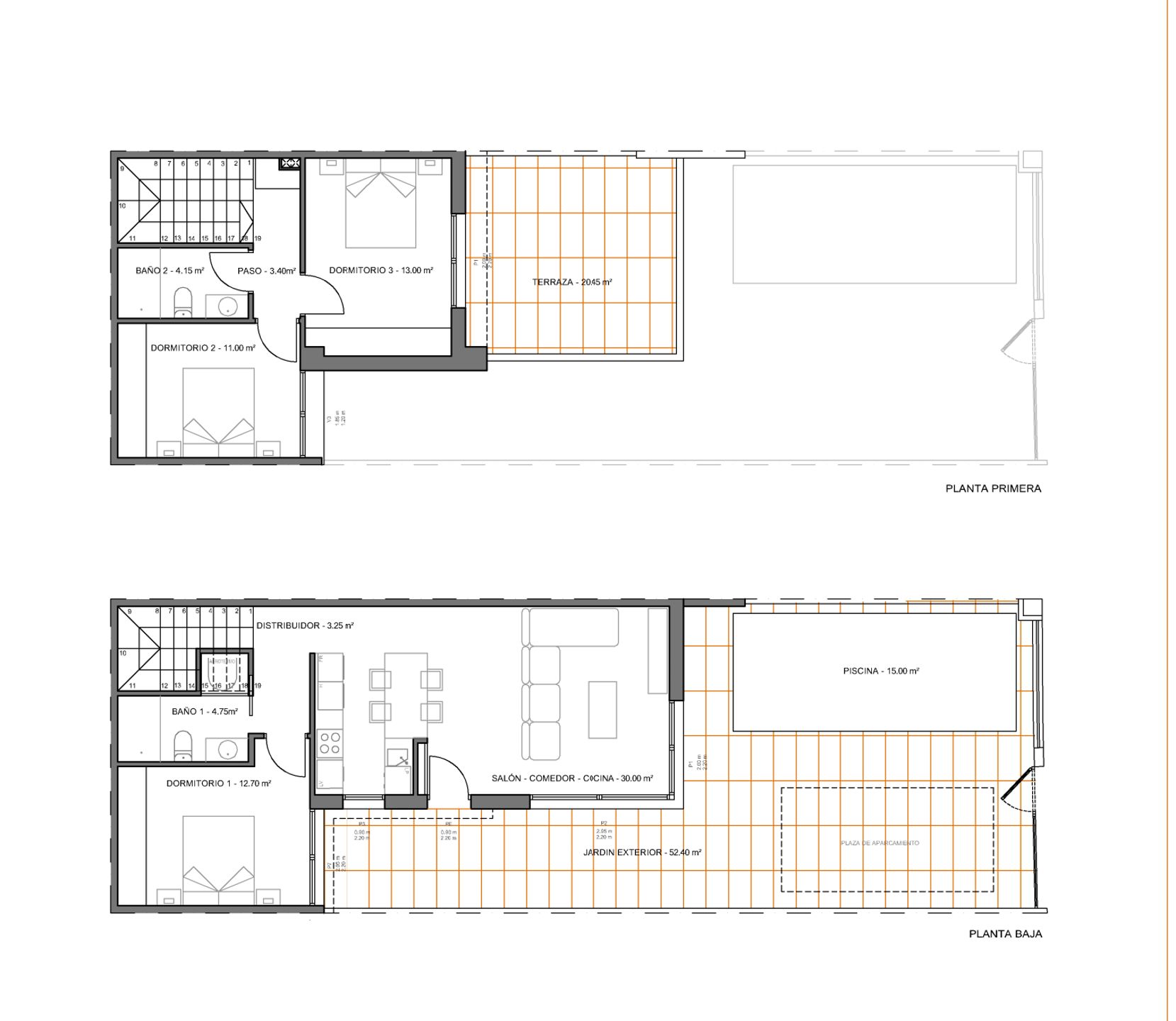
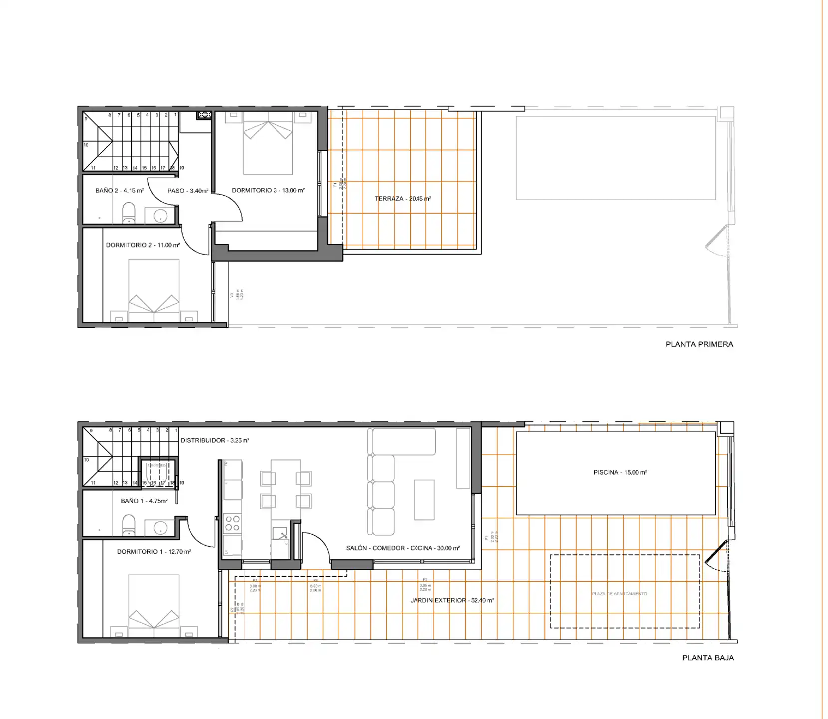
- 120 m² bewoonbaar
- 140 m² grond
- 3 Slaapkamer(s)
- 3 Badkamer(s)
- 3 Toilet(ten)
- 1 Zwembad(en)
- 1 Tuin
Beschrijving
Exclusieve villa’s met privézwembad in Santiago de la Ribera, waar comfort en de Spaanse kust samenkomen.
Ontdek dit uniek nieuwbouwproject van 12 moderne villa’s op een toplocatie. Elke woning biedt 3 slaapkamers, 2 badkamers, een luxe keuken met inbouwapparatuur, een lichte woonkamer en hoogwaardige afwerking met porseleinen vloeren en ingebouwde kasten.
Geniet van je eigen privézwembad en tuin, en bij sommige villa’s een dakterras met zomerkeuken. Op loopafstand van de Mar Menor, dichtbij stranden, restaurants, winkels en de luchthaven is deze villa de ideale uitvalsbasis om te genieten onder de Spaanse zon. Perfect als permanente woning, vakantieverblijf of investering.
Privézwembad en tuin.
Luxe keuken inclusief apparatuur.
Hoogwaardige afwerking.
Dakterras met zomerkeuken mogelijk.
Nabij strand 1km. Voorzieningen 400meter. luchthaven Alicante 40 min Murcia Corvera 20 min.
Wij bieden deze woning aan omdat wijzelf overtuigd zijn van de uitstekende bouwheer. In coördinatie met onze lokale advocaat zorgen wij bovendien voor een 100% sluitend dossier met bankgarantie.
Twijfel niet langer en boek snel je bezoekmoment! Wij zijn voor u ter plaatse. 053/60.65.60
Ontdek dit uniek nieuwbouwproject van 12 moderne villa’s op een toplocatie. Elke woning biedt 3 slaapkamers, 2 badkamers, een luxe keuken met inbouwapparatuur, een lichte woonkamer en hoogwaardige afwerking met porseleinen vloeren en ingebouwde kasten.
Geniet van je eigen privézwembad en tuin, en bij sommige villa’s een dakterras met zomerkeuken. Op loopafstand van de Mar Menor, dichtbij stranden, restaurants, winkels en de luchthaven is deze villa de ideale uitvalsbasis om te genieten onder de Spaanse zon. Perfect als permanente woning, vakantieverblijf of investering.
Privézwembad en tuin.
Luxe keuken inclusief apparatuur.
Hoogwaardige afwerking.
Dakterras met zomerkeuken mogelijk.
Nabij strand 1km. Voorzieningen 400meter. luchthaven Alicante 40 min Murcia Corvera 20 min.
Wij bieden deze woning aan omdat wijzelf overtuigd zijn van de uitstekende bouwheer. In coördinatie met onze lokale advocaat zorgen wij bovendien voor een 100% sluitend dossier met bankgarantie.
Twijfel niet langer en boek snel je bezoekmoment! Wij zijn voor u ter plaatse. 053/60.65.60
Energie
Financieel
| Prijs |
|---|
Bijkomende info
Gebouw
| Bouwjaar | 2025 |
|---|---|
| Bewoonbaar (m²) | 120 |
| Verdieping | 0 |
| Gevels | 3 |
| Kelder | 0 |
| Badkamers | 3 |
| Slaapkamers | 3 |
| Verdiepingen | 1 |
| Parkeerplaatsen | 0 |
| Doucheruimtes | 1 |
| Toiletten | 3 |
Faciliteiten
| Type vloer | |
|---|---|
| Keuken uitrusting | Goed uitgerust |
Perceel
| Overstromingsgevoelig | Geen |
|---|---|
| Totale oppervlakte (m²) | 140 |
| Bebouwde oppervlakte (m²) | 120 |
| Tuin oppervlakte (m²) | 50 |
Vergunning
| Vergunning | Geen beschikbaar |
|---|---|
| Verkavelingsvergunning | Geen beschikbaar |
Uitrusting
| Geschikt voor rolstoelgebruikers | Nee |
|---|---|
| Parking | Ja |
| Garage | Nee |
| Tuin | Ja |
| Terras | Ja |
| Lift | Nee |
| Zonnepanelen | Ja |
| Zwembad | Ja |
| Zwemvijver | Ja |
Een pand van
Immo De Ras
IMMO DE RAS
IMMO DE RAS, jouw vastgoedexpert bij het vinden van een nieuwe bestemming voor uw vastgoed. Verkoop en verhuur van huizen, appartementen en gronden. Wij helpen u graag verder met ons groot aanbod te koop in regio Lede, Erpe-Mere, Sint-Lievens-Houtem, Herzele, Zottegem, Wichelen, Wetteren, ... Services: gratis schatting, kopen en verkopen, projectontwikkeling, certificaten en keuringen.
Leer meer over vastgoed
23 March 2026
Op Spotto zoeken als een pro: 10 slimme tips
21 March 2026
Hoeveel kan ik lenen om een huis te kopen?
01 March 2026
Wanneer heb ik een bouwvergunning of omgevingsvergunning nodig?
17 February 2026