> Te koop > Overijse > Grond > Gunstig gelegen bouwgrond (3a59ca), vlakbij het Zoniënwoud

Gunstig gelegen bouwgrond (3a59ca), vlakbij het Zoniënwoud

Een pand van Ifac Service

Volledige aanbod

Overzicht


  • 554 m² grond

Beschrijving


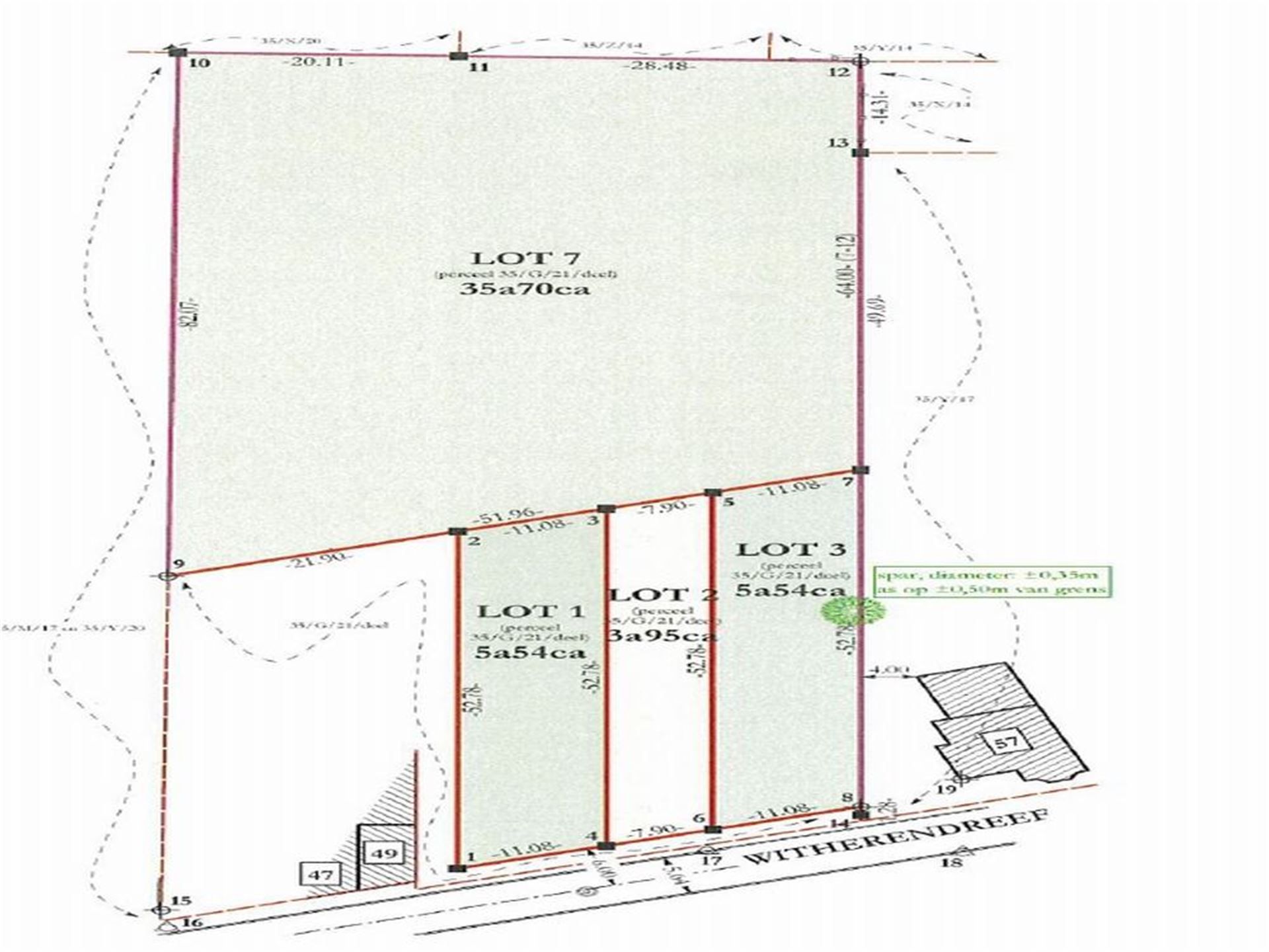
Gunstig gelegen bouwgrond met een totale oppervlakte van 5a54ca, vlakbij het Zoniënwoud en het centrum van Jezus-Eik (openbaar vervoer, scholen, winkels, restaurants,...) op korte afstand van de Brusselse Ring en verbinding met de E411, echter toch zeer rustig!

Perceel gelegen aan een verkeersluwe straat in woongebied voor halfopen bebouwing.

Verkavelingsvoorschriften: straatbreedte van +/-11,05m met een maximale gevelbreedte van 7,50m, 5m achteruitbouw waarvan maximaal 50% verhard mag worden, 3m zijdelings bouwverbod, maximale bouwdiepte van 15m voor het gelijkvloers en 12m voor de eerste verdieping, kelder of dakverdieping zijn mogelijk, zie bouwvoorschriften in bijlage.

Niet overstromingsgevoelig (Perceelscore: A)

Een echte opportuniteit voor de bouw van een eengezinswoning met een ideale aangename ligging in een gezinsvriendelijke en groene omgeving!

Energie


  • E-peil: E0
  • Beglazing: Onbekend

Op de kaart


map placeholder

Financieel


Prijs € 254.000
Kadastraal inkomen (niet geïndexeerd) € 0
Kadastraal inkomen (geïndexeerd) € 0

Berekening kosten


Je aankoopkosten? Die heb je snel berekent via de knop hieronder.

Bijkomende info


Gebouw
Bouwcertificaat Nee
Perceel
Overstromingsgevoelig Geen
P-score A
Voorkeurrecht Nee
Totale oppervlakte (m²) 554
Vergunning
Vergunning Geen beschikbaar
Verkavelingsvergunning Vergunning beschikbaar
Uitrusting
Investeringspand Nee
Rioolaansluiting Nee
Gasaansluiting Nee
Wateraansluiting Nee
Elektriciteitsaansluiting Nee
TV aansluiting Nee
Internetaansluiting Nee
Telefoonaansluiting Nee

Een pand van


Ifac Service
Logo van makelaar: Ifac Service
Ifac Service Immobiliën
Ifac Service werd opgericht in 1978 en is vandaag één van de grootste kantoren in de regio Brussel-Leuven. Ons kantoor in het centrum van Tervuren telt momenteel een twintigtal medewerkers, onze aanpak is ondanks onze groei hartelijk en persoonlijk gebleven. Heeft u vragen omtrent verkopen, verhuren, vastgoedbeheer en/of nieuwbouw? Dan kan u steeds bij ons terecht.
Logo van makelaar: Ifac Service
WITHERENDREEF 51 (LOT 1) OVERIJSE
Gunstig gelegen bouwgrond (3a59ca), vlakbij het Zoniënwoud foto {{pictureIndex}}

Gunstig gelegen bouwgrond (3a59ca), vlakbij het Zoniënwoud

€ 254.000

Witherendreef 51/(Lot 1) - 3090 Overijse

Bezoek het pand

Vul jouw contactgegevens hieronder in en de makelaar contacteert je.

Leer meer over vastgoed

11 June 2025
Huis kopen met bouwovertreding? Dit moet je weten
11 May 2025
Renoveren? Vraag je Mijn VerbouwPremie aan
22 April 2025
Je allereerste renovatieproject selecteren én budgetteren: met de praktische hulp van Spotto
17 February 2025
Levenslang wonen: slaapkamer inrichten voor nieuwe invulling